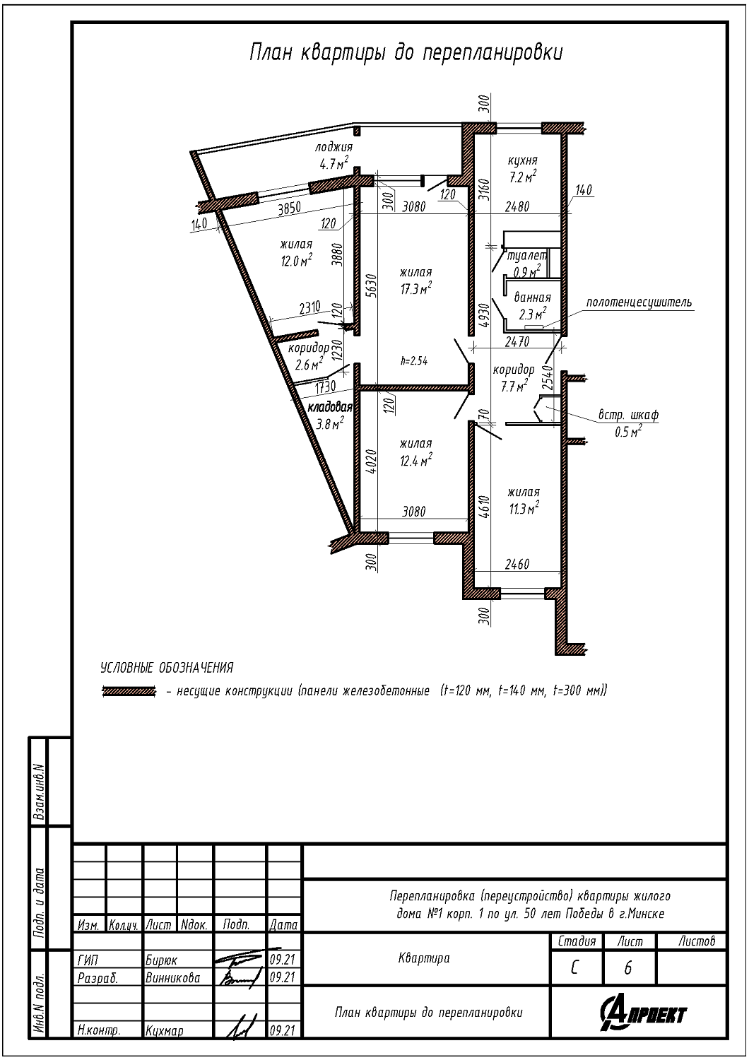
Перепланировка квартиры по ул. 50 лет Победы, 1 корпус 1 в г. Минске
Пожелания заказчика:
- Объединение туалета и ванной в единый санузел;
- Устройство проёма в несущей стене между жилой и кухней;
- Закладка дверного проёма в перегородке между кухней и коридором;
- Демонтаж встроенного шкафа;
- Разделение общей лоджии на две отдельные лоджии;
- Утепление лоджии;
- Устройство зашивок из ГКЛ на части площади жилой;
- Демонтаж оконных блоков и подоконных частей стен между жилой и лоджией с последующей установкой дверных блоков;
- Перенос и замена отопительных приборов.
Нами были разработаны следующие разделы проектной документации для согласования в исполкоме:
- АС - архитектурно-строительные решения;
- ОВ - отопление и вентиляция.
