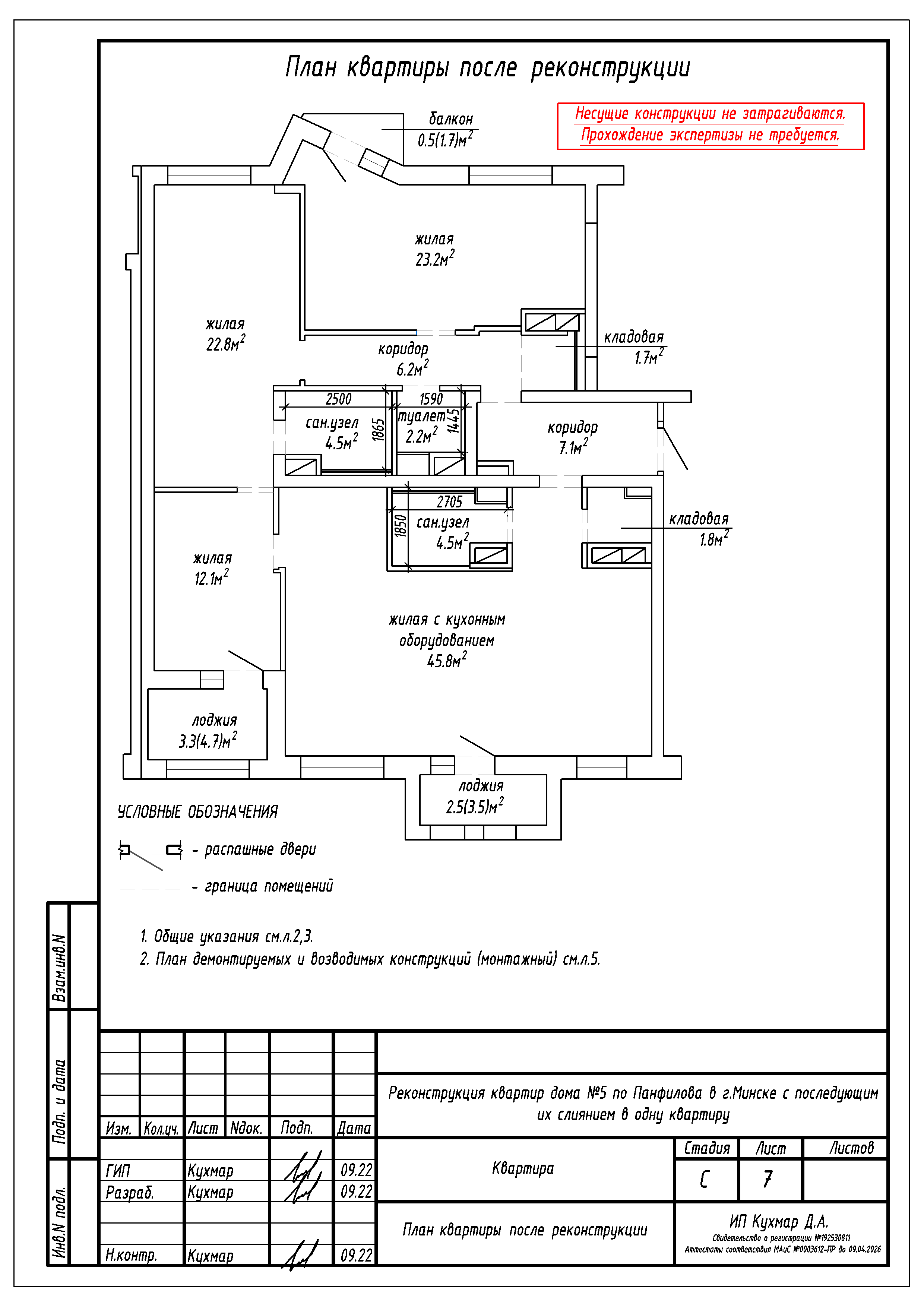
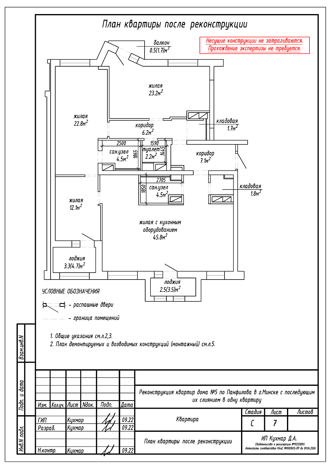
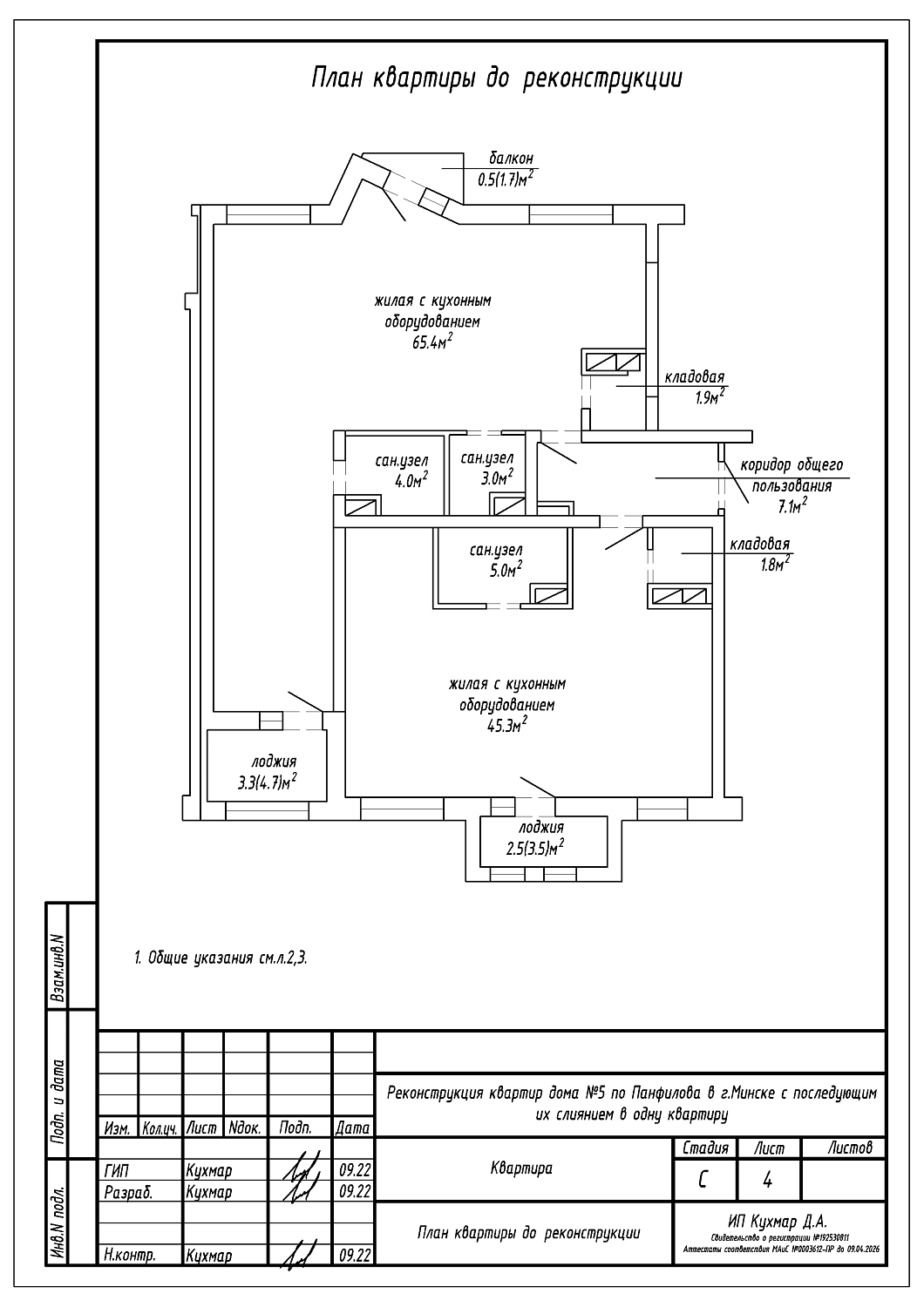
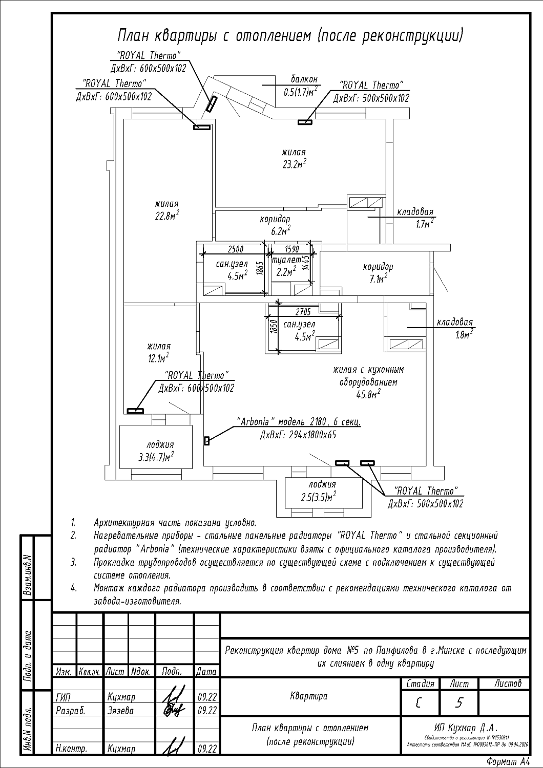
Реконструкция квартир (объединение) по ул. Панфилова 5 в ЖК «Комфорт Парк»
Пожелания заказчика:
- Объединение двух квартир посредством устройства проёма между двумя квартирами;
- Устройство жилой с кухонным оборудованием, трёх жилых, коридора и кладовой;
- Изменение габаритов существующих санузлов;
- Устройство туалета на площади существующего санузла;
- Устройство коридора на площади коридора общего пользования;
- Смещение дверного проёма входной двери коридора общего пользования;
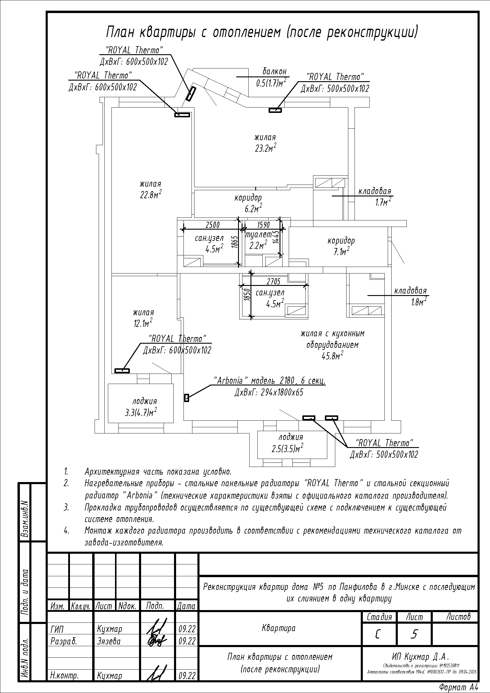
- Замена и перенос существующих отопительных приборов.
Нами были разработаны следующие разделы проектной документации для согласования в исполкоме:
- АС - архитектурно-строительные решения;
- ОВ - отопление и вентиляция;
- ЭМ - электроборудование. Монтаж.
