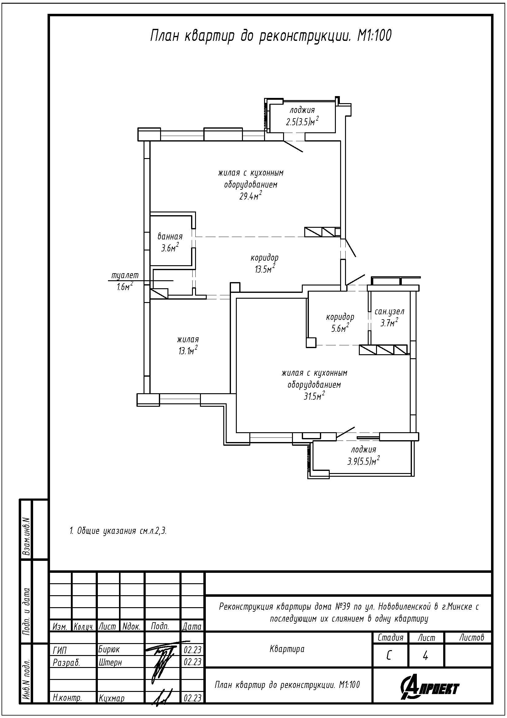
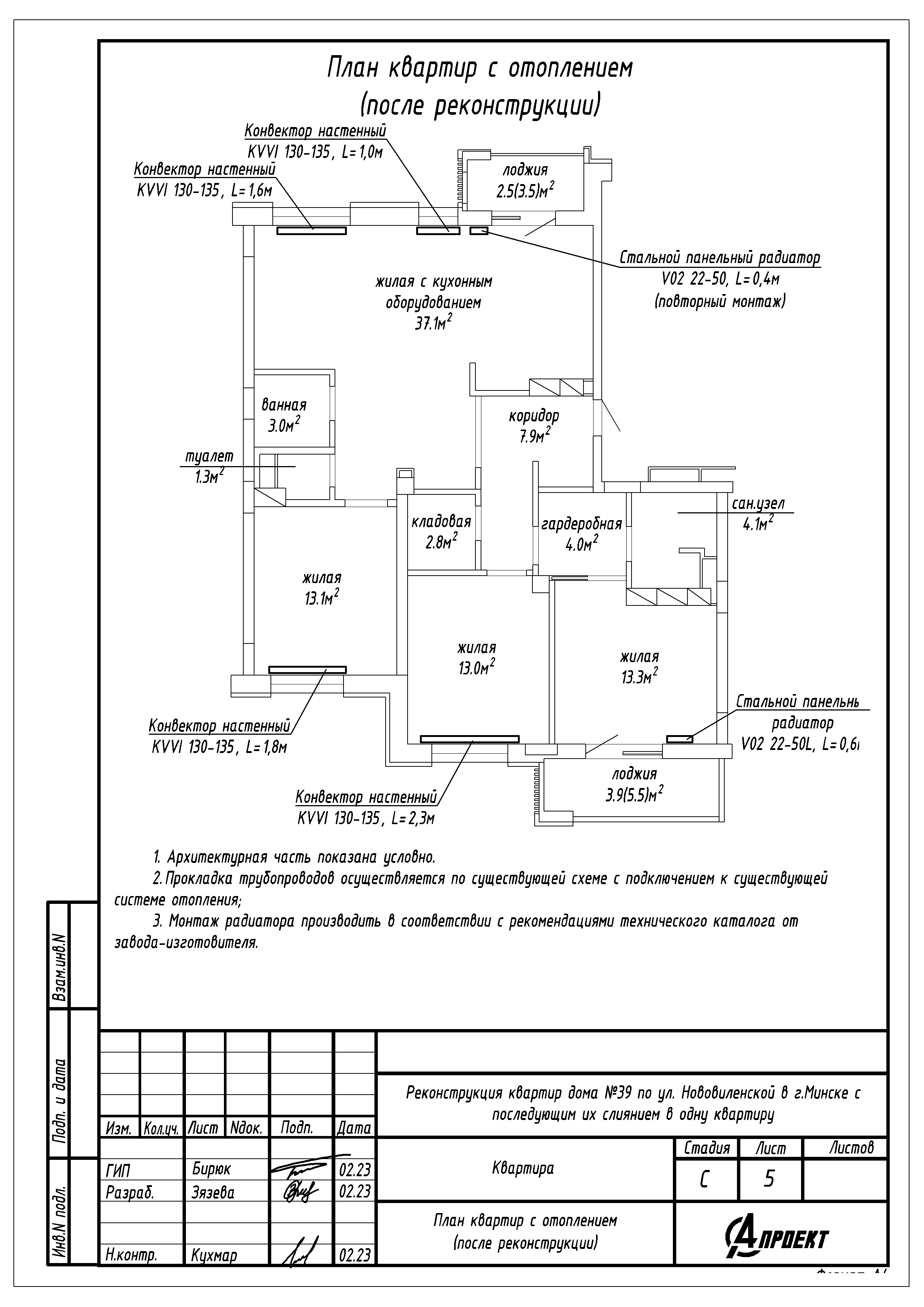
Реконструкция квартиры по ул. Нововиленская, 39 в ЖК «Левада»
Пожелания заказчика:
- Объединение двух квартир путём демонтажа стены между ними;
- Закладка входной двери в одну из квартир;
- Устройство трёх жилых, жилой комнаты с кухонным оборудованием, гардеробной, кладовой, туалета, ванной, санузла в объединенной квартире;
- Демонтаж дверного блока, части простенка между лоджией и жилой с кухонным оборудованием, с последующим устройством нового дверного блока без создания отапливаемого помещения;
- Перенос существующего отопительного прибора.
Нами были разработаны следующие разделы проектной документации для согласования в исполкоме:
- АС - архитектурно-строительные решения;
- ОВ - отопление и вентиляция.
