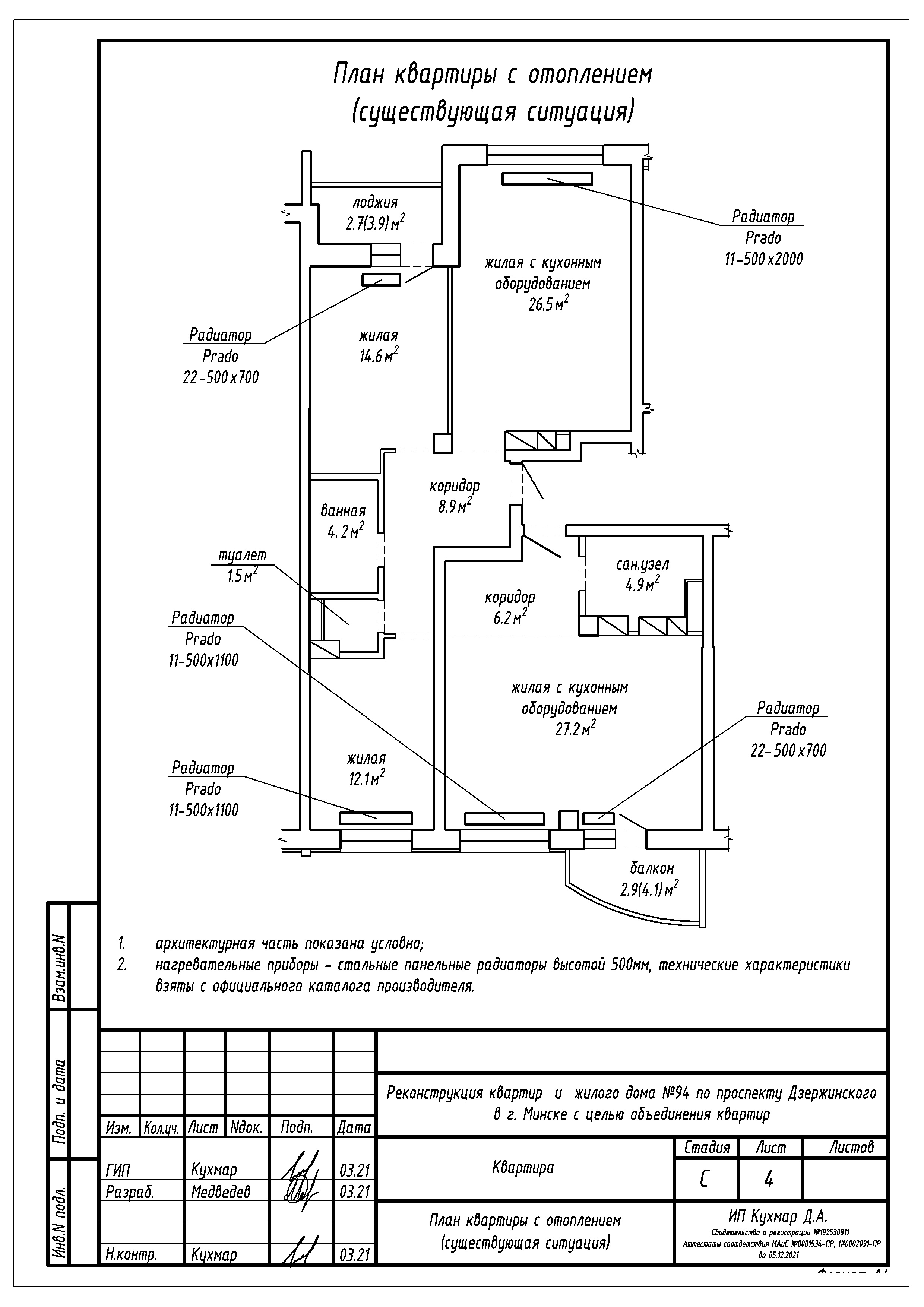
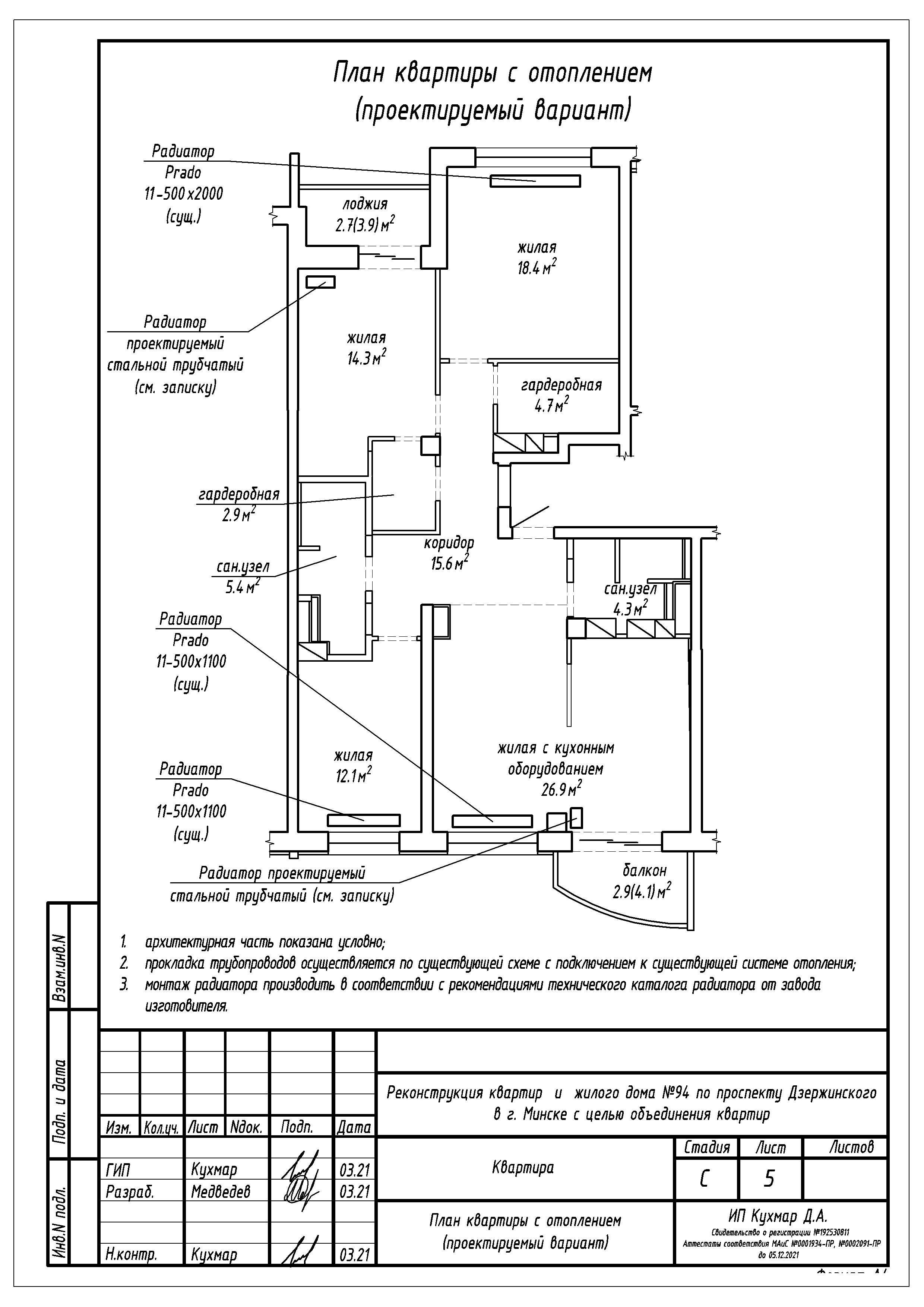
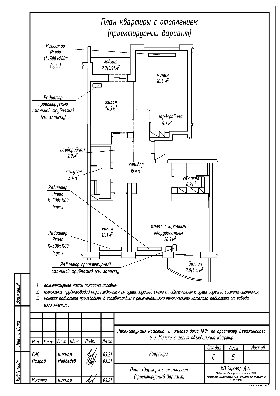
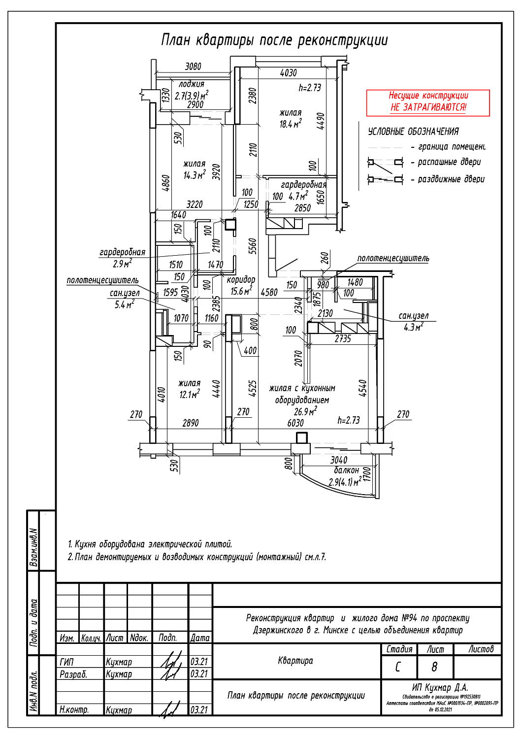
Реконструкция квартир (объединение) по пр-ту Дзержинского, 94 в г. Минске
Пожелания заказчика:
- Горизонтальное объединение двух квартир;
- Устройство жилой на месте одной из кухонь;
- Устройство гардеробных;
- Объединение ванной и туалета;
- Замена и перенос отопительных приборов (батареи).
Нами были разработаны следующие разделы проектной документации для согласования в исполкоме:
- АС - архитектурно-строительные решения;
- ОВ - отопление и вентиляция.
