Размер шрифта
Цвет фона и шрифта
Изображения
Озвучивание текста
Обычная версия сайта
Перепланировка квартир
Полный комплекс услуг по перепланировке квартир в Минске
+375 (44) 535-33-00
+375 (44) 535-33-00
+375 (44) 515-33-00
Заказать звонок
E-mail
inproekt100@gmail.com
Адрес
г. Минск, ул. Чапаева 3, офис 101
Режим работы
Пн. – Пт.: с 9:00 до 18:00
Подать заявку
Услуги
  • Квартиры
    • Дизайн-проект
    • Согласование перепланировки
    • Проект перепланировки
    • Технический надзор за выполнением работ
    • Строительно-монтажные работы
    • Согласование самовольной перепланировки
    • Техническое заключение
    • Обмеры
  • Нежилые помещения
    • Перепланировка, модернизация, реконструкция помещений
    • Обмеры нежилых помещений
  • Мастер-классы
    • Мастер-класс по перепланировке для дизайнеров
    • Мастер-класс по перепланировке для дизайнеров
Акции
Проекты
  • Санузлы
  • Батареи
  • Антресоль
  • Газ на электро
  • Дизайн
  • Кухня в жилую
  • Нежилые
  • Объединение / разделение квартир
  • Проём в несущей
Отзывы
Статьи
Мастер-класс
О нас
  • Лицензии
  • Сотрудники
  • Отзывы
Контакты
г. Минск, ул. Чапаева 3, офис 101
...
+375 (44) 535-33-00
+375 (44) 535-33-00
+375 (44) 515-33-00
Заказать звонок
E-mail
inproekt100@gmail.com
Адрес
г. Минск, ул. Чапаева 3, офис 101
Режим работы
Пн. – Пт.: с 9:00 до 18:00
Заказать звонок
Перепланировка квартир
Услуги
  • Квартиры
    Квартиры
    • Дизайн-проект
    • Согласование перепланировки
    • Проект перепланировки
    • Технический надзор за выполнением работ
    • Строительно-монтажные работы
    • Согласование самовольной перепланировки
    • Техническое заключение
    • Обмеры
  • Нежилые помещения
    Нежилые помещения
    • Перепланировка, модернизация, реконструкция помещений
    • Обмеры нежилых помещений
  • Мастер-классы
    Мастер-классы
    • Мастер-класс по перепланировке для дизайнеров
    • Мастер-класс по перепланировке для дизайнеров
Акции
Проекты
  • Санузлы
  • Батареи
  • Антресоль
  • Газ на электро
  • Дизайн
  • Кухня в жилую
  • Нежилые
  • Объединение / разделение квартир
  • Проём в несущей
Отзывы
Статьи
Мастер-класс
О нас
  • Лицензии
  • Сотрудники
  • Отзывы
Контакты
    Подать заявку
    Перепланировка квартир
    Услуги
    • Квартиры
      Квартиры
      • Дизайн-проект
      • Согласование перепланировки
      • Проект перепланировки
      • Технический надзор за выполнением работ
      • Строительно-монтажные работы
      • Согласование самовольной перепланировки
      • Техническое заключение
      • Обмеры
    • Нежилые помещения
      Нежилые помещения
      • Перепланировка, модернизация, реконструкция помещений
      • Обмеры нежилых помещений
    • Мастер-классы
      Мастер-классы
      • Мастер-класс по перепланировке для дизайнеров
      • Мастер-класс по перепланировке для дизайнеров
    Акции
    Проекты
    • Санузлы
    • Батареи
    • Антресоль
    • Газ на электро
    • Дизайн
    • Кухня в жилую
    • Нежилые
    • Объединение / разделение квартир
    • Проём в несущей
    Отзывы
    Статьи
    Мастер-класс
    О нас
    • Лицензии
    • Сотрудники
    • Отзывы
    Контакты
      +375 (44) 535-33-00
      +375 (44) 515-33-00
      Заказать звонок
      E-mail
      inproekt100@gmail.com
      Адрес
      г. Минск, ул. Чапаева 3, офис 101
      Режим работы
      Пн. – Пт.: с 9:00 до 18:00
      Подать заявку
      Перепланировка квартир
      Телефоны
      +375 (44) 535-33-00
      +375 (44) 515-33-00
      Заказать звонок
      Перепланировка квартир
      • Услуги
        • Услуги
        • Квартиры
          • Квартиры
          • Дизайн-проект
          • Согласование перепланировки
          • Проект перепланировки
          • Технический надзор за выполнением работ
          • Строительно-монтажные работы
          • Согласование самовольной перепланировки
          • Техническое заключение
          • Обмеры
        • Нежилые помещения
          • Нежилые помещения
          • Перепланировка, модернизация, реконструкция помещений
          • Обмеры нежилых помещений
        • Мастер-классы
          • Мастер-классы
          • Мастер-класс по перепланировке для дизайнеров
          • Мастер-класс по перепланировке для дизайнеров
      • Акции
      • Проекты
        • Проекты
        • Санузлы
        • Батареи
        • Антресоль
        • Газ на электро
        • Дизайн
        • Кухня в жилую
        • Нежилые
        • Объединение / разделение квартир
        • Проём в несущей
      • Отзывы
      • Статьи
      • Мастер-класс
      • О нас
        • О нас
        • Лицензии
        • Сотрудники
        • Отзывы
      • Контакты
      Подать заявку
      • +375 (44) 535-33-00
        • Телефоны
        • +375 (44) 535-33-00
        • +375 (44) 515-33-00
        • Заказать звонок
      • г. Минск, ул. Чапаева 3, офис 101
      • inproekt100@gmail.com
      • Пн. – Пт.: с 9:00 до 18:00
      Проём в несущей

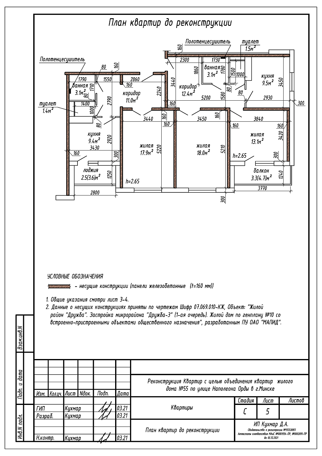
      ул. Наполеона Орды, 55

      Реконструкция квартир (Объединение) в г. Минске:
      psd_1.png Комплекс услуг: Проект
      projekt_1.png Разделы проекта: АС
      location_1.png Место: Московский р-н
      JK_1.png ЖК: 
      Подробнее
      ул. Наполеона Орды, 55
      Фотогалерея
      6 —
      1/6 —
      ул. Наполеона Орды, 55
      ул. Наполеона Орды, 55
      ул. Наполеона Орды, 55
      ул. Наполеона Орды, 55
      ул. Наполеона Орды, 55
      ул. Наполеона Орды, 55
      ул. Наполеона Орды, 55
      ул. Наполеона Орды, 55
      ул. Наполеона Орды, 55
      ул. Наполеона Орды, 55
      ул. Наполеона Орды, 55
      ул. Наполеона Орды, 55
      Оформите заявку на проект, мы свяжемся с вами в ближайшее время и ответим на все интересующие вопросы.
      Заказать проект
      ?
      • Описание
      • Вопросы и ответы

      Реконструкция квартир (объединение) по ул. Наполеона Орды, 55 в г. Минске

      Пожелания заказчика:

      1. Объединение однокомнатной и двухкомнатной квартир;
      2. Устройство дверного проема между квартирами в несущей стене;
      3. Устройство кабинета на площади кухни;
      4. Закладка одного из проемов входной двери;
      5. Устройство теплоизоляции наружных стен балкона и лоджии.

      Нами были разработаны следующие разделы проектной документации для согласования в исполкоме:

      • АС - архитектурно-строительные решения.
      Вопросы и ответы
      Какие документы необходимы для согласования перепланировки квартиры?

      Чтобы получить разрешение на перепланировку в администрации вашего района, необходимо подготовить:

      • паспорт;
      • заявление на перепланировку;
      • техпаспорт квартиры;
      • свидетельство о гос.регистрации квартиры (документ подтверждающий право собственности на квартиру);
      • согласие прописанных в квартире совершеннолетних лиц на проведение работ либо их присутствие при подаче документов;
      • план-схема планируемой перепланировки или перечень работ в свободной форме;
      • акт осмотра квартиры, составленный обслуживающей организацией;
      • согласие залогодержателя (если помещение находится в залоге);
      • разрешение из банка (если квартира куплена в кредит);
      • выписка из лицевого счета.
      Когда требуют наличие технадзора при перепланировке?

      Наличие технического надзора требуется при разработке проектной документации.

      Карта
      загрузка карты...
      Сопутствующие услуги
      Согласование перепланировки
      Согласование перепланировки, реконструкции квартиры: от получения разрешения до оформления нового техпаспорта на квартиру. Оказываем услугу по Минску и Минскому району.
      от 800 BYN
      Проект перепланировки
      Разработка проектной документации для согласования перепланировки, реконструкции квартиры.
      от 400 BYN
      01.11.2017
      Перепланировка, модернизация, реконструкция помещений
      Комплекс услуг для нежилых помещений различного назначения: административные, торговые, здравоохранение, складские, производственние и прочее.
      от 500 BYN
      Похожие проекты
      Проём в несущей, Газ на электро, Санузлы
      ул. Ландера, 70
      Перепланировка квартиры в г. Минске:
      psd_1.png Комплекс услуг: «Под ключ»
      projekt_1.png Разделы проекта: АС+ЭМ
      location_1.png Место: Октябрьский р-н
      JK_1.png ЖК: 
      Объединение / разделение квартир, Батареи
      ул. Нововиленская, 39_4
      Реконструкция квартиры в ЖК «Левада»:
      psd_1.png Комплекс услуг: Проект
      projekt_1.png Разделы проекта: АС+ОВ
      location_1.png Место: Центральный р-н
      JK_1.png ЖК «Левада»
      Статьи
      5 июня 2023
      Алгоритм согласования перепланировки квартиры 2023
      Как согласовать перепланировку квартиры в Беларуси в 2023 году? Подробный алгоритм и ответы на важные вопросы в нашей статье.
      11 марта 2022
      Отделы архитектуры и строительства районов Минска
      Для согласования перепланировки необходимо обратиться в отдел архитектуры и строительства исполкома того района, к которому относится дом. Ниже список всех отделов архитектуры с контактной информацией.
      Назад к списку

      +375 (44) 535-33-00
      +375 (44) 535-33-00
      +375 (44) 515-33-00
      Заказать звонок
      E-mail
      inproekt100@gmail.com
      Адрес
      г. Минск, ул. Чапаева 3, офис 101
      Режим работы
      Пн. – Пт.: с 9:00 до 18:00
      Заказать звонок
      inproekt100@gmail.com
      г. Минск, ул. Чапаева 3, офис 101
      Услуги
      Квартиры
      Нежилые помещения
      Мастер-классы
      Компания
      Лицензии
      Сотрудники
      Отзывы
      Информация
      Вопрос-ответ
      Как оформить заказ
      платежные системы 1.png
      © 2026 Pereplan.by
      Общество с ограниченной ответственностью «А4-Проект»
      Свидетельство о государственной регистрации 193093030 выдано 13.06.2018 Минским горисполкомом.
      Юр. Адрес: Беларусь, г.Минск, ул. Чапаева, 3-101.
      Политика конфиденциальности
      Договор оферты
      Главная Услуги Проекты Лицензии Статьи FAQ Скидки Отзывы Поиск Сотрудники Контакты