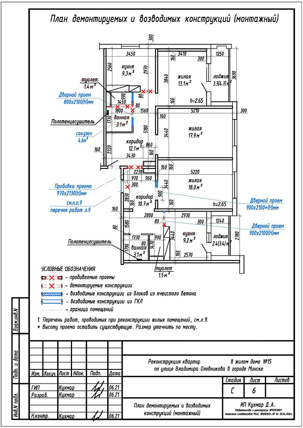
Реконструкция (объединение) квартир по ул. Оловникова, 15 в г. Минске
Пожелания заказчика:
- Объединение двух соседних квартир путем устройства дверного проема в несущей межквартирной стене;
- Устройство совмещенного санузла на площади существующей ванной и туалета в одной из квартир;
- Уменьшение ширины дверного проёма из коридора в жилую комнату;
- Демонтаж дверного проёма между кухней и коридором;
Нами были разработаны следующие разделы проектной документации для согласования в исполкоме:
- АС - архитектурно-строительные решения.
