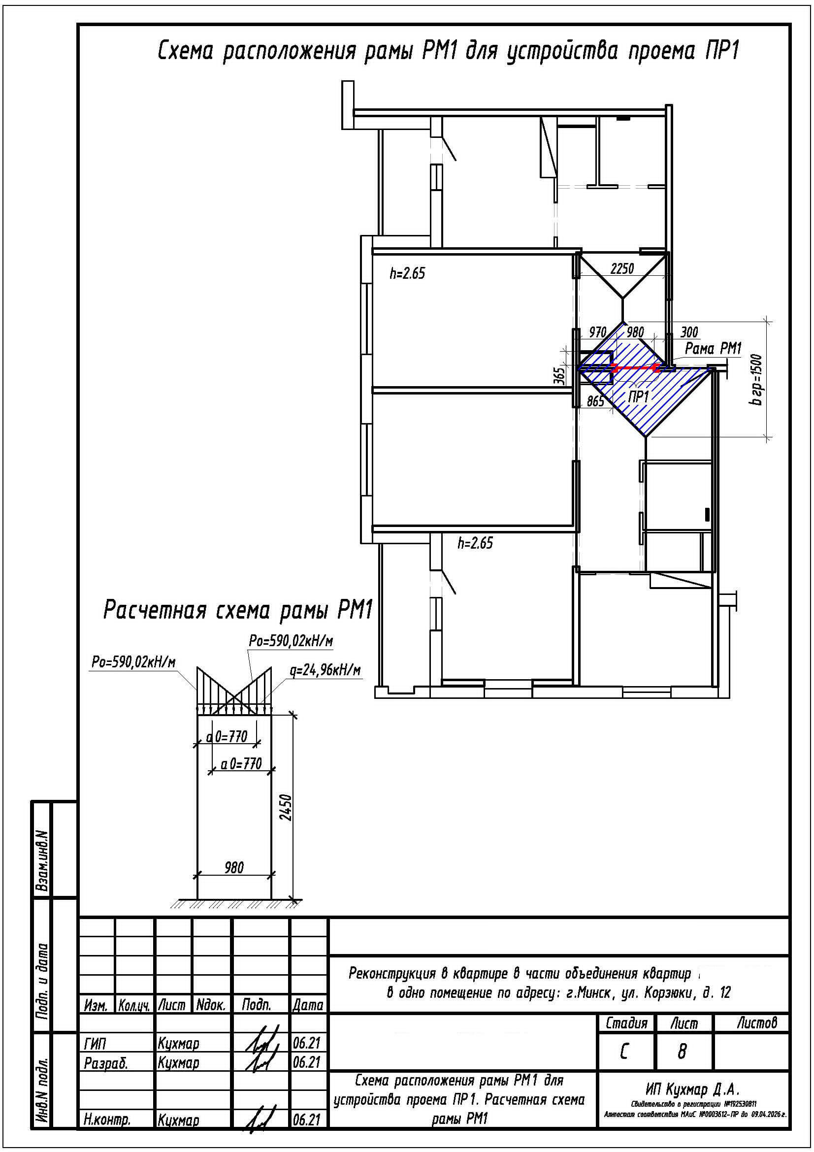
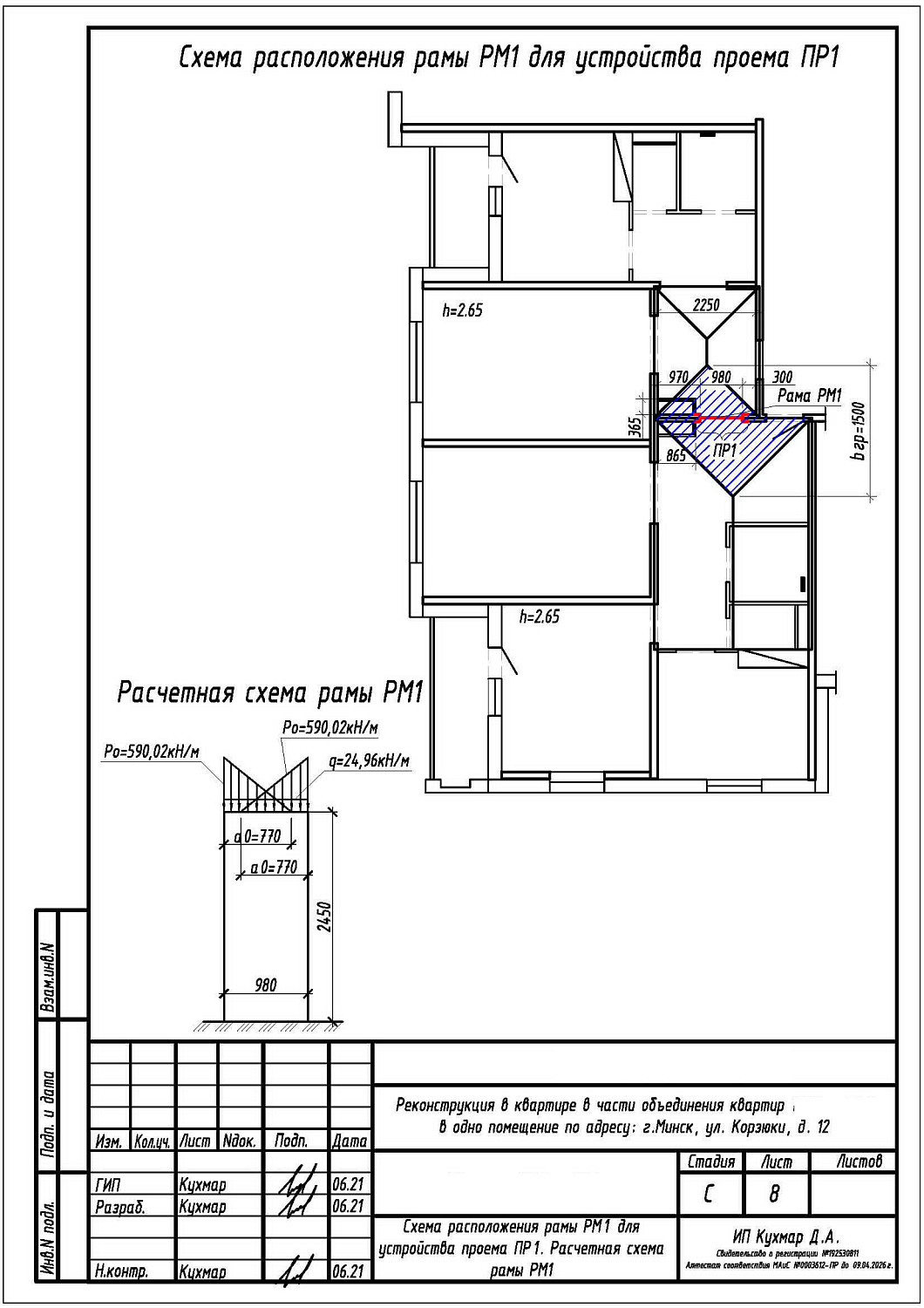
Реконструкция (объединение) квартир по ул. Корзюки, 12 в г. Минске
Пожелания заказчика:
- Объединение двух соседних квартир путем устройства дверного проема в несущей межквартирной стене;
- Устройство кабинета на площади одной из кухонь.
Нами были разработаны следующие разделы проектной документации для согласования в исполкоме:
- АС - архитектурно-строительные решения.
