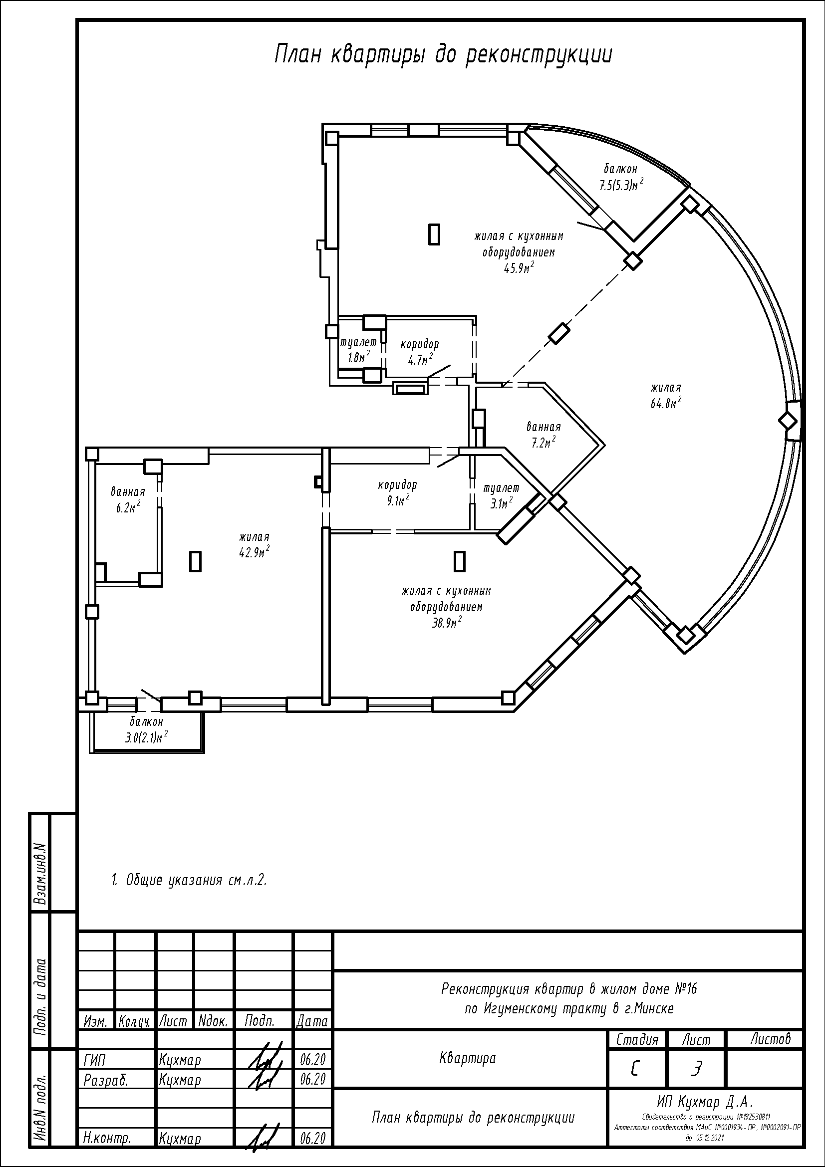
Реконструкция квартир по Игуменскому тракту, 16 в г. Минске
Пожелания заказчика:
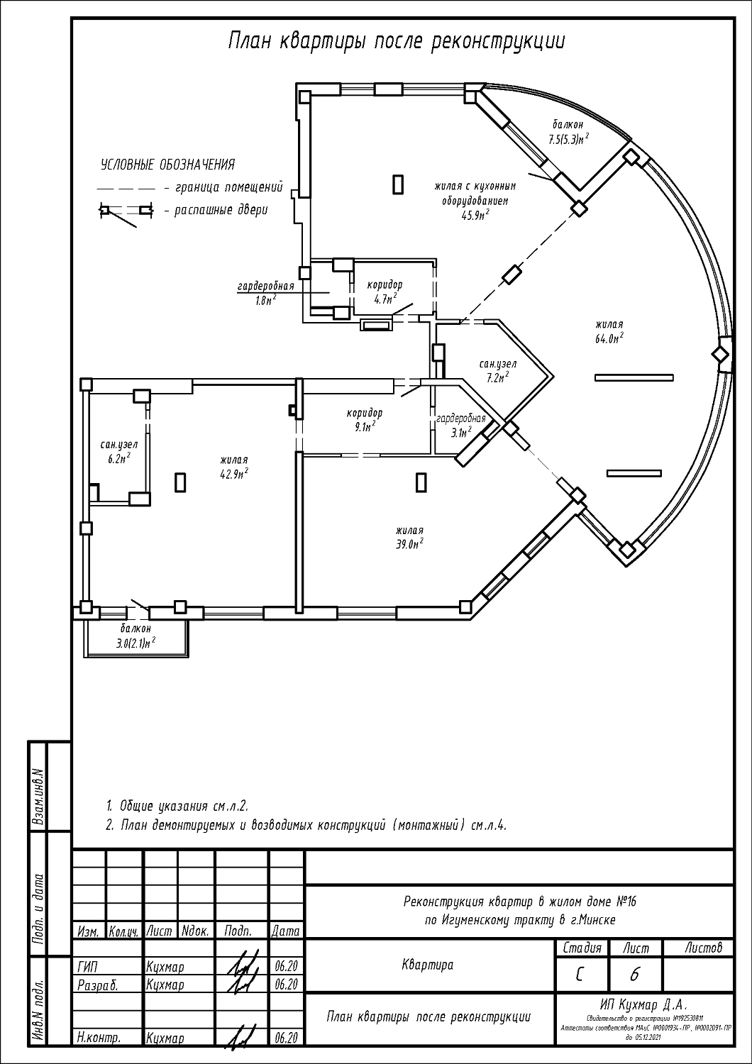
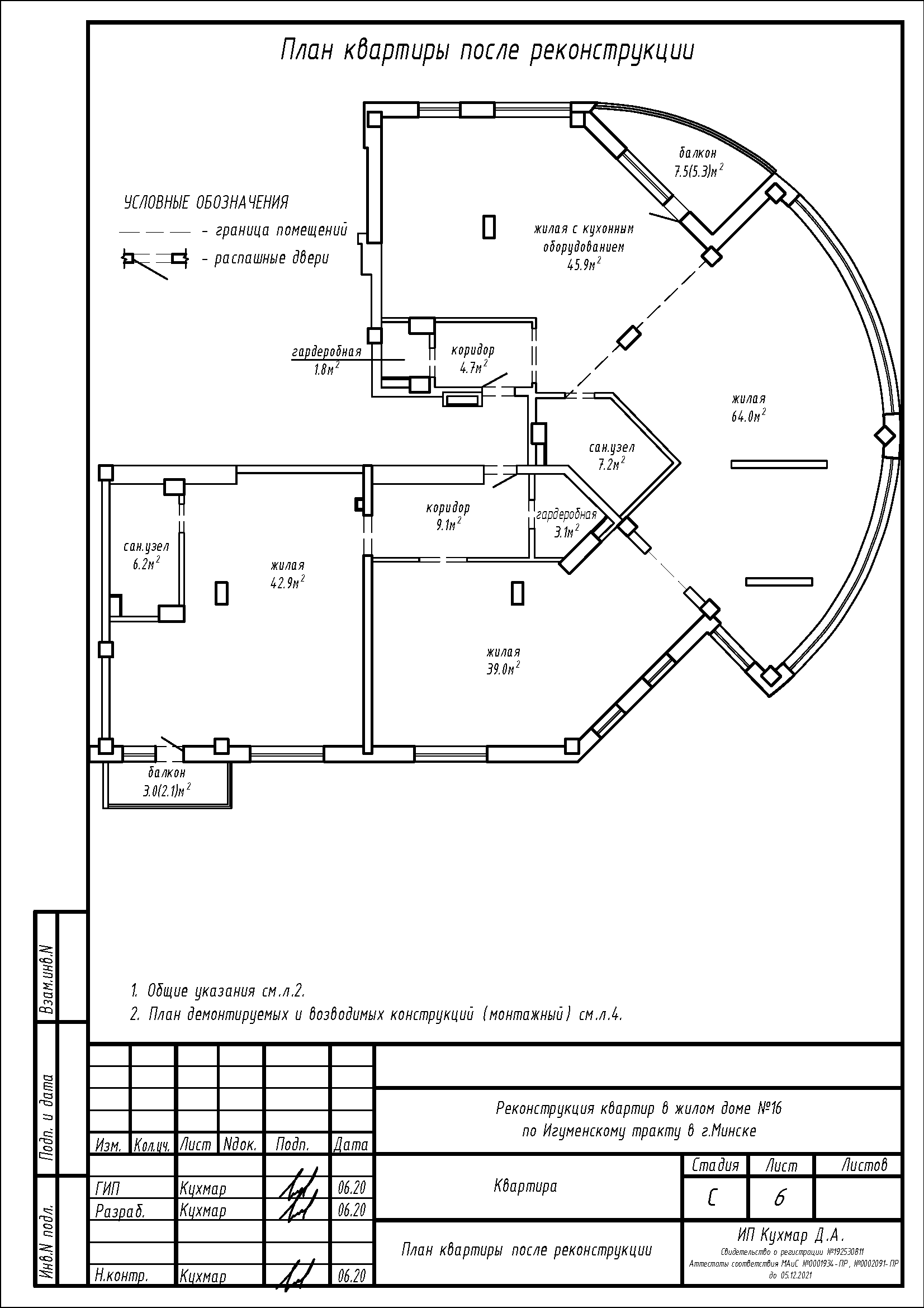
- Устройство дверного проема в перегородке между жилой с кухонным оборудованием одной из квартир и жилой комнатой другой квартиры с целью объединения двух квартир в одну;
- Устройство гардероба на площади существующего туалета одной из квартир;
- Устройство совмещенного санузла на площади существующей ванной одной из квартир;
- Устройство перегородок на площади жилой комнаты 64,8 м2 одной из квартир;
- Устройство гардероба на площади существующего туалета одной из квартир;
- Устройство совмещенного сан.узла на площади существующей ванной одной из квартир;
- Устройство жилой комнаты на площади существующей жилой с кухонным оборудованием одной из квартир.
Нами были разработаны следующие разделы проектной документации для согласования в исполкоме:
- АС - архитектурно-строительные решения;
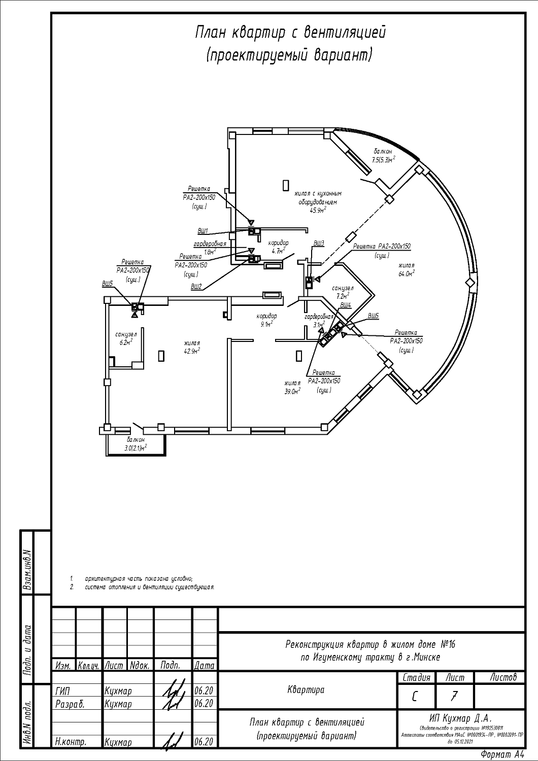
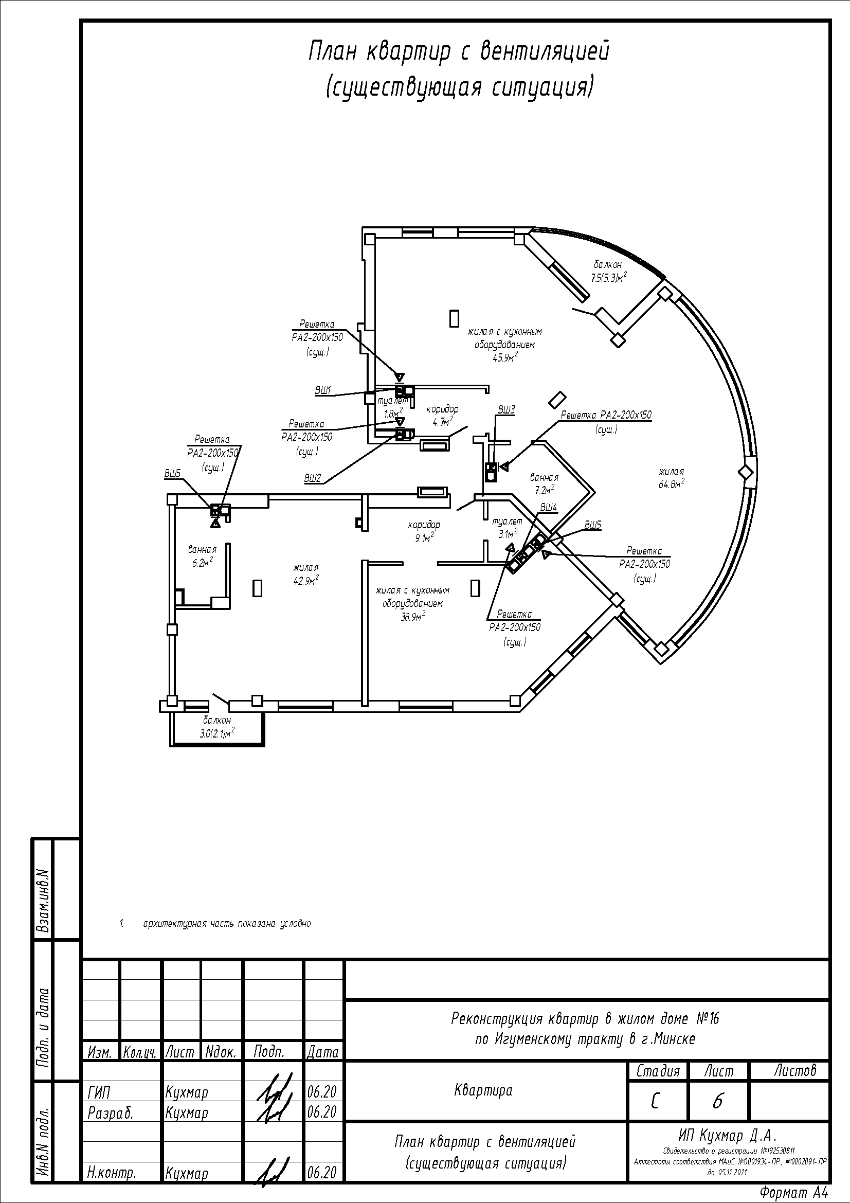
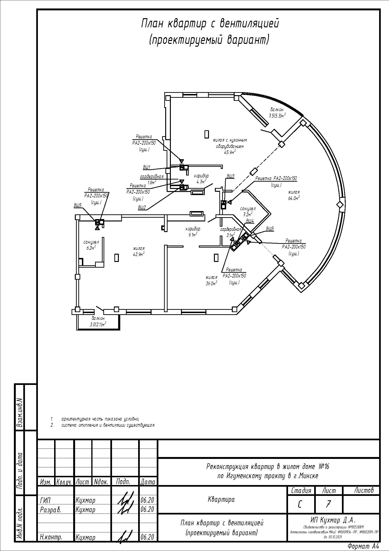
- ОВ - отопление и вентиляция;
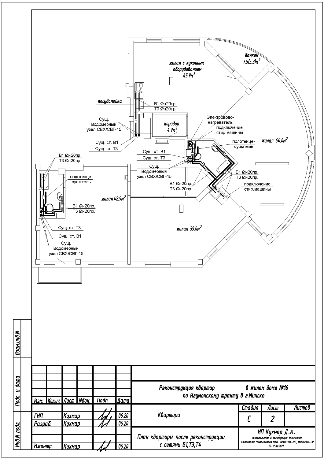
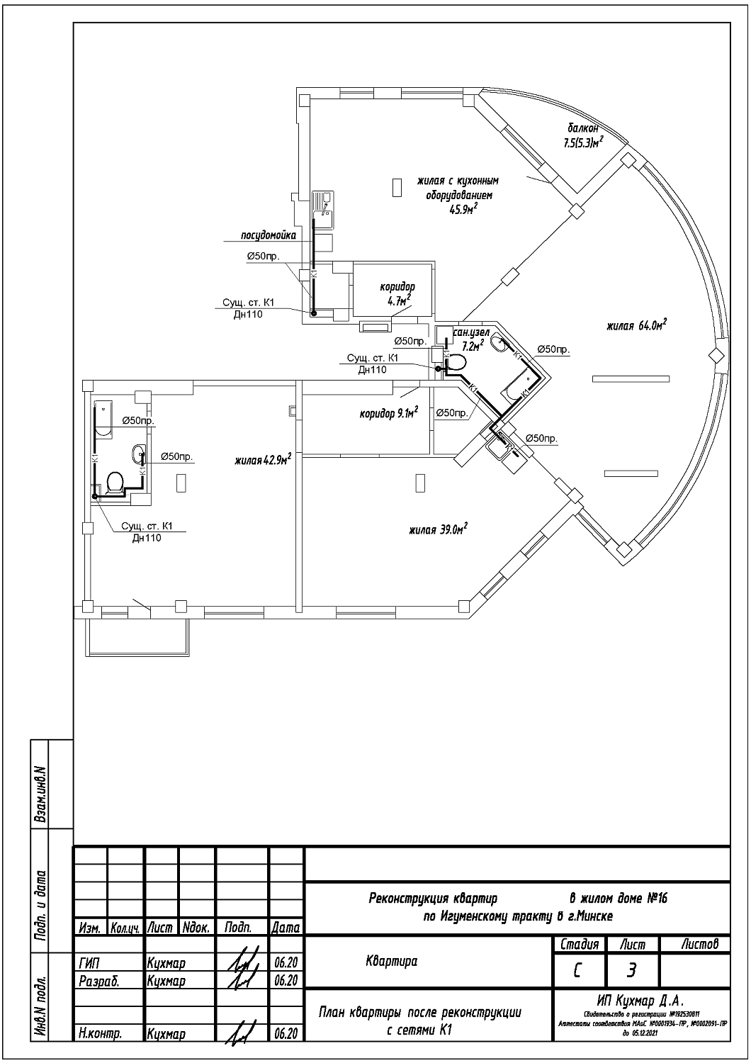
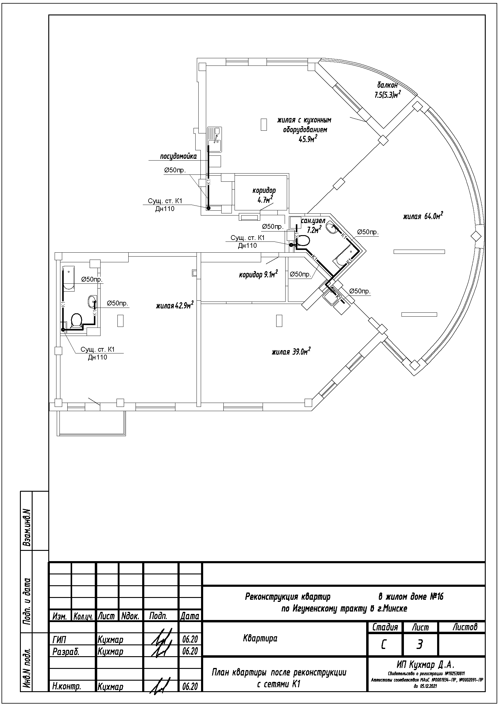
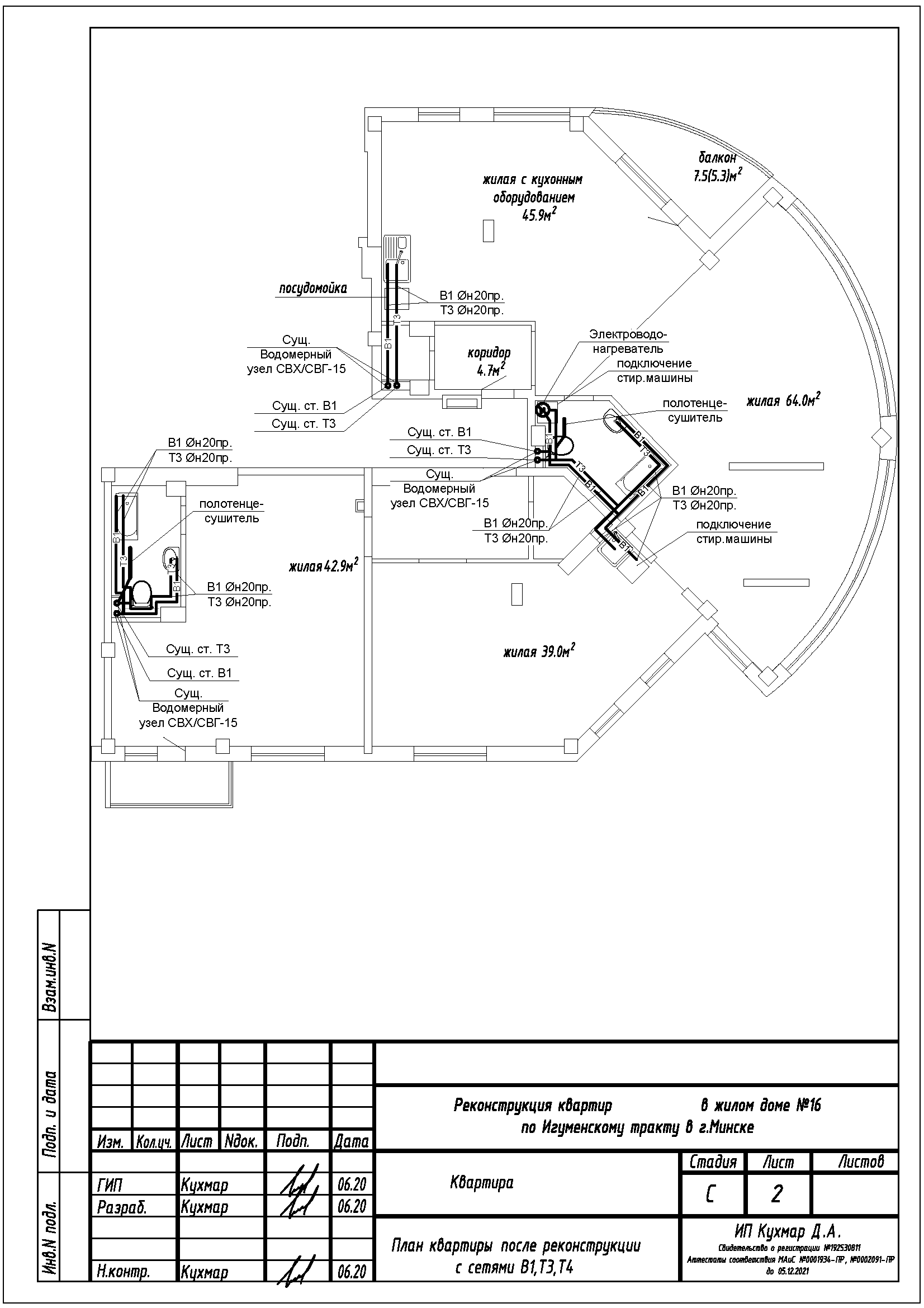
- ВК - водоснабжение и канализация.
