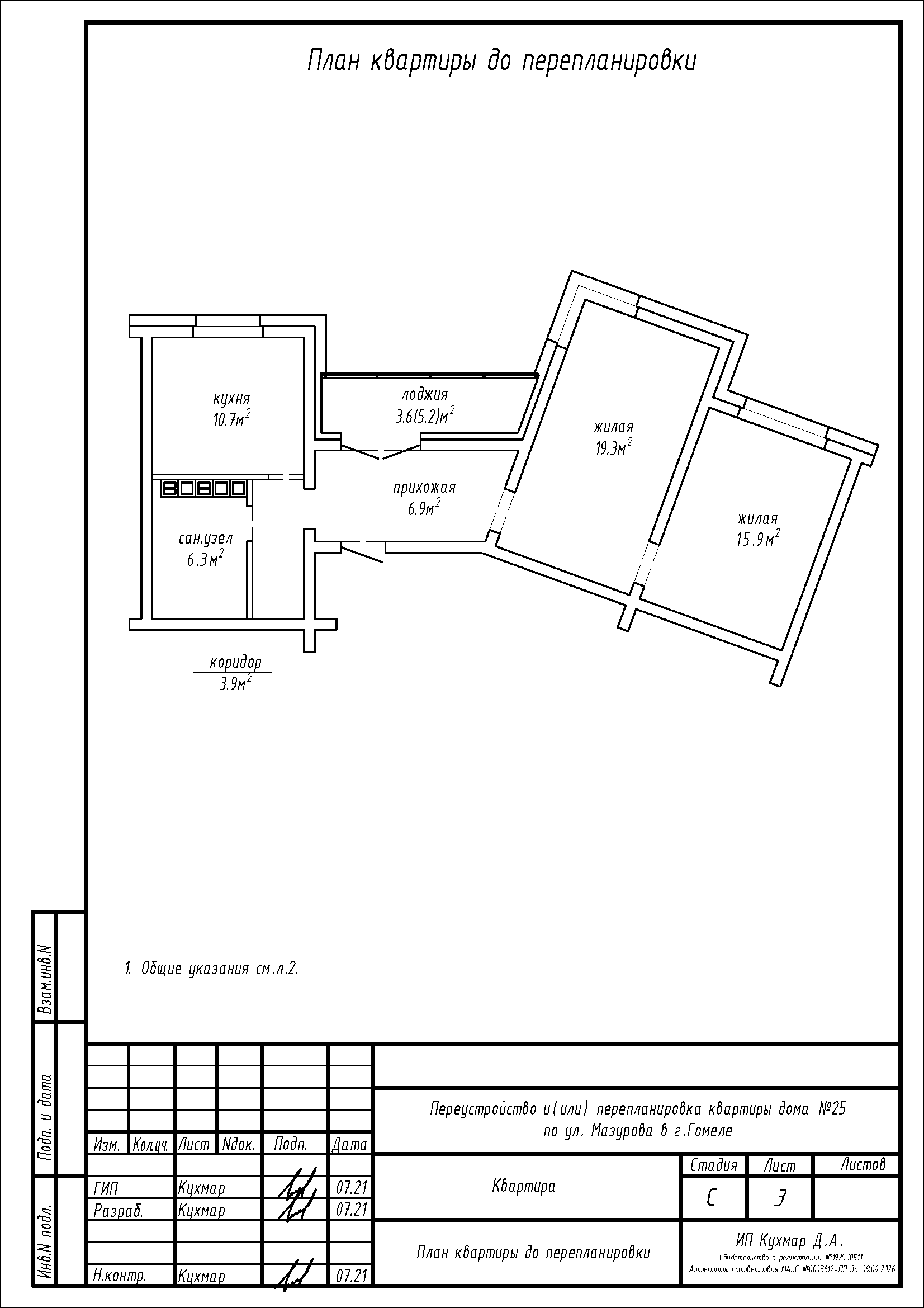
Реконструкция квартиры по Мазурова, 25 в г. Гомеле
Пожелания заказчика:
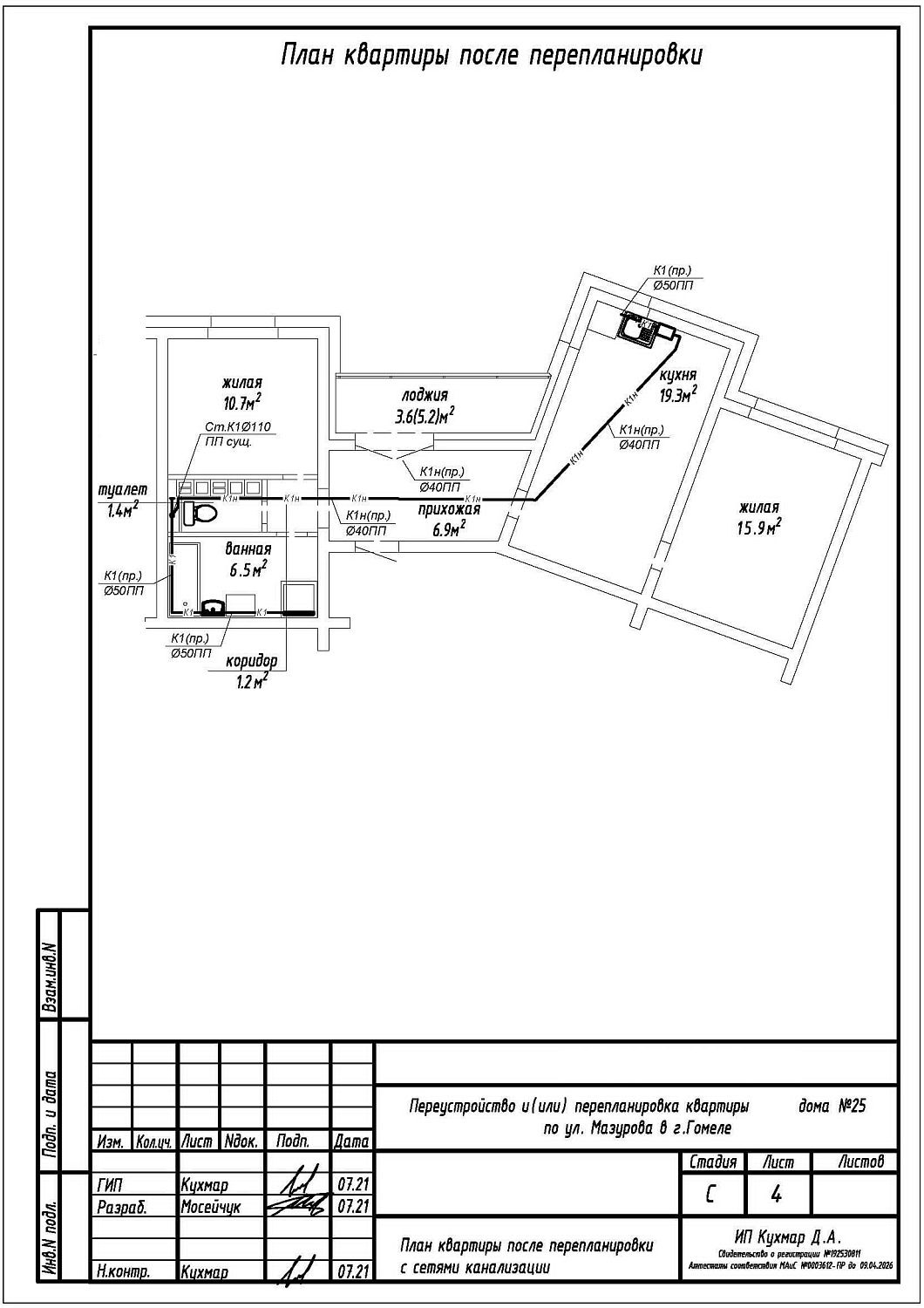
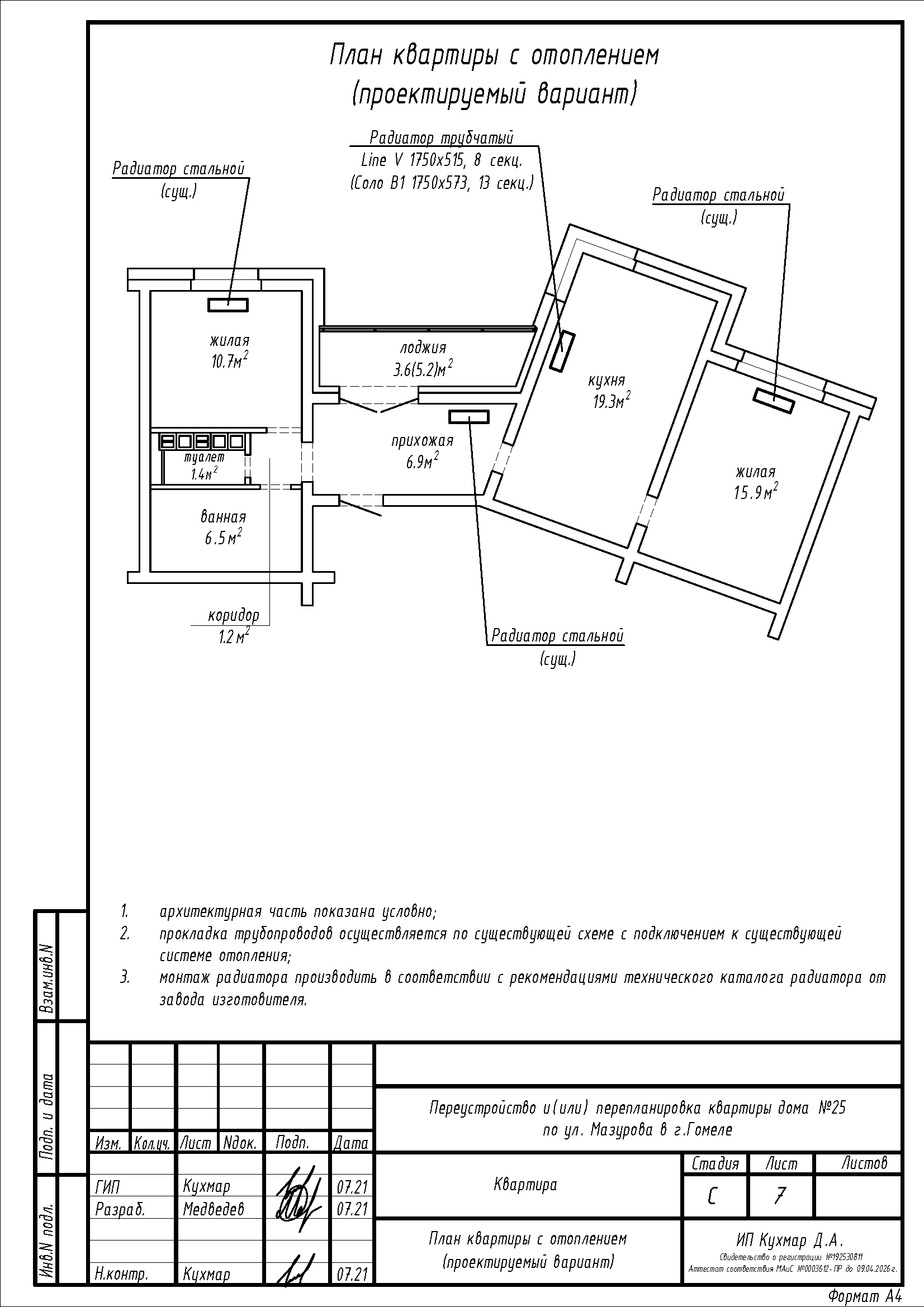
- Смещение проема в несущей стене между комнатами (пл .19.3 м 2 и пл .15. 9 м 2);
- Вместо комнаты устройство кухни;
- Устройство комнаты вместо кухни;
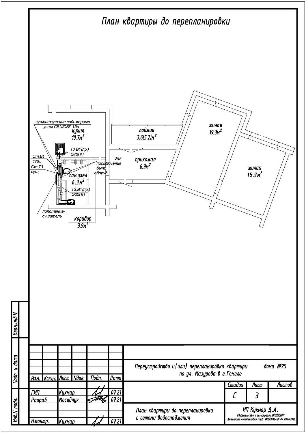
- В совмещенном сан .узле устройство перегородки, разделяющей его на сан.узел и ванную с увеличением площади ванной комнаты за счет части площади коридора.
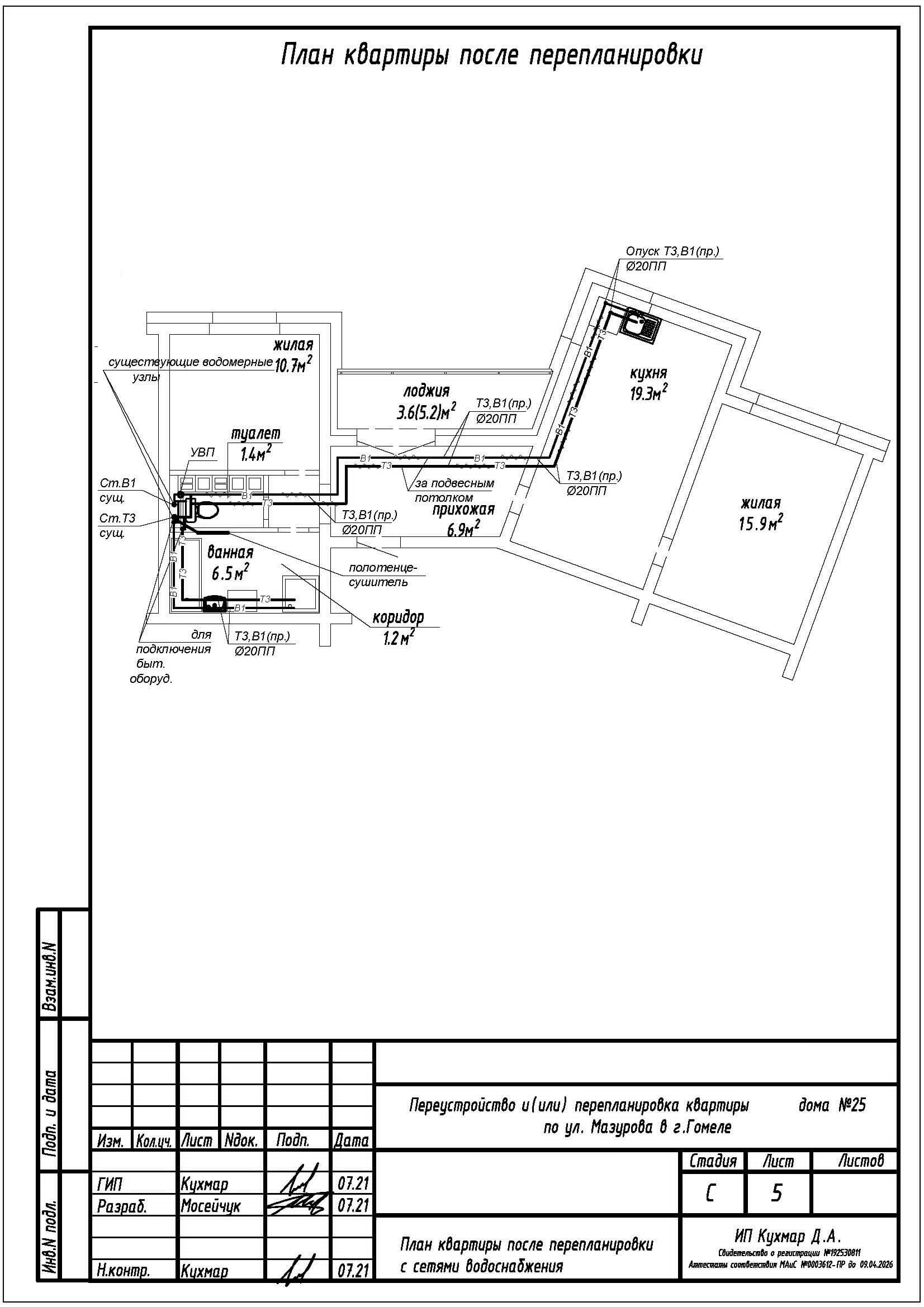
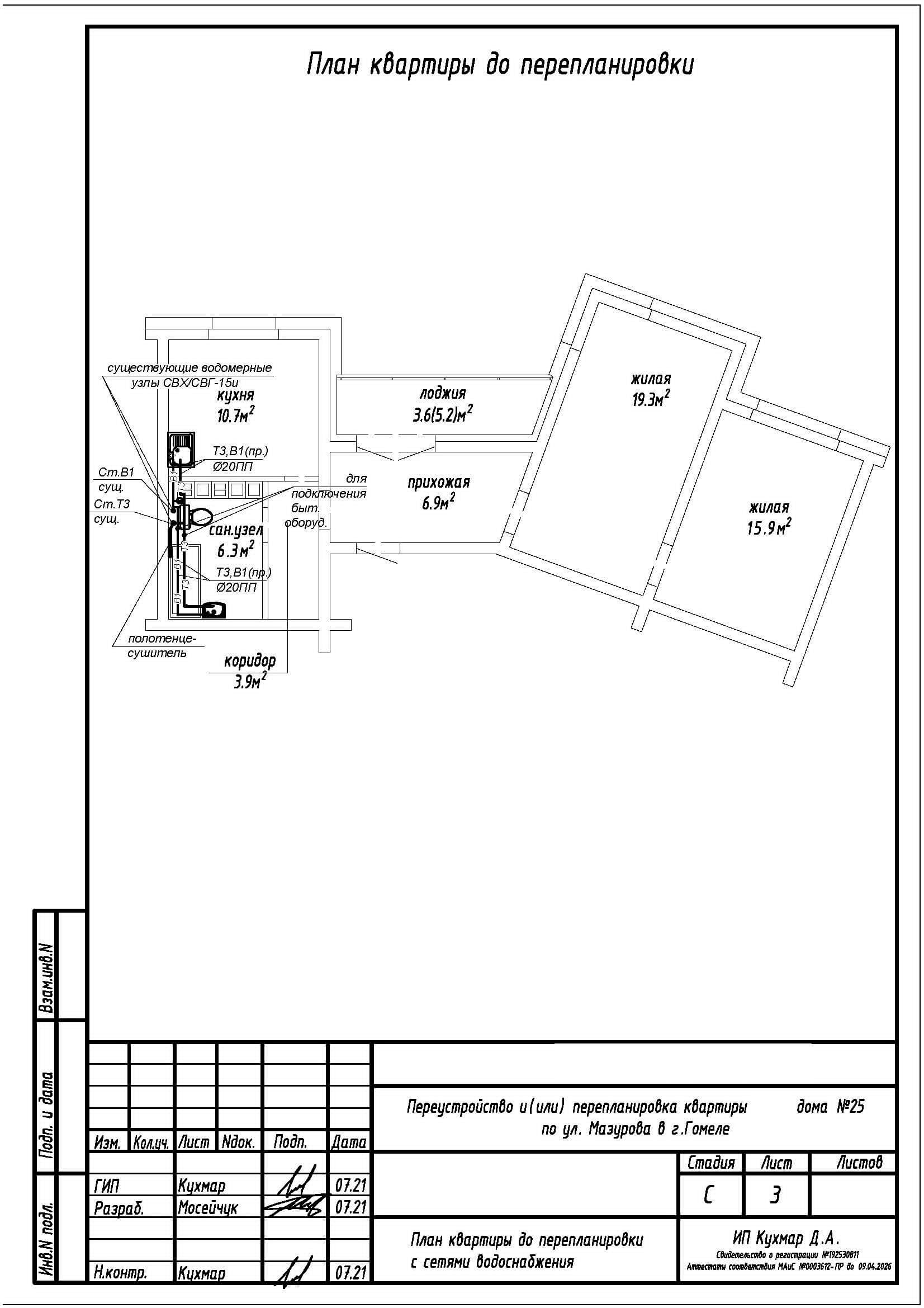
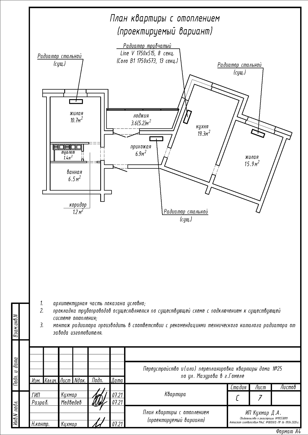
Нами были разработаны следующие разделы проектной документации для согласования в исполкоме:
- АС - архитектурно-строительные решения;
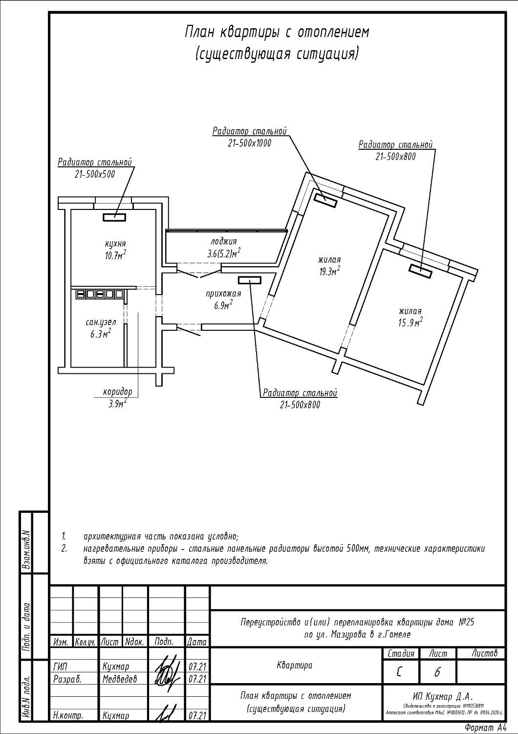
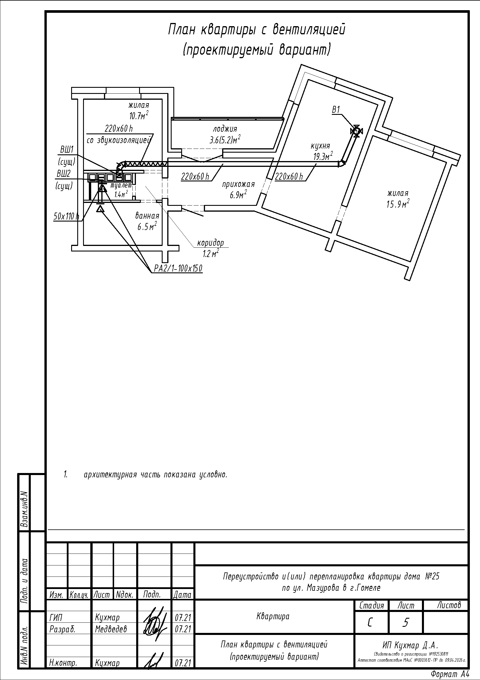
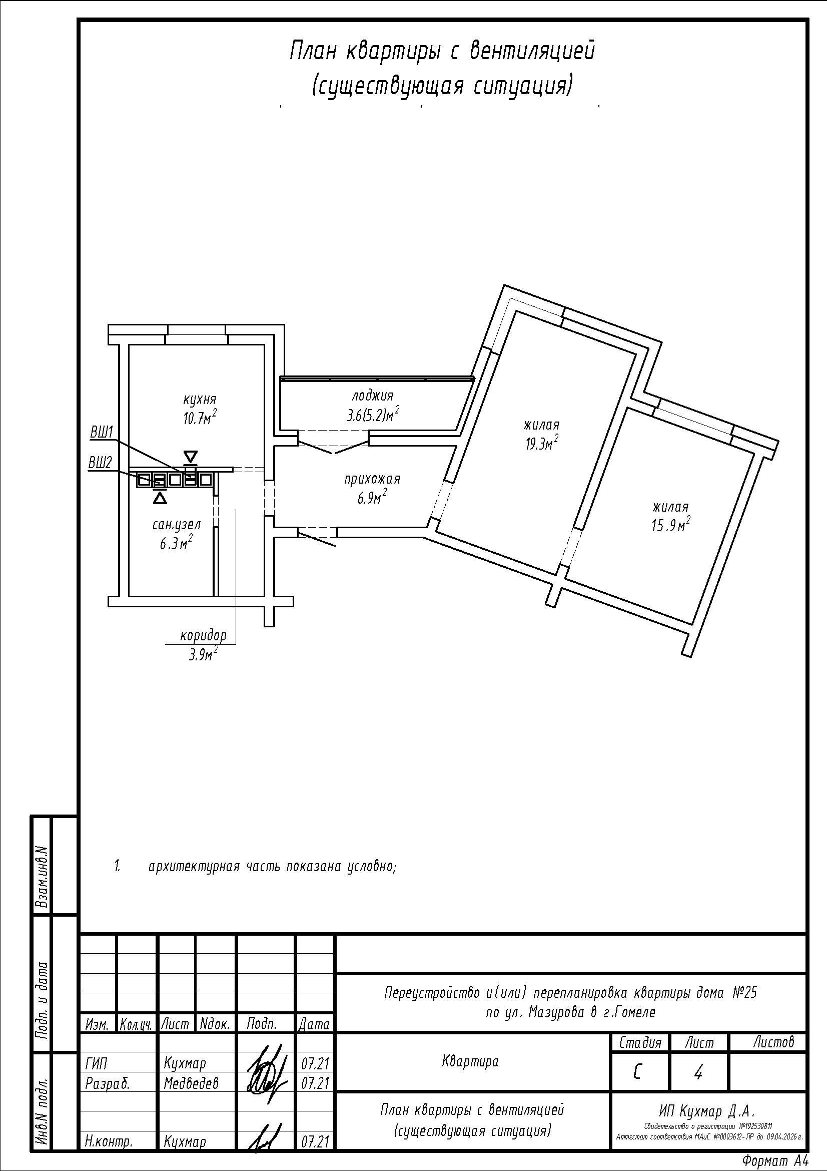
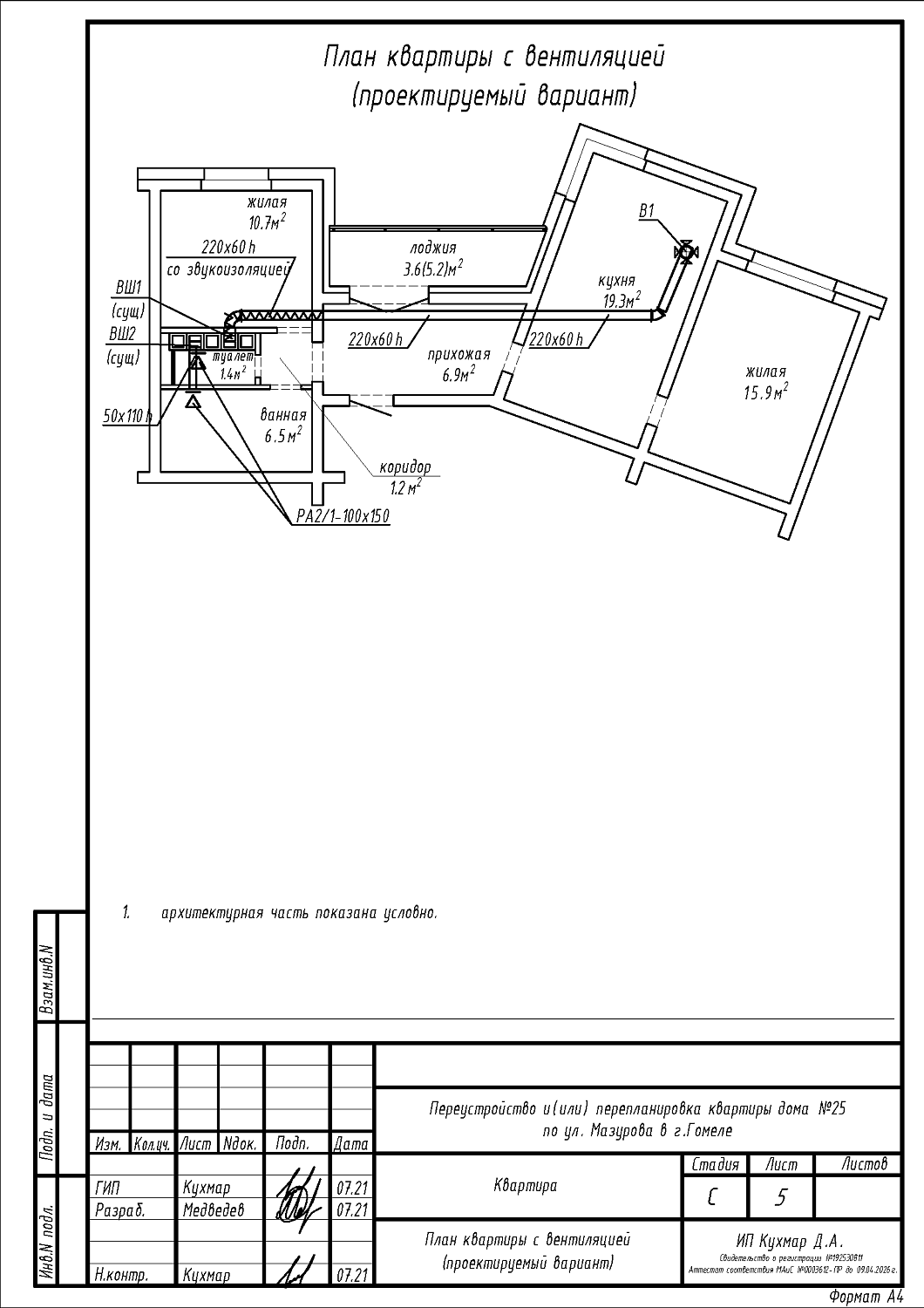
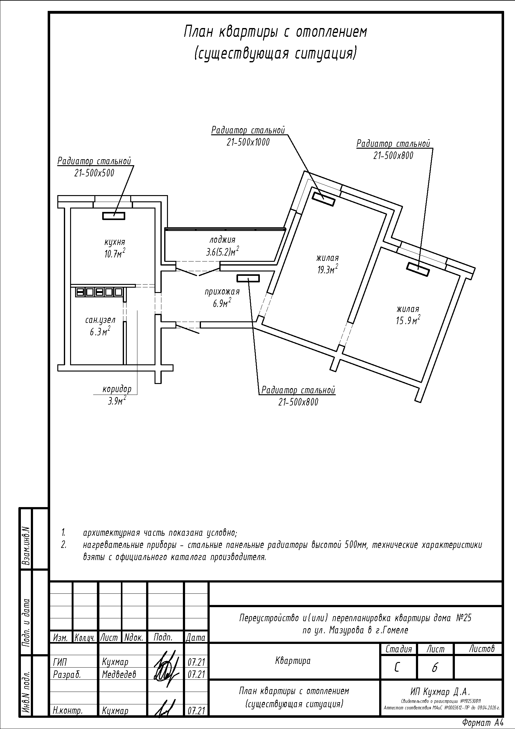
- ОВ - отопление и вентиляция;
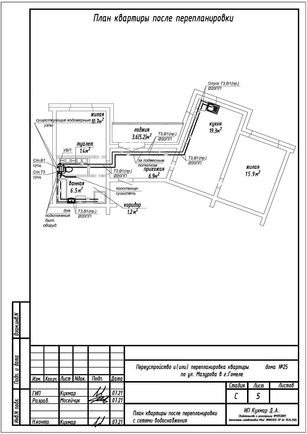
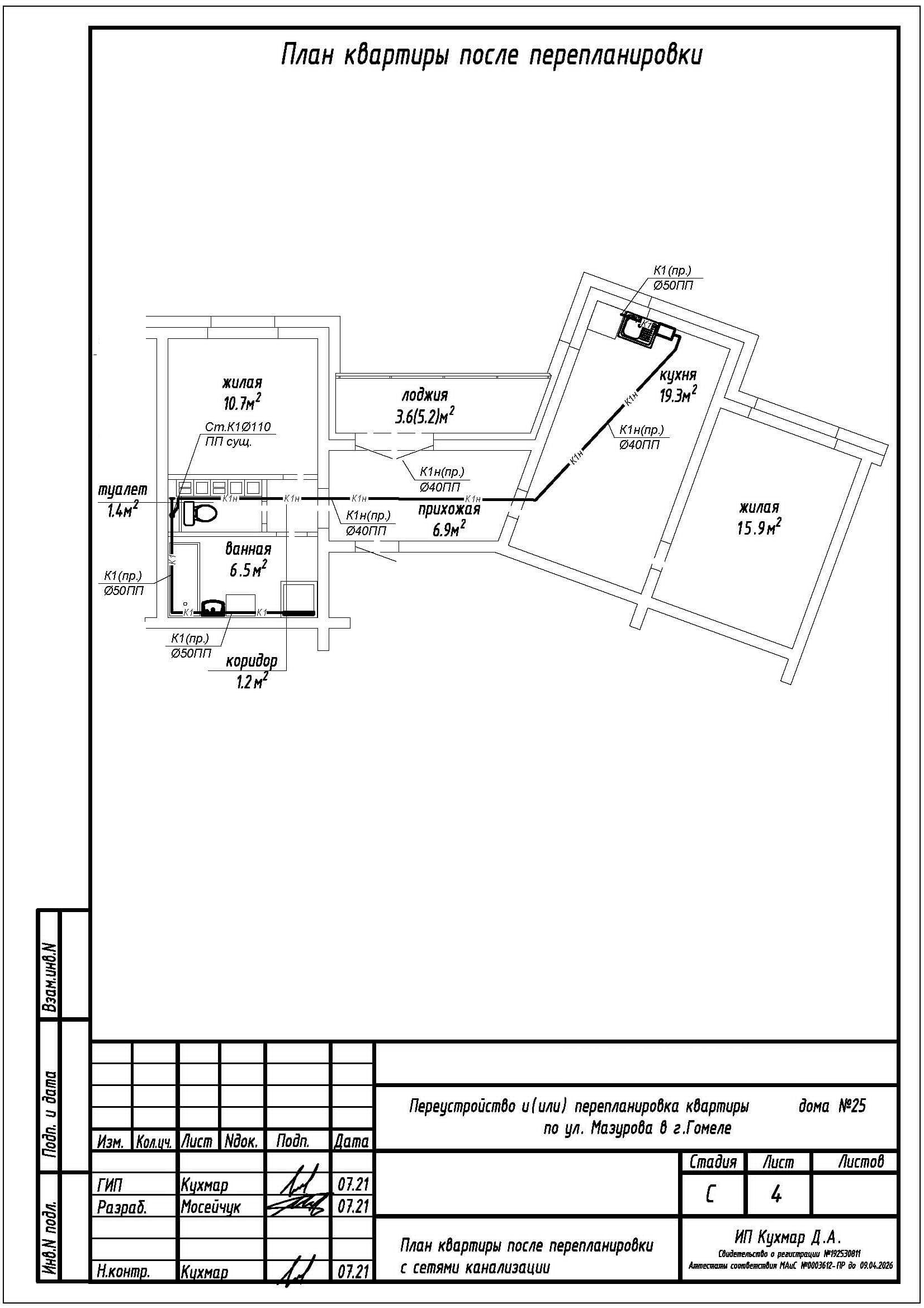
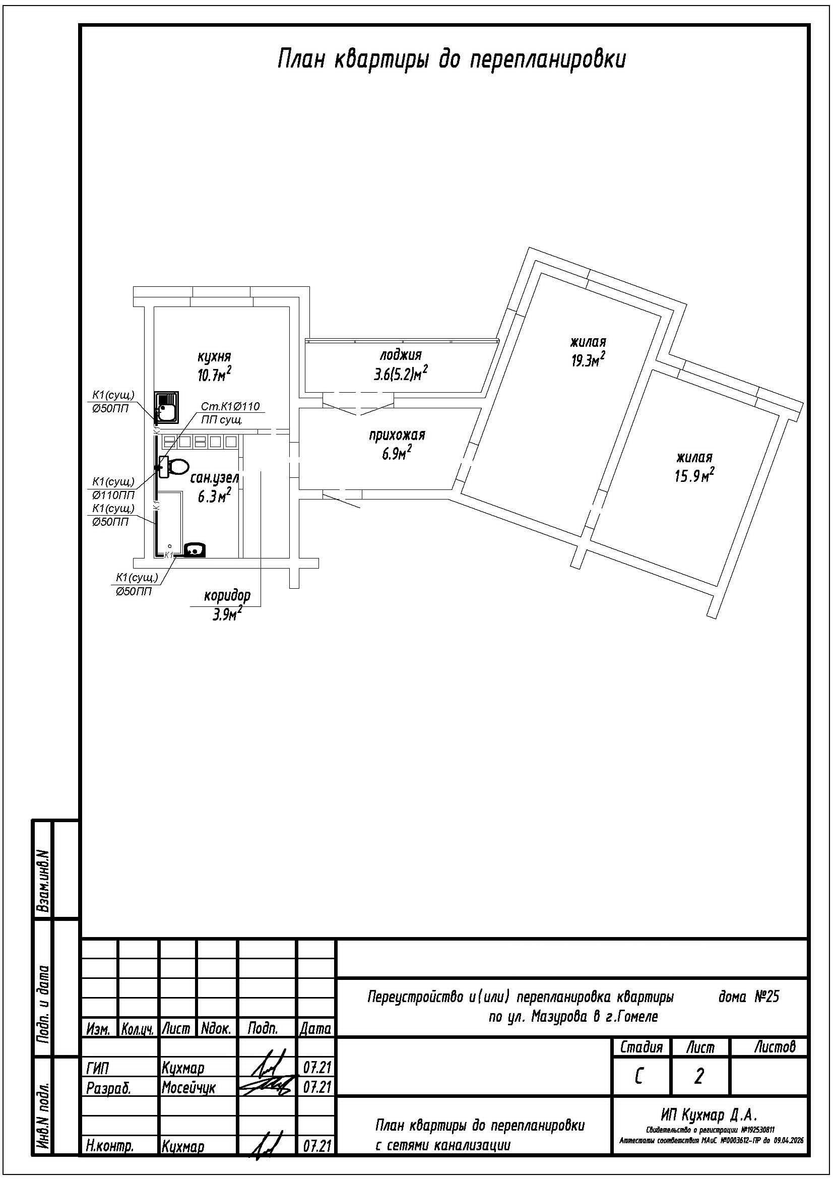
- ВК - вентиляция и канализация.
