Реконструкция квартиры по ул. Авиационная, 16 в ЖК «Новая Боровая»
Пожелания заказчика:
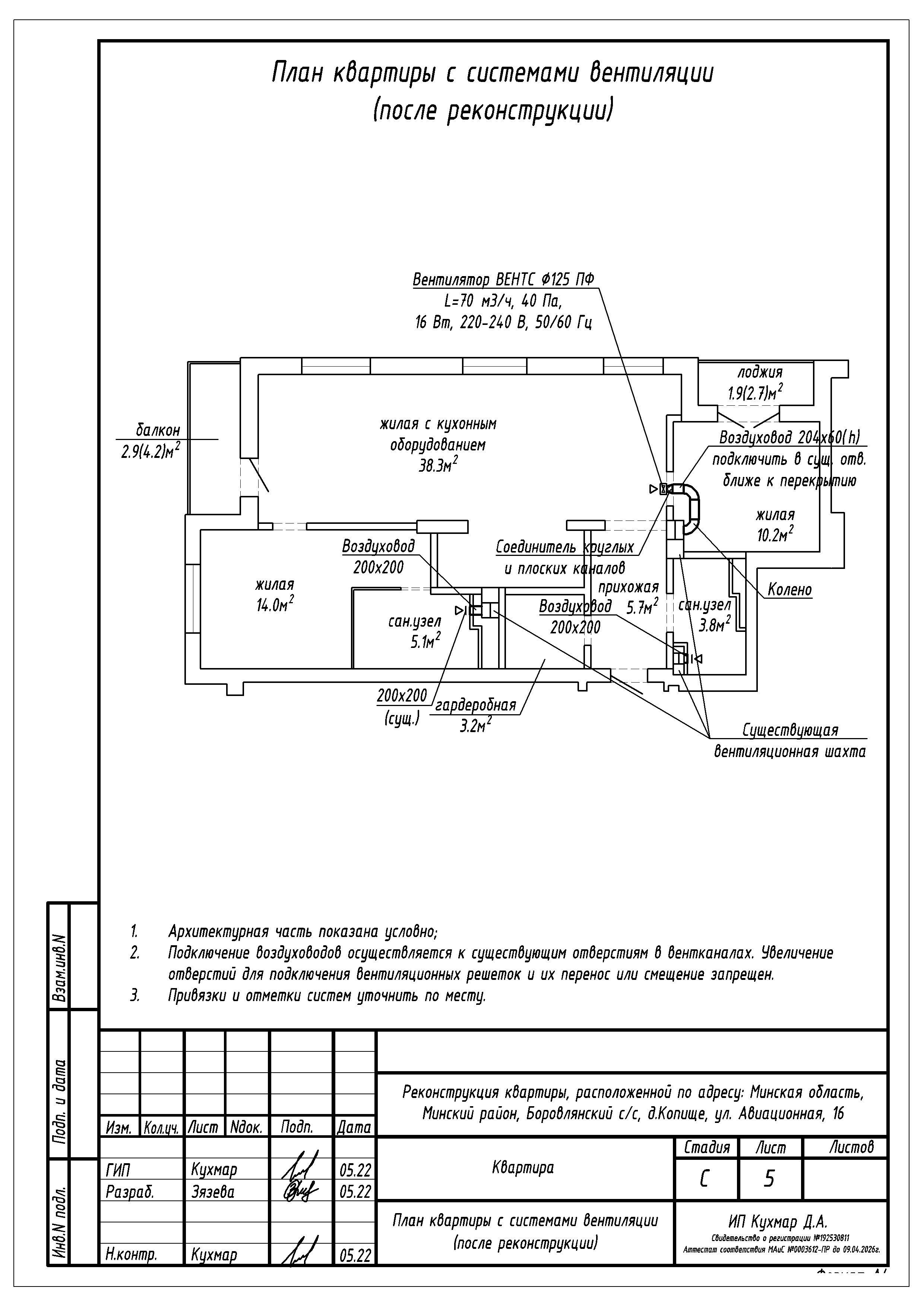
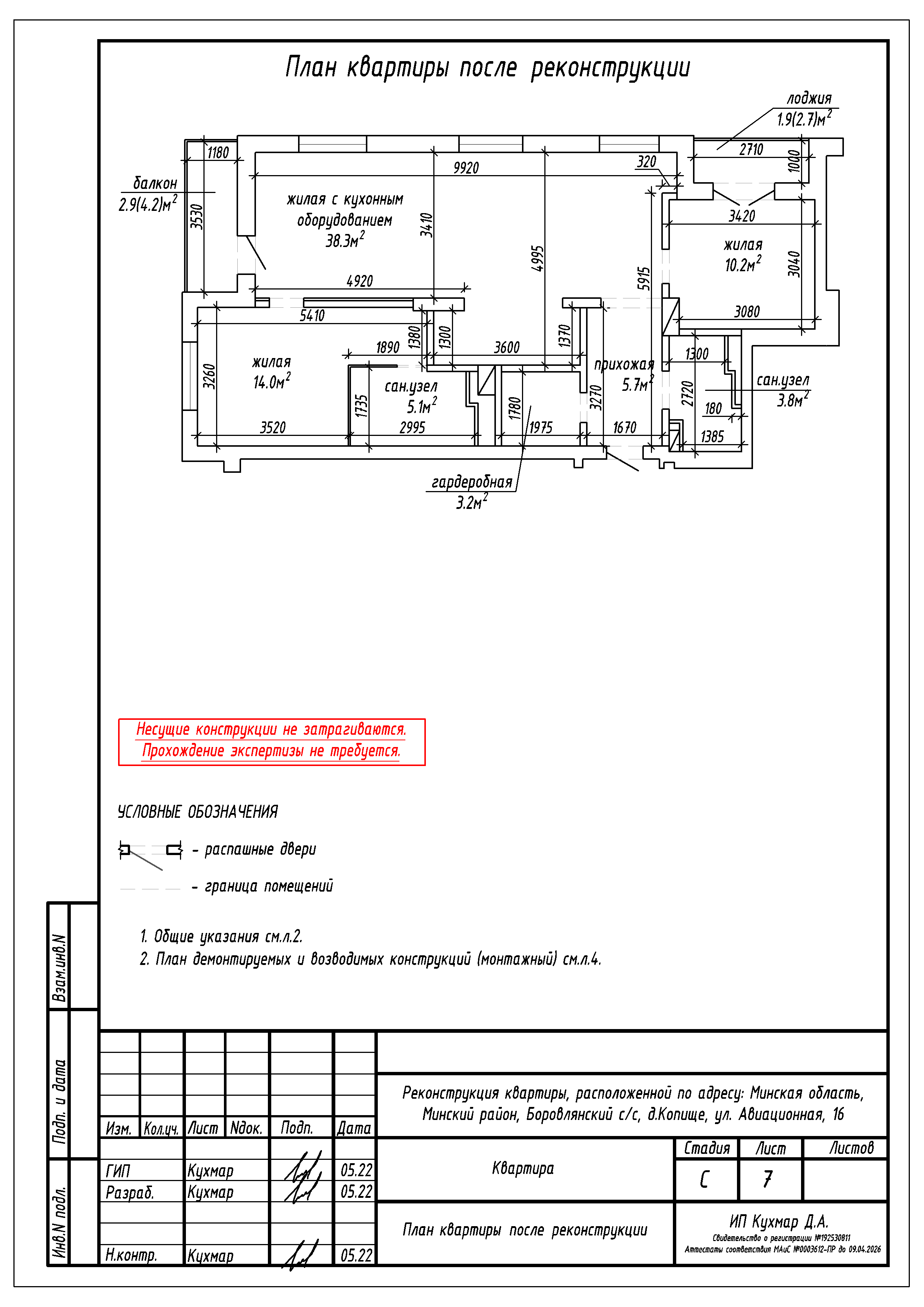
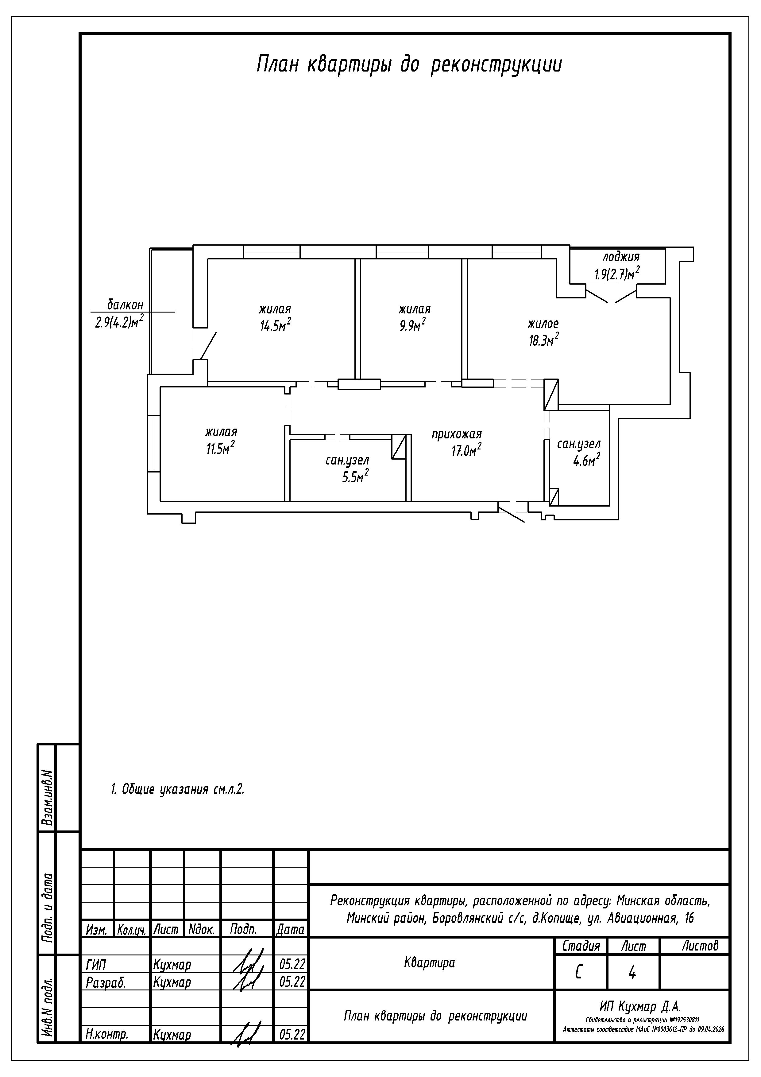
- Демонтаж перегородок между жилыми, в том числе перегородок с дверными проёмами с целью устройства жилой с кухонным оборудованием;
- Устройство гардеробной на площади прихожей;
- Устройство двух жилых;
- Демонтаж перегородок, в том числе с дверным проёмом, межу жилой и прихожей, санузлом и прихожей, с последующей установкой стеклянной перегородки между жилой и санузлом, прихожей и санузлом;
- Закладка дверного проёма между жилой и части прихожей с последующим демонтажем существующей перегородки между жилой и жилой (установка дверных проёмов);
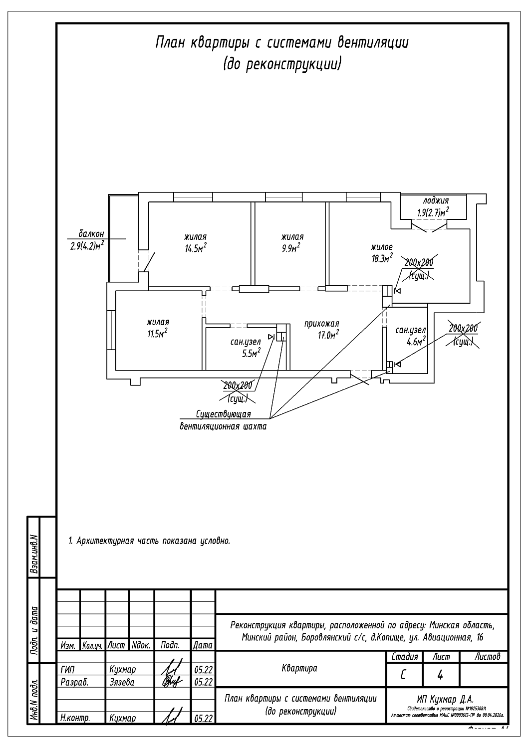
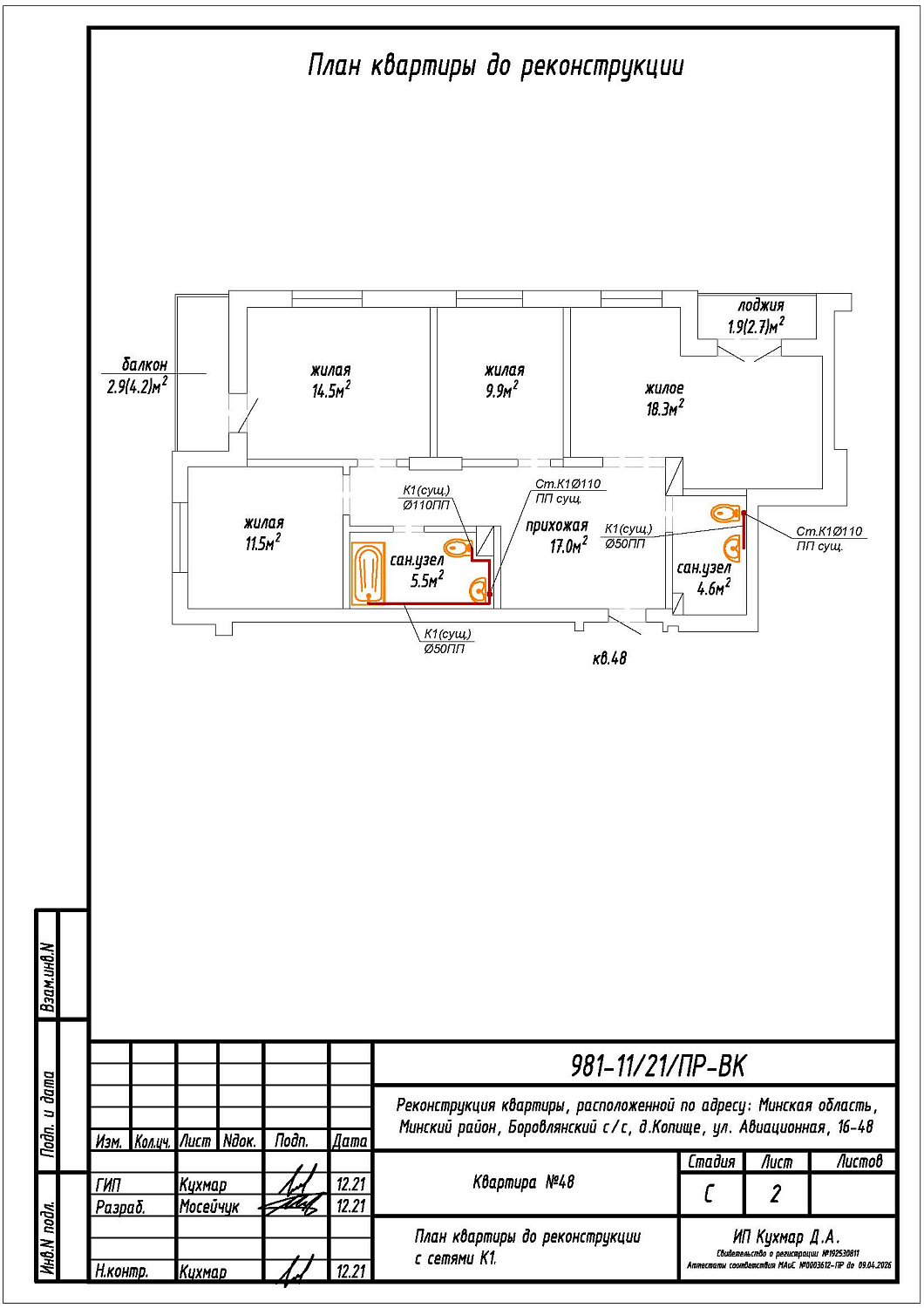
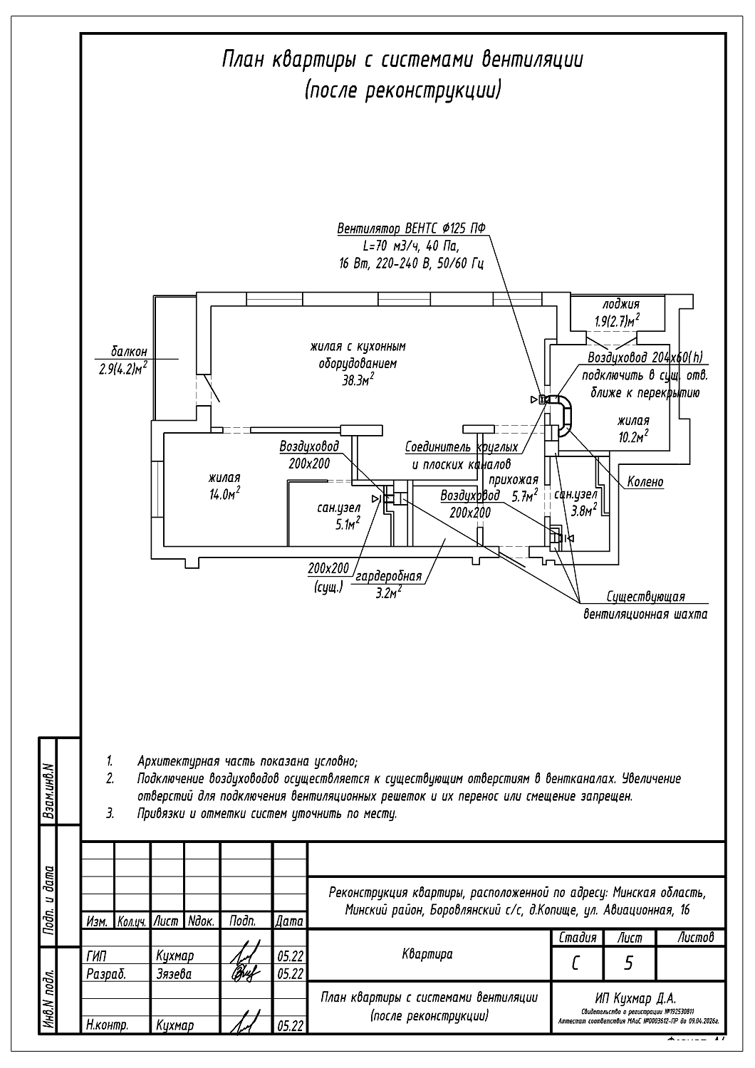
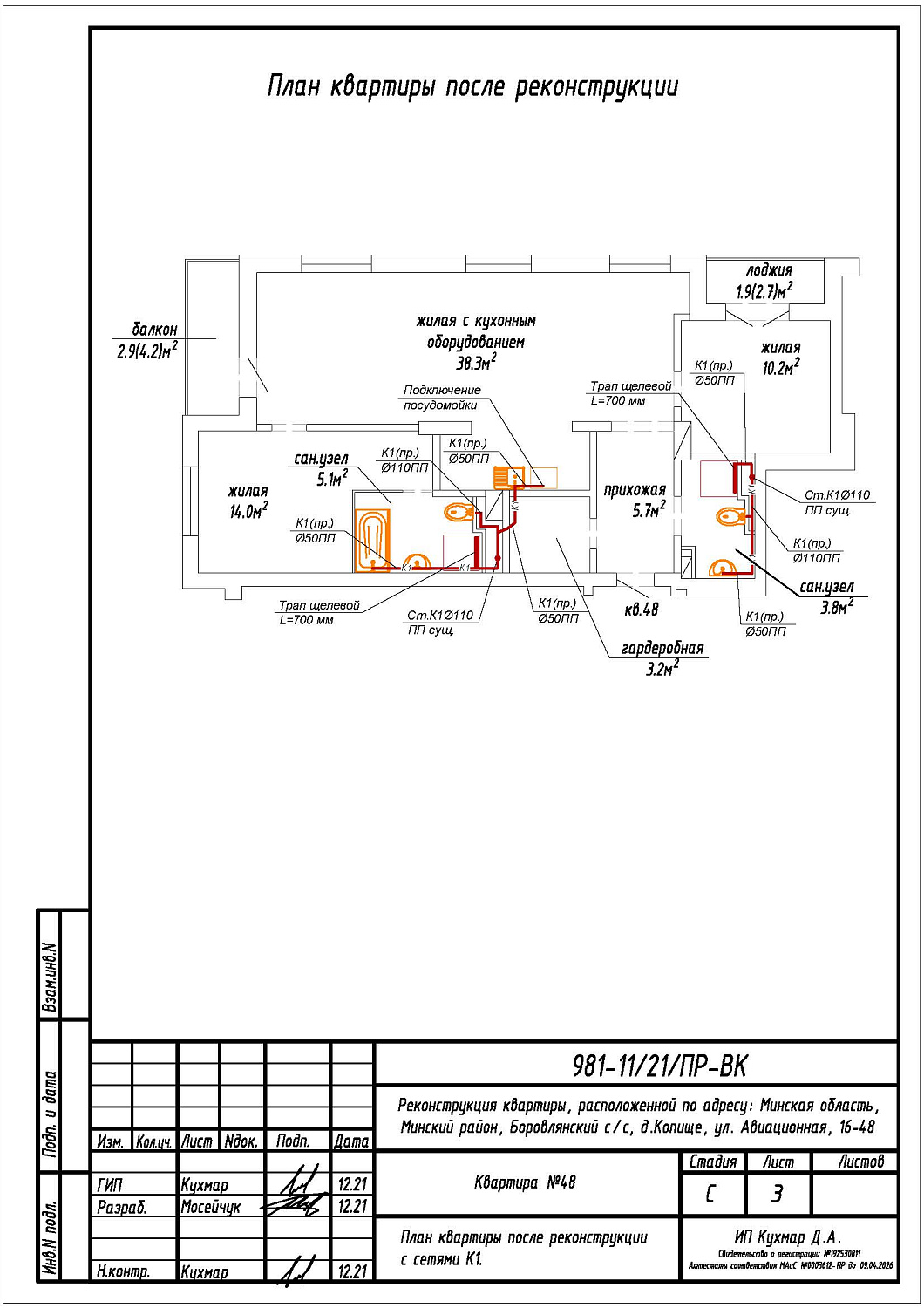
- Проектирование систем вентиляции, канализации, водоснабжения.
Нами были разработаны следующие разделы проектной документации для согласования в исполкоме:
- АС - архитектурно-строительные решения;
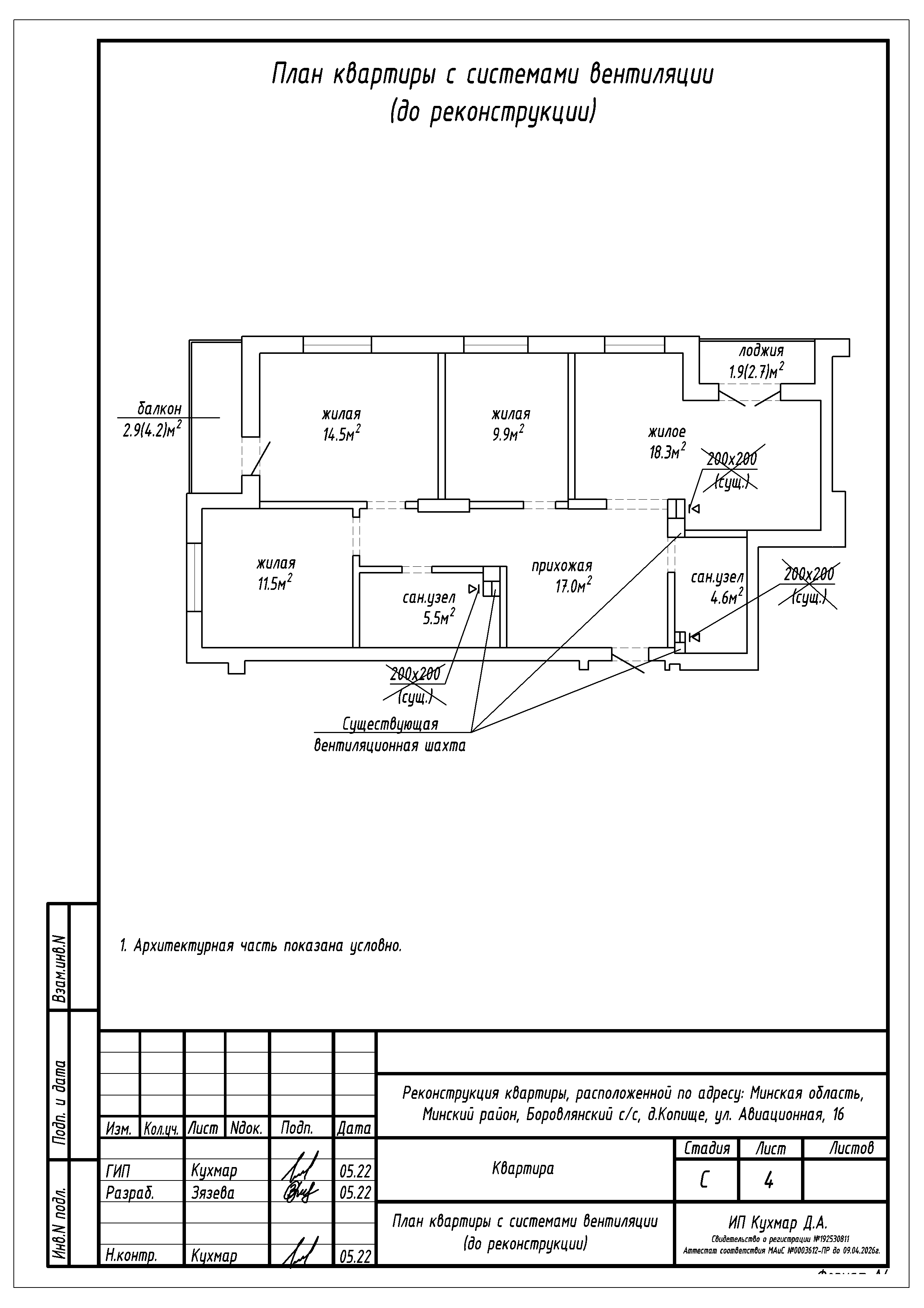
- ОВ - отопление и вентиляция;
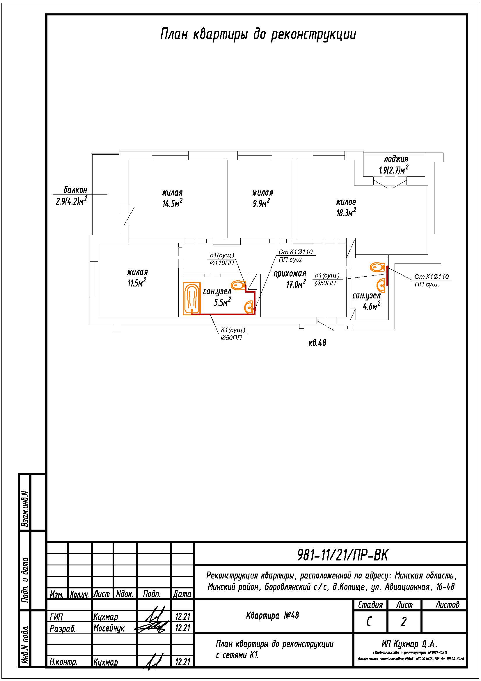
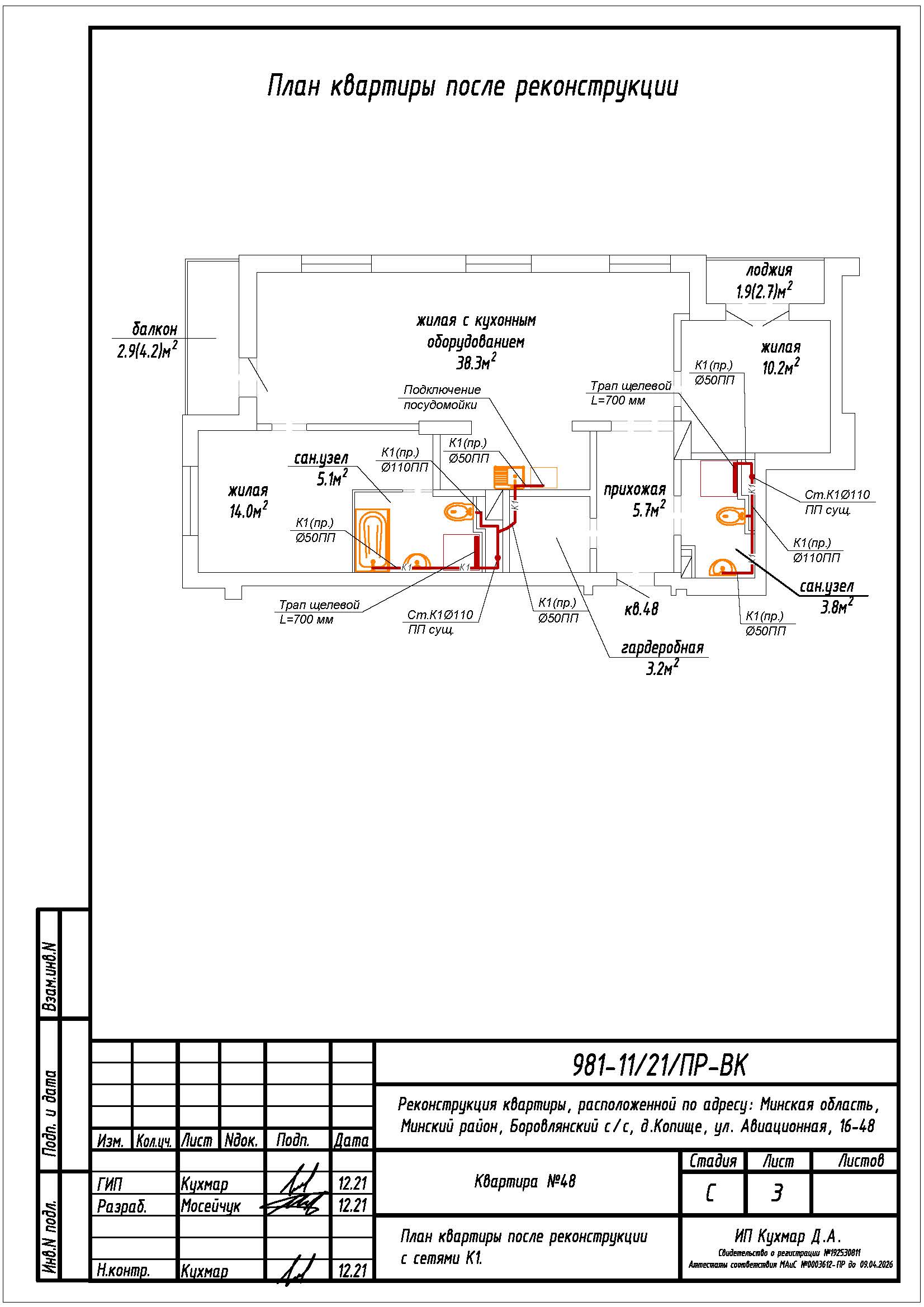
- ВК - вентиляция и канализация.
