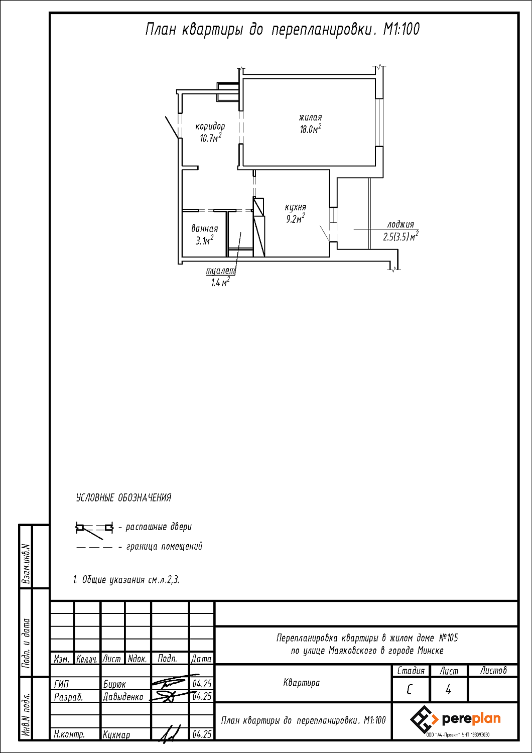
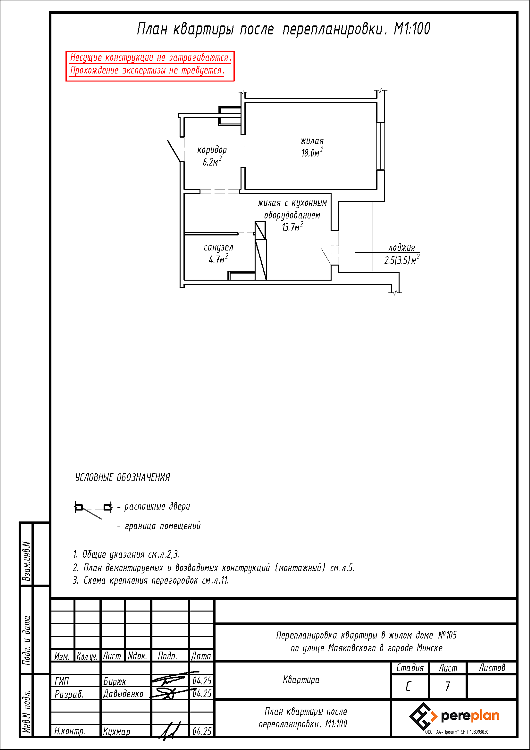
Перепланировка квартиры по ул. Маяковского, 105 в г. Минске
Пожелания заказчика:
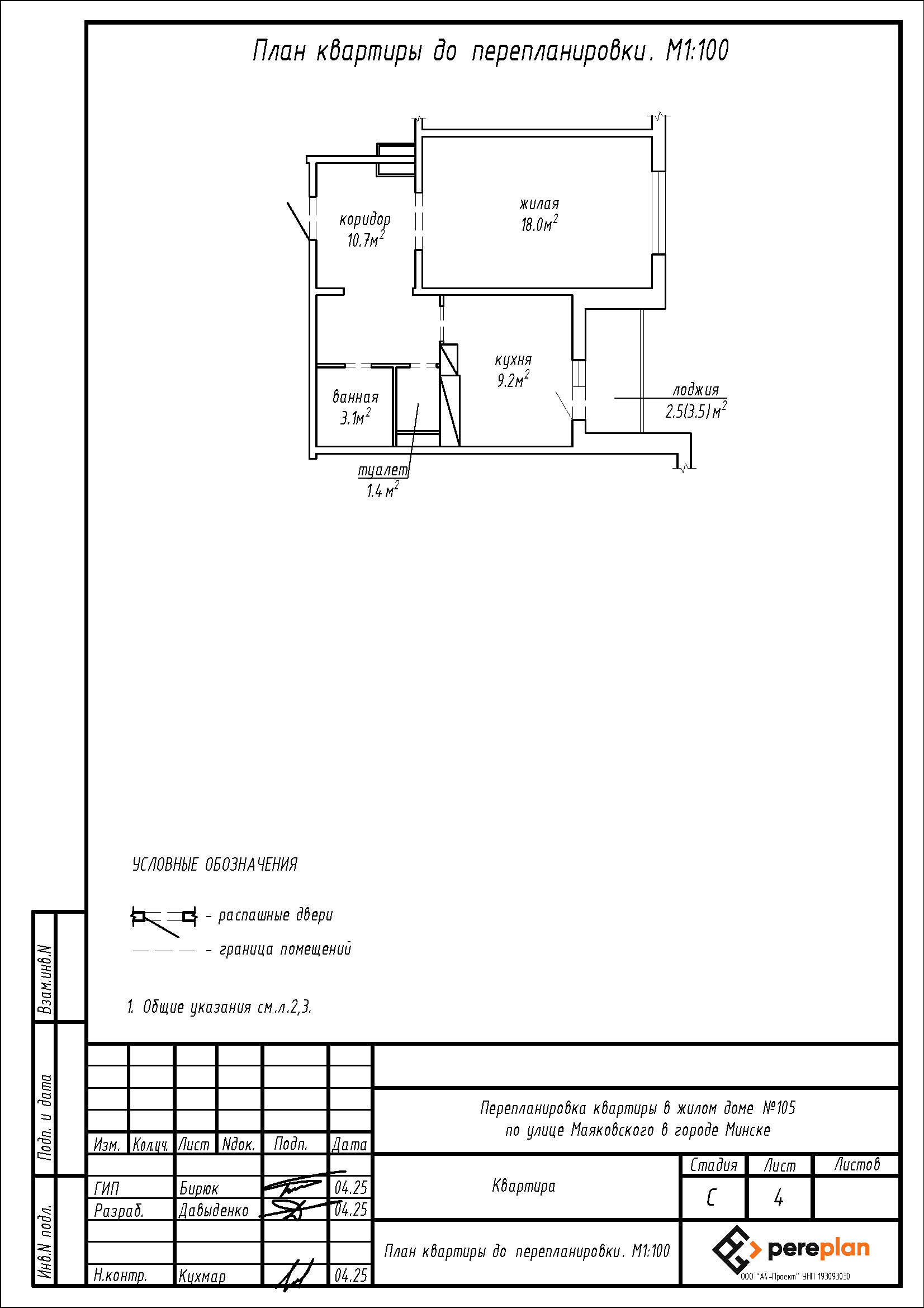
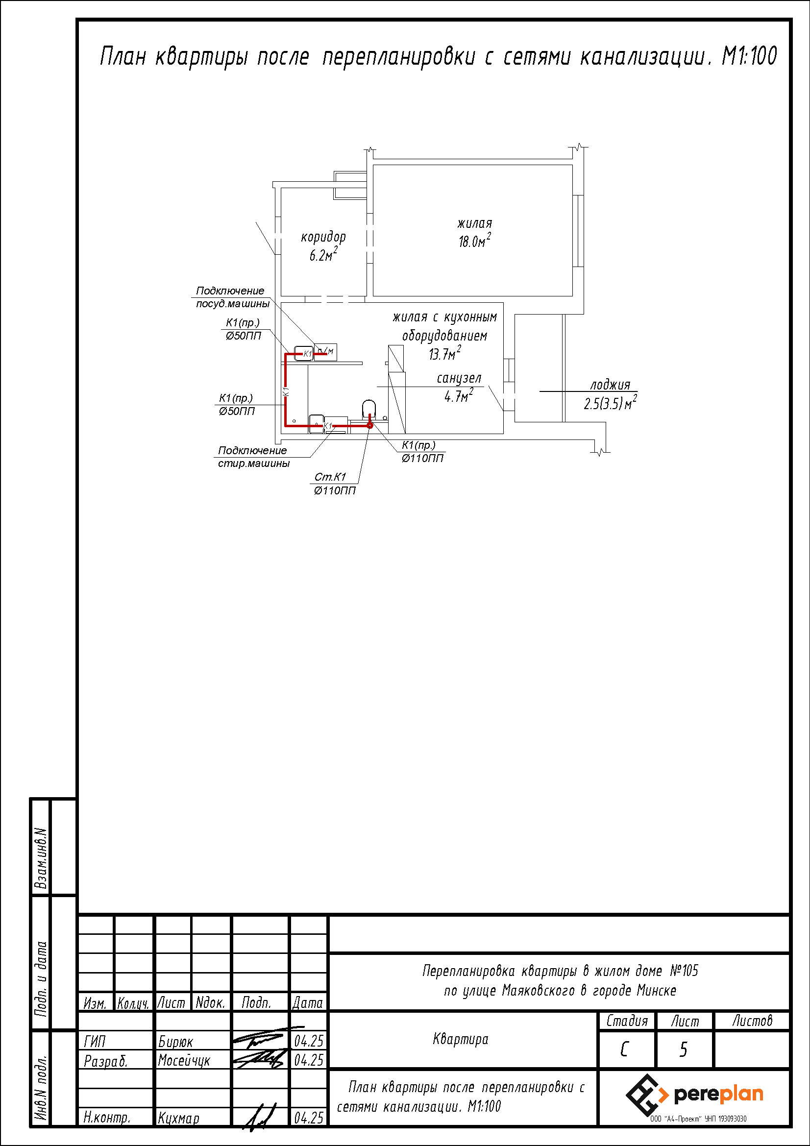
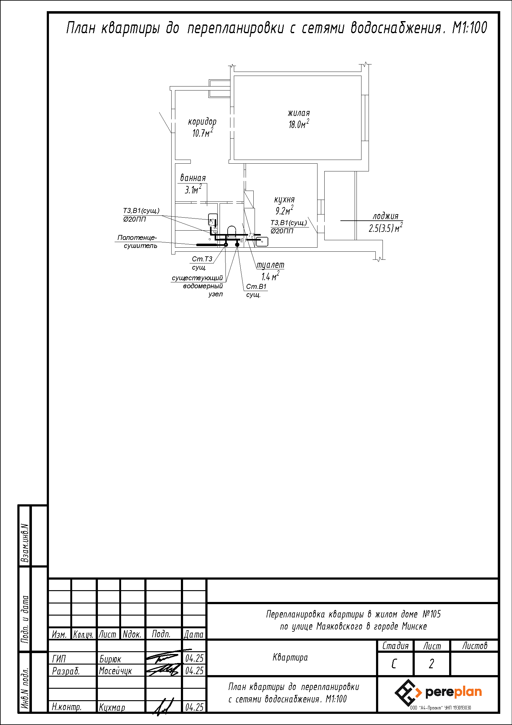
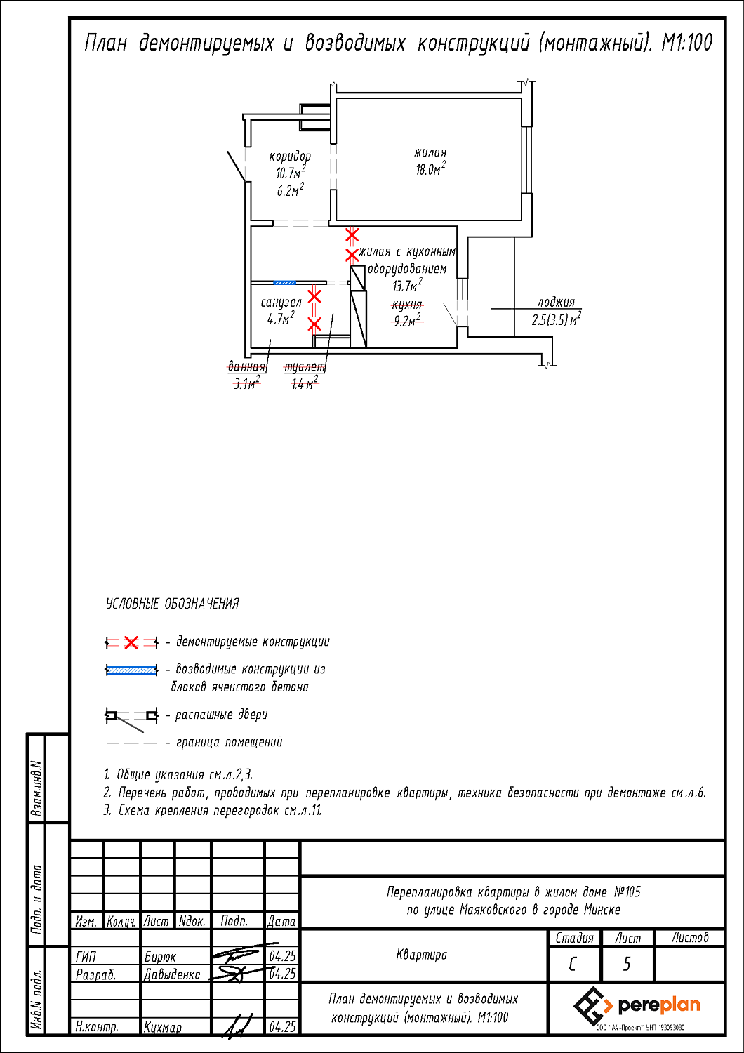
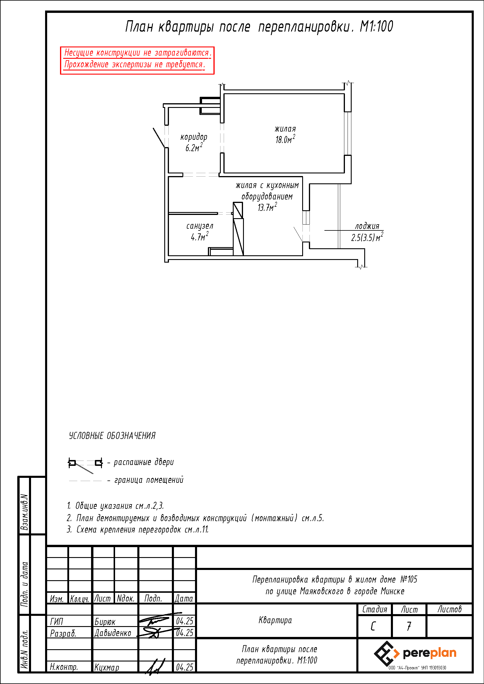
- Устройство санузла на площади ванной и площади туалета с закладкой дверного проема в ванной;
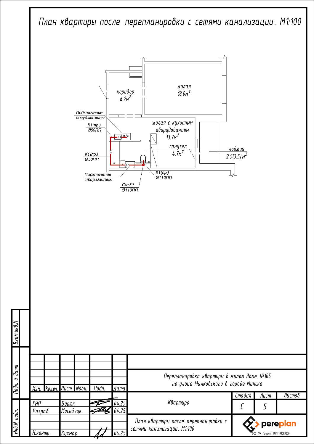
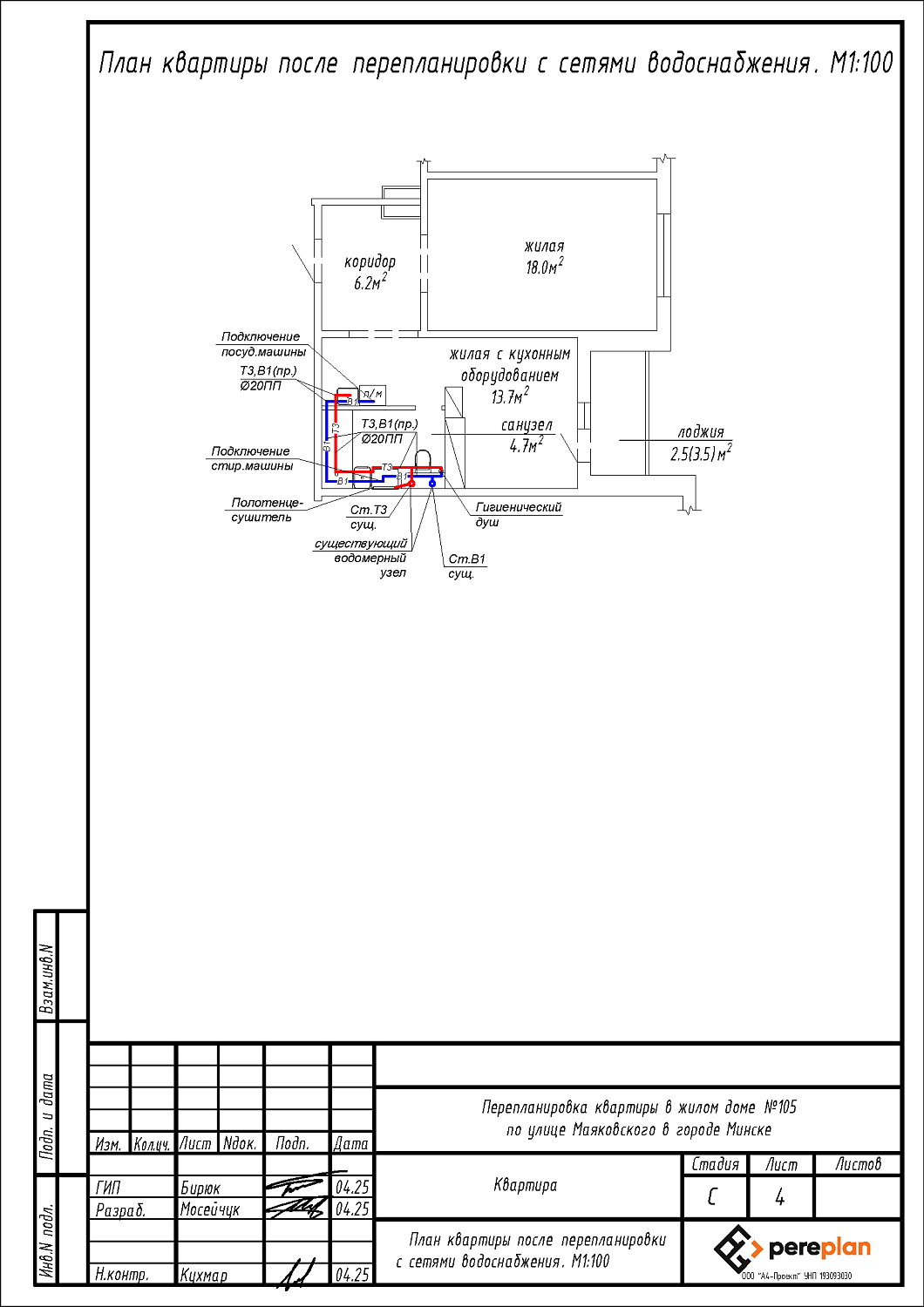
- Устройство кухни на части площади коридора с переносом инженерных коммуникаций;
- Демонтаж дверного проема с дверным блоком между кухней и коридором;
- Устройство жилой комнаты на площади кухни;
- Устройство коридора на части площади коридора.
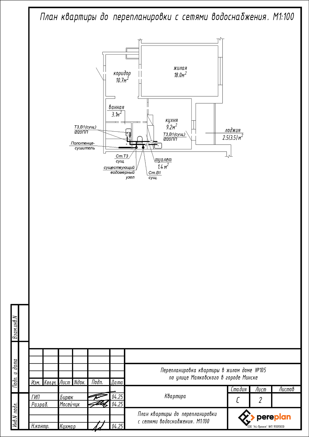
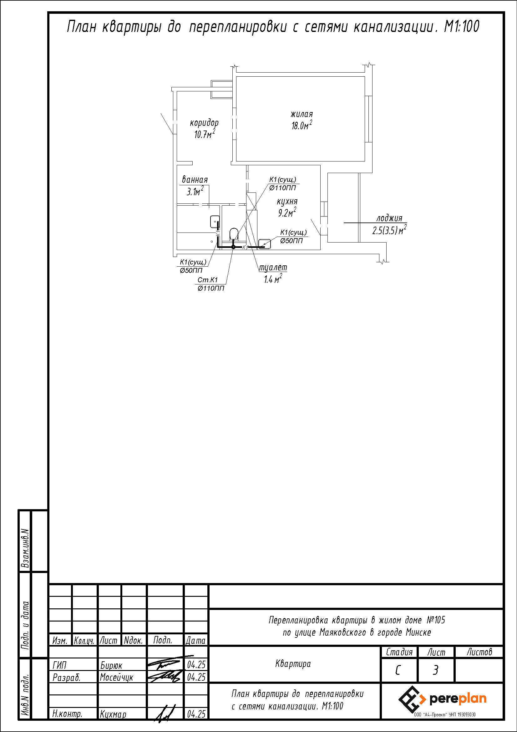
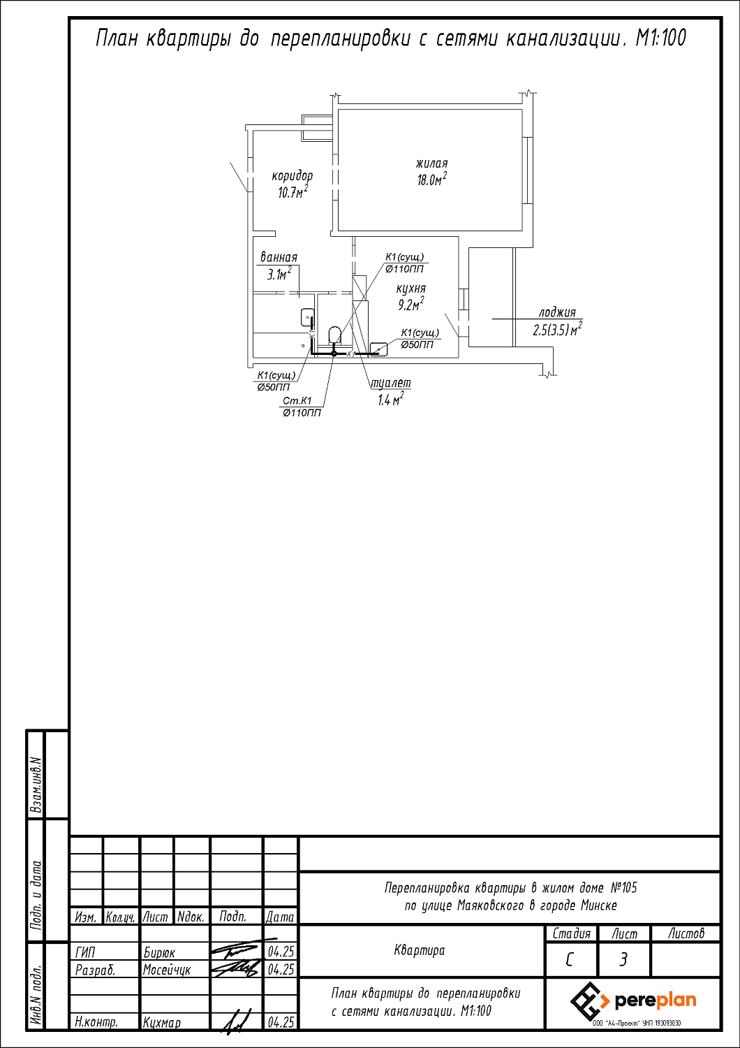
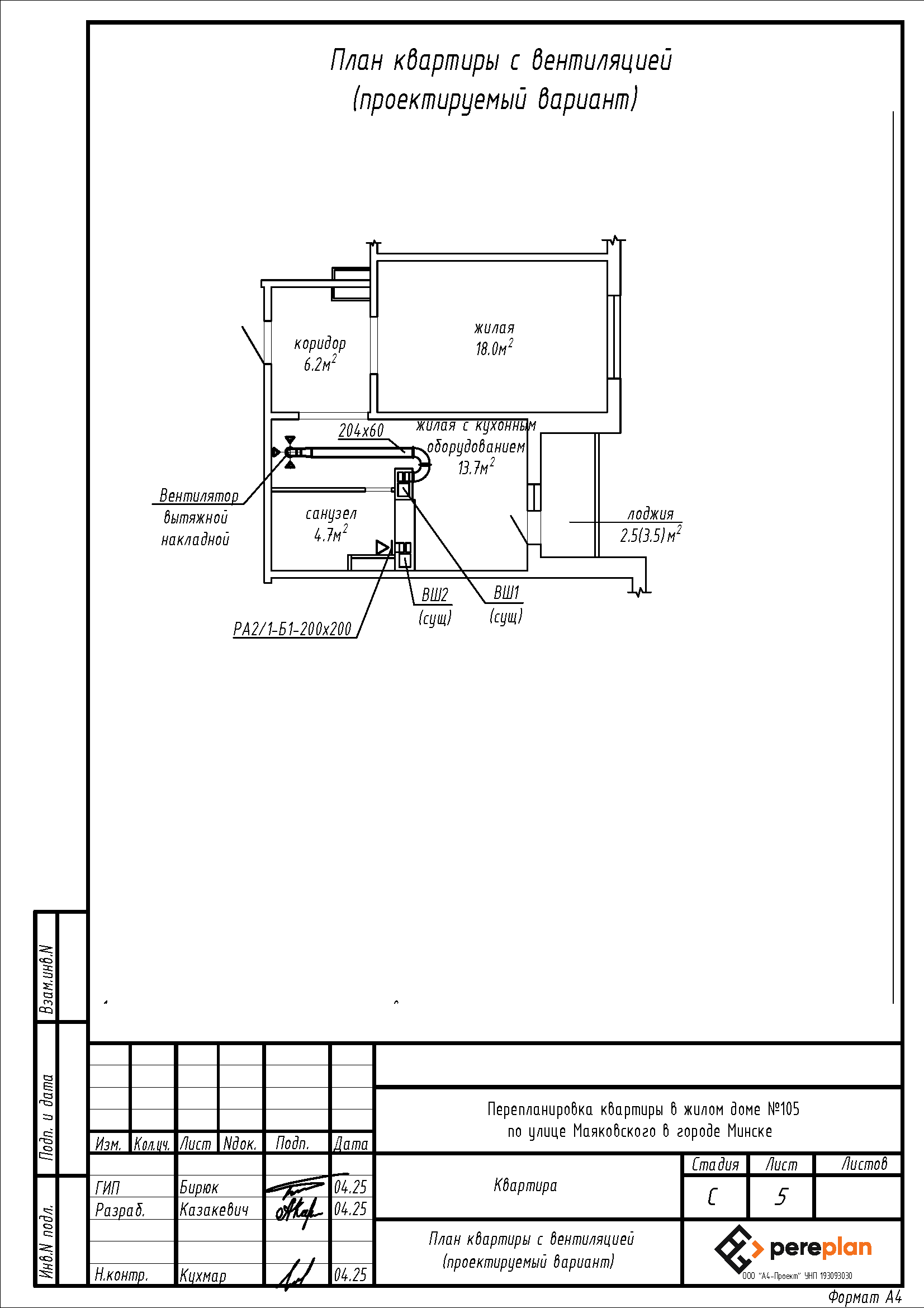
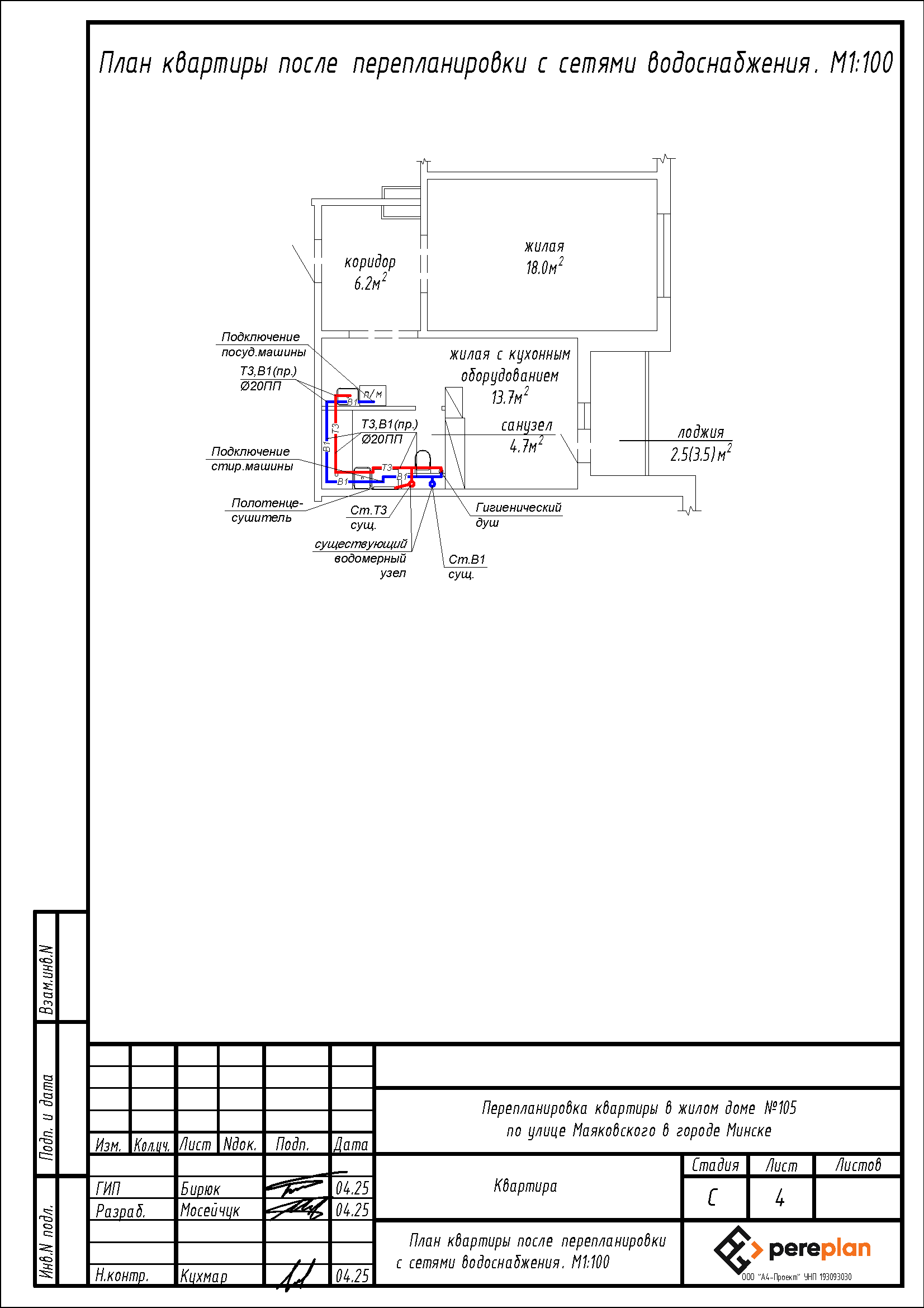
Нами были разработаны следующие разделы проектной документации для согласования в исполкоме:
- АС - архитектурно-строительные решения.
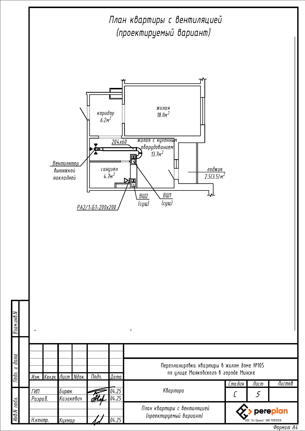
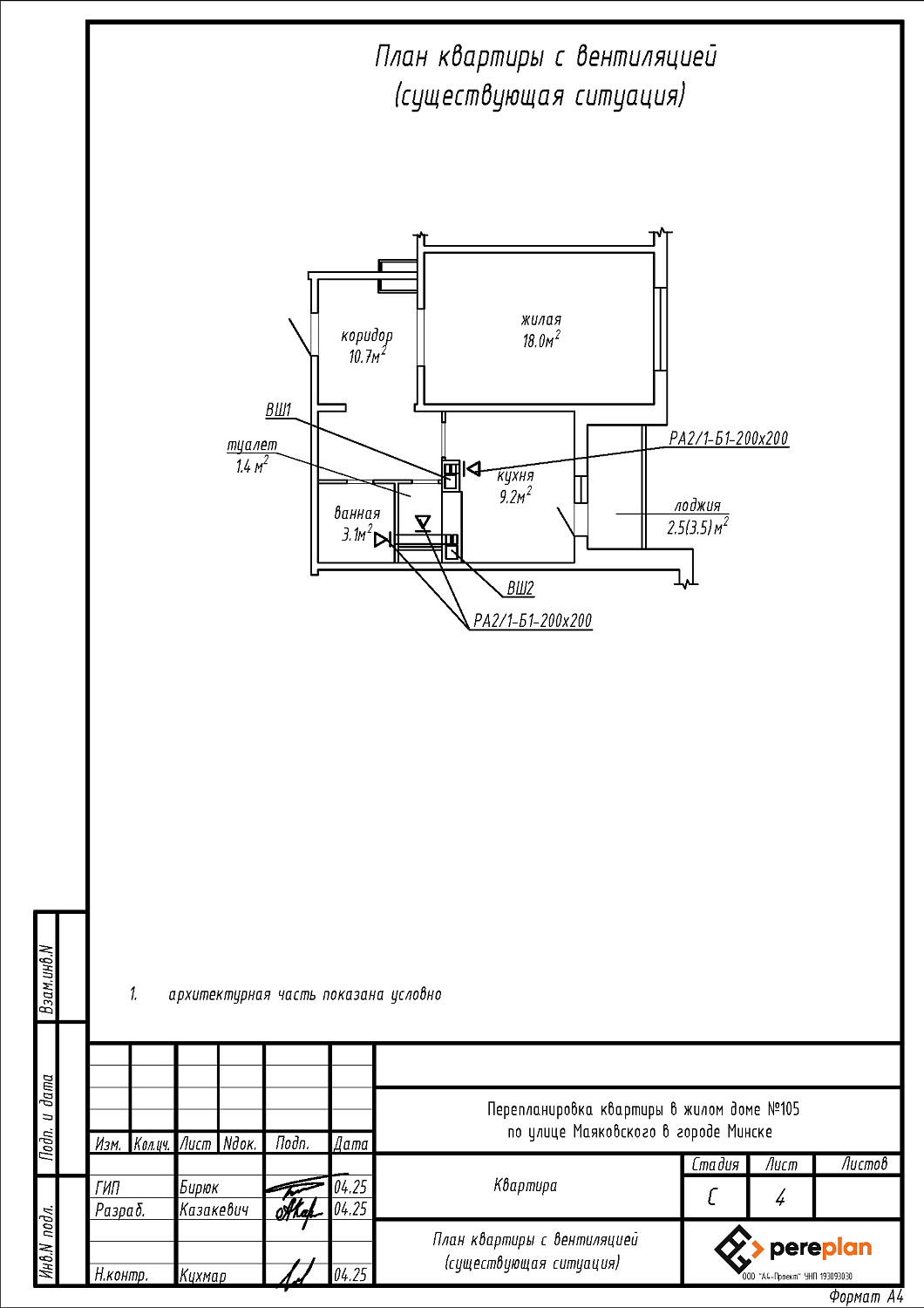
- ОВ - отопление и вентиляция.
- ВК - вентиляция и канализация.


