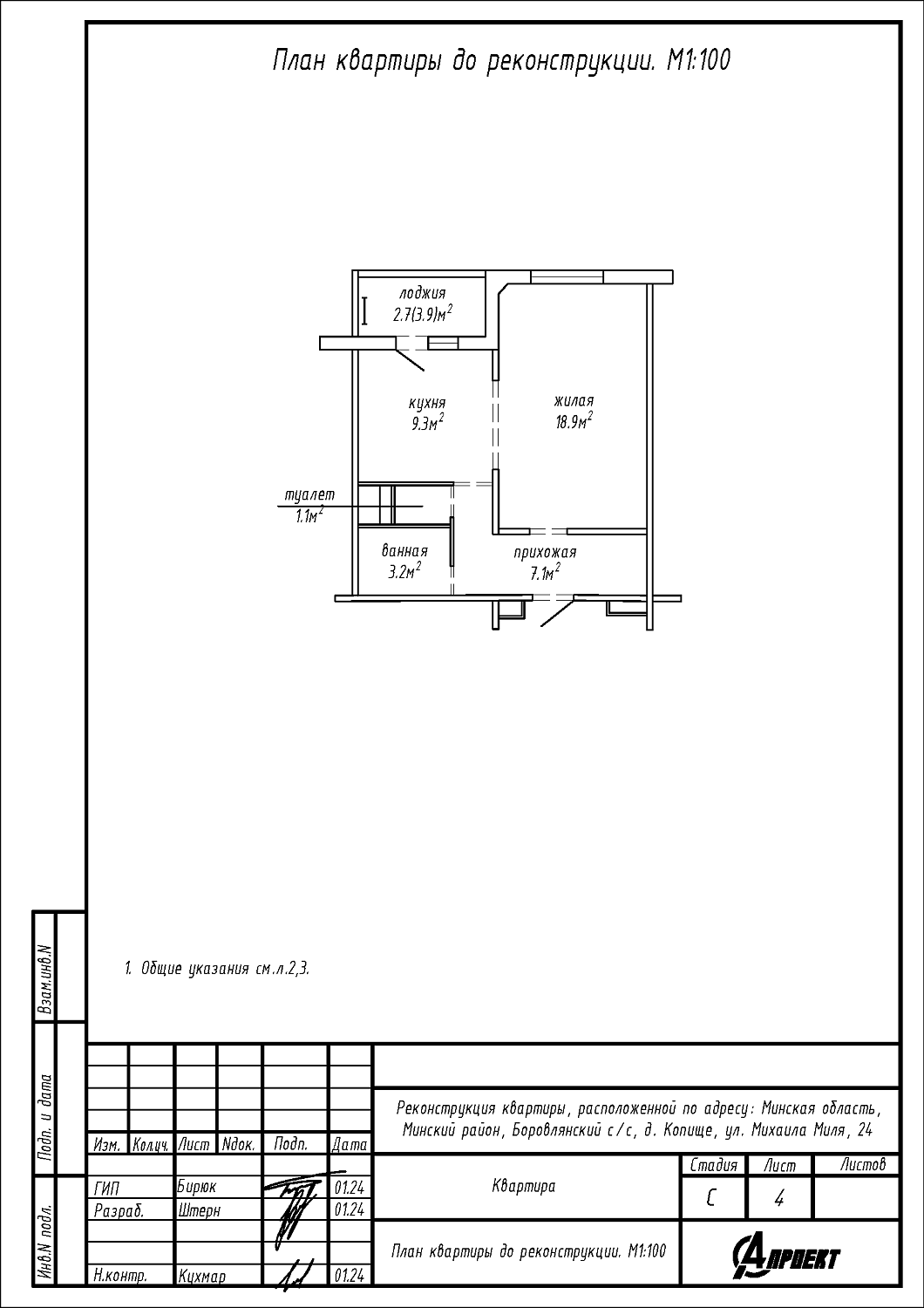
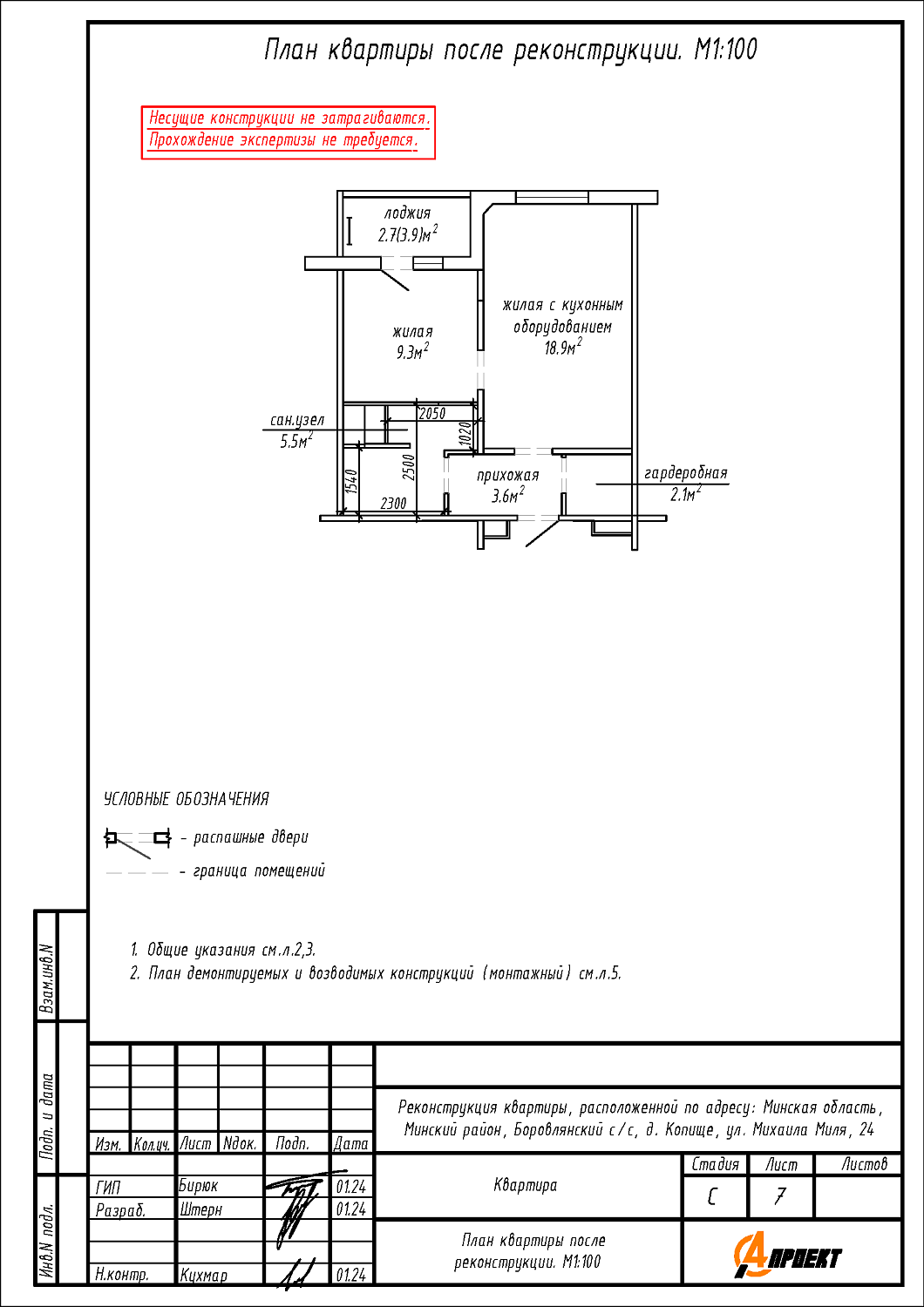
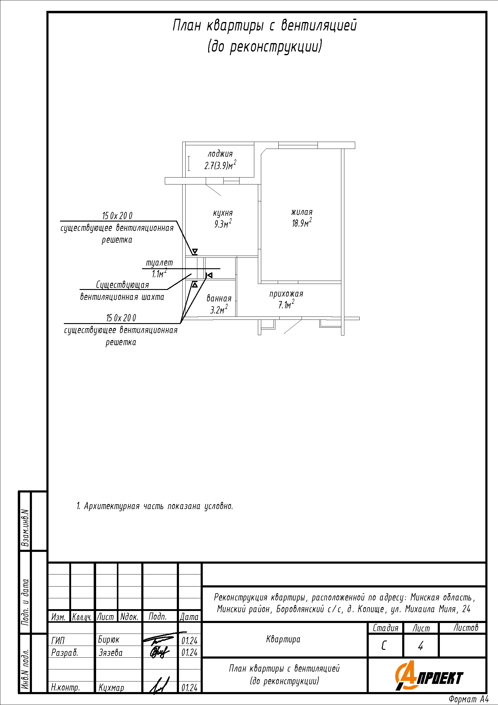
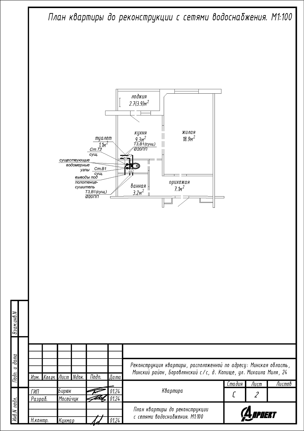
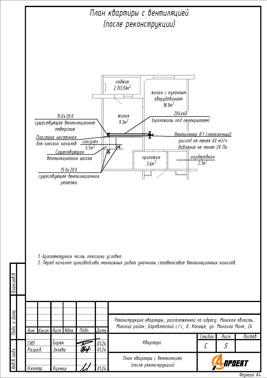
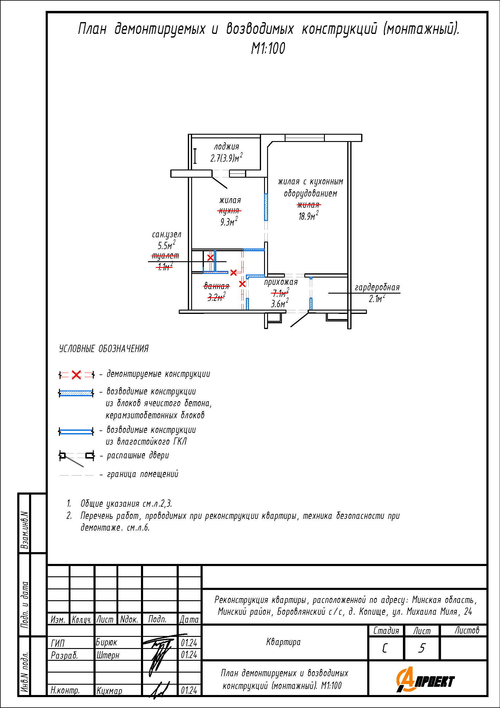
Реконструкция квартиры по ул. Михаила Миля, 24 в ЖК «Новая Боровая»
Пожелания заказчика:
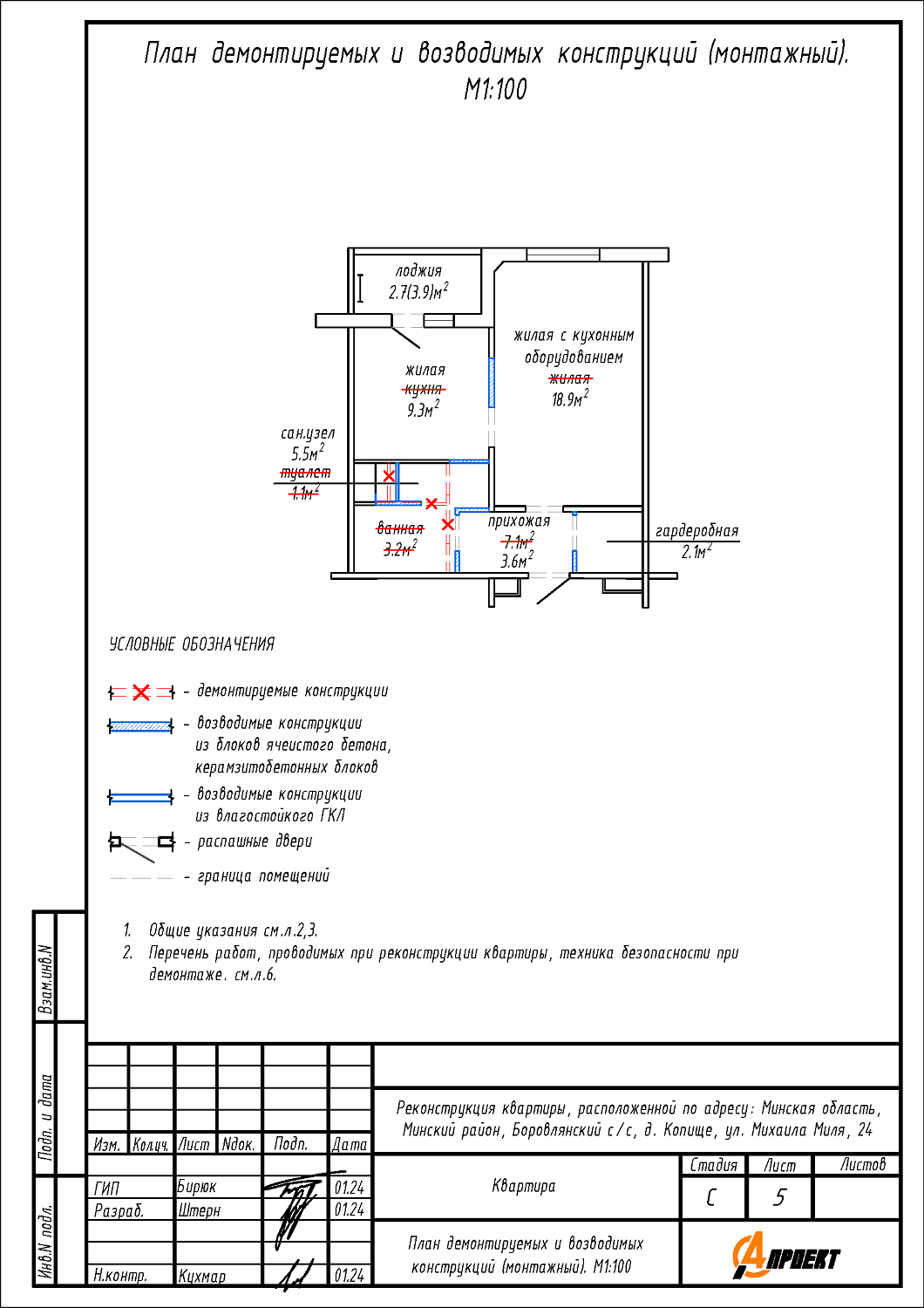
- Перенос жилой с кухонным оборудованием в жилую;
- Устройство гардеробной на части площади прихожей;
- Объединение ванной и туалета в единый санузел;
- Закладка дверного проёма между жилой с прихожей, с целью устройства совмещенного санузла на части площади прихожей;
- Изменение габаритов прихожей.
Нами были разработаны следующие разделы проектной документации для согласования в исполкоме:
- АС - архитектурно-строительные решения;
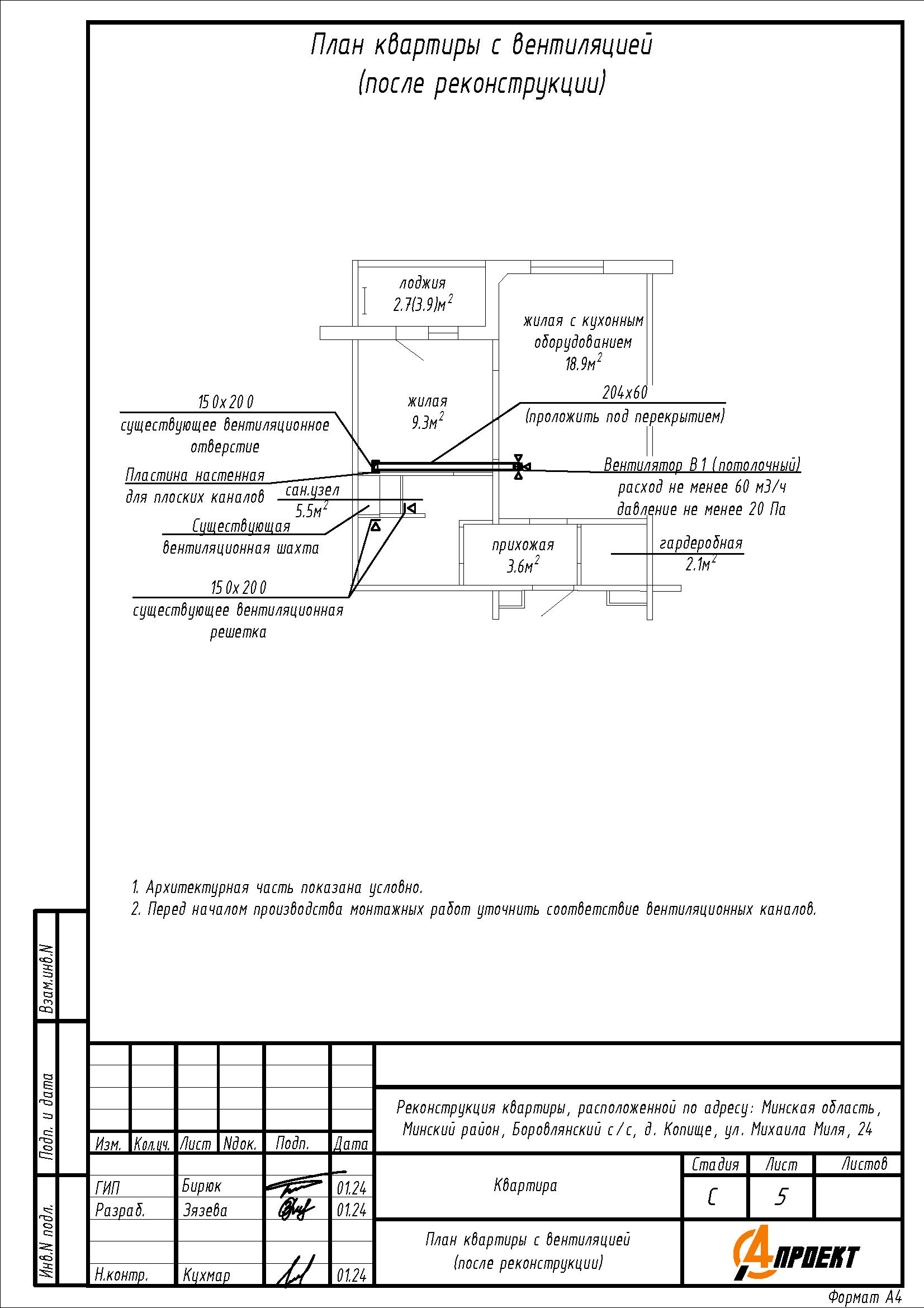
- ОВ - отопление и вентиляция;
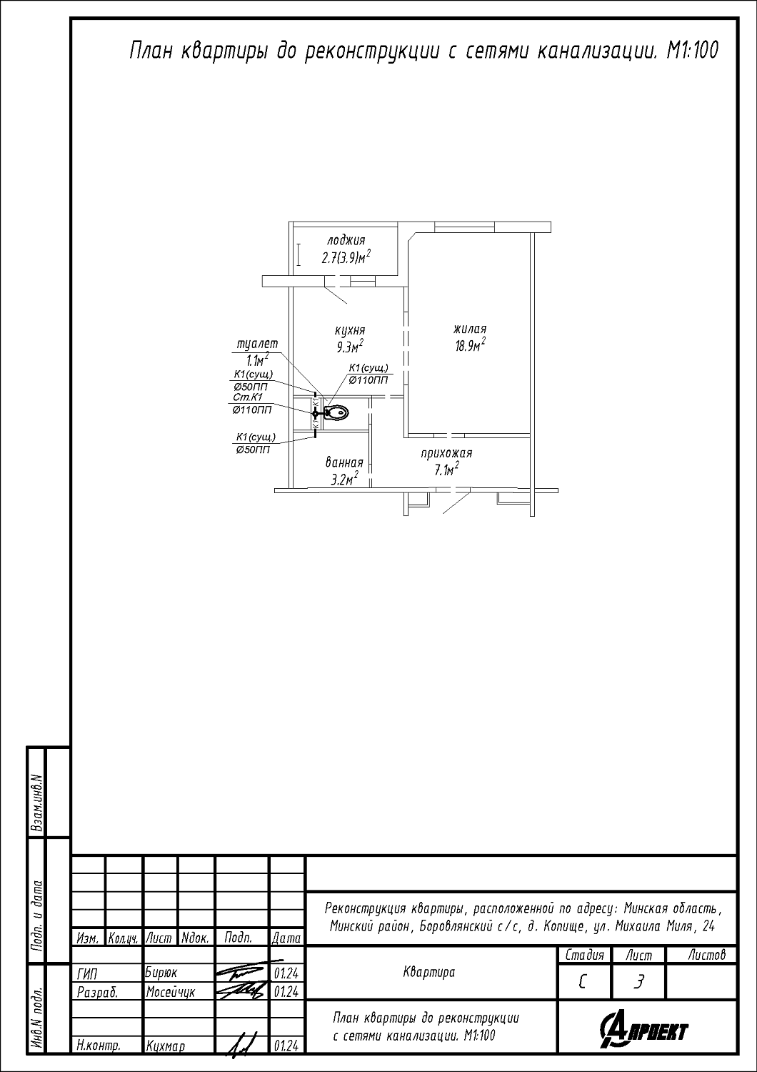
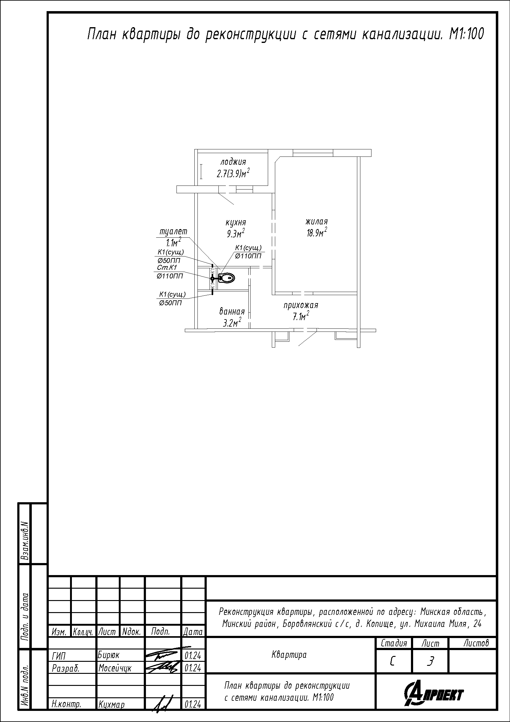
- ВК - вентиляция и канализация.
