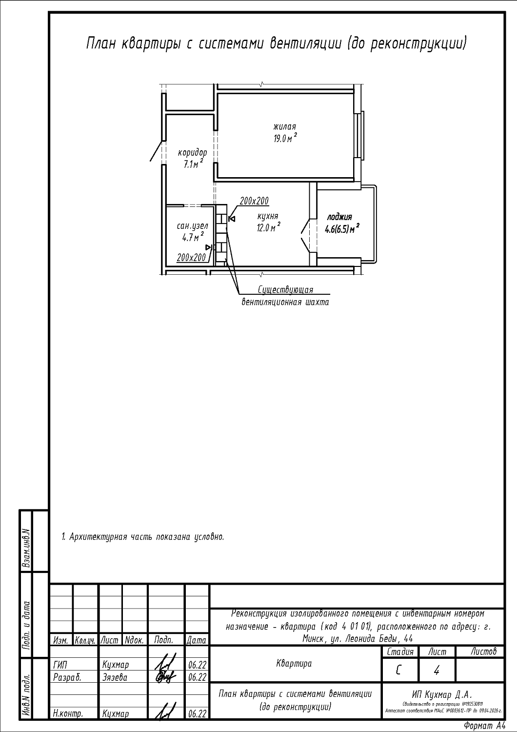
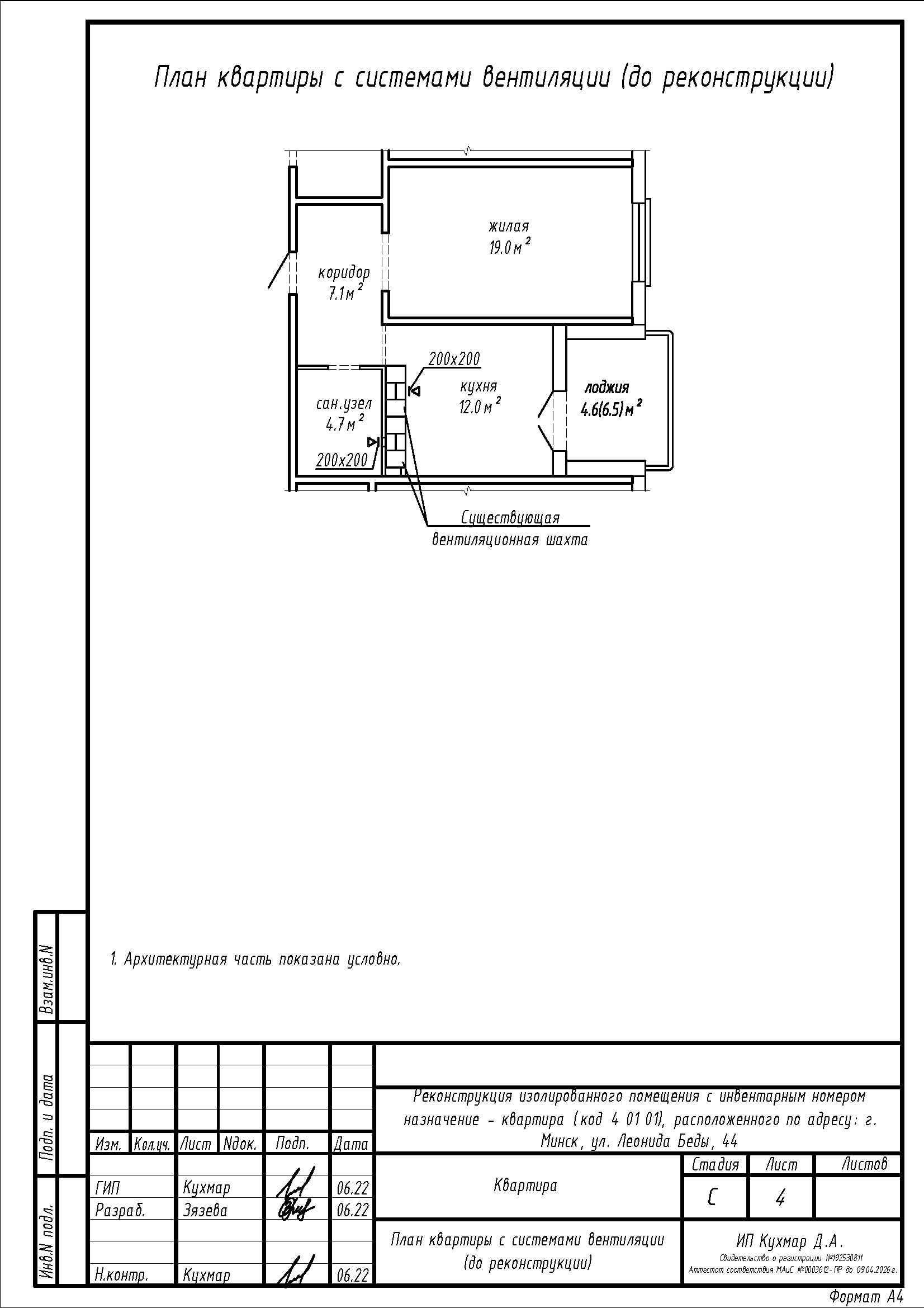
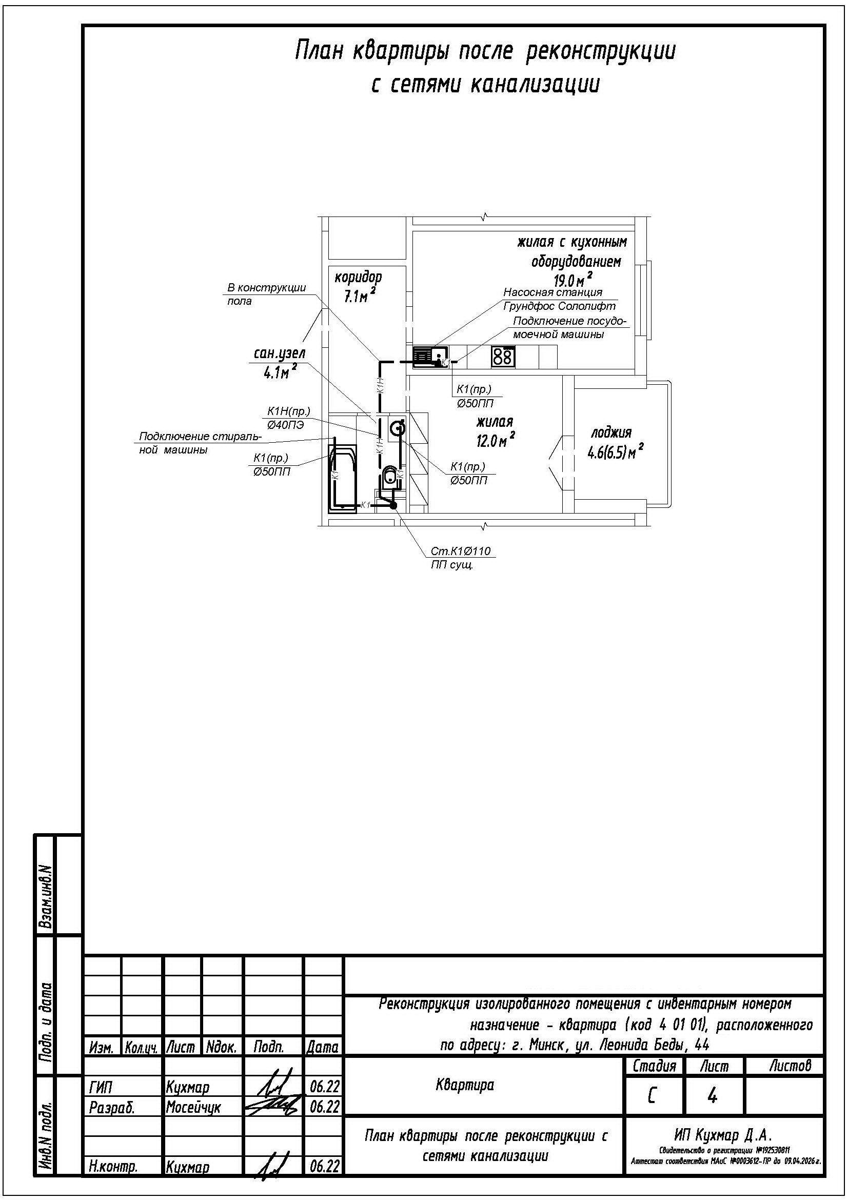
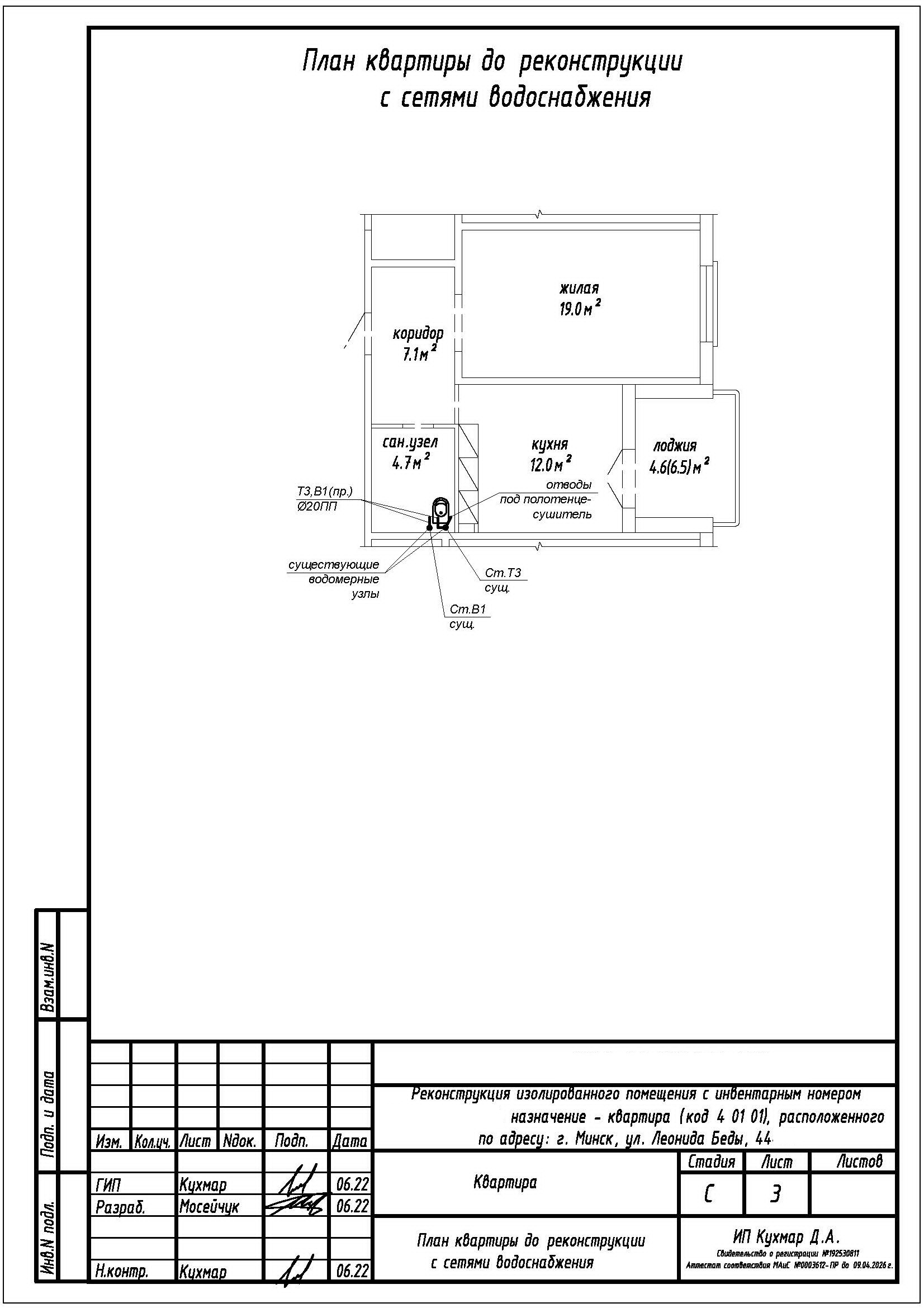
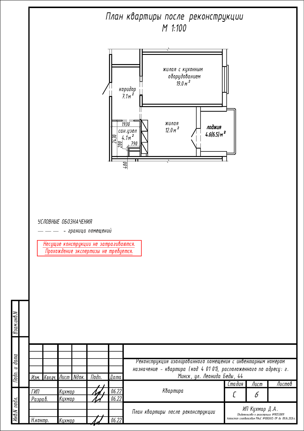
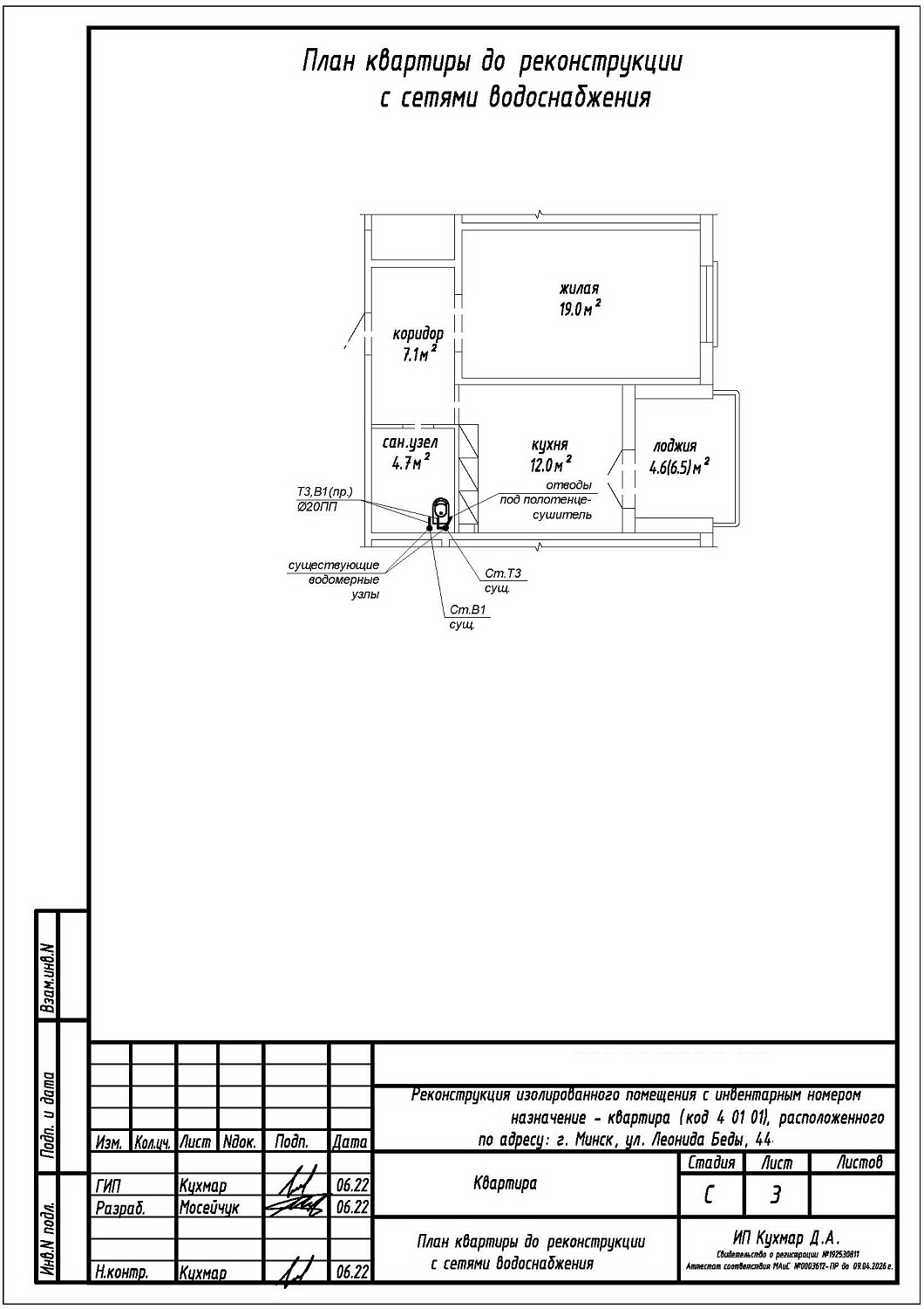
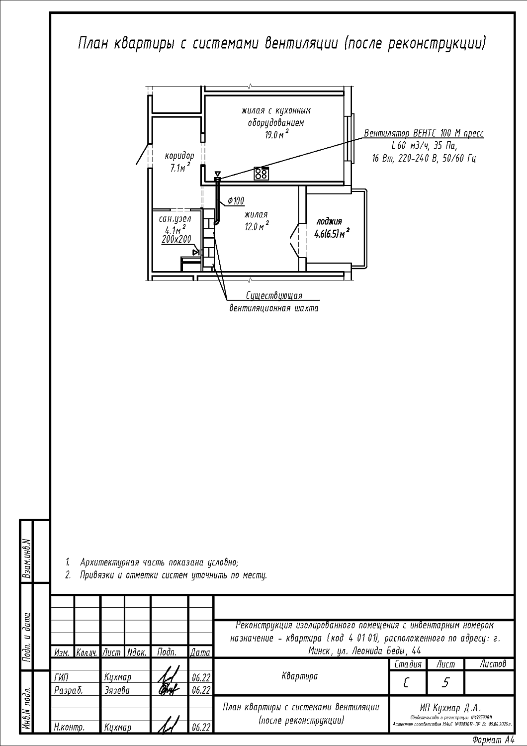
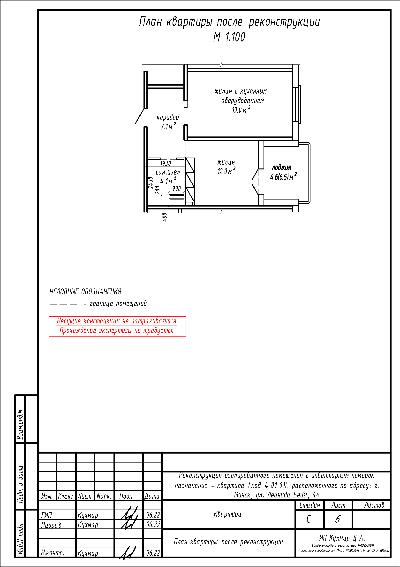
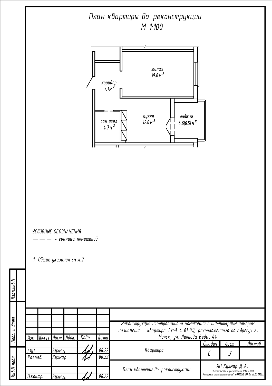
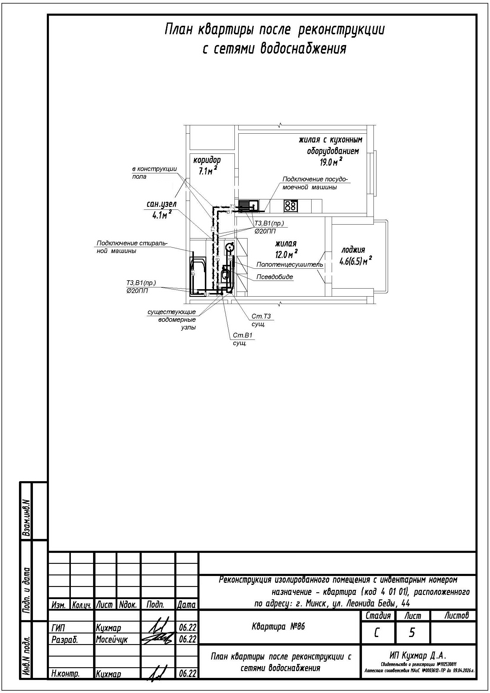
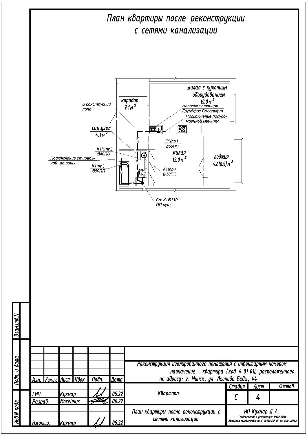
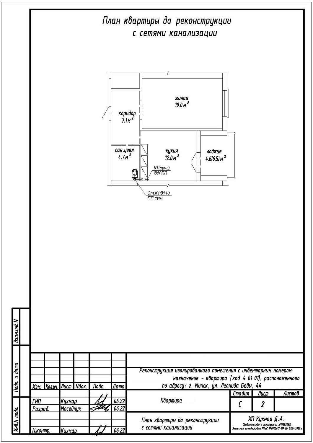
Реконструкция квартиры по ул. Леонида Беды, 44 в г.Минске
Пожелания заказчика:
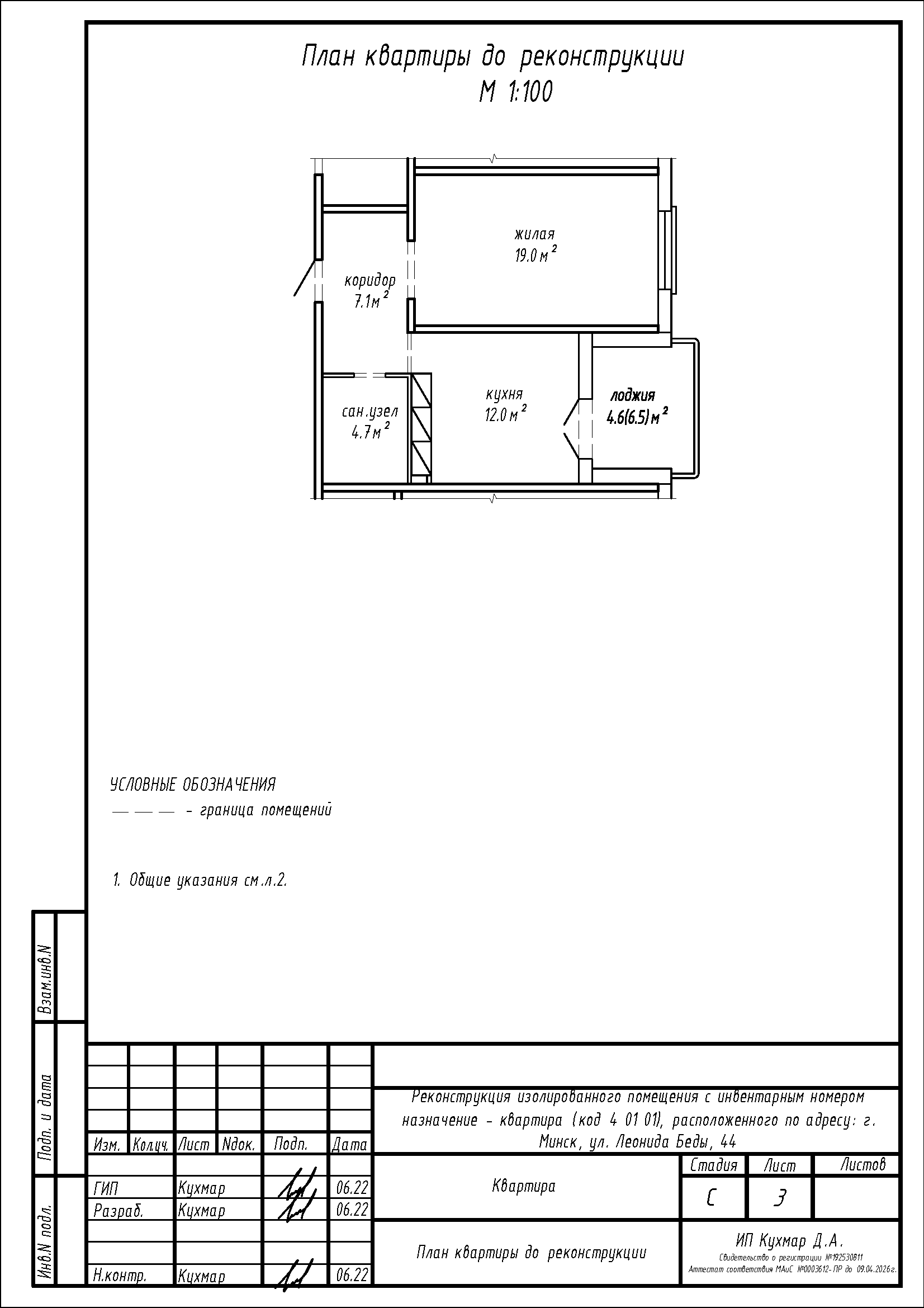
- Демонтаж части дверного проема в перегородке между сан .узлом и коридором;
- Закладка части дверного проема в перегородке между коридором и кухней;
- Закладка части дверного проема в стене между коридором и жилой;
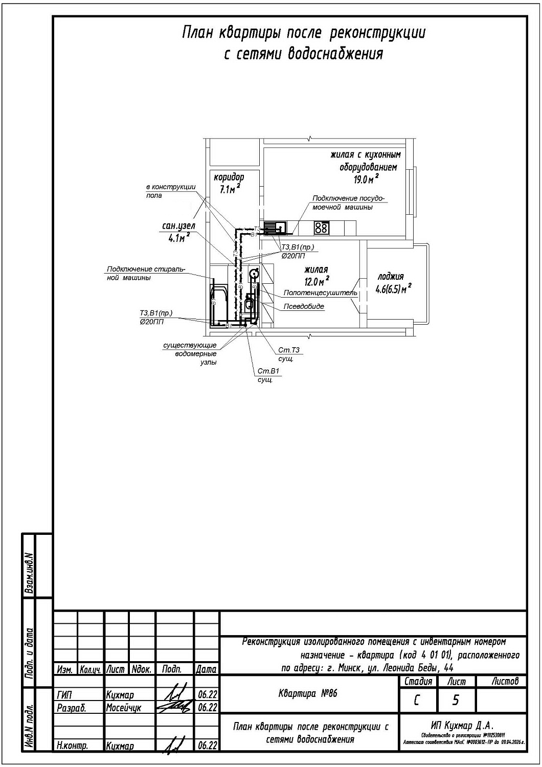
- Перенос кухонного оборудования из кухни в жилую с целью изменения функциональных зон;
- Устройство зашивки стояков труб водоснабжения и канализации, устройство инсталляции для унитаза в сан.узле.
Нами были разработаны следующие разделы проектной документации для согласования в исполкоме:
- АС - архитектурно-строительные решения.
