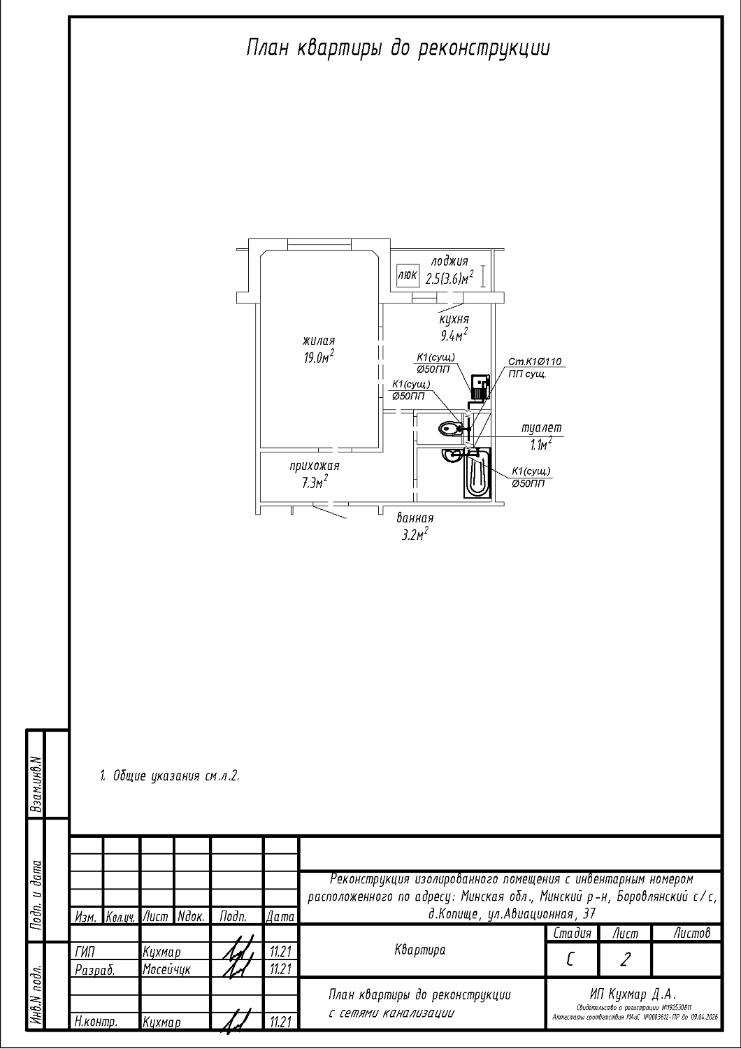
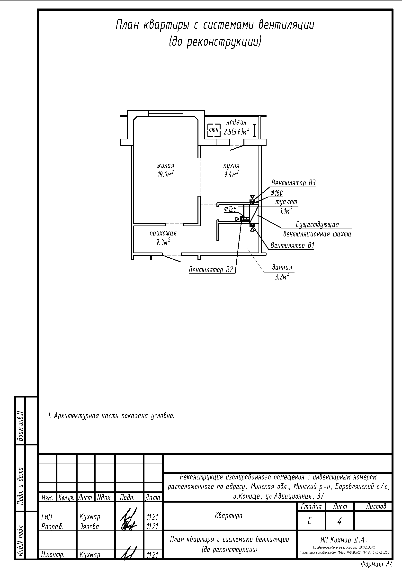
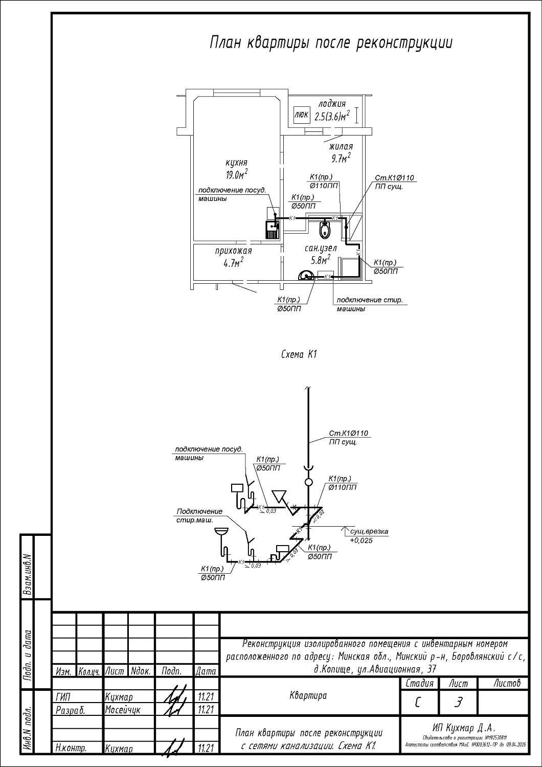
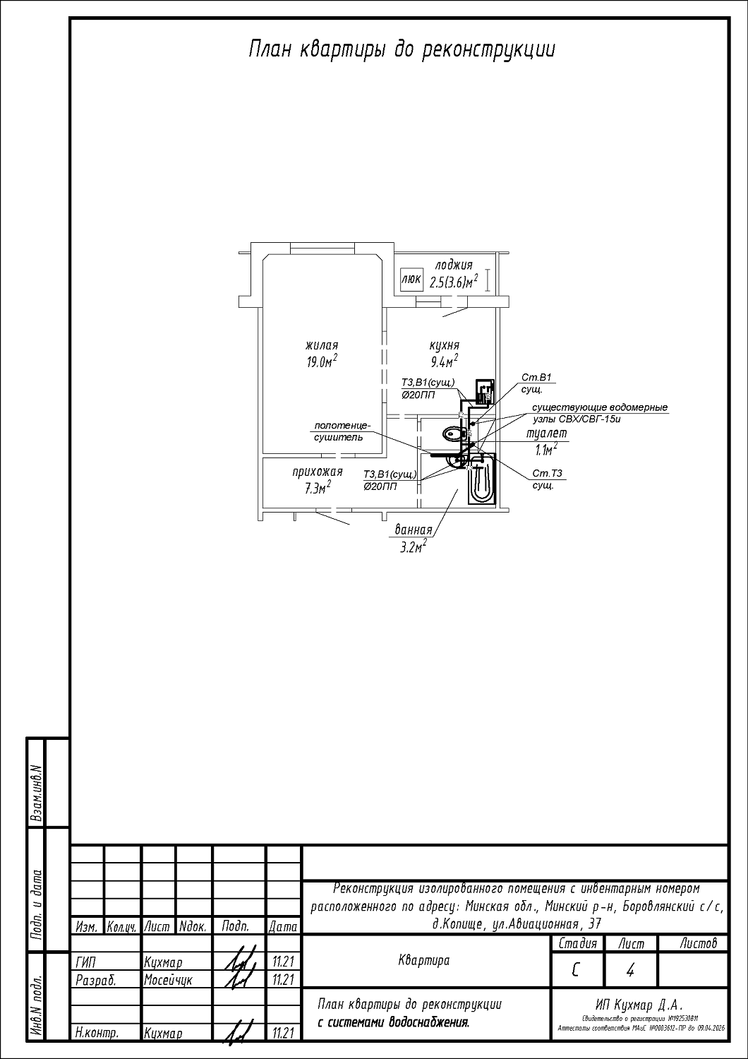
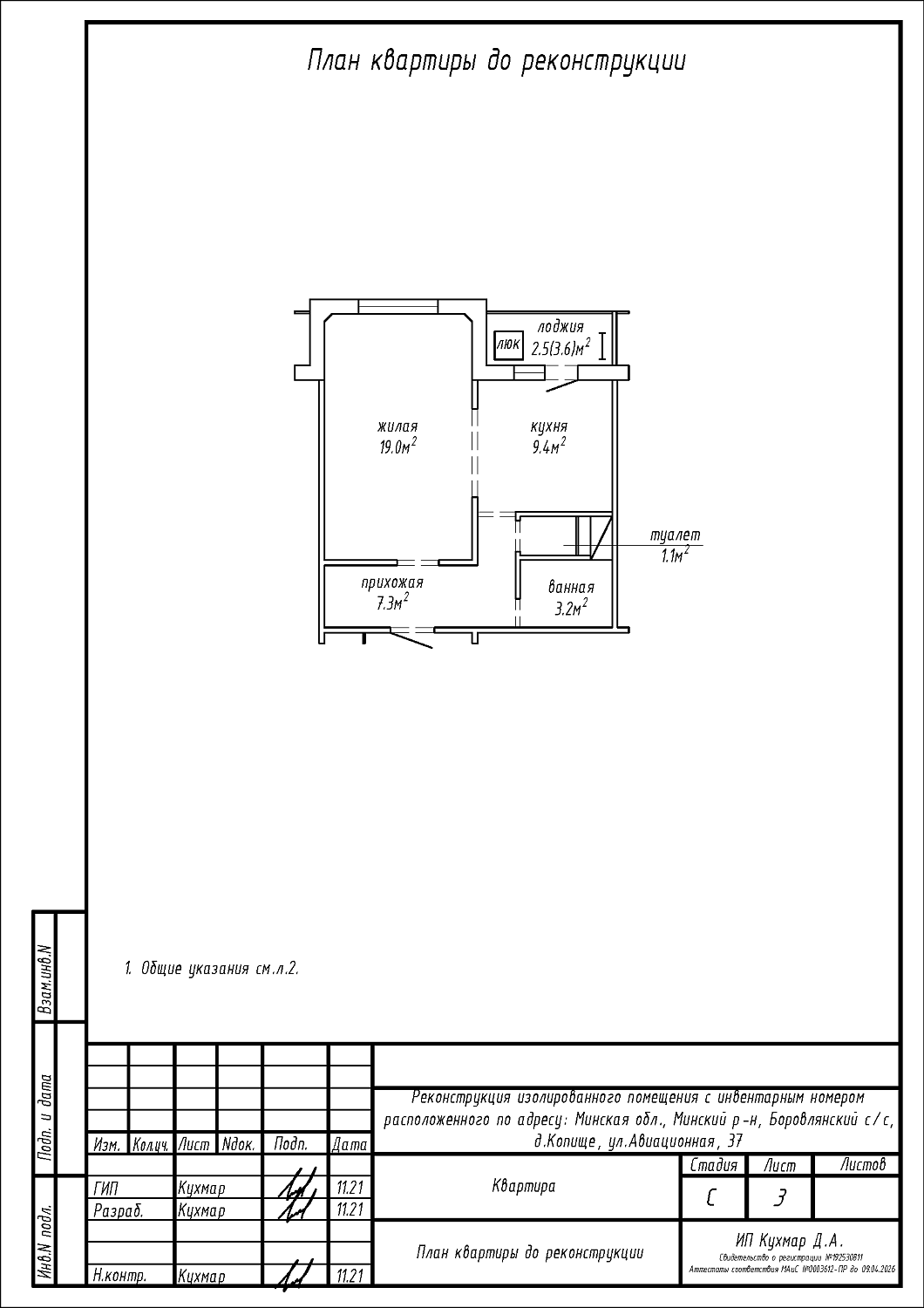
Реконструкция квартиры по ул. Авиационная, 37 в ЖК «Новая Боровая»
Пожелания заказчика:
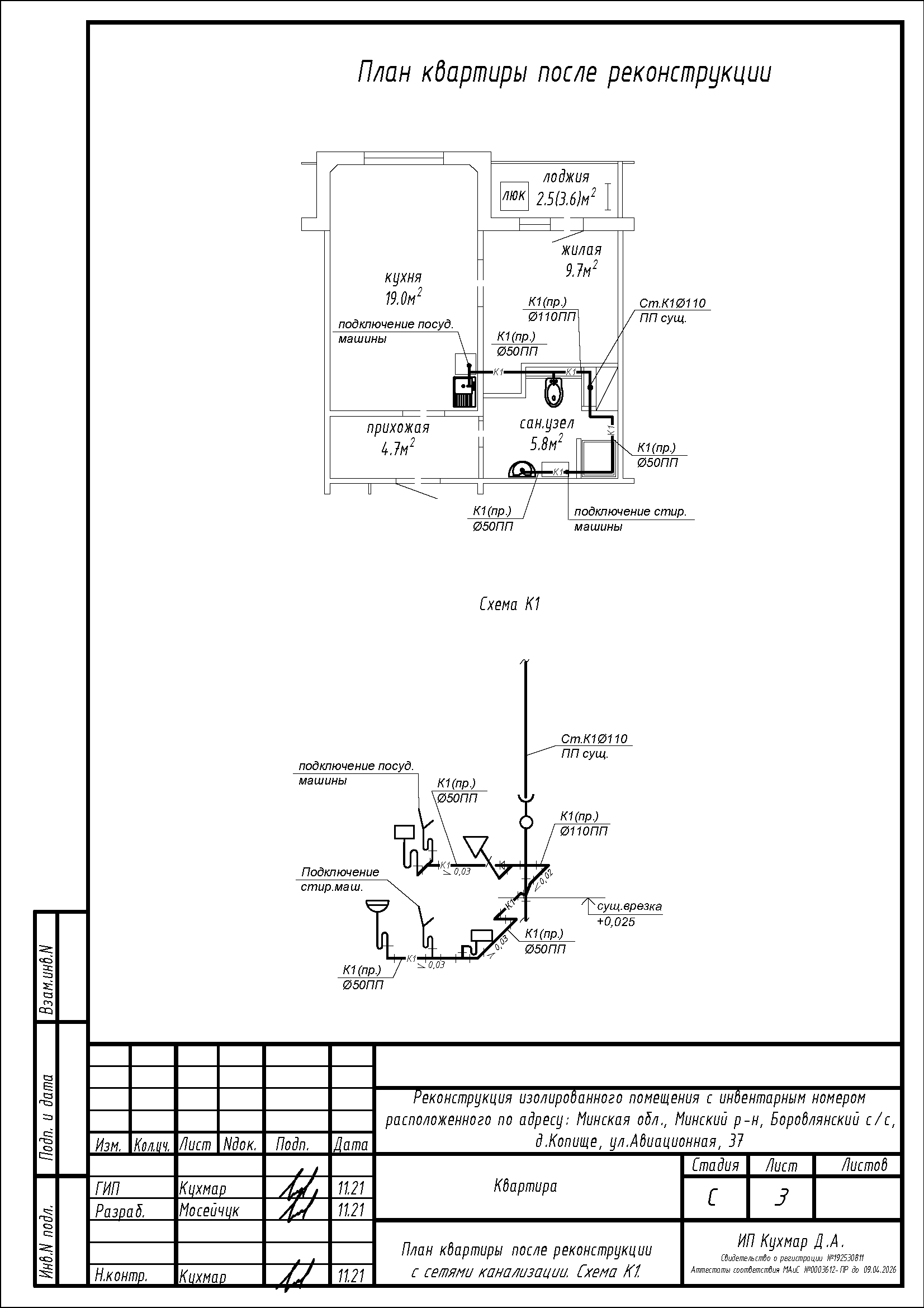
- Объединение ванной и туалета в единый санузел;
- Закладка дверного проёма между прихожей и жилой;
- Сужение дверного проёма между кухней и жилой;
- Перенос кухни в жилое помещение;
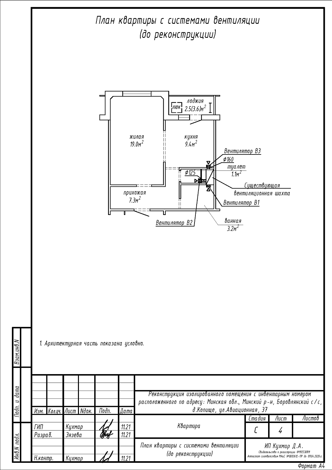
- Изменение трассы систем вентиляции в связи с изменением назначения помещений.
Нами были разработаны следующие разделы проектной документации для согласования в исполкоме:
- АС - архитектурно-строительные решения;
- ОВ - отопление и вентиляция.
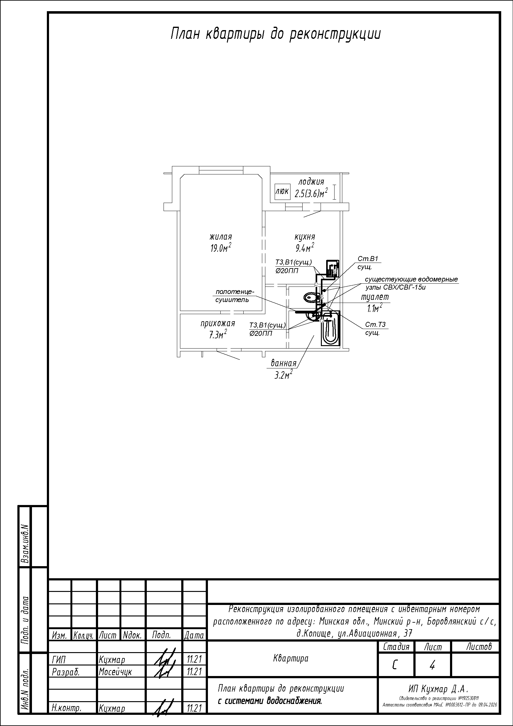
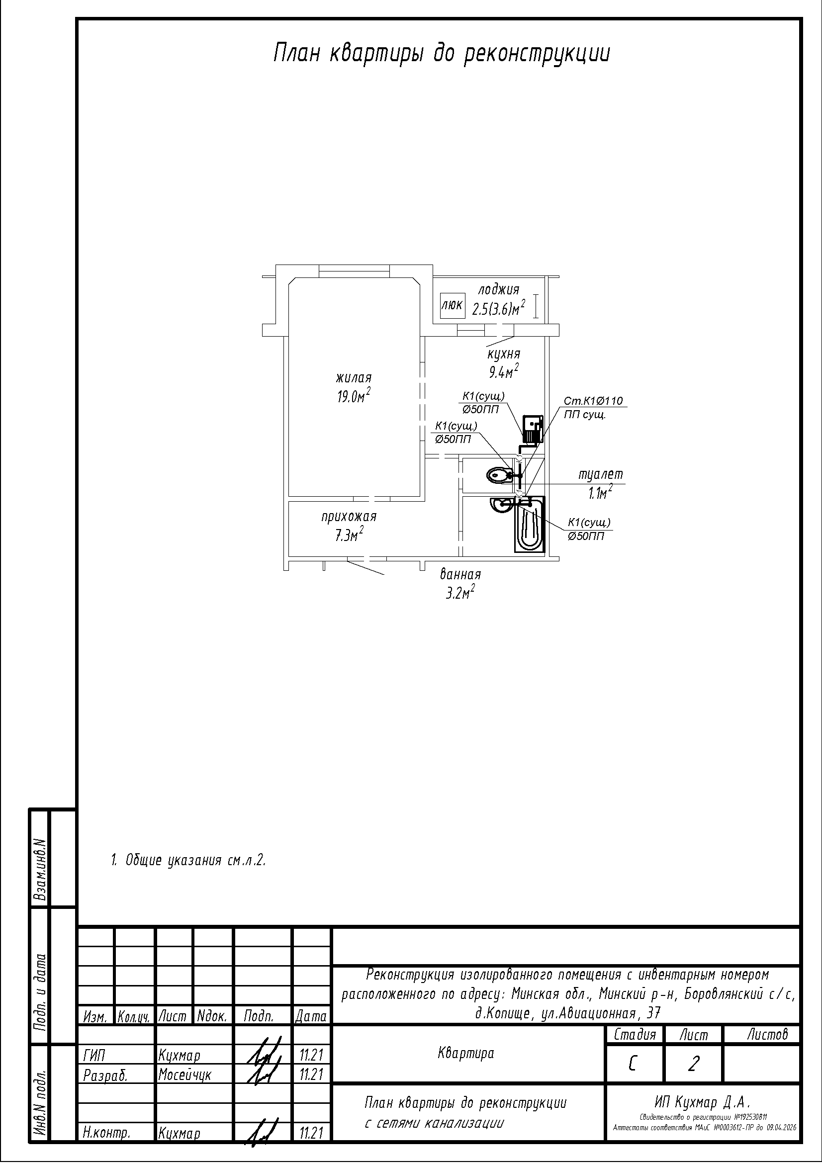
- ВК - вентиляция и канализация.
