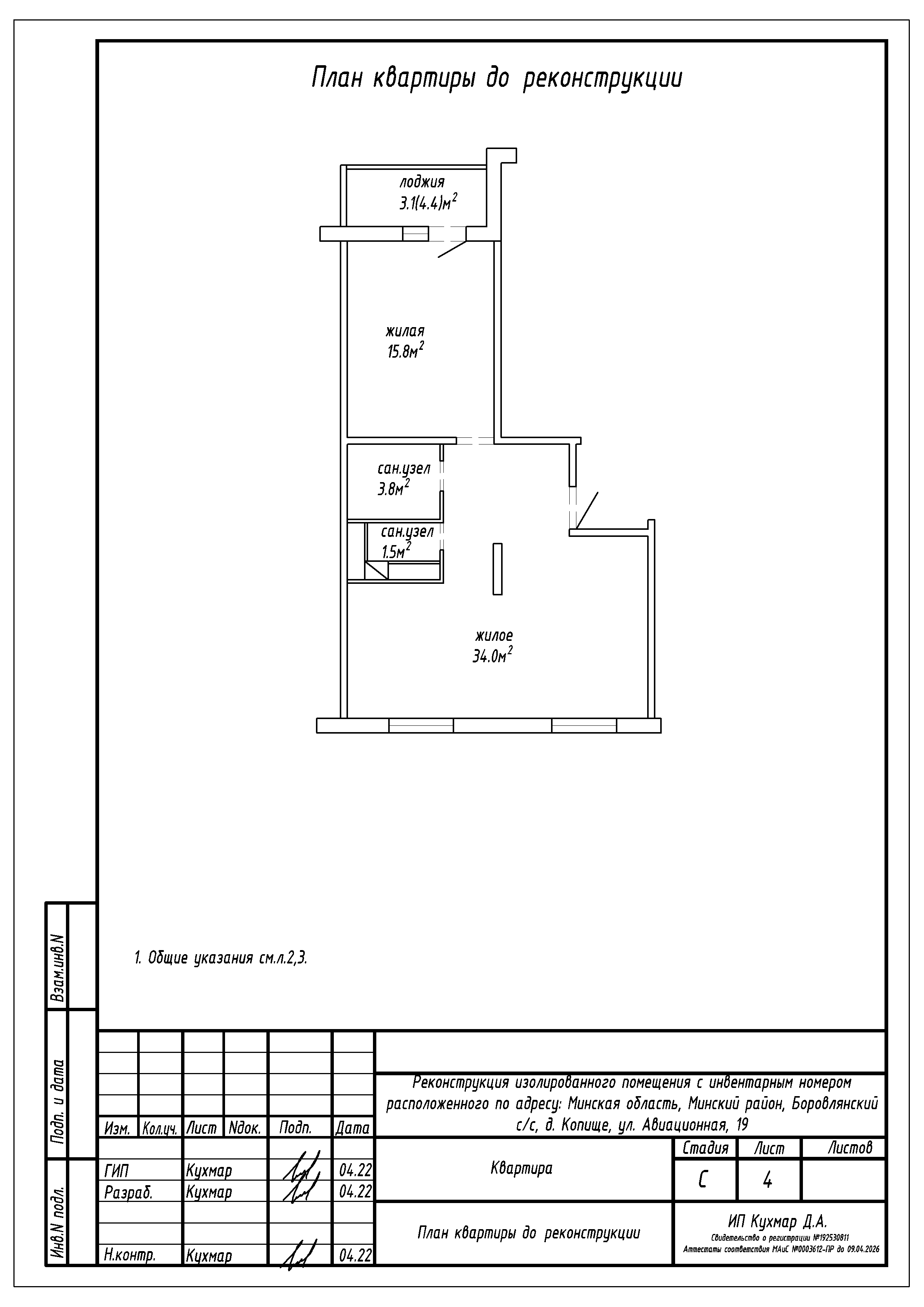
Реконструкция квартиры по ул. Авиационная, 19 в ЖК «Новая Боровая»
Пожелания заказчика:
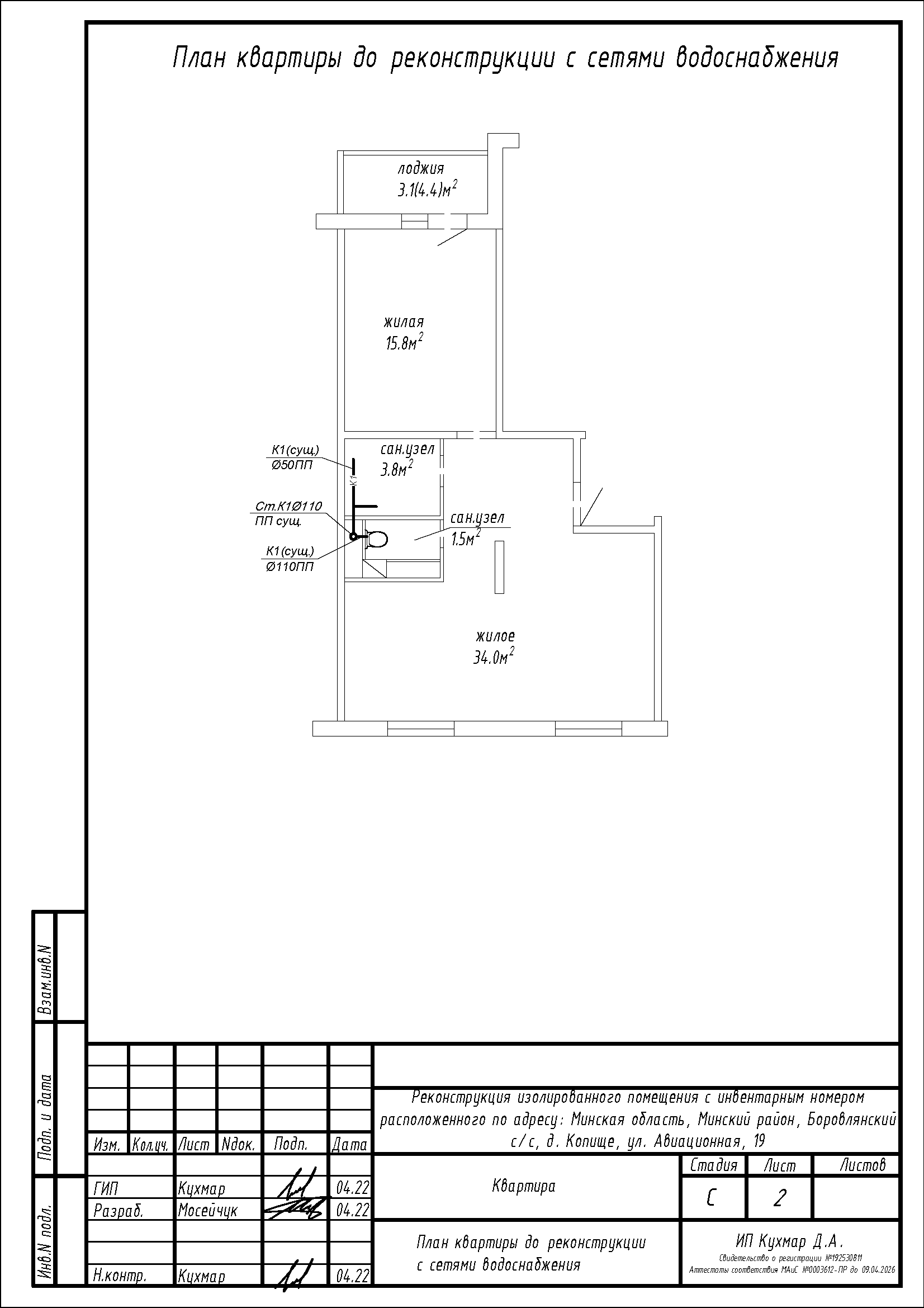
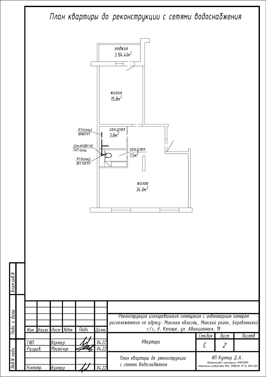
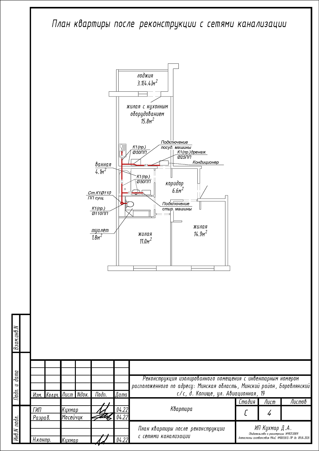
- Устройство ванной на площади существующего санузла;
- Устройство туалета на площади существующего санузла;
- Устройство жилой с кухонным оборудованием на площади жилой;
- Устройство двух жилых и коридора на площади жилого;
- Изменение трассы систем вентиляции кухни.
Нами были разработаны следующие разделы проектной документации для согласования в исполкоме:
- АС - архитектурно-строительные решения;
- ОВ - отопление и вентиляция;
- ВК - вентиляция и канализация.
