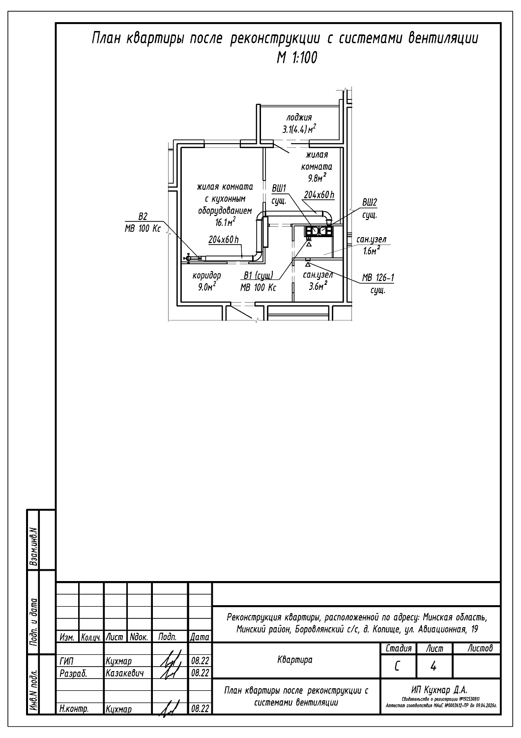
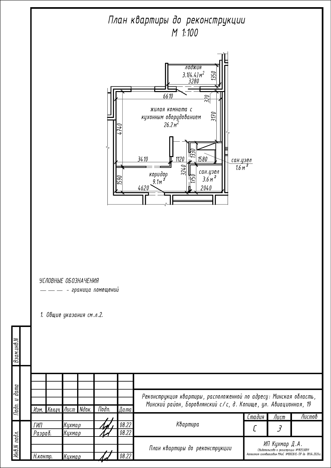
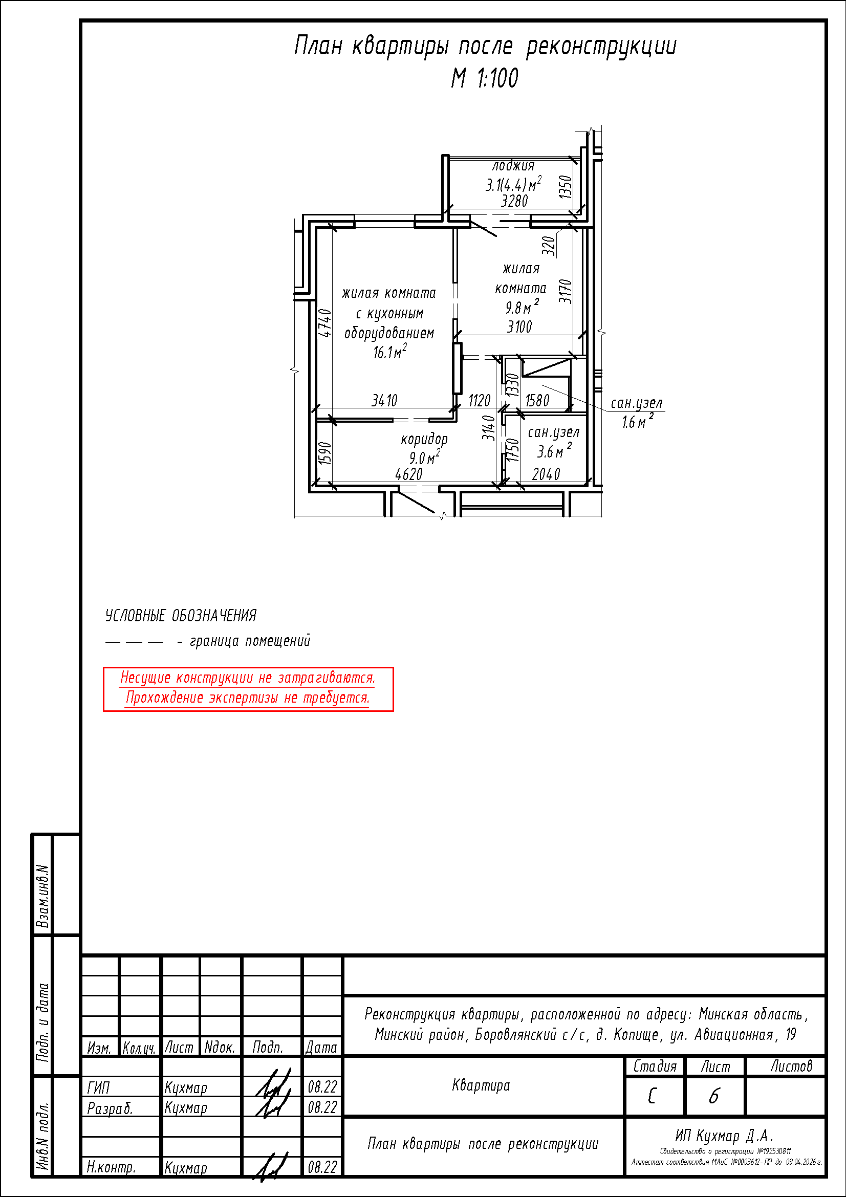
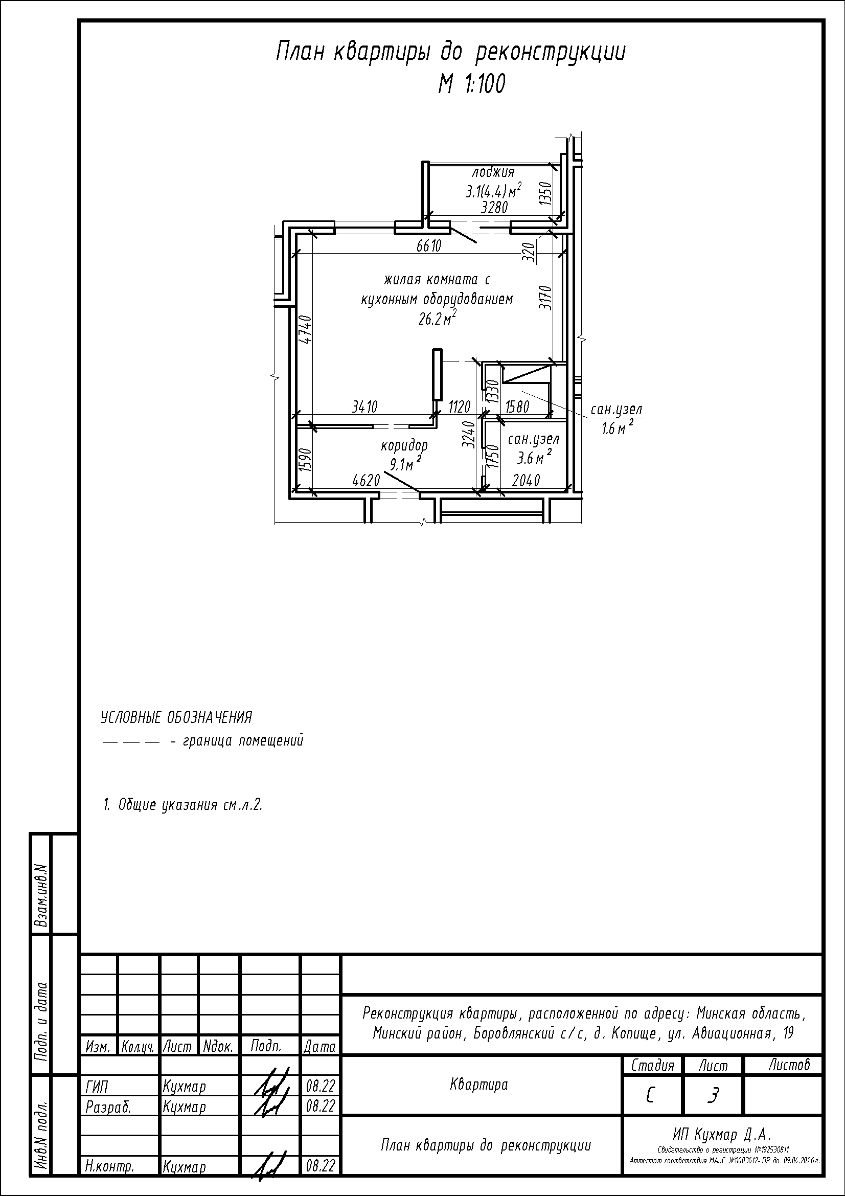
Реконструкция квартиры по ул. Авиационная, 19 в ЖК «Новая Боровая»
Пожелания заказчика:
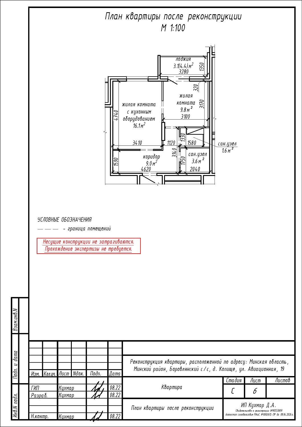
- Устройство перегородок с дверным проемом на площади жилой комнаты с кухонным оборудованием с последующим образованием новых помещений;
- Демонтаж части существующей перегородки дверного проема между сан.узлом и коридором с последующим устройством перегородки между сан.узлом и коридором (смещение дверного проема);
- Инженерное оборудование (переоборудование) квартиры.
Нами были разработаны следующие разделы проектной документации для согласования в исполкоме:
- АС - архитектурно-строительные решения;
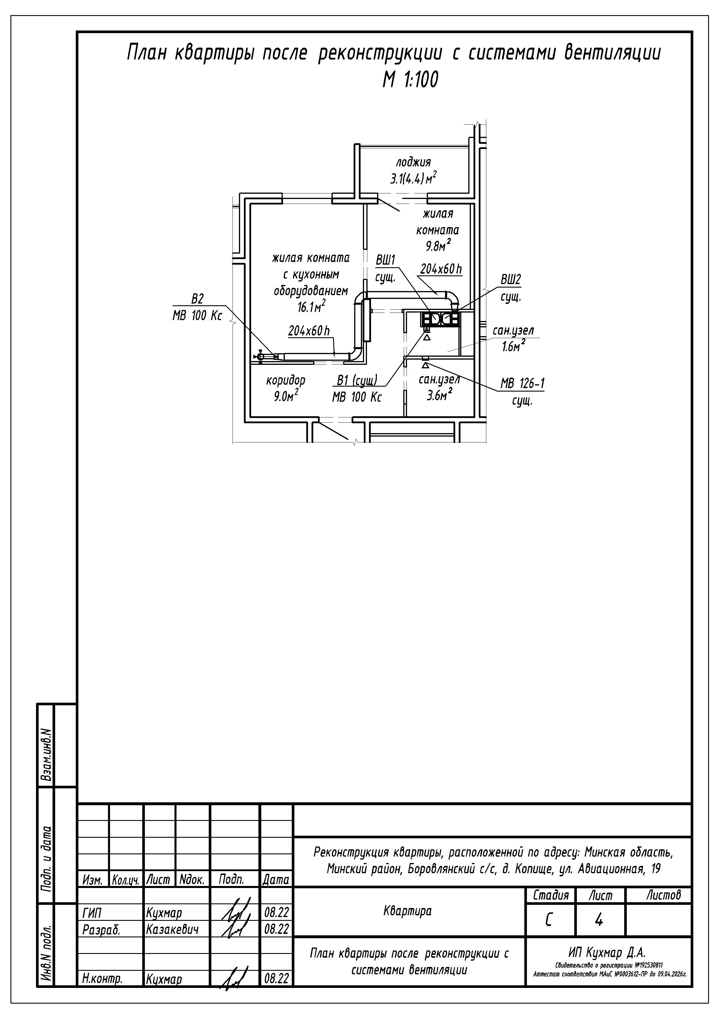
- ОВ - отопление и вентиляция;
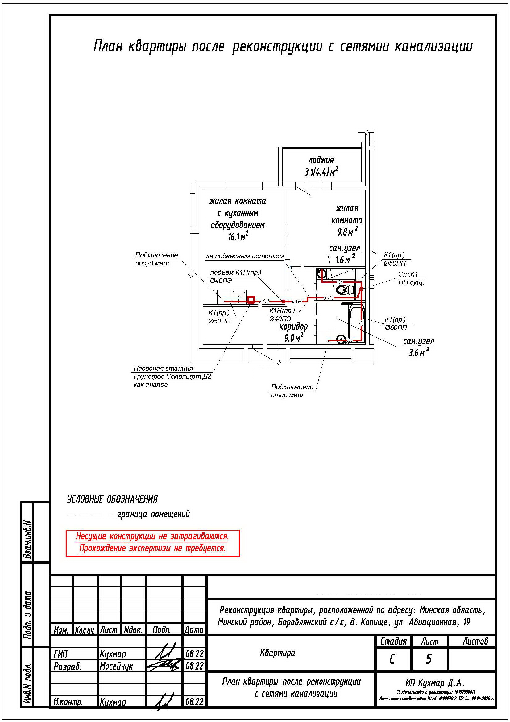
- ВК - вентиляция и канализация.
