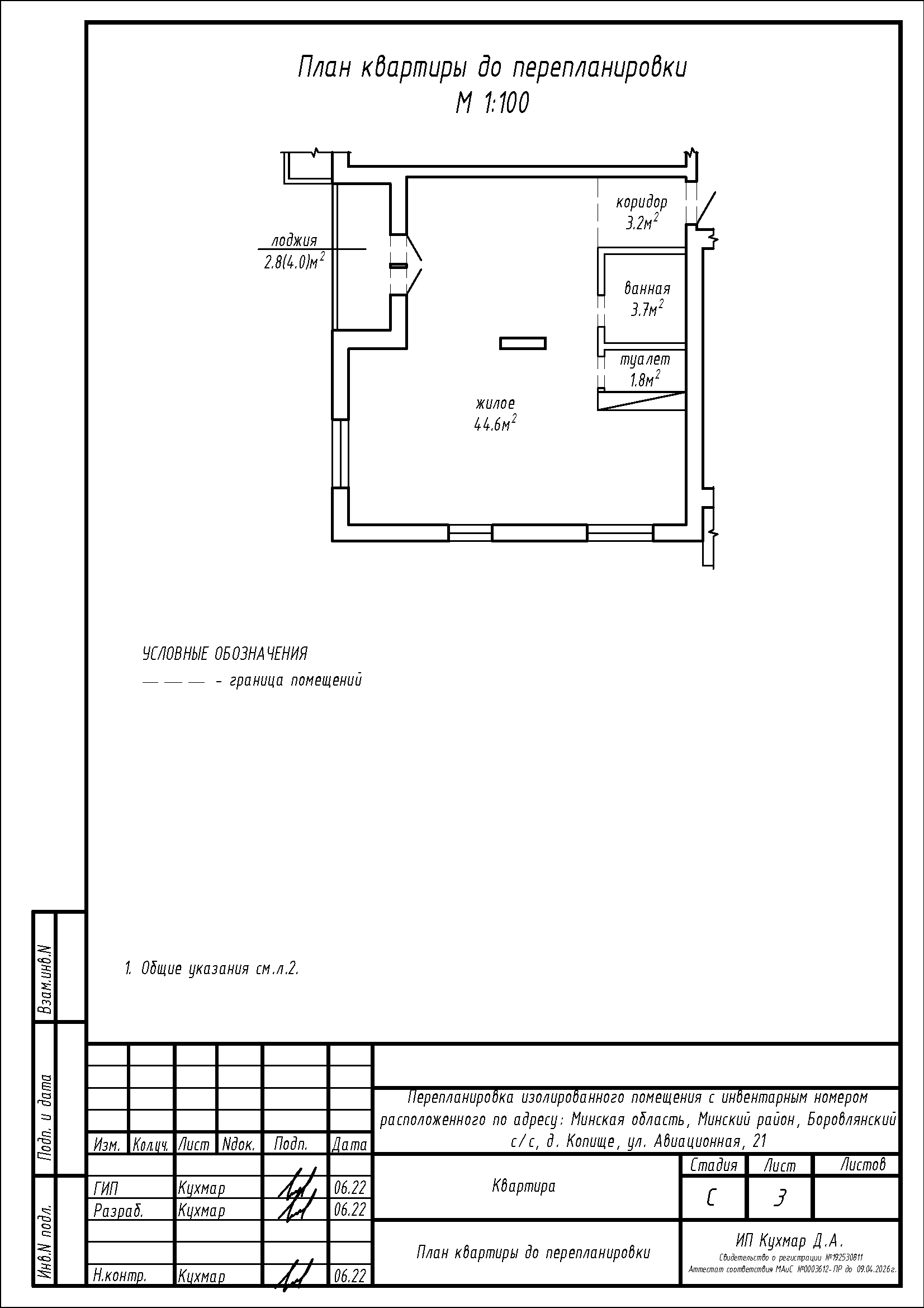
Перепланировка квартиры по ул. Авиационная, 21 в ЖК «Новая Боровая»
Пожелания заказчика:
- Разделение общего жилого на жилую с кухонным оборудованием и жилую;
- Объединение ванной и туалета в единый сан.узел;
- Устройство зашивки инсталляции в сан.узле.
Нами были разработаны следующие разделы проектной документации для согласования в исполкоме:
- АС - архитектурно-строительные решения.
