Перепланировка квартиры по ул. Авиационная, 21 в ЖК «Новая Боровая»
Пожелания заказчика:
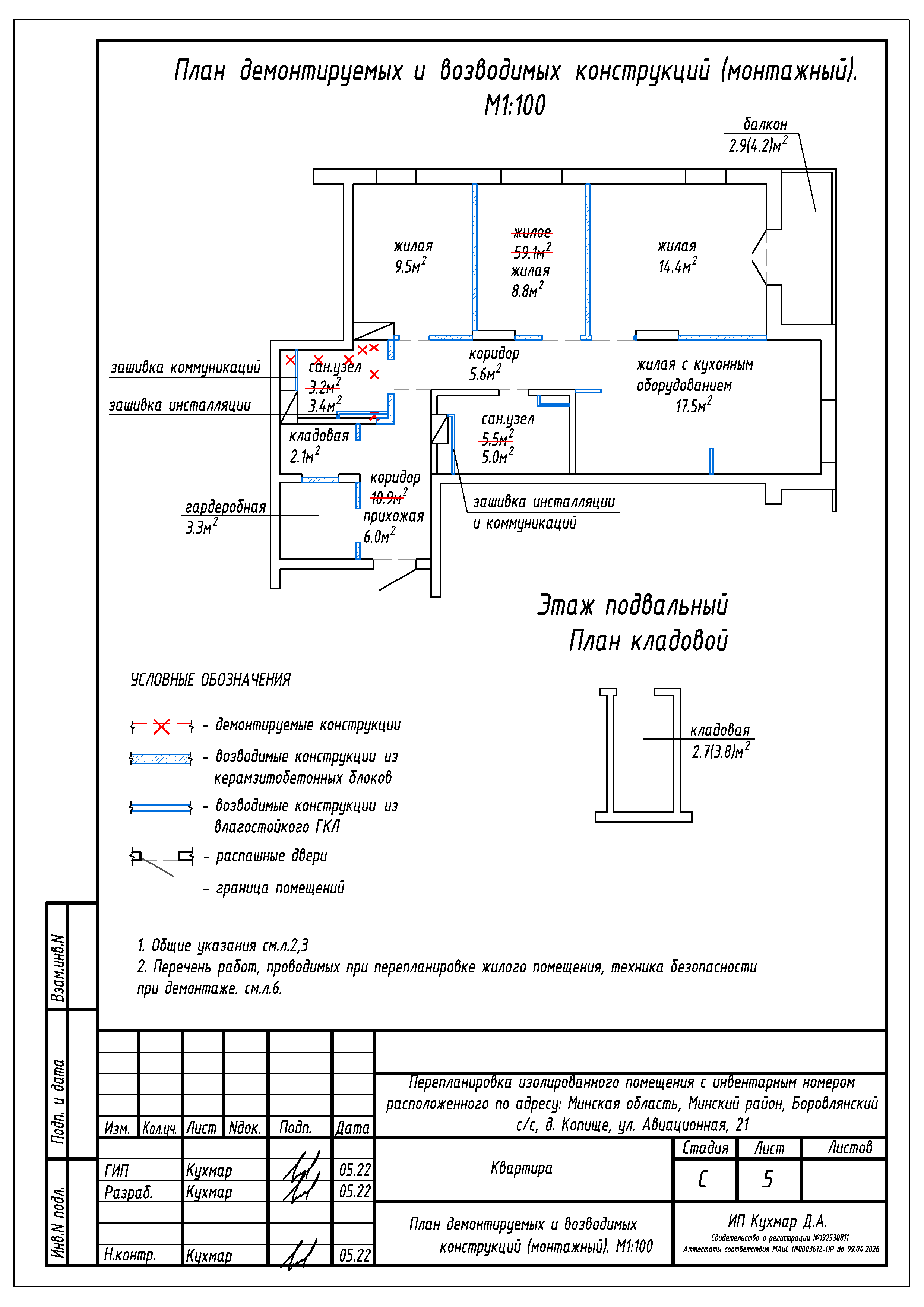
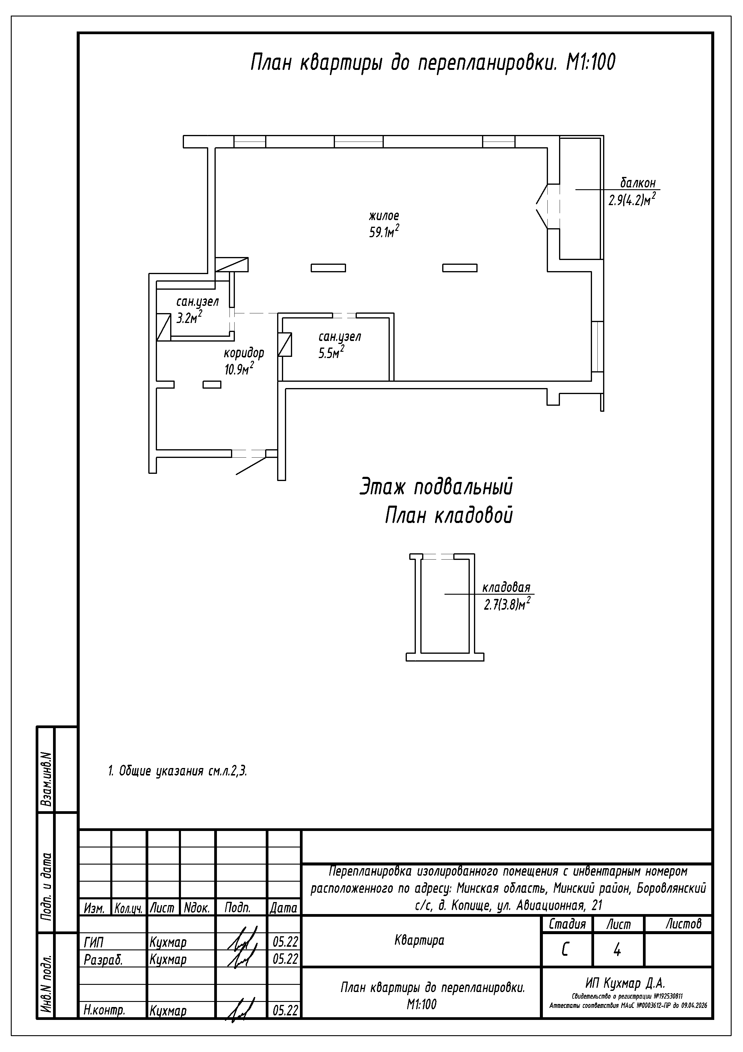
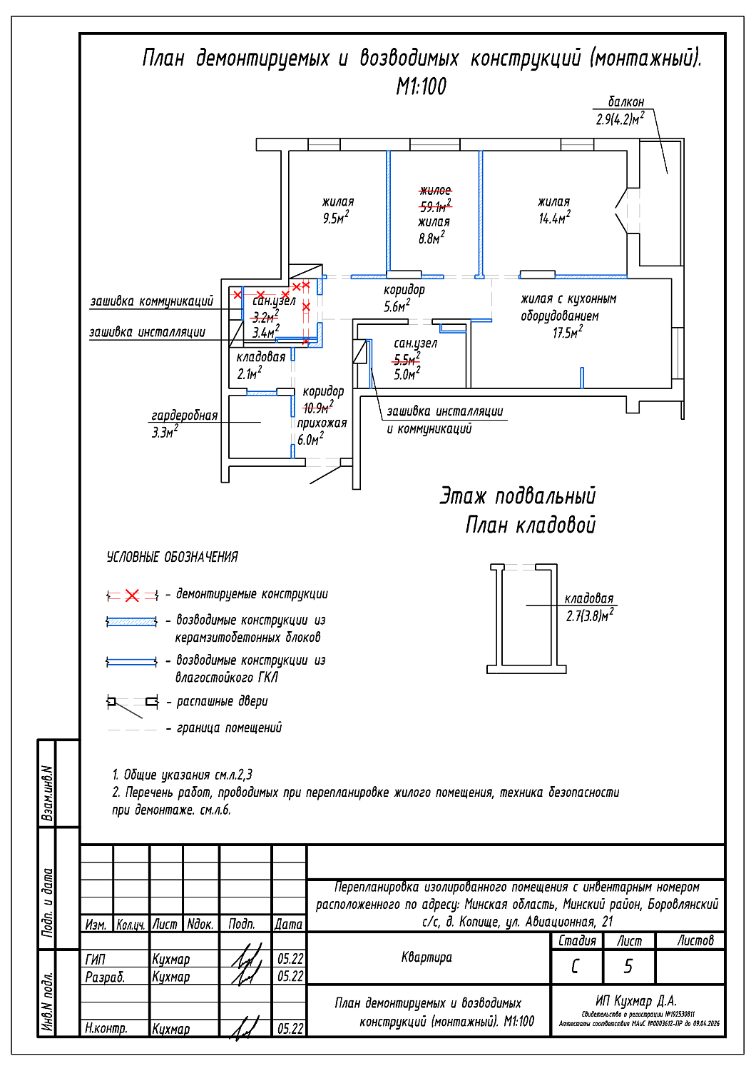
- Разделение общего жилого на жилое с кухонным оборудованием, три жилые, кладовую, коридор и гардеробную;
- Устройство зашивок инсталляции и коммуникаций в санузлах;
- Увеличение площади санузла за счёт площади коридора, но не более чем на 25%.
Нами были разработаны следующие разделы проектной документации для согласования в исполкоме:
- АС - архитектурно-строительные решения.
