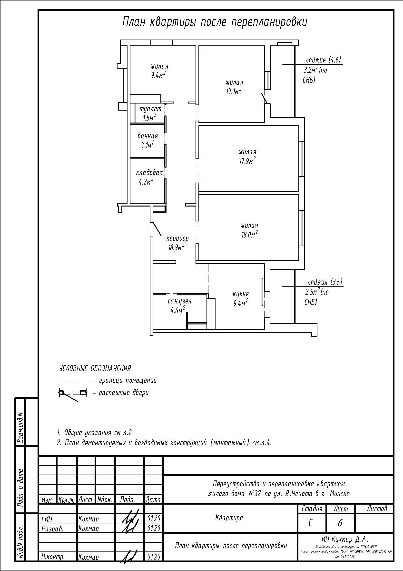
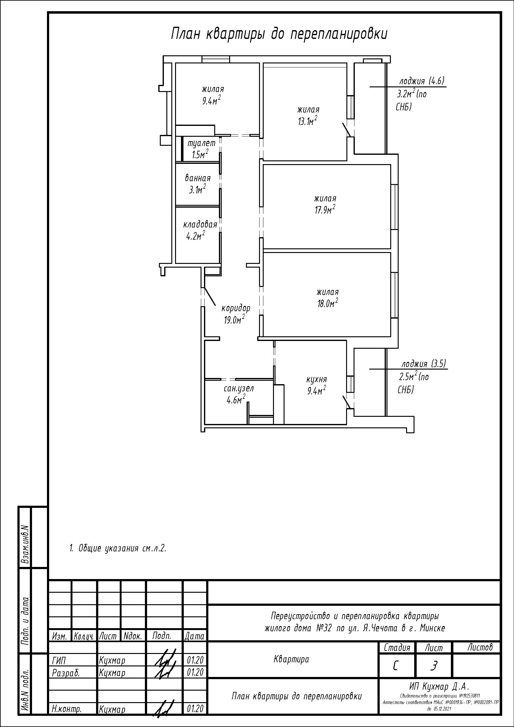
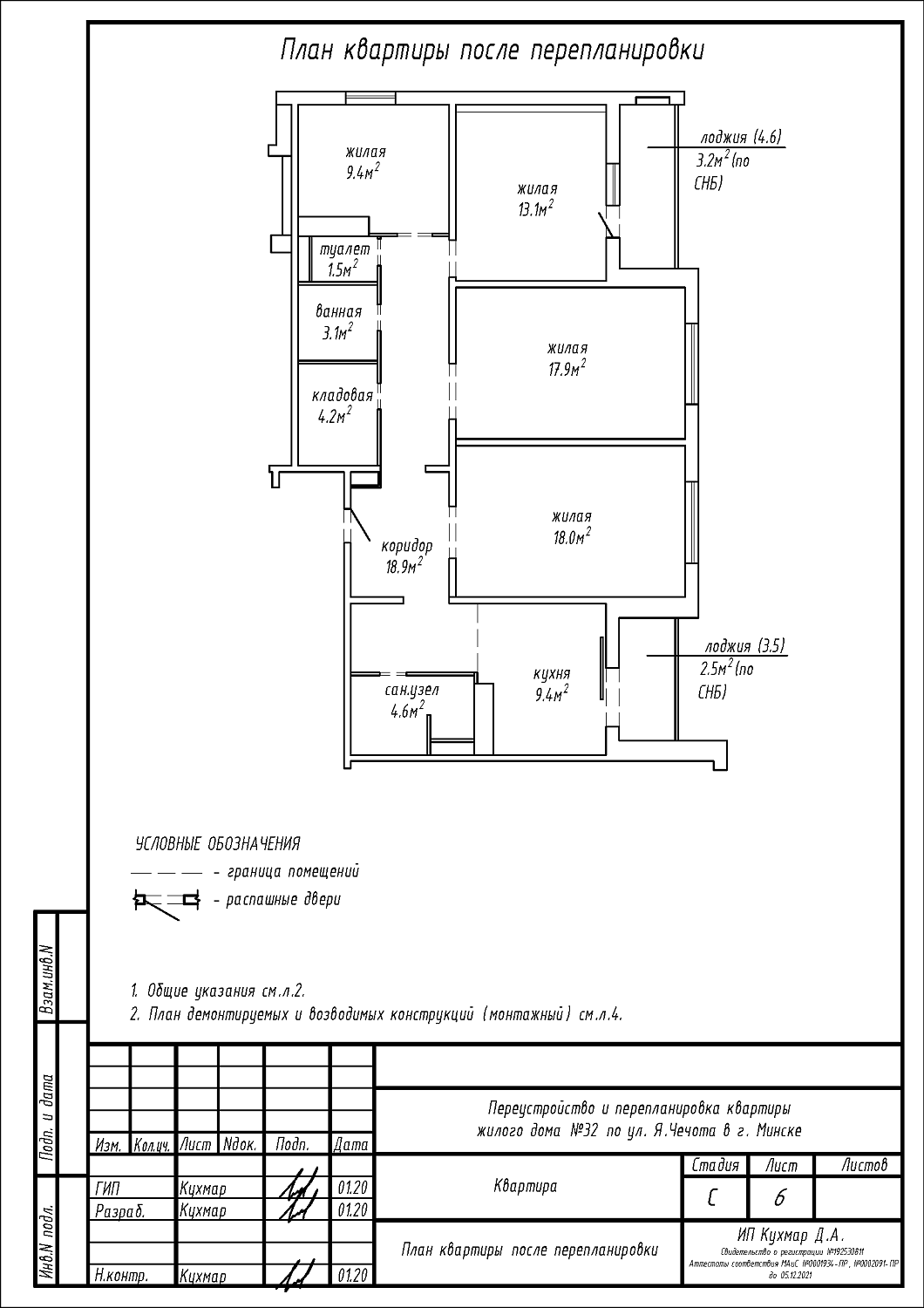
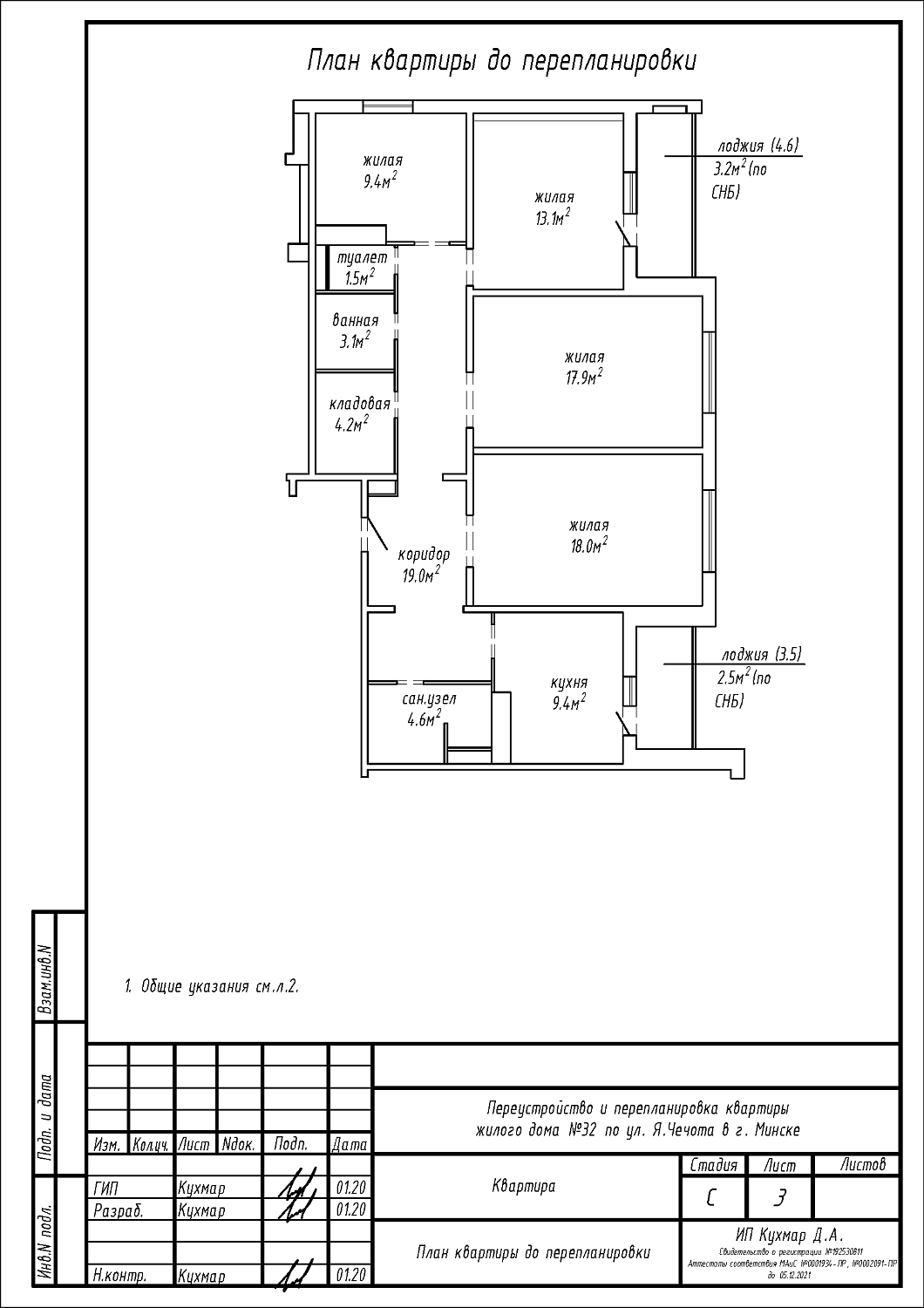
Перепланировка квартиры по ул. Яна Чечота, 32 в г.Минске
Пожелания заказчика:
- Демонтаж подоконной части стены между кухней и лоджией с установкой дверного блока;
- Демонтаж части стены в коридоре;
- Устройство перегородки в коридоре;
- Перенос отопительного прибора.
Нами были разработаны следующие разделы проектной документации для согласования в исполкоме:
- АС - архитектурно-строительные решения;
- ОВ - отопление и вентиляция.
