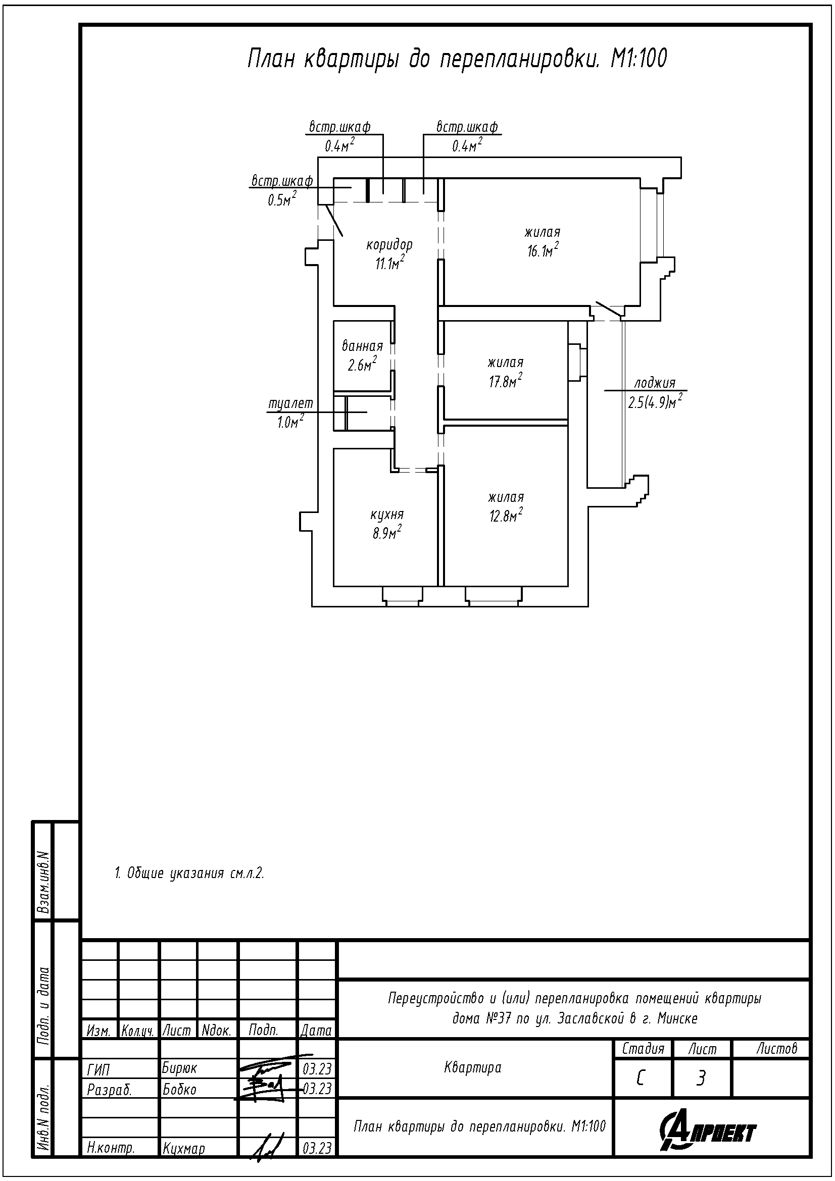
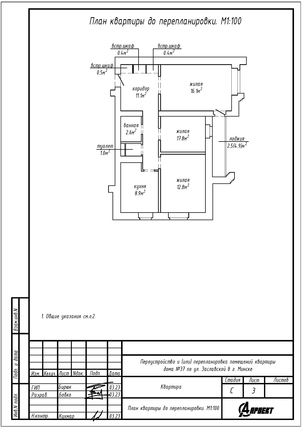
Перепланировка квартиры по ул. Заславская, 37
Пожелания заказчика:
- Расширение дверного проёма между жилой и коридором;
- Демонтаж встроенных шкафов;
- Объединение ванной и туалета в единый санузел;
- Смена направления открывания входной двери;
- Демонтаж перегородок между кухней и коридором.
Нами были разработаны следующие разделы проектной документации для согласования в исполкоме:
- АС - архитектурно-строительные решения.
