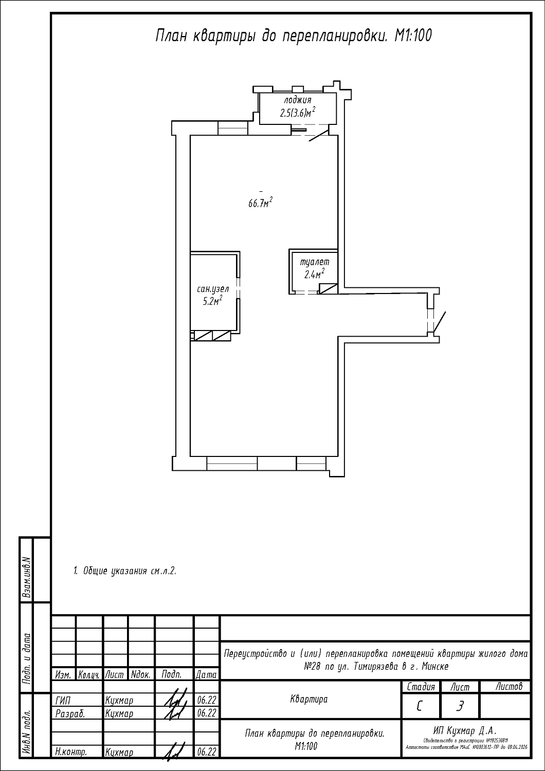
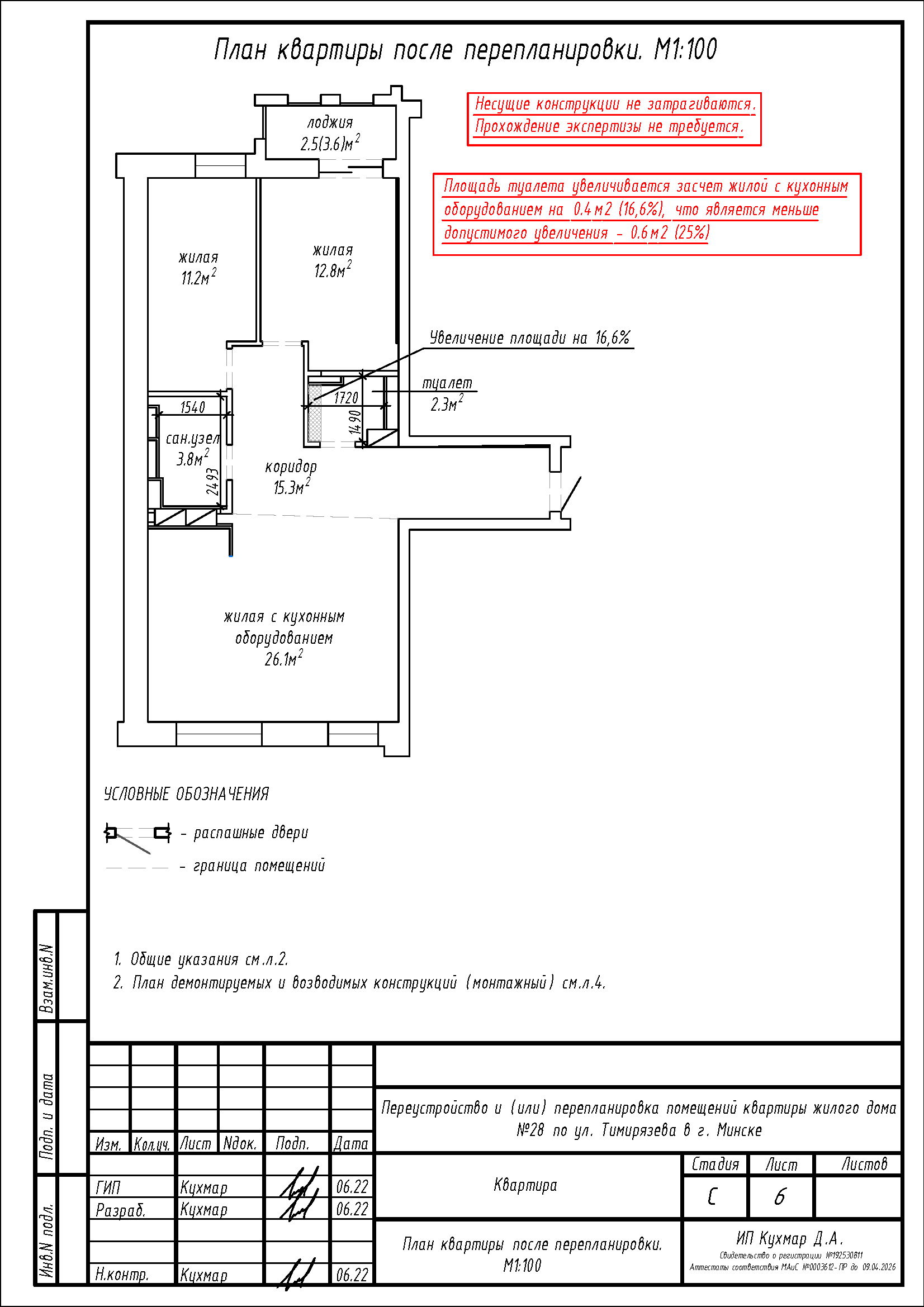
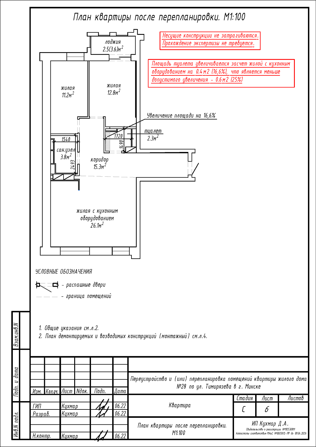
Перепланировка квартиры по ул. Тимирязева, 28 в ЖК «Комфорт Парк»
Пожелания заказчика:
- Замена дверного блока в стене между жилой с кухонным оборудованием и лоджией;
- Устройство жилой с кухонным оборудованием, двух жилых, коридора;
- Изменение габаритов существующего санузла;
- Изменение габаритов туалета.
- АС - архитектурно-строительные решения.
