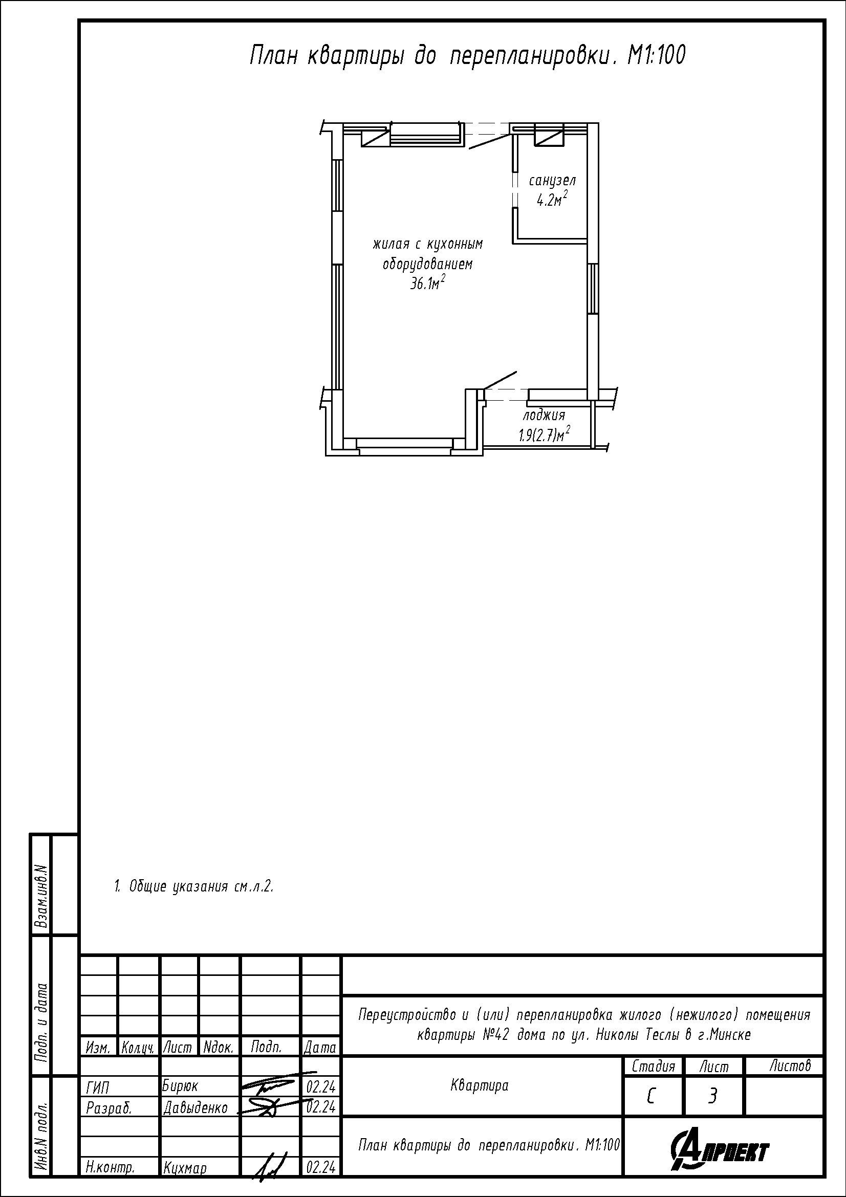
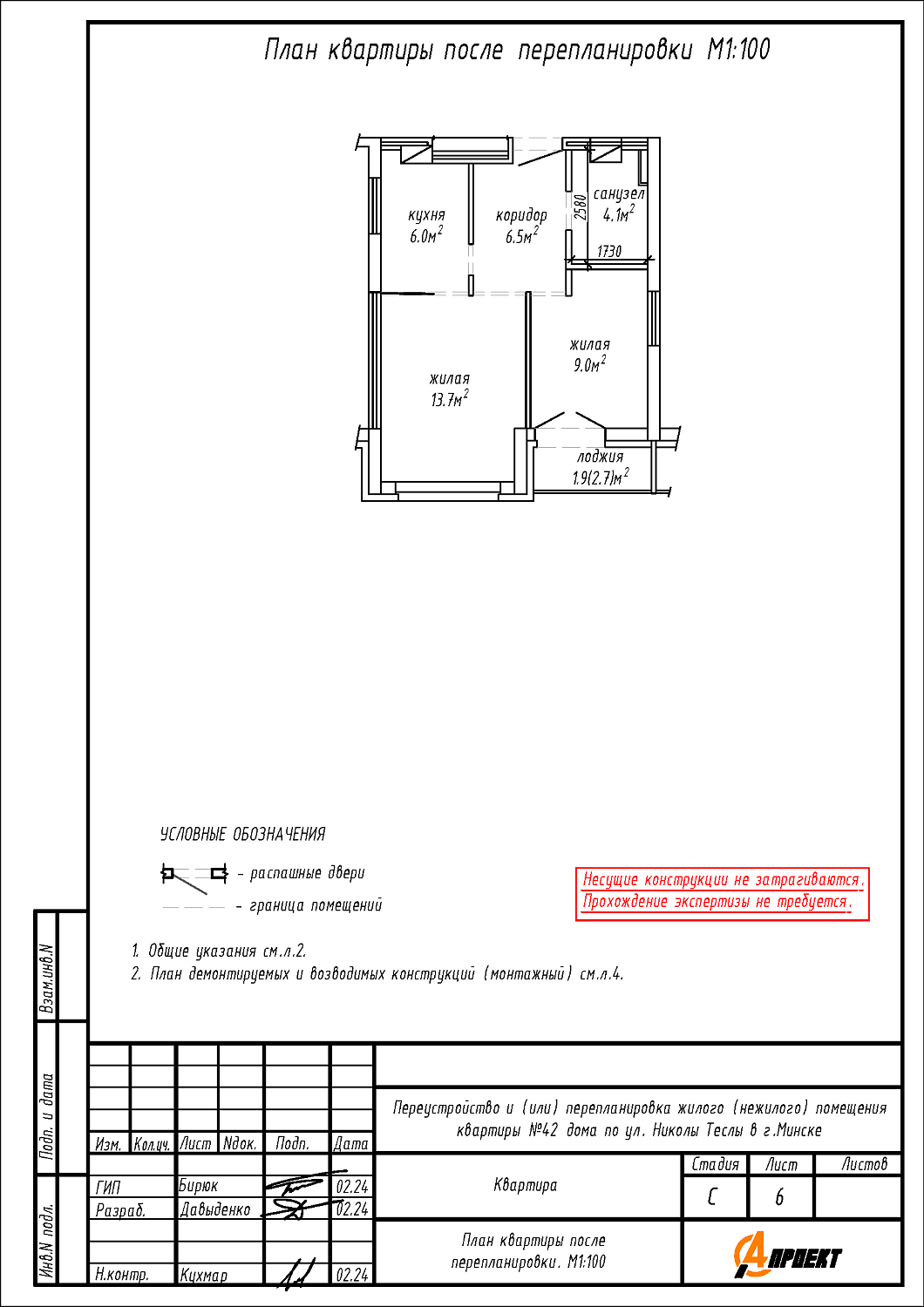
Перепланировка квартиры по ул. Николы Теслы, 15 в ЖК «Минск Мир»
Пожелания заказчика:
- Разделение общей жилой с кухонным оборудованием на жилую с кухонным оборудованием, жилую, кухню и коридор;
- Устройство зашивки из ГКЛ в санузле;
- Замена и перенос отопительного прибора.
Нами были разработаны следующие разделы проектной документации для согласования в исполкоме:
- АС - архитектурно-строительные решения;
- ОВ - отопление и вентиляция.
