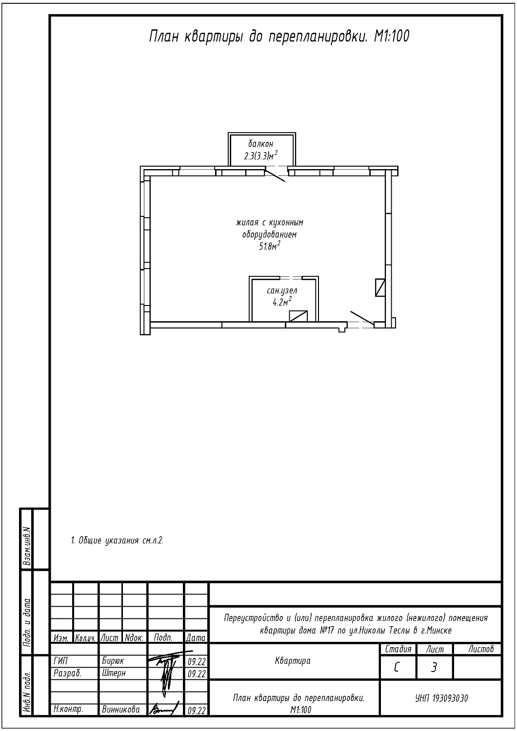
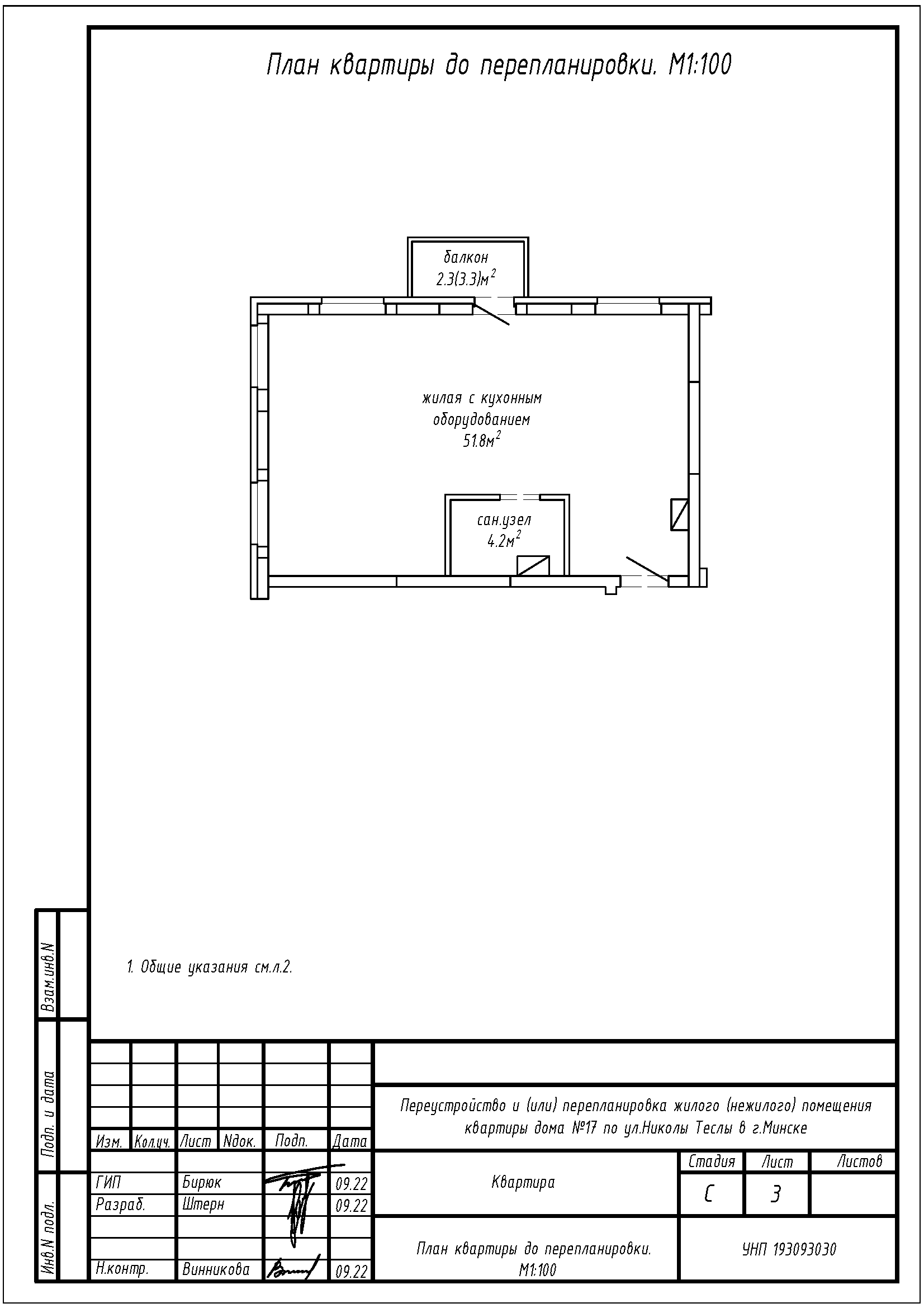
Перепланировка квартиры по ул. Теслы, 17 в ЖК «Минск Мир»
Пожелания заказчика:
- Разделение жилой с кухонным оборудованием на жилую с кухонным оборудованием, две жилые и коридор;
- Устройство туалета на части площади санузла;
- Устройство ванной на части площади санузла с увеличением, но не более чем на 25%.
Нами были разработаны следующие разделы проектной документации для согласования в исполкоме:
- АС - архитектурно-строительные решения.
