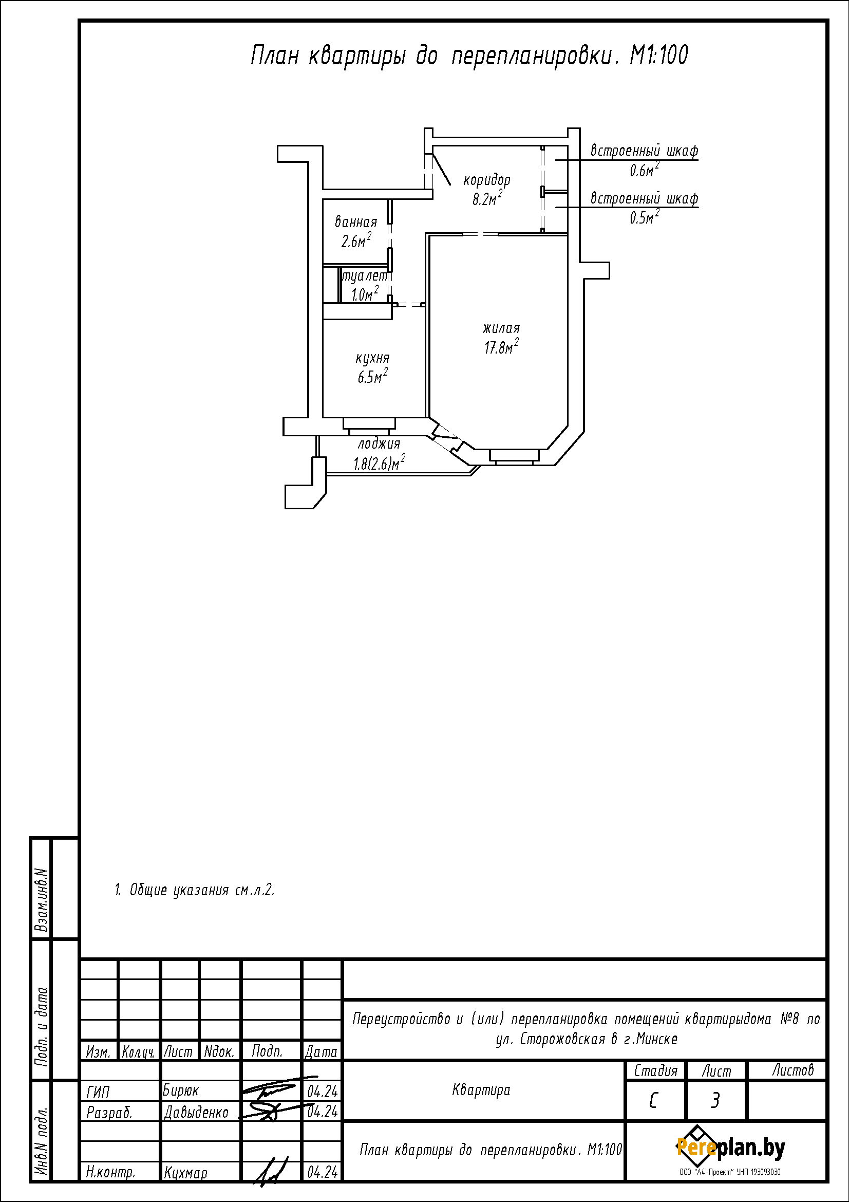
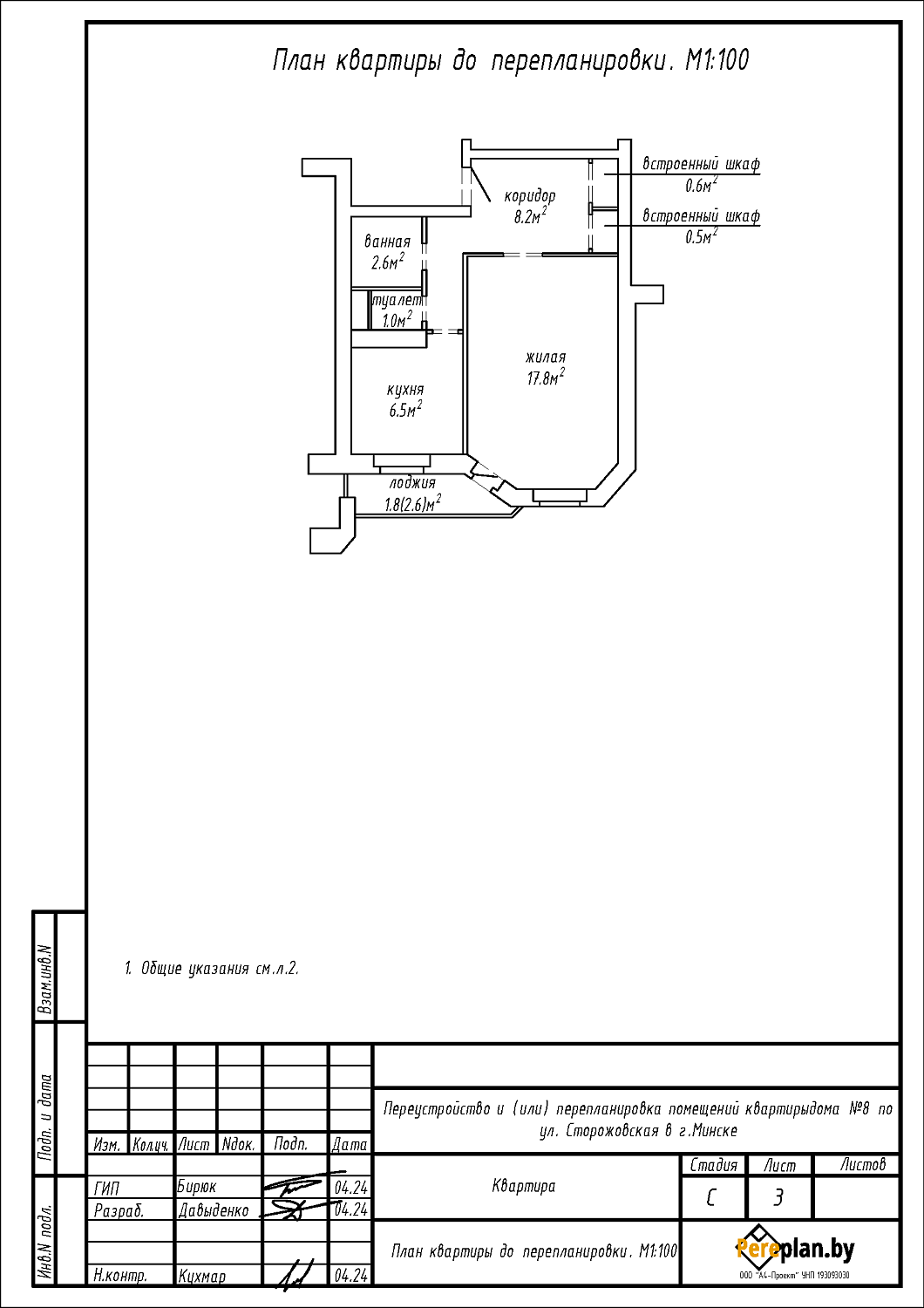
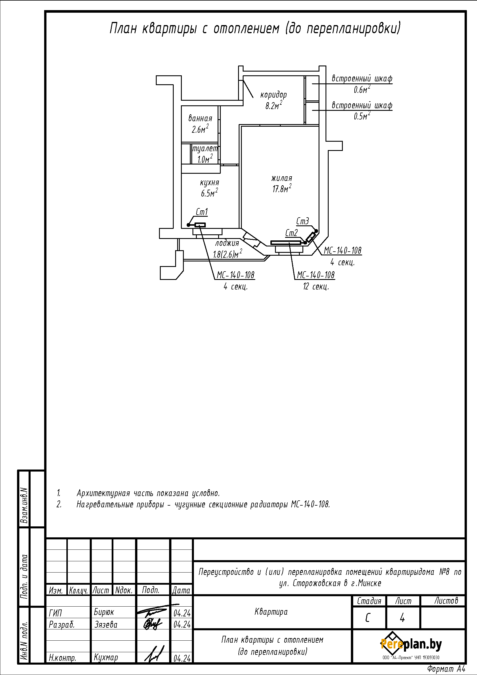
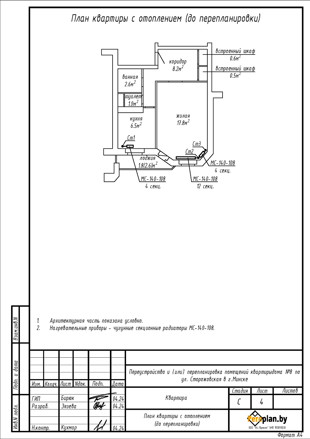
Перепланировка квартиры по ул. Сторожовская, 8 в г. Минске
Пожелания заказчика:
- Демонтаж части перегородок между коридором, ванной, туалетом, кухней, жилой комнатой площадью 17,8 кв.м и двумя встроенными шкафами с последующим устройством новых частей перегородок;
- Демонтаж оконного блока с подоконной частью между кухней и лоджией с последующим устройством дверного блока без создания отапливаемого помещения;
- Закладка дверного блока между жилой комнатой площадью 17,8 кв.м и лоджией;
- Замена и перенос отопительных приборов.
Нами были разработаны следующие разделы проектной документации для согласования в исполкоме:
- АС - архитектурно-строительные решения.
- ОВ - отопление и вентиляция.


