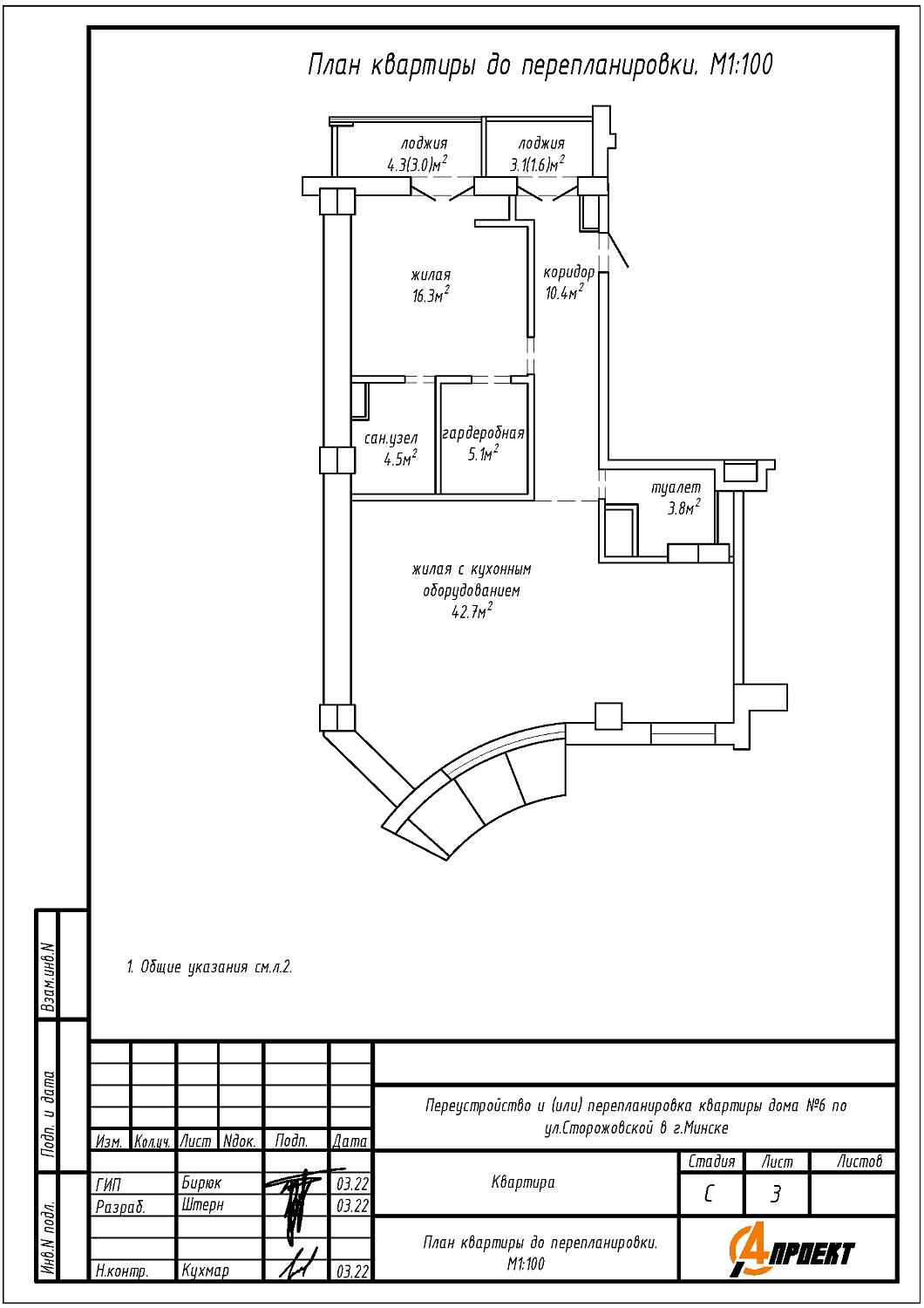
Перепланировка квартиры по ул. Сторожовская, 6 в г. Минске
Пожелания заказчика:
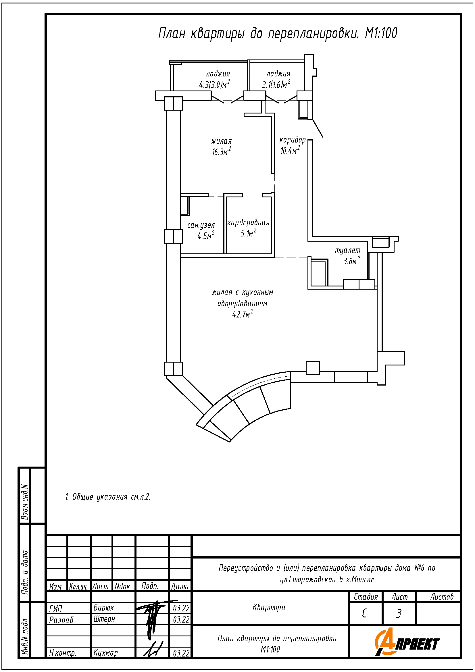
- Увеличение площади санузла за счёт площади гардеробной;
- Изменение площади гардеробной;
- Устройство дверного проёма между гардеробом и коридором, санузлом и жилой;
- Устройство кладовой на части площади туалета;
- Изменение площади жилой и коридора;
- Смена направления открывания входной двери;
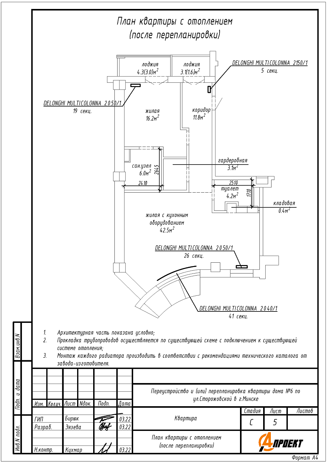
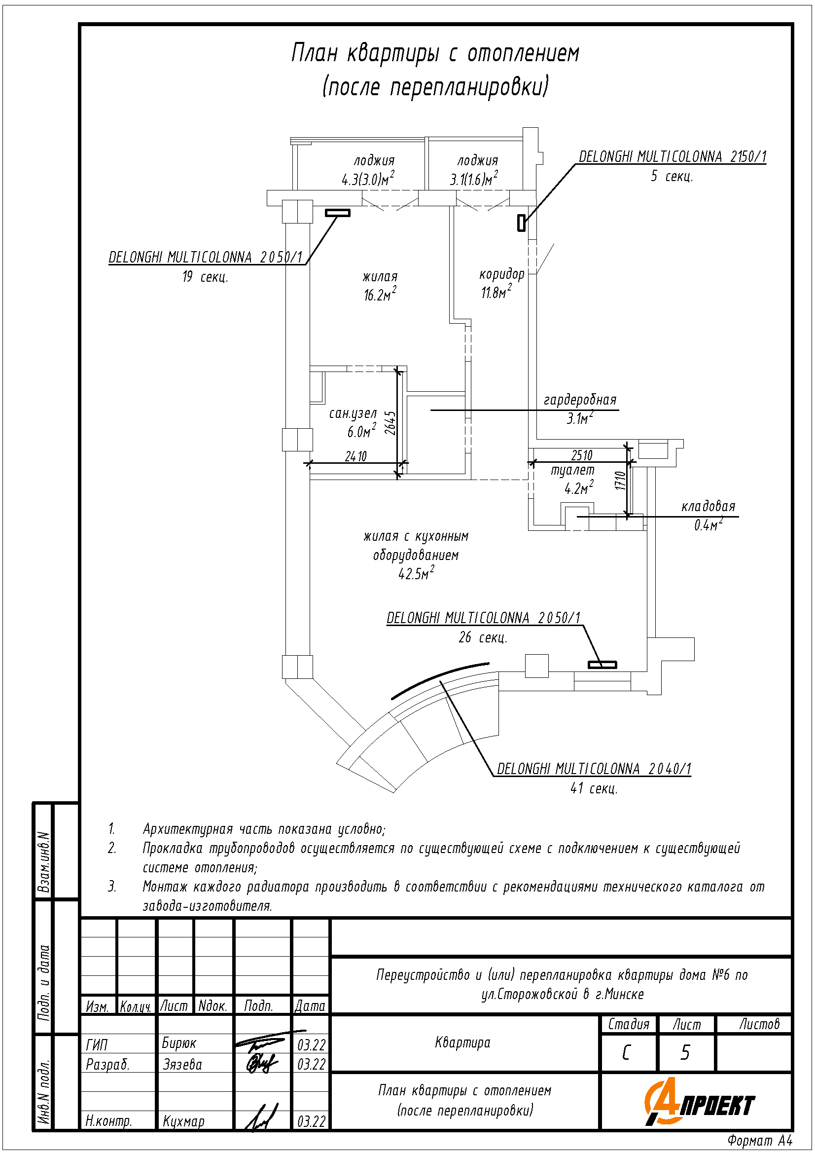
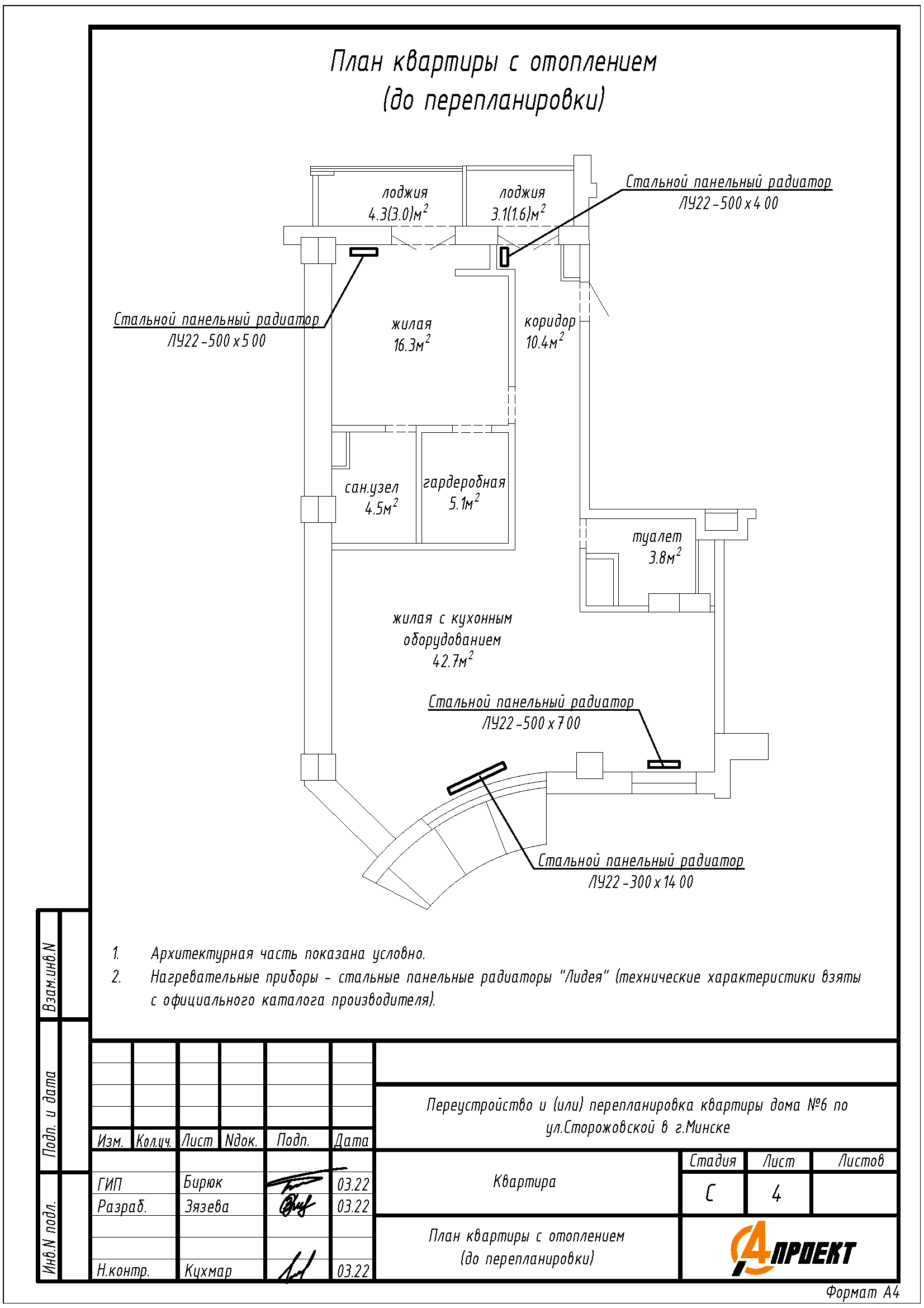
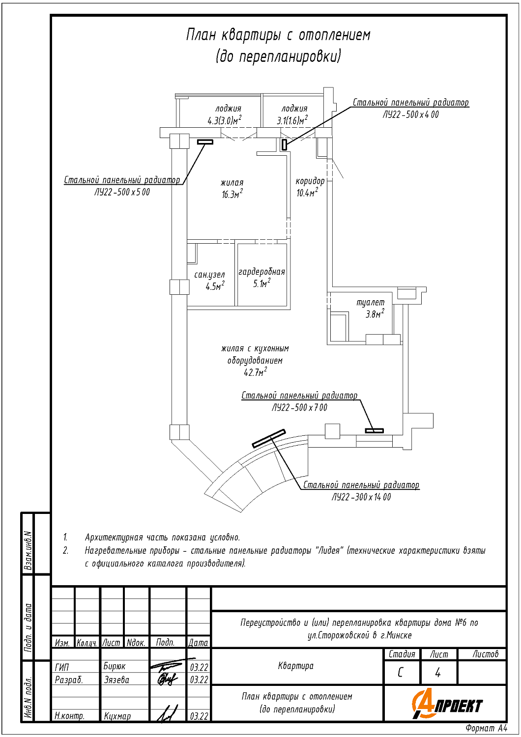
- Перенос и замена отопительных приборов.
Нами были разработаны следующие разделы проектной документации для согласования в исполкоме:
- АС - архитектурно-строительные решения;
- ОВ - отопление и вентиляция.
