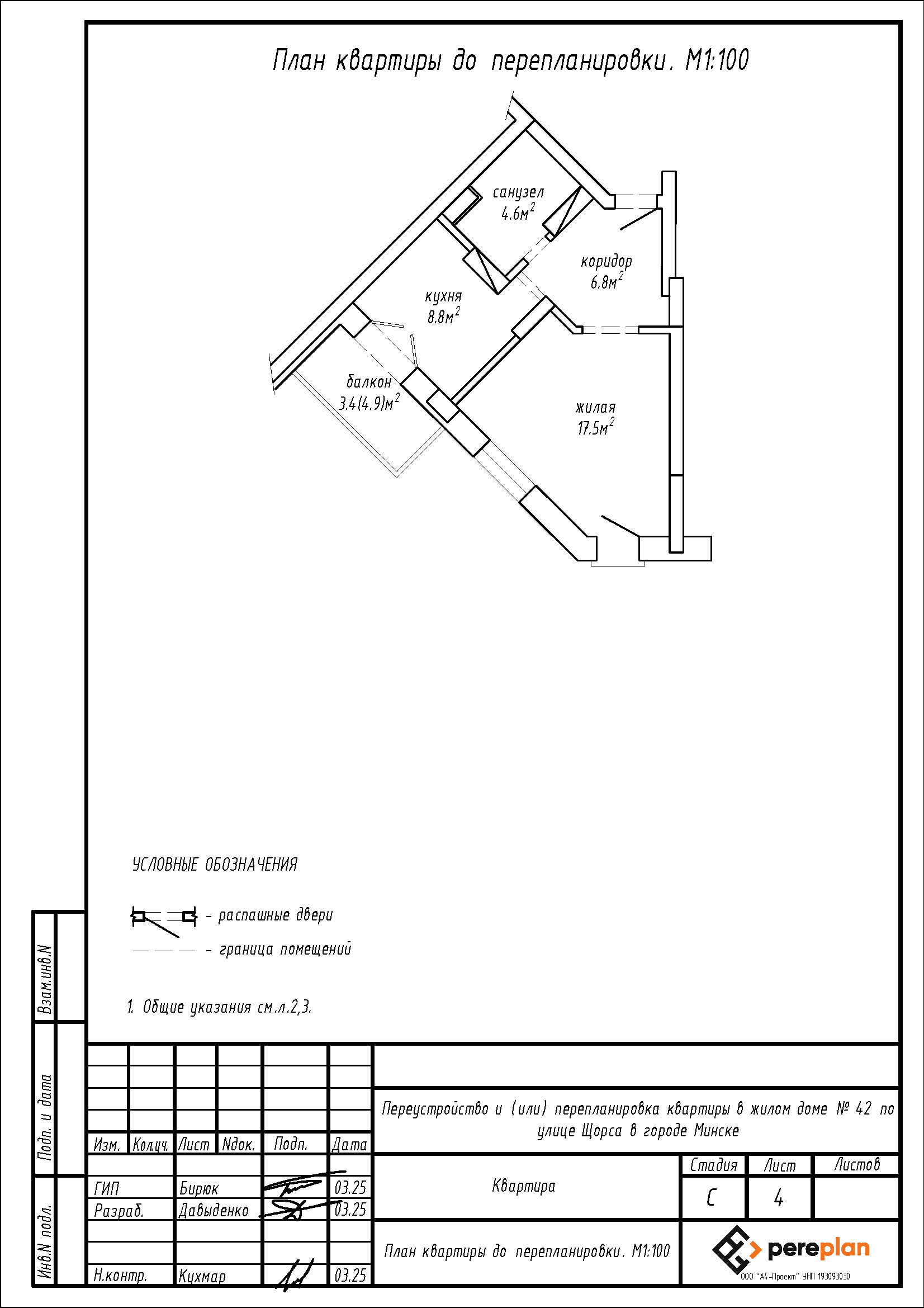
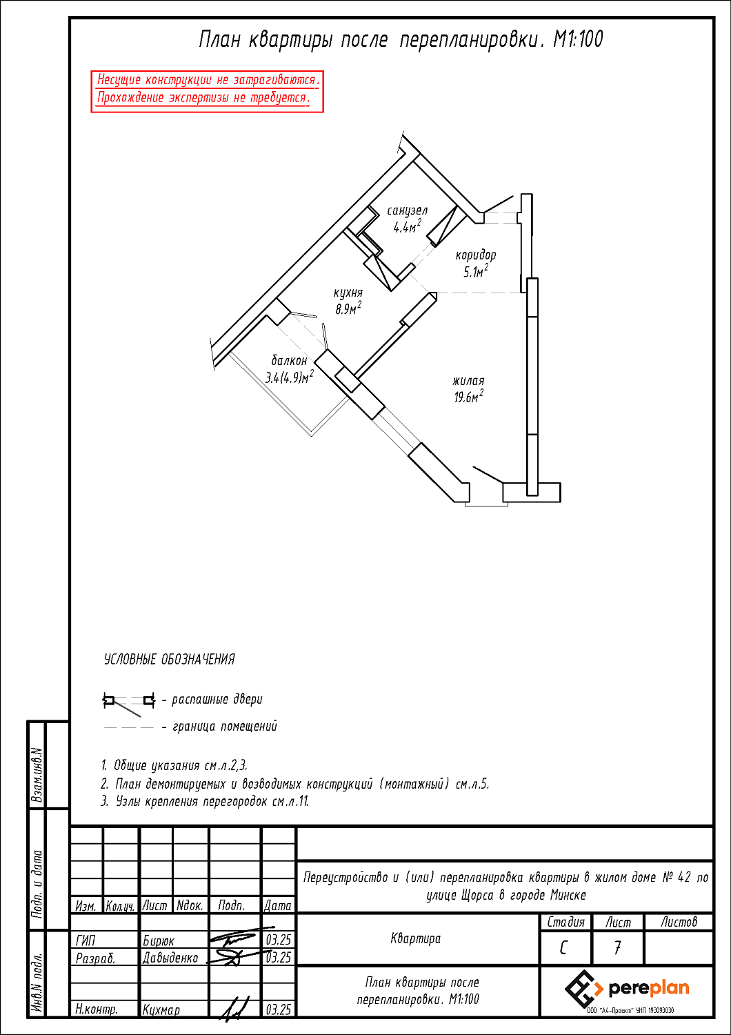
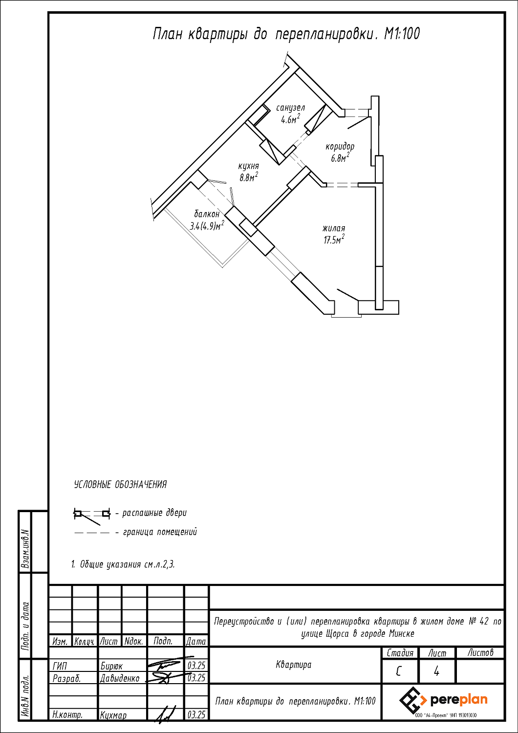
Перепланировка квартиры по ул. Щорса, 42 в г. Минске
Пожелания заказчика:
- Демонтаж перегородок с дверными проемами между жилой и коридором, между кухней и коридором;
- Расширение дверного проема между санузлом и коридором;
- Демонтаж зашивки ГКЛ с последующим устройством зашивок ГКЛ на части площади санузла;
- Замена дверного блока входной двери со сменой направления открывания;
- Перенос отопительного прибора и смена подключения отопительных приборов.
Нами были разработаны следующие разделы проектной документации для согласования в исполкоме:
- АС - архитектурно-строительные решения;
- ОВ - отопление и вентиляция.
