Перепланировка квартиры по ул. Ржавецкой, 45 в ЖК «Монтерей»
Пожелания заказчика:
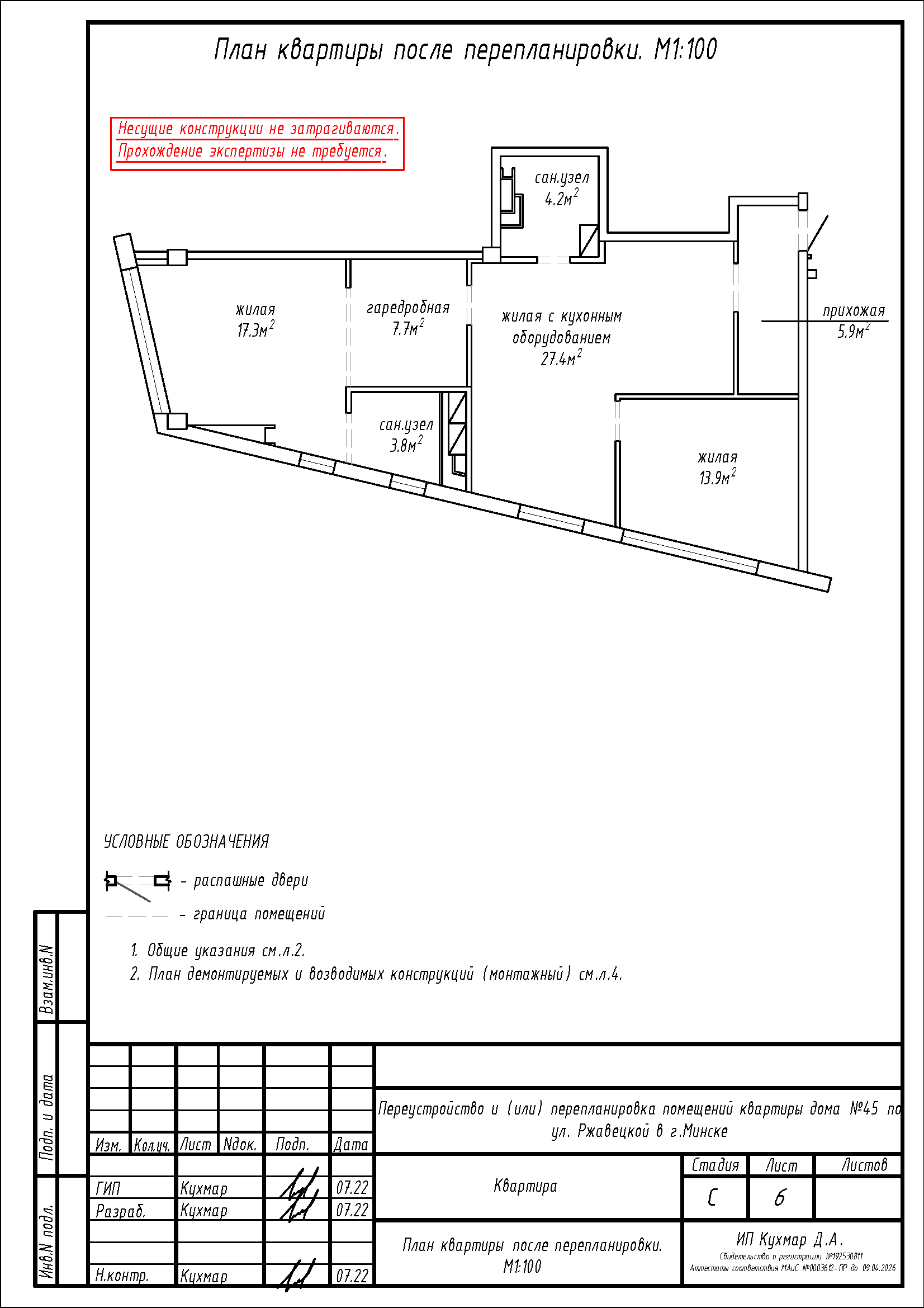
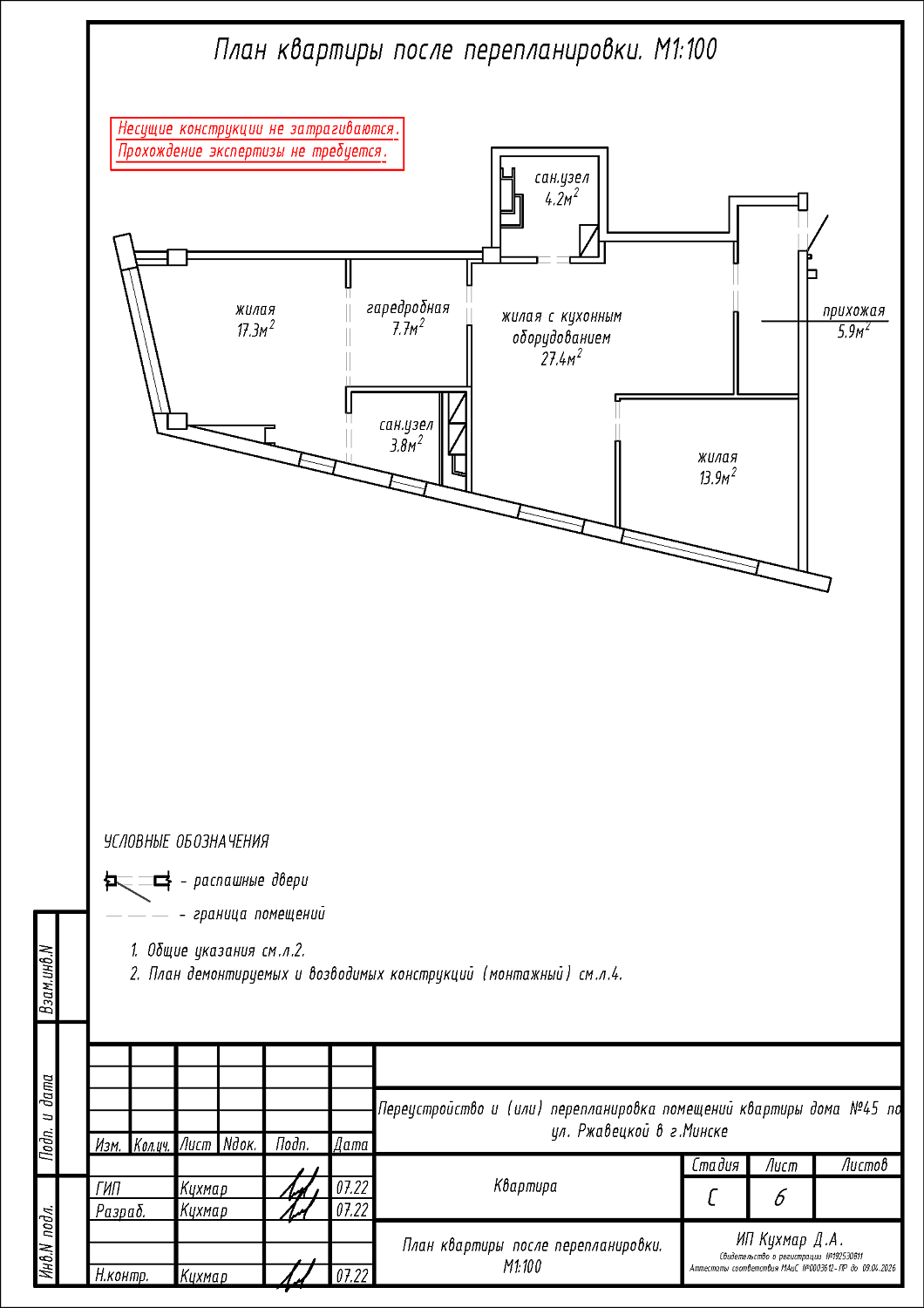
- Разделение общей жилой с кухонным оборудованием на жилую с кухонным оборудованием, жилую и прихожую;
- Разделение жилой на жилую и гардеробную;
- Закладка дверного проёма в перегородке между санузлом и жилой, с целью устройства нового дверного проёма;
- Устройство зашивок из ГКЛ на части площади санузлов;
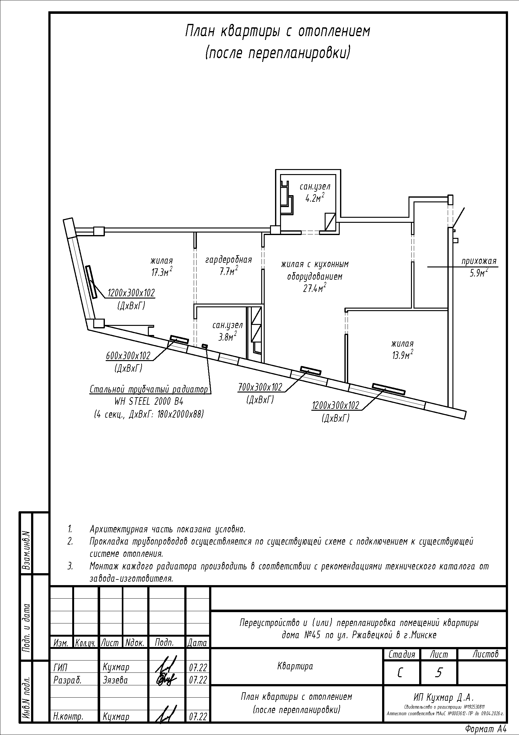
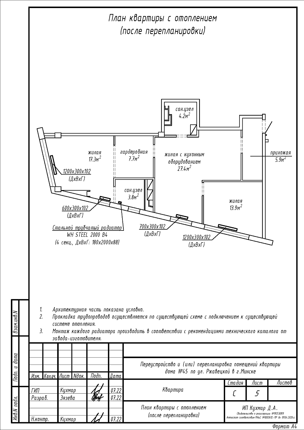
- Перенос и замена отопительного прибора.
- АС - архитектурно-строительные решения;
- ОВ - отопление и вентиляция.
