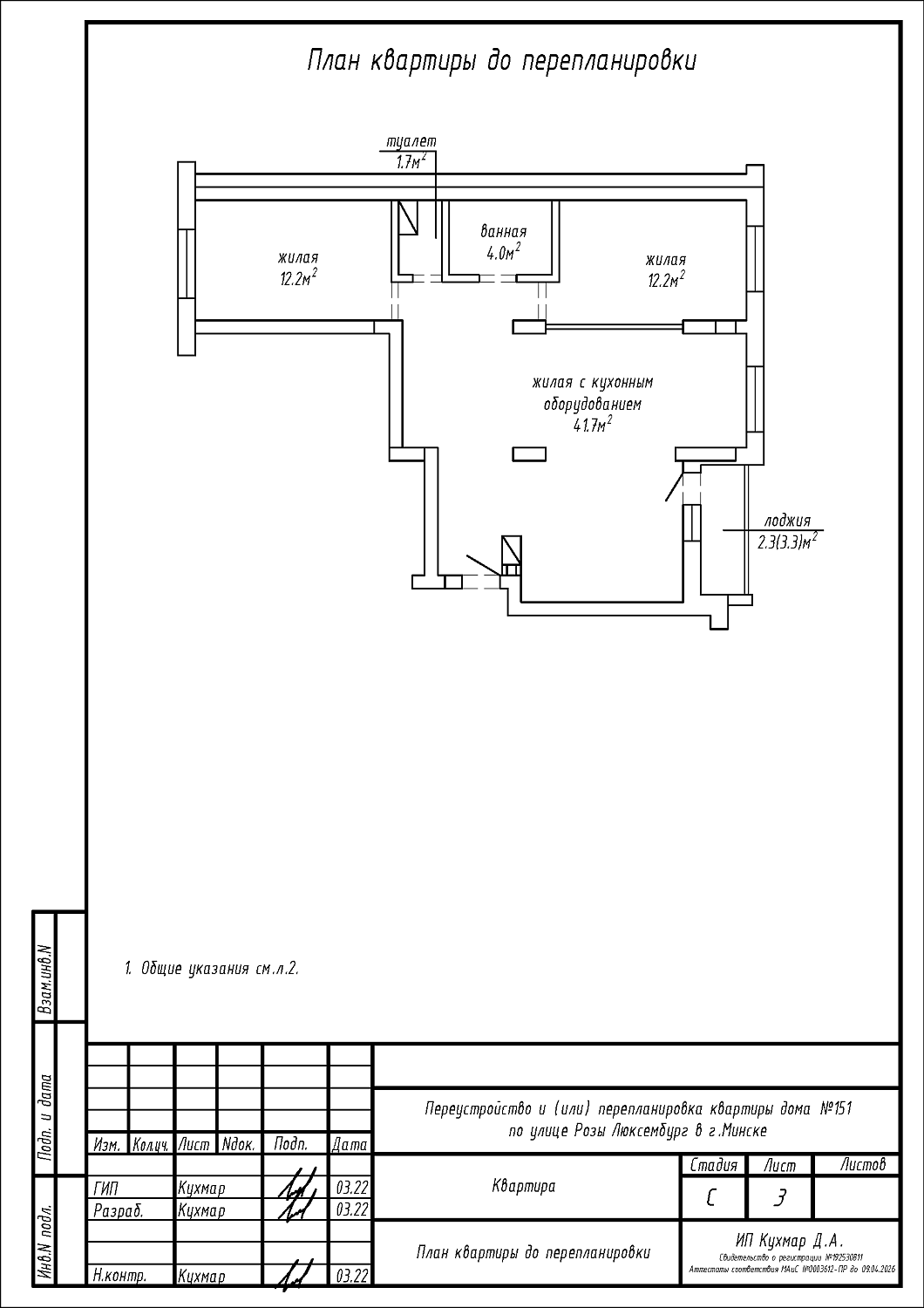
Перепланировка квартиры по ул. Розы Люксембург, 151 в г.Минске
Пожелания заказчика:
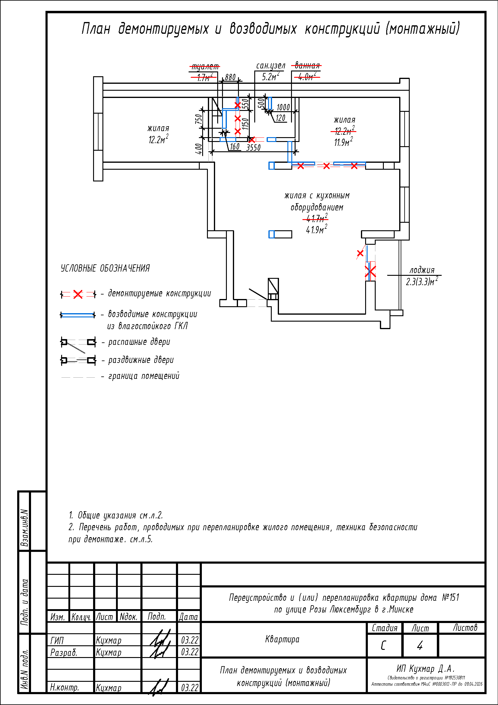
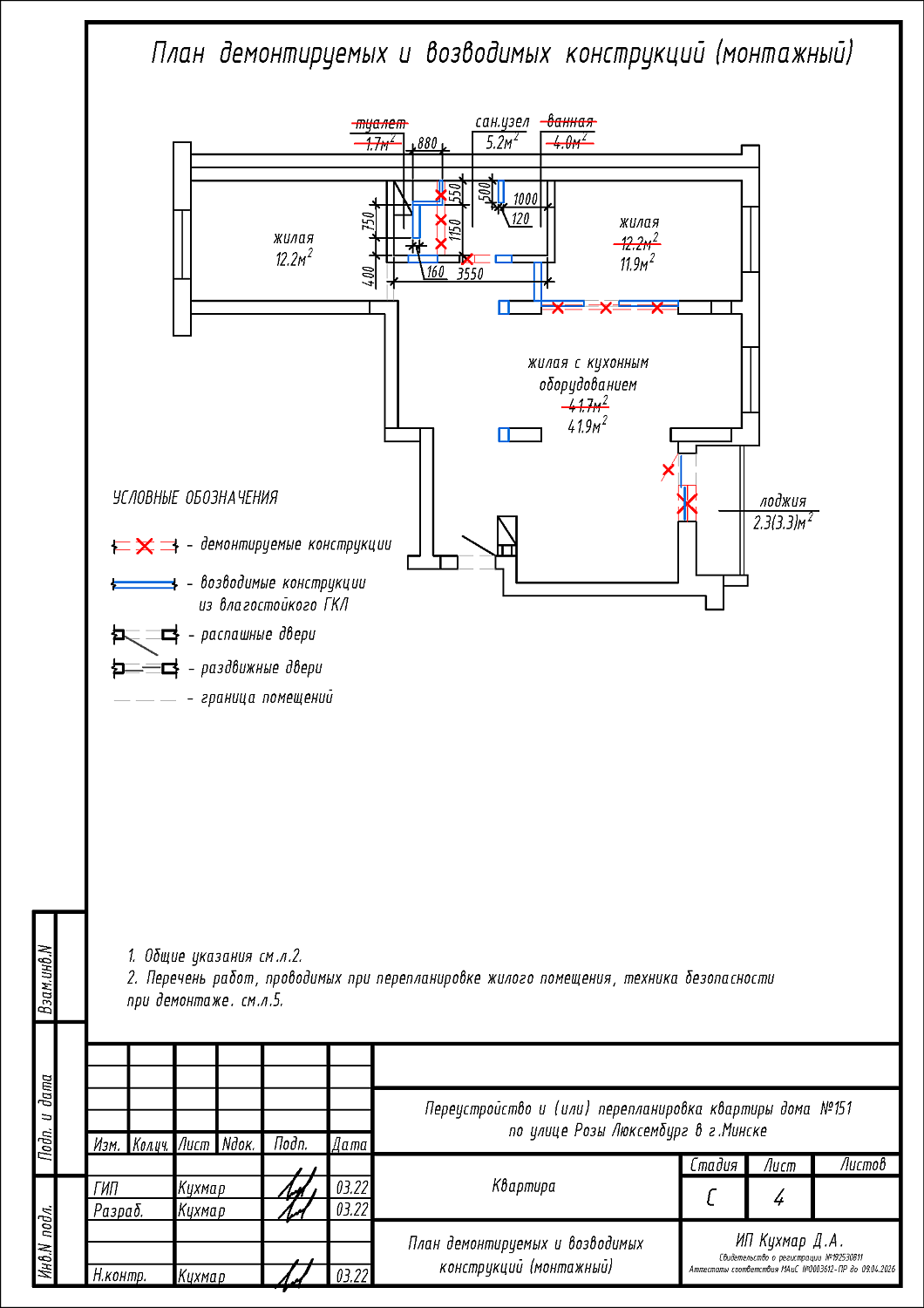
- Демонтаж подоконной части стены между жилой с кухонным оборудованием и лоджией с установкой дверного блока;
- Демонтаж перегородки между сан.узлами, между жилой комнатой и жилой с кухонным оборудованием;
- Перенос дверного проема вдоль перегородки между ванной и жилой с кухонным оборудованием, с целью устройства сан.узла на площади сан.узлов;
- Устройство перегородок в сан.узлах;
- Устройство перегородки в жилой с кухонным оборудованием, перегородки с дверным проемом в жилой, с целью устройства жилой комнаты на части площади жилой комнаты, части площади жилой с кухонным оборудованием.
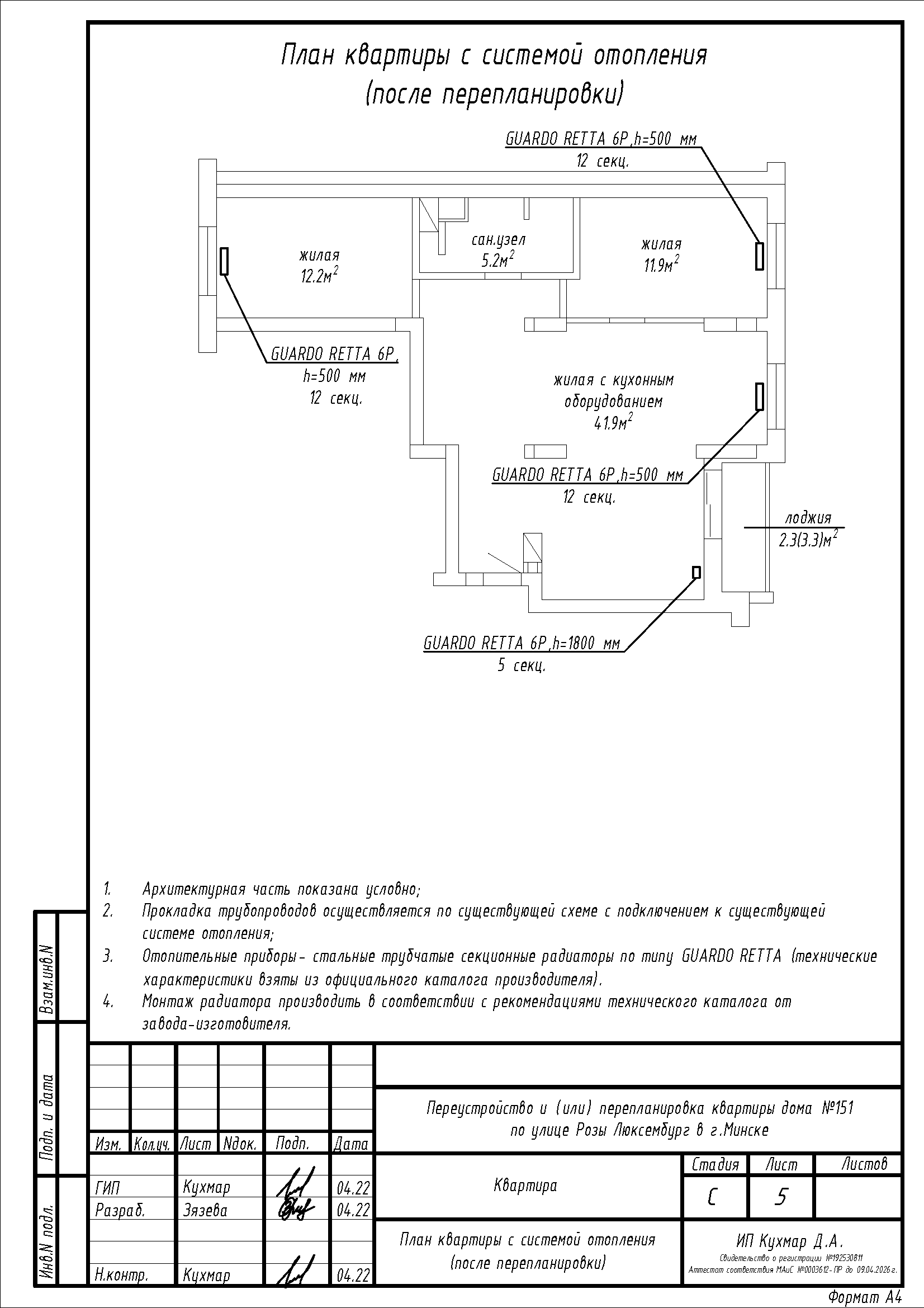
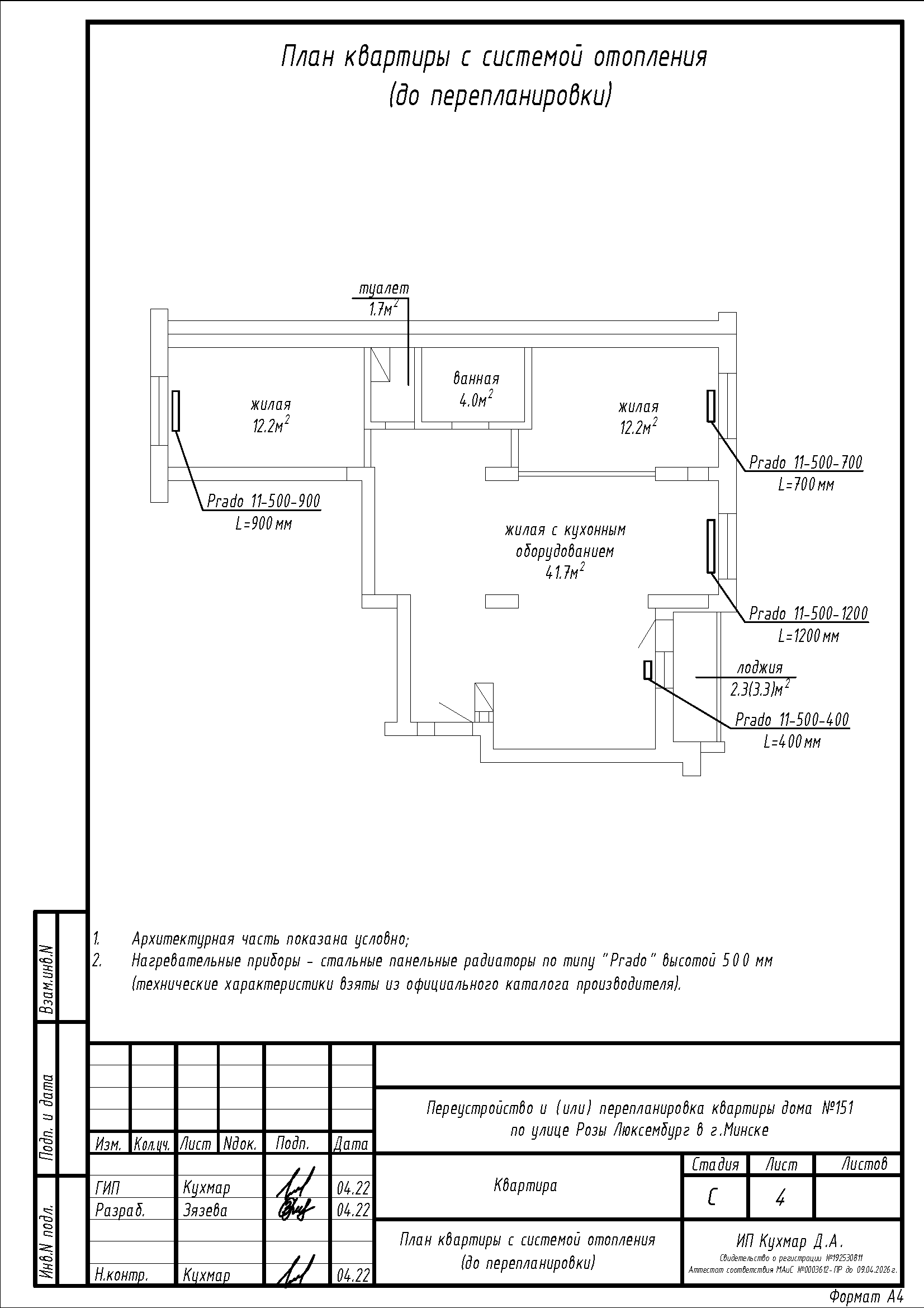
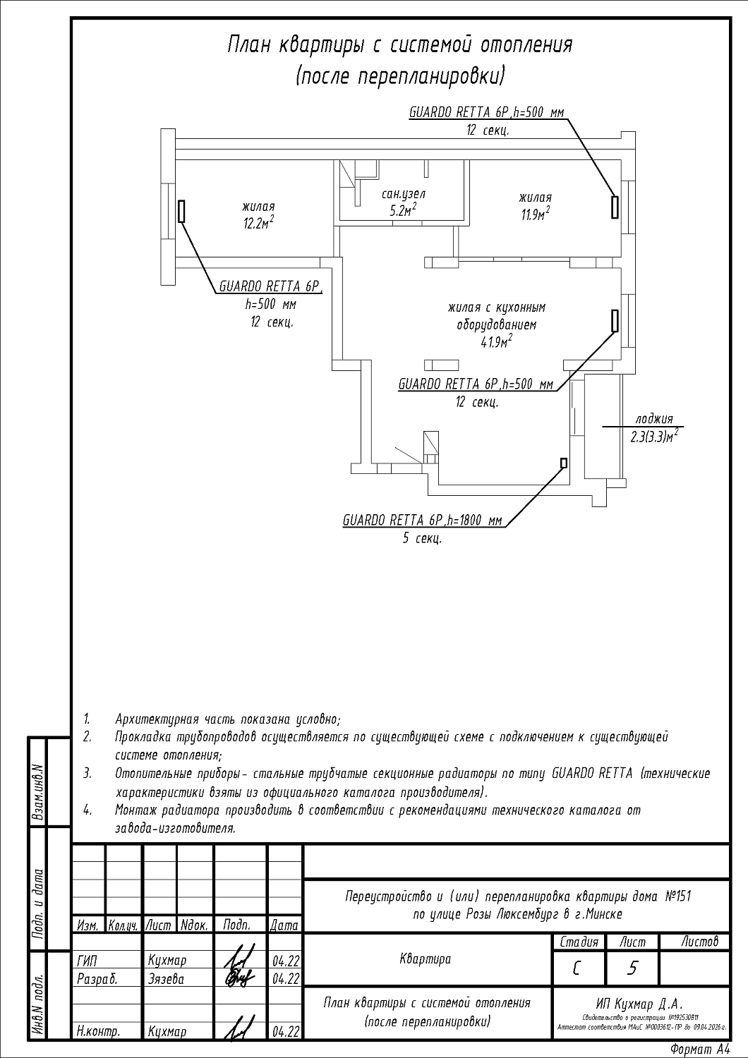
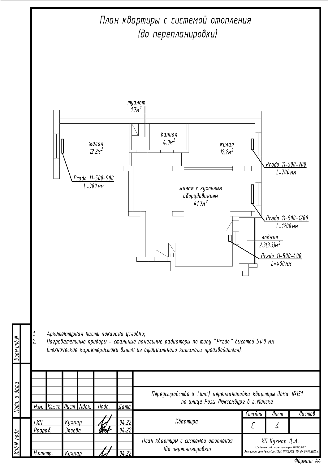
- Замена и перенос приборов отопления.
Нами были разработаны следующие разделы проектной документации для согласования в исполкоме:
- АС - архитектурно-строительные решения;
- ОВ - отопление и вентиляция.
