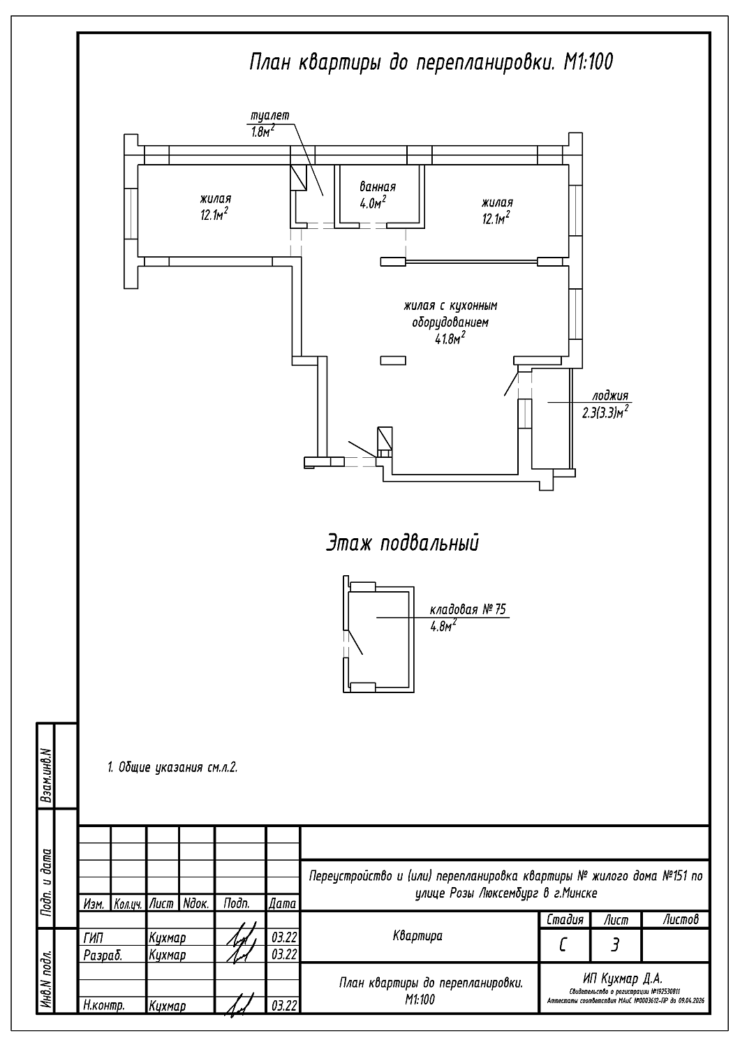
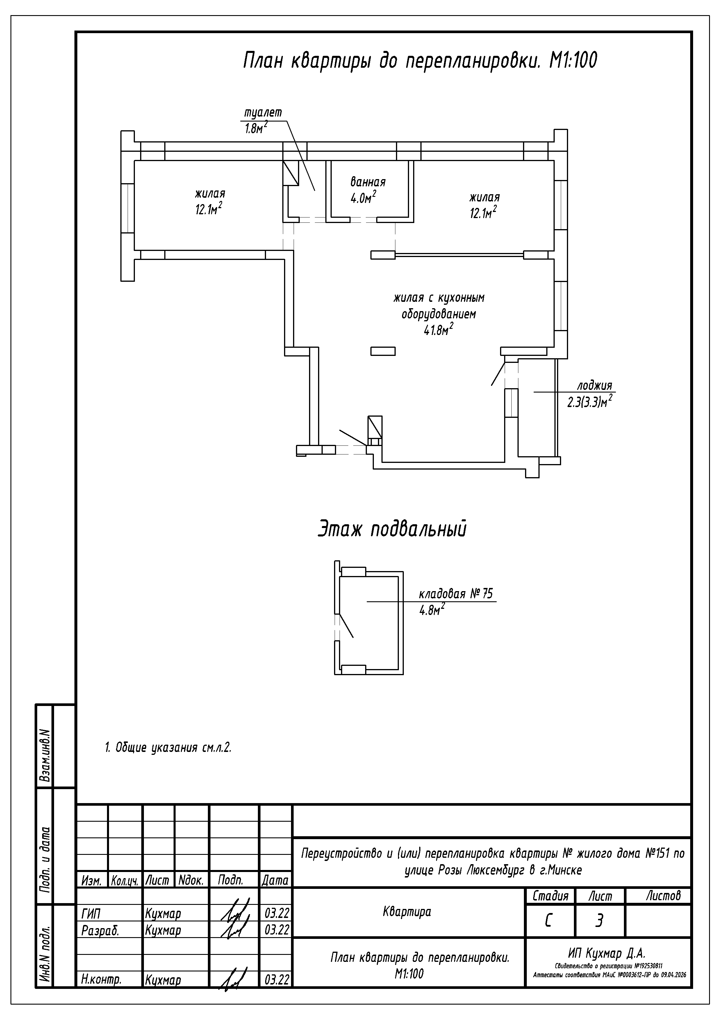
Перепланировка квартиры по ул. Розы Люксембург, 151 в г.Минске
Пожелания заказчика:
- Объединение ванной и туалета в единый санузел;
- Демонтаж подоконной части стены между жилой с кухонным оборудованием и лоджией с устройством дверного блока;
- Закладка дверного проёма в перегородке между туалетом и жилой с кухонным оборудованием;
- Демонтаж перегородки между жилой с кухонным оборудованием и жилой с целью устройства проёма;
- Замена и перенос приборов отопления.
Нами были разработаны следующие разделы проектной документации для согласования в исполкоме:
- АС - архитектурно-строительные решения;
- ОВ - отопление и вентиляция.
