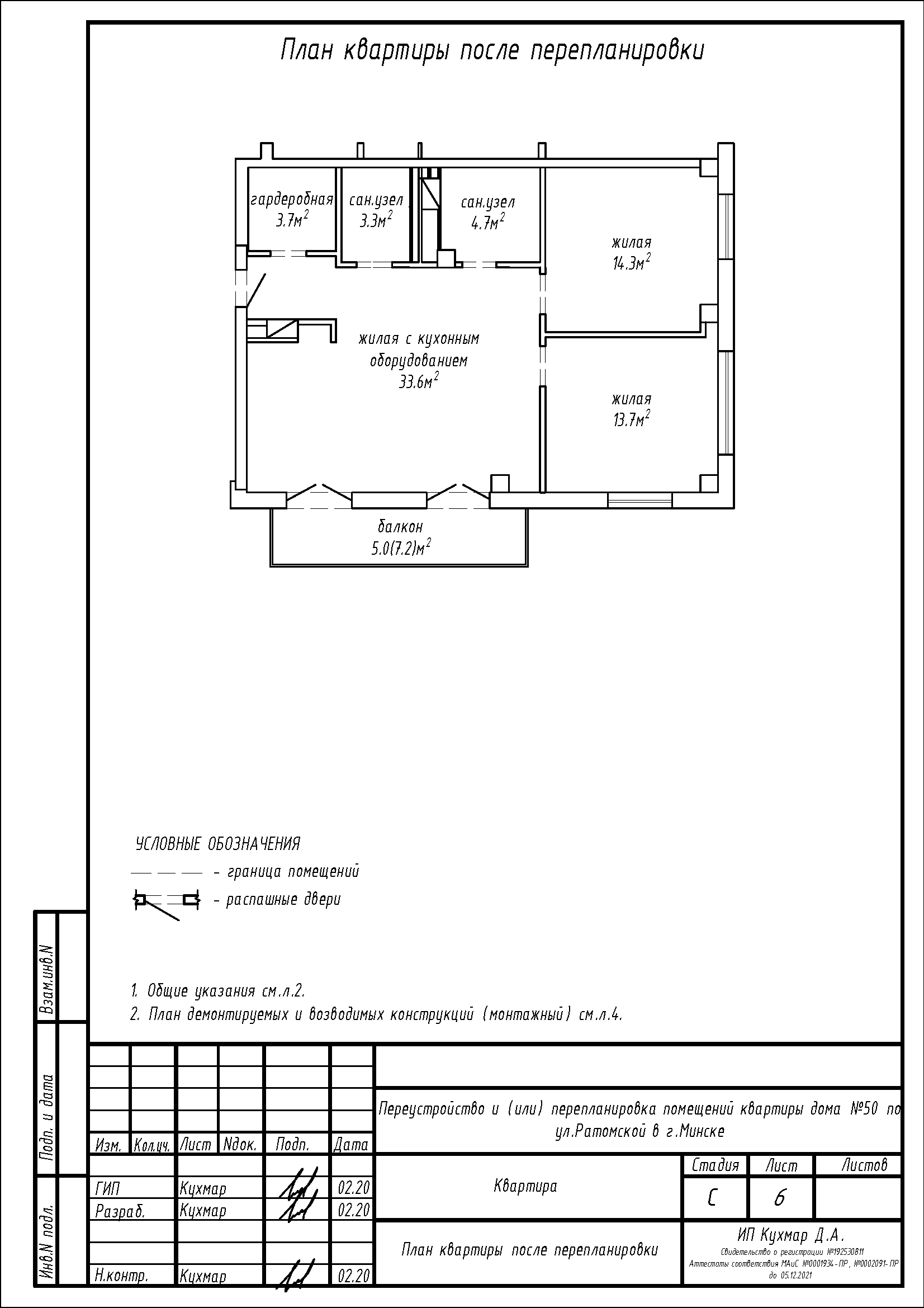
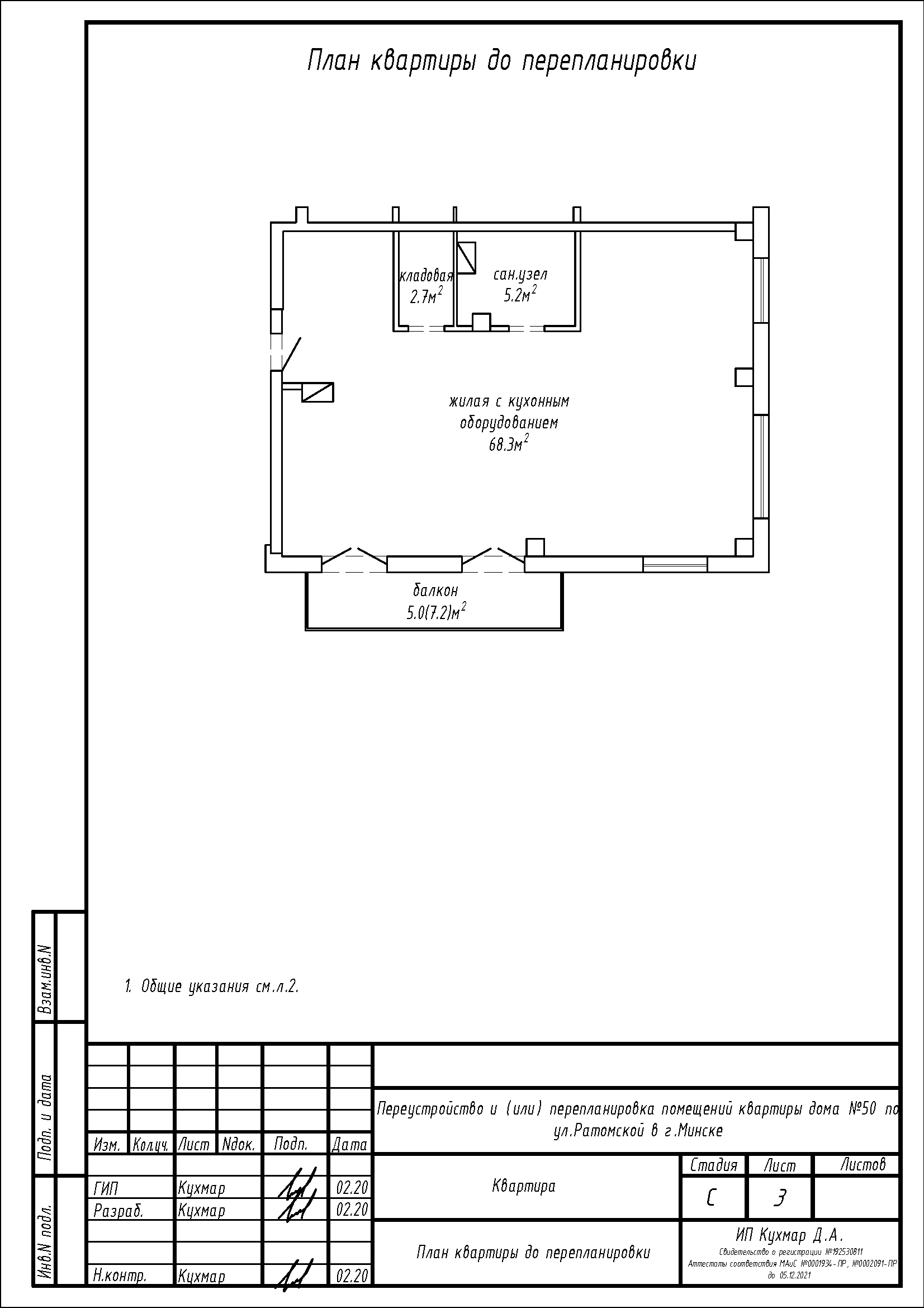
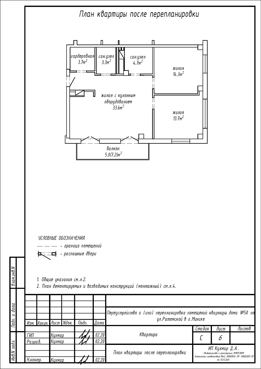
Перепланировка квартиры по ул. Ратомская, 50 в ЖК «Олимпик Парк»
Пожелания заказчика:
- Разделение жилой с кухонным оборудованием на жилую с кухонным оборудованием, две жилые, гардеробную;
- Устройство санузла на площади кладовой;
- Смещение дверного проёма в существующем санузле;
- Устройство ниши в санузле.
Нами были разработаны следующие разделы проектной документации для согласования в исполкоме:
- АС - архитектурно-строительные решения.
