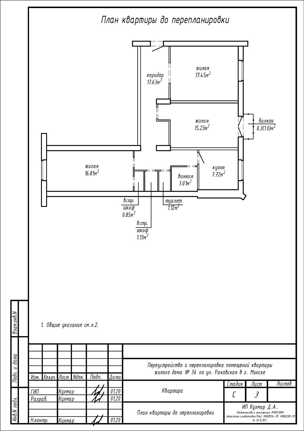
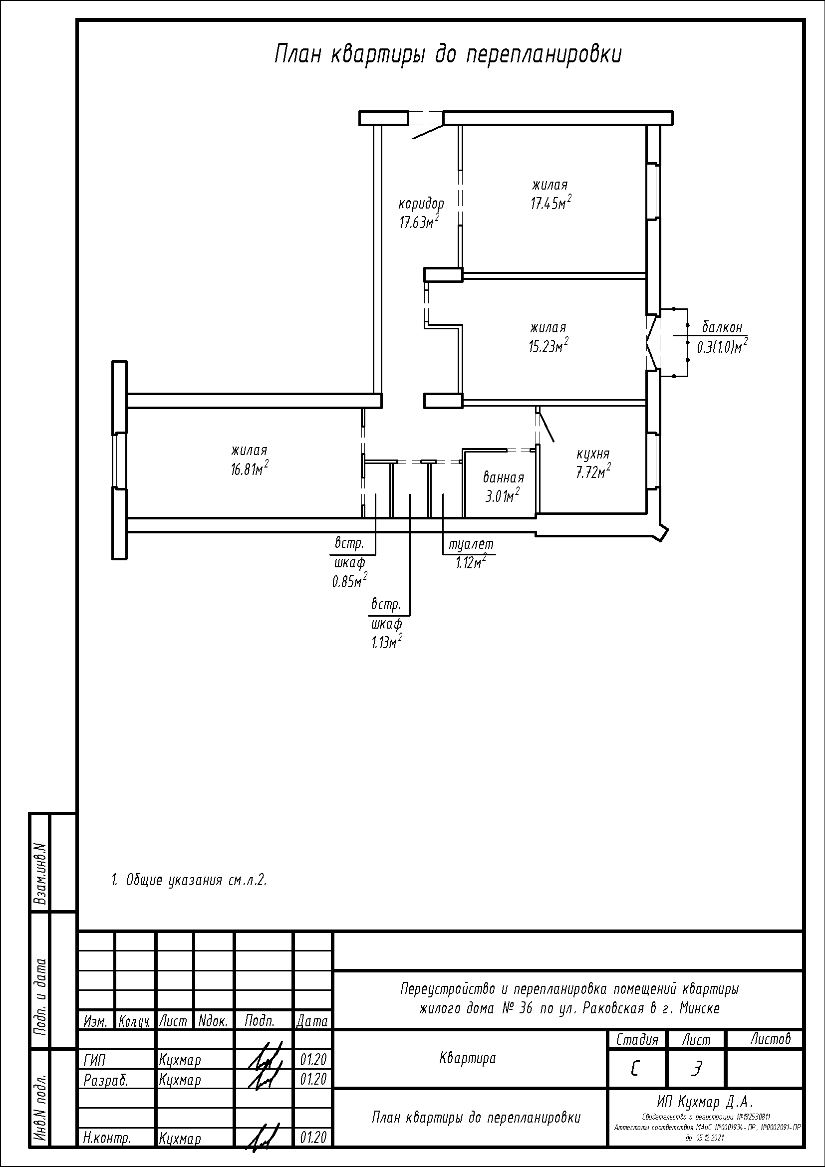
Перепланировка квартиры по ул. Раковская, 36 в г.Минске
Пожелания заказчика:
- Демонтаж перегородки между коридором и жилой комнатой пл. 17,45 кв.м с последующим устройством новых перегородок;
- Демонтаж перегородок между коридором и жилой комнатой пл. 15,23 кв.м с последующим устройством новых перегородок;
- Демонтаж части перегородки между жилой комнатой пл. 15,23 кв.м и кухней с последующим устройством дверного блока с дверью;
- Закладка дверного блока между коридором и кухней;
- Демонтаж перегородок между ванной, туалетом, шкафом площадью 1,13 кв.м, шкафом площадью 0,85 кв.м, жилой комнатой площадью 16,81 кв.м и коридором с последующим устройством новых перегородок, образованием помещений: гардероба, жилой комнаты, коридора, санузла, ванной с увеличенной площадью за счет площади коридора;
- Демонтаж перегородки между жилой комнатой площадью 17,45 кв.м жилой комнатой площадью 15,23 кб .м с последующим устройством навой перегородки.
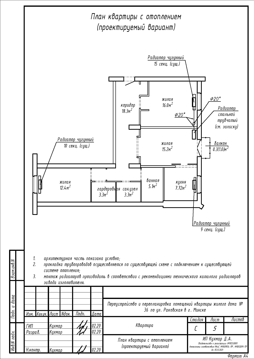
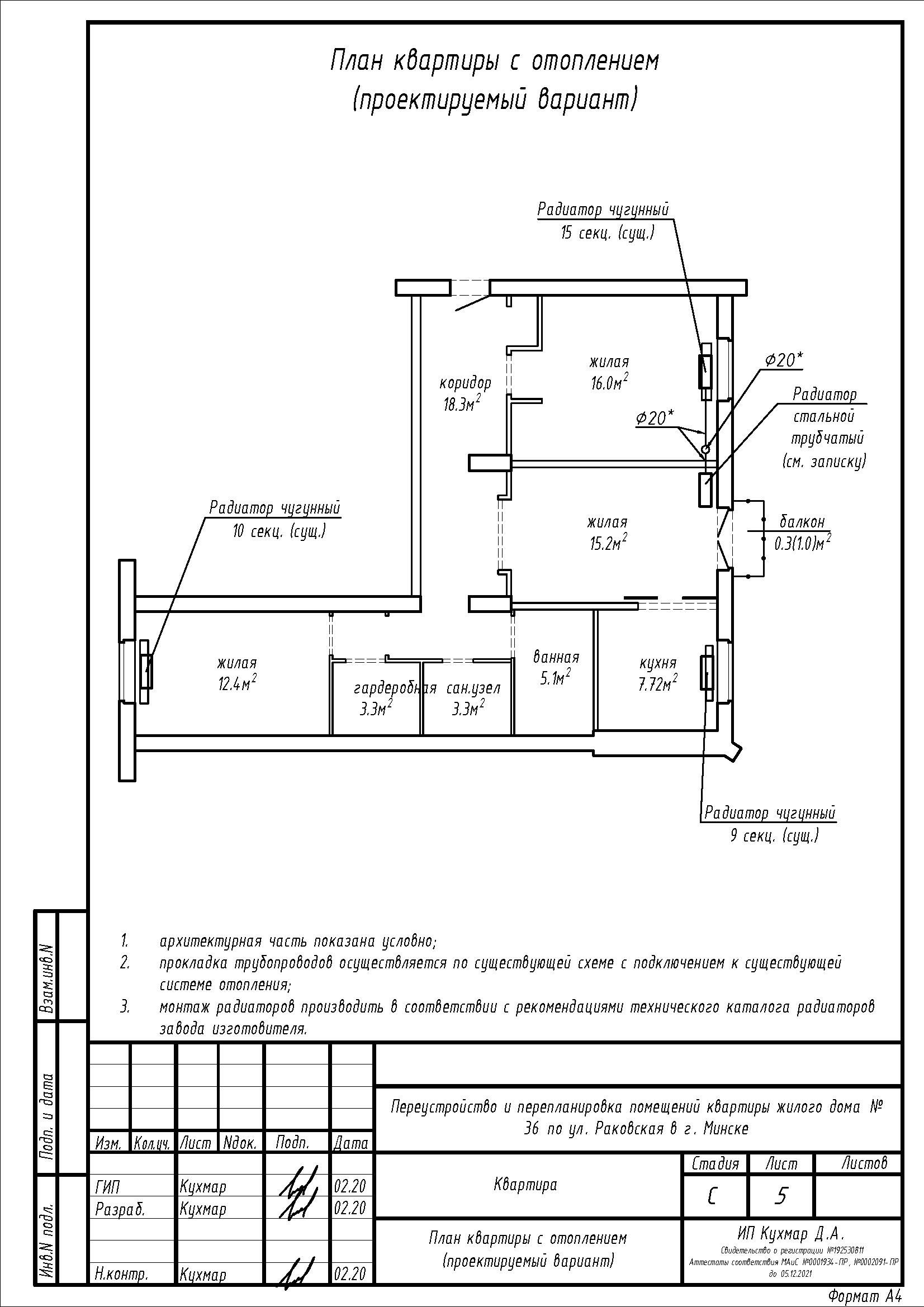
- Перенос и замена отопительного прибора.
Нами были разработаны следующие разделы проектной документации для согласования в исполкоме:
- АС - архитектурно-строительные решения;
- ОВ - отопление и вентиляция.
