Перепланировка квартиры по ул. Петра Мстиславца, 12 в ЖК «Маяк Минска»
Пожелания заказчика:
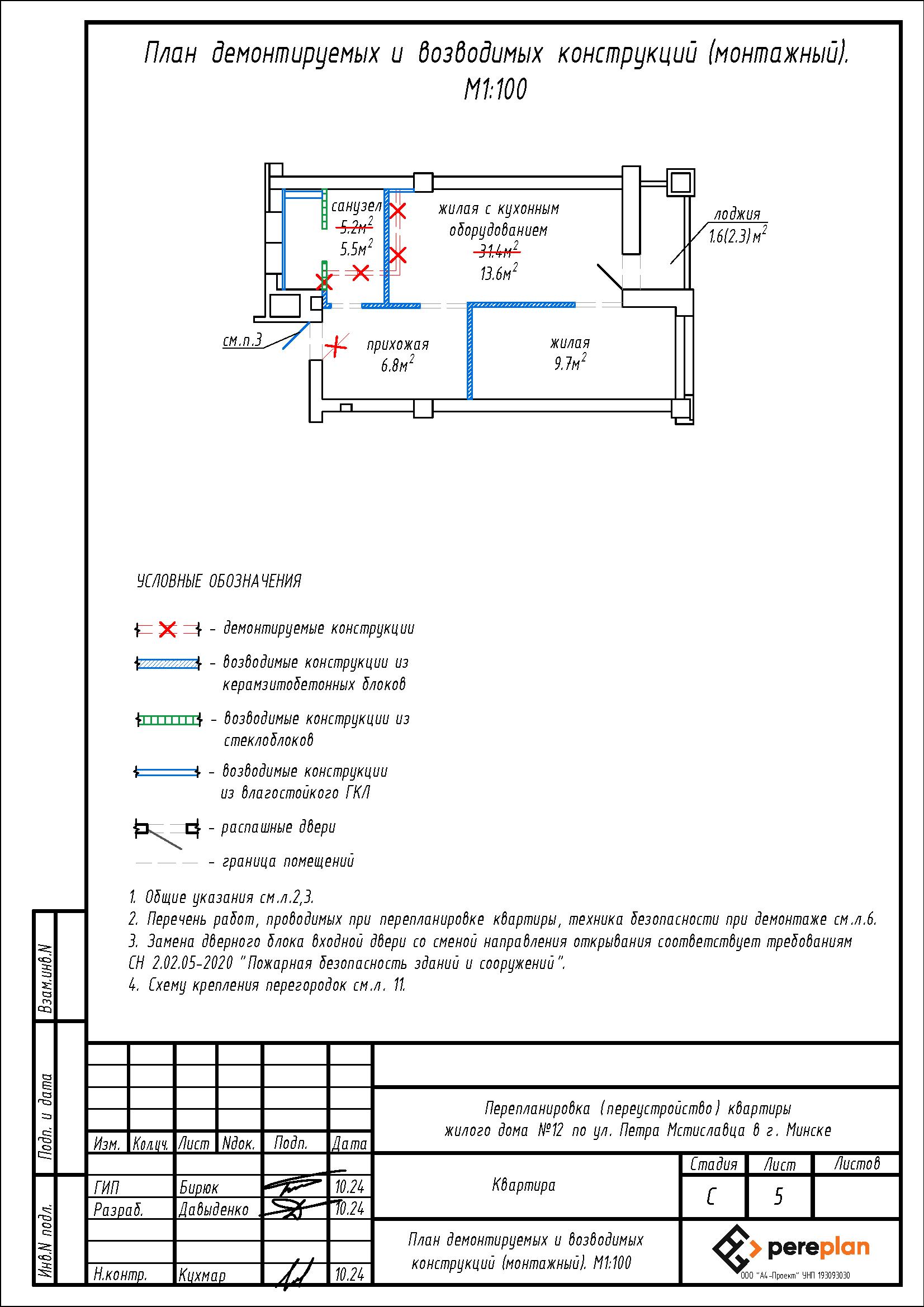
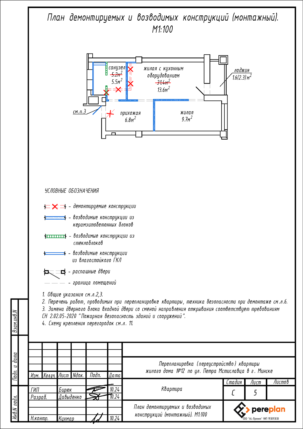
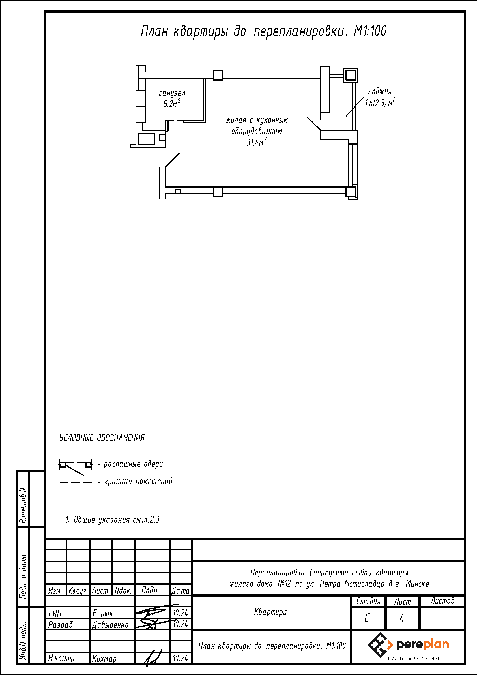
- Демонтаж перегородок с дверными проемами между санузлом и жилой с кухонным оборудованием, с последующим устройством перегородок с дверными проемами на части площади существующей перегородки, санузла, жилой с кухонным оборудованием, с целью устройства помещений: прихожей, жилой, жилой с кухонным оборудованием, санузла;
- Замена дверного блока входной двери со сменой направления открывания.
Нами были разработаны следующие разделы проектной документации для согласования в исполкоме:
- АС - архитектурно-строительные решения.
