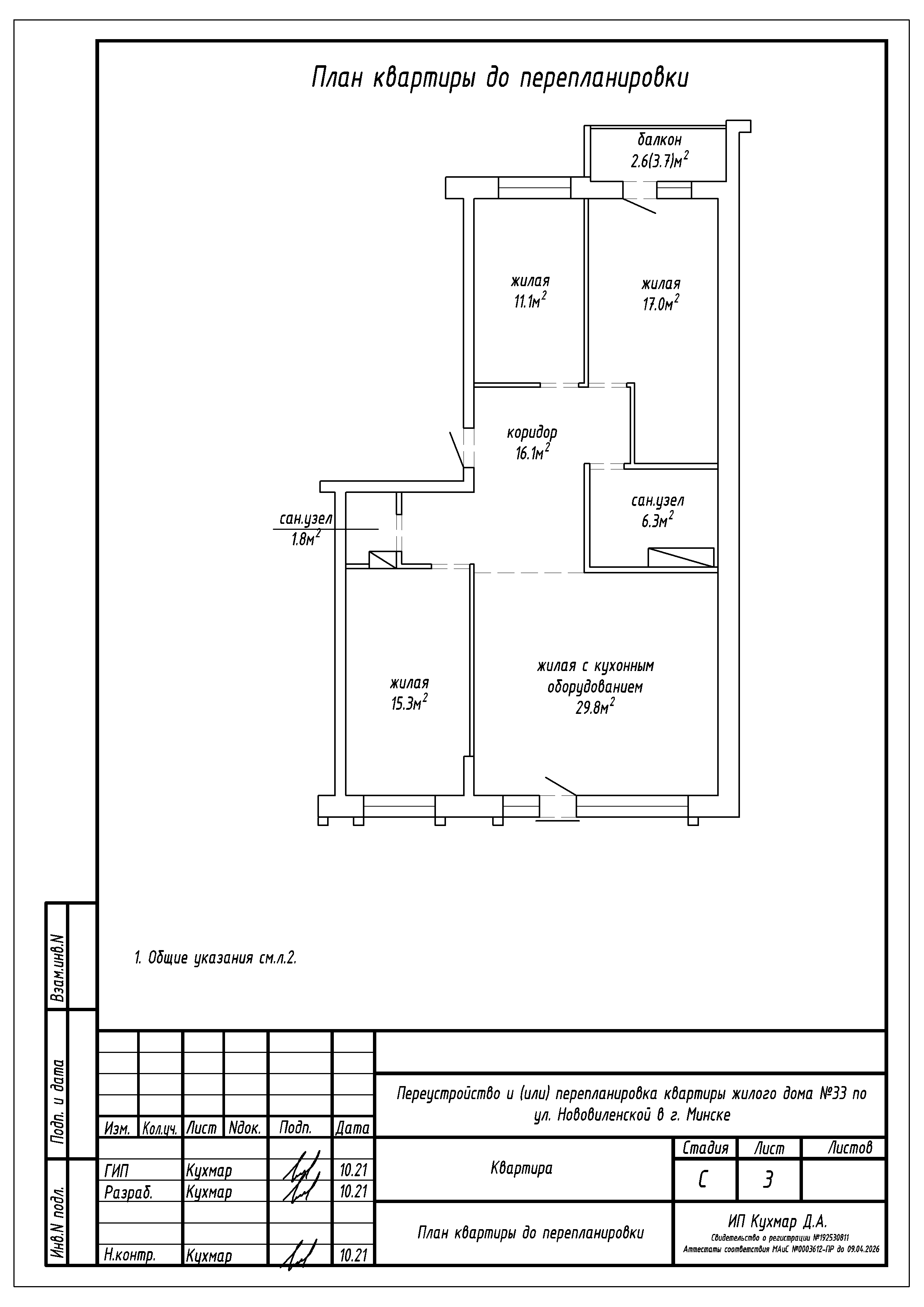
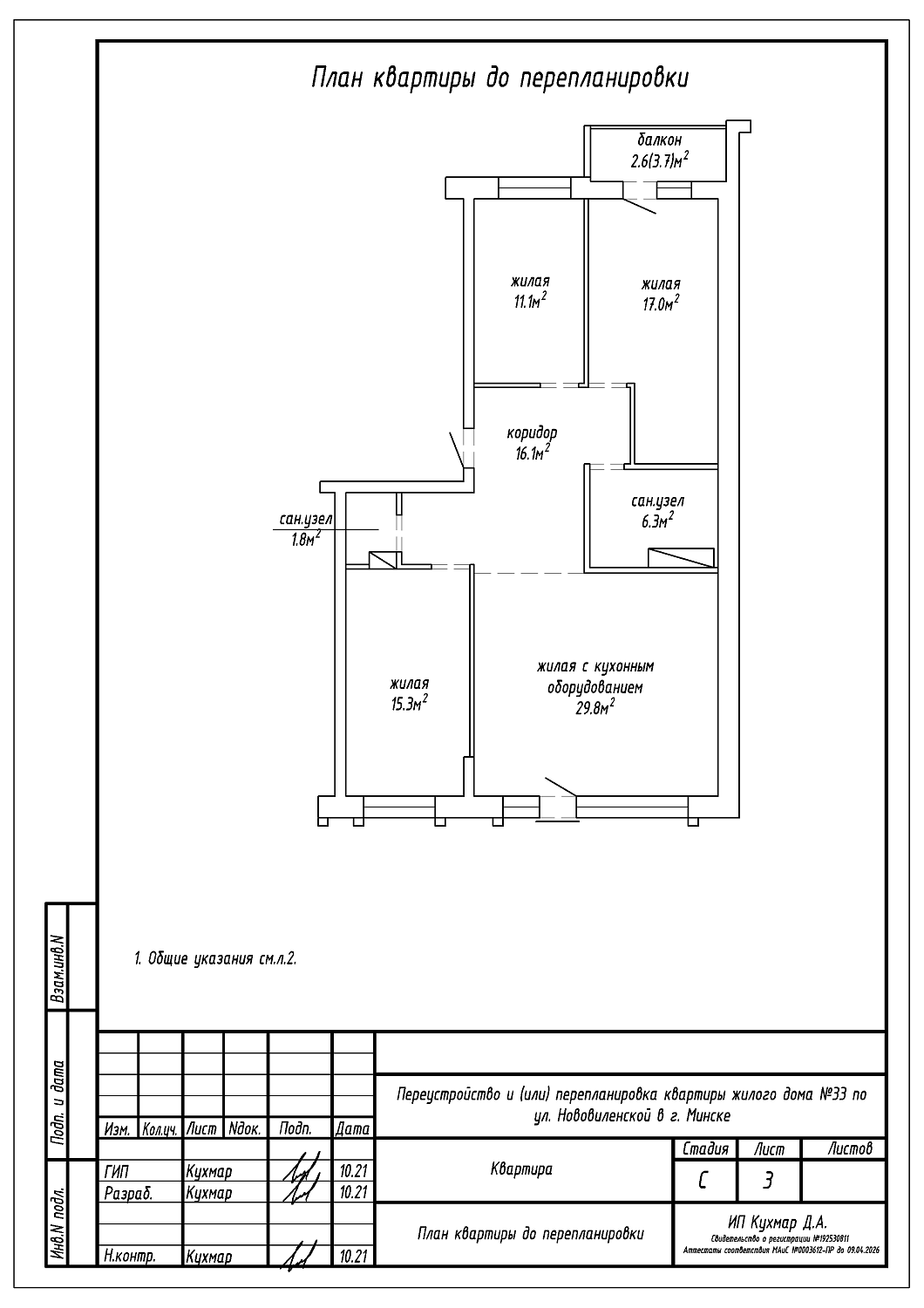
Перепланировка квартиры по ул. Нововиленская, 33 в ЖК «Левада»
Пожелания заказчика:
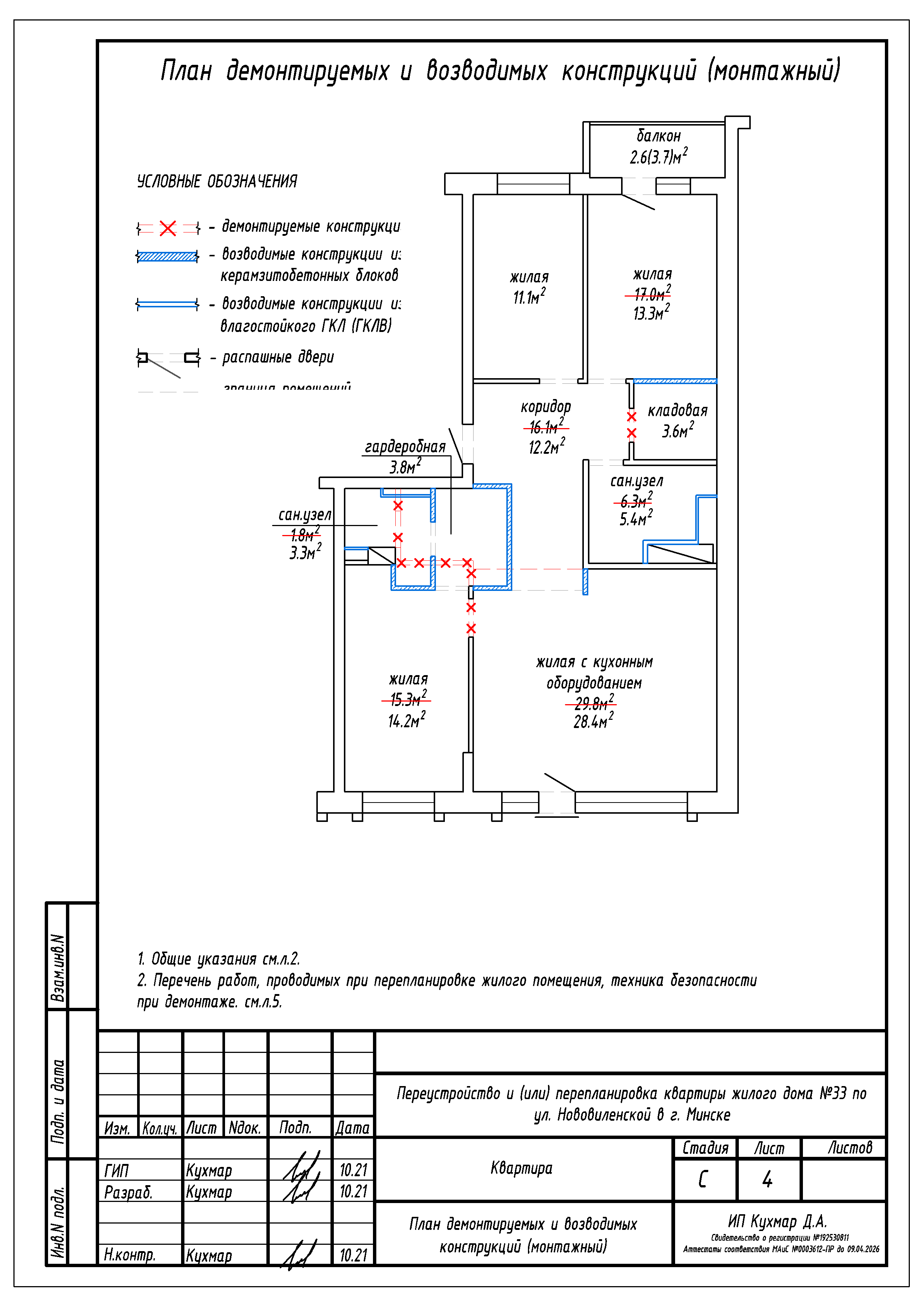
- Устройство дверного проёма между жилой и жилой с кухонным оборудованием;
- Устройство кладовой на площади жилой;
- Устройство дверного проёма между коридором и жилой;
- Устройство зашивок из ГКЛ на части площади санузла;
- Увеличение площади санузла за счёт площади жилой, но не более чем на 25%;
- Устройство гардеробной на площади коридора и части площади жилой с кухонным оборудованием;
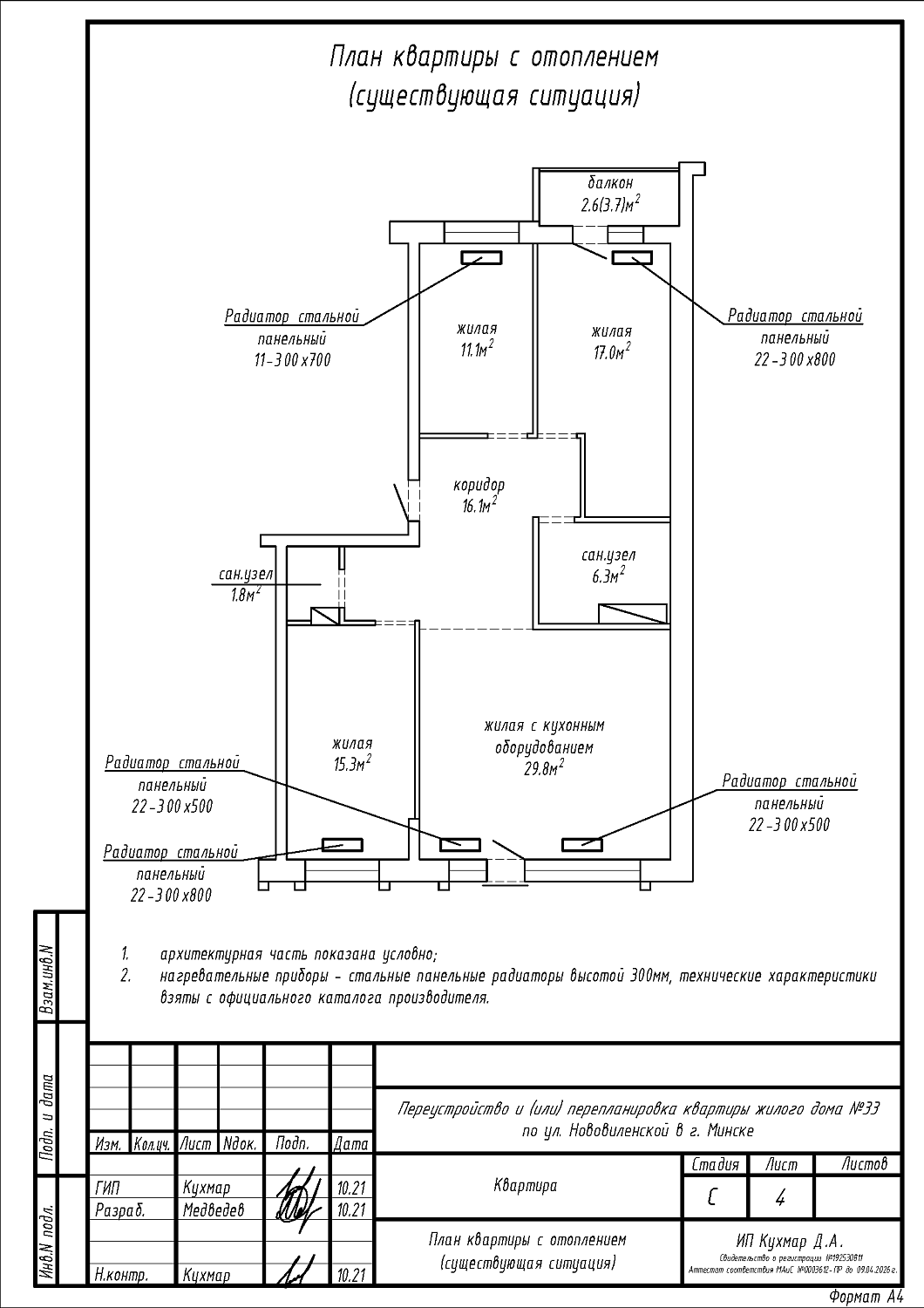
- Замена и перенос существующих отопительных приборов.
Нами были разработаны следующие разделы проектной документации для согласования в исполкоме:
- АС - архитектурно-строительные решения;
- ОВ - отопление и вентиляция.
