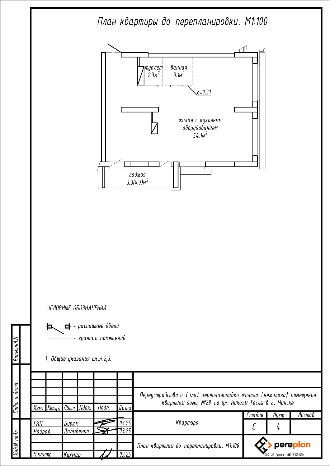
Перепланировка квартиры по ул. Николы Теслы, 28 в ЖК «Минск Мир» в г. Минске
Пожелания заказчика:
- Демонтаж перегородки между туалетом и ванной с последующим устройством новых перегородок на площади существующих и части площади туалета с целью устройства санузла на площади туалета и ванной;
- Устройство перегородок на части площади жилой с кухонным оборудованием с целью устройства помещений: прихожей, двух жилых и жилой с кухонным оборудованием.
Нами были разработаны следующие разделы проектной документации для согласования в исполкоме:
- АС - архитектурно-строительные решения.


