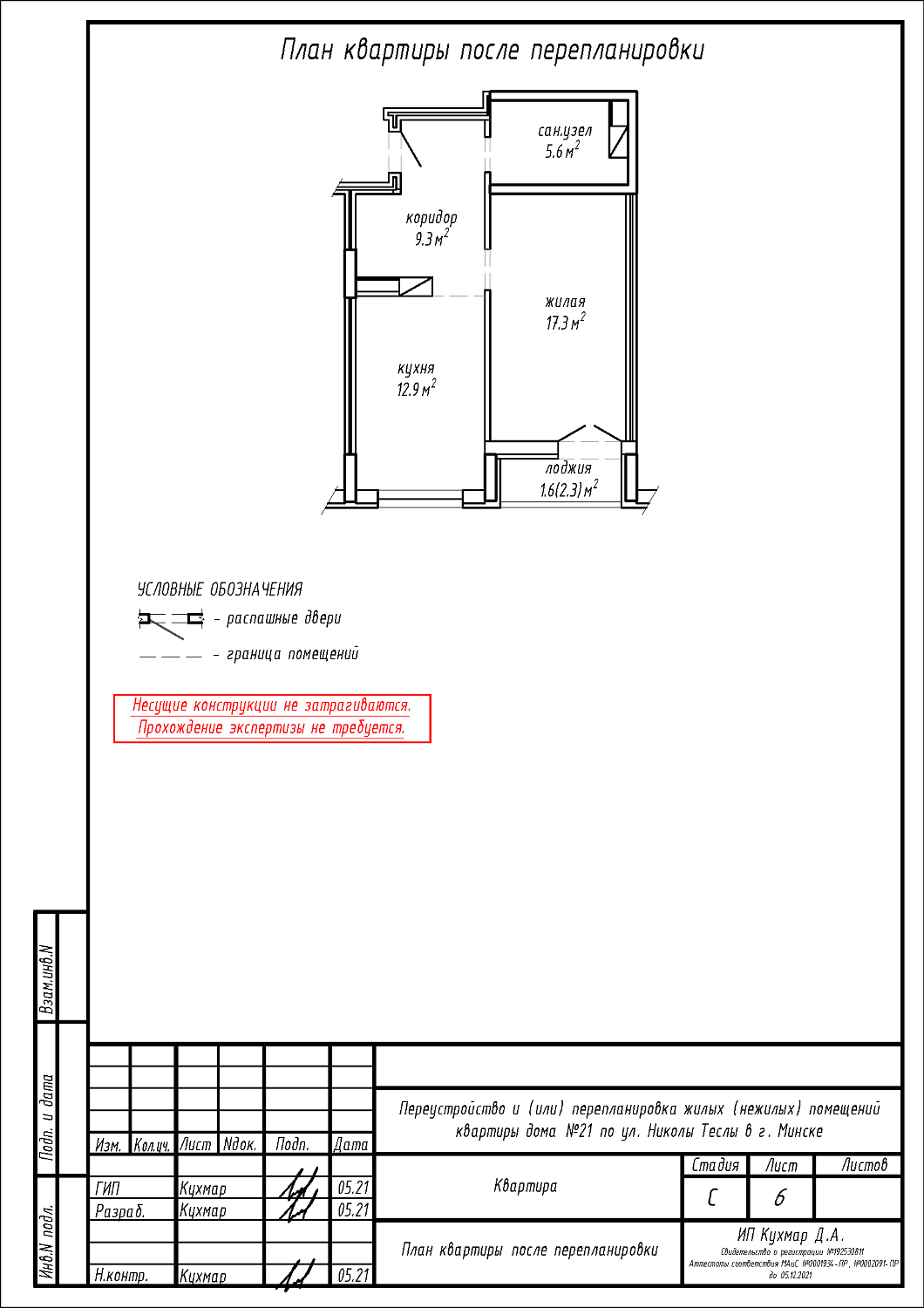
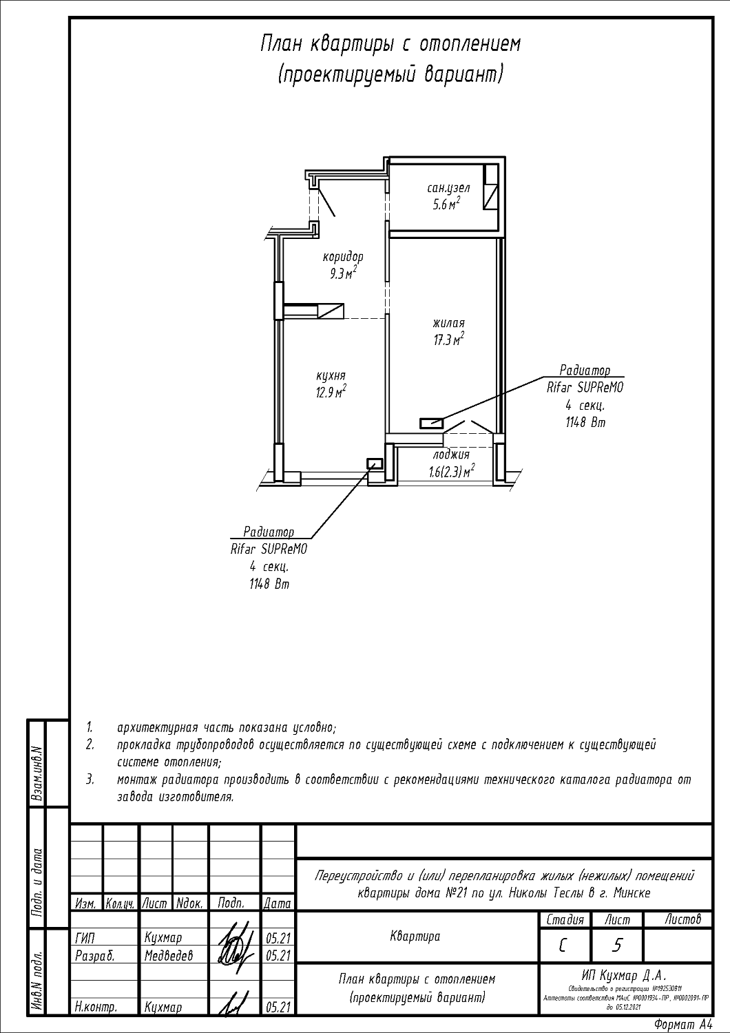
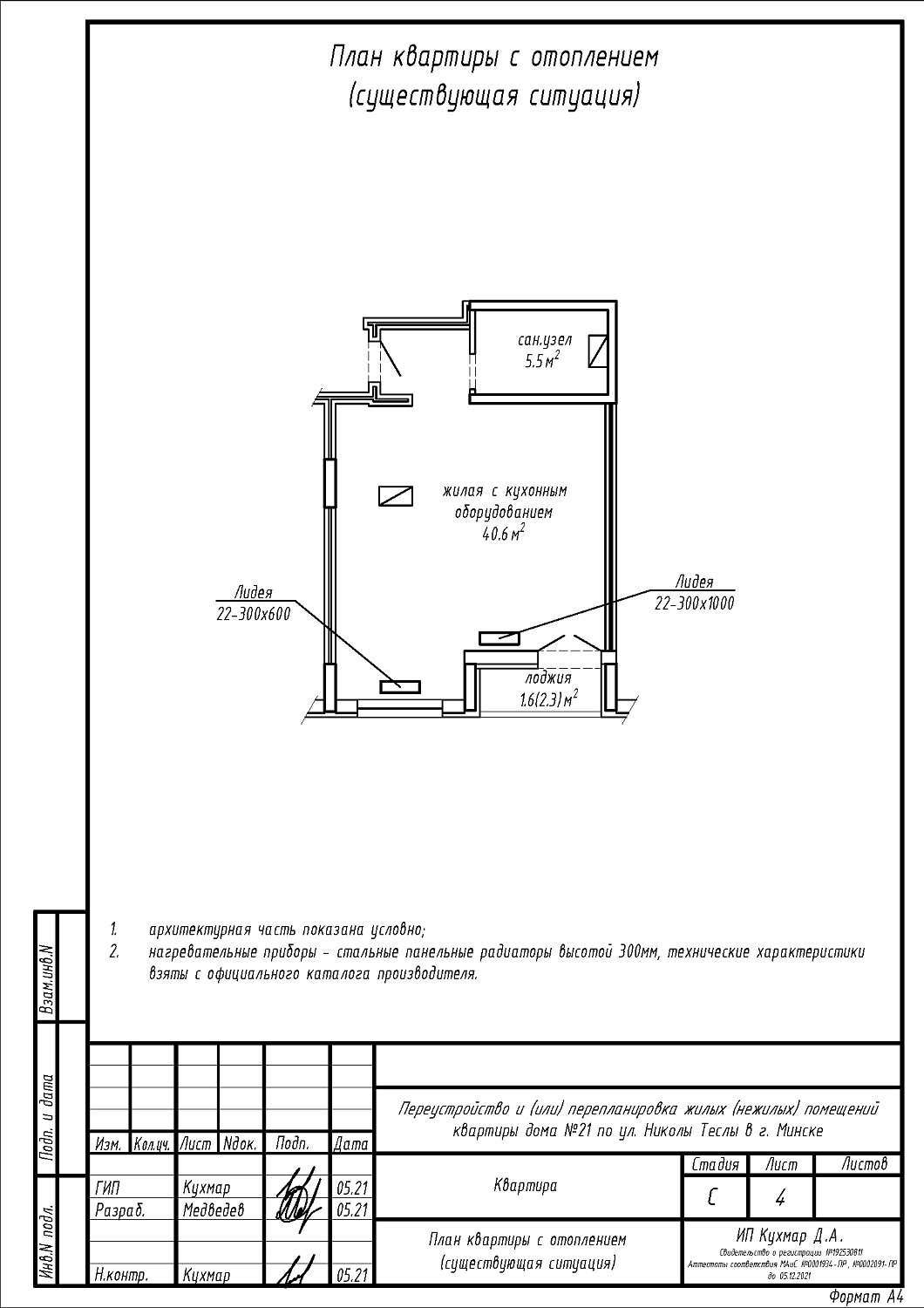
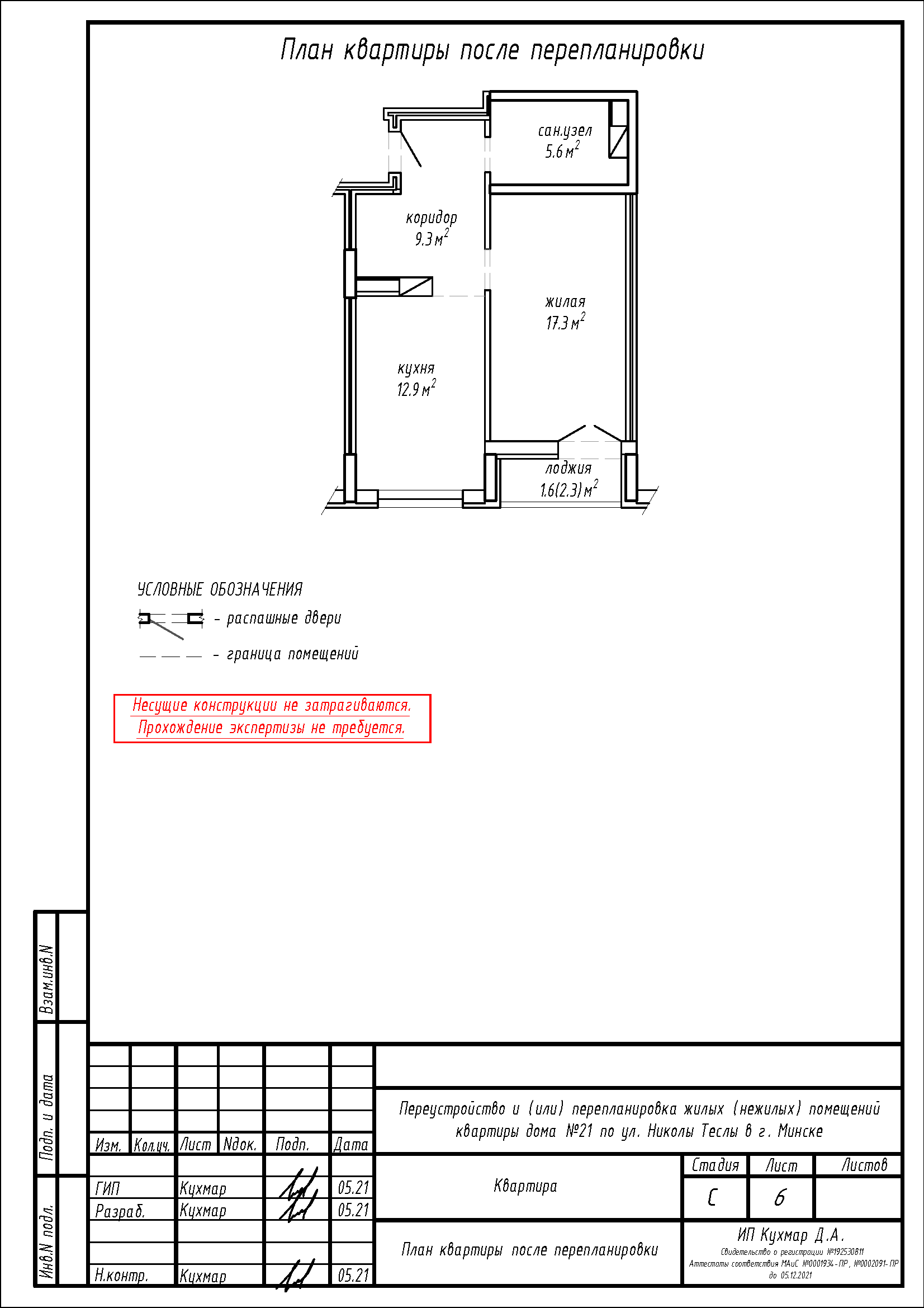
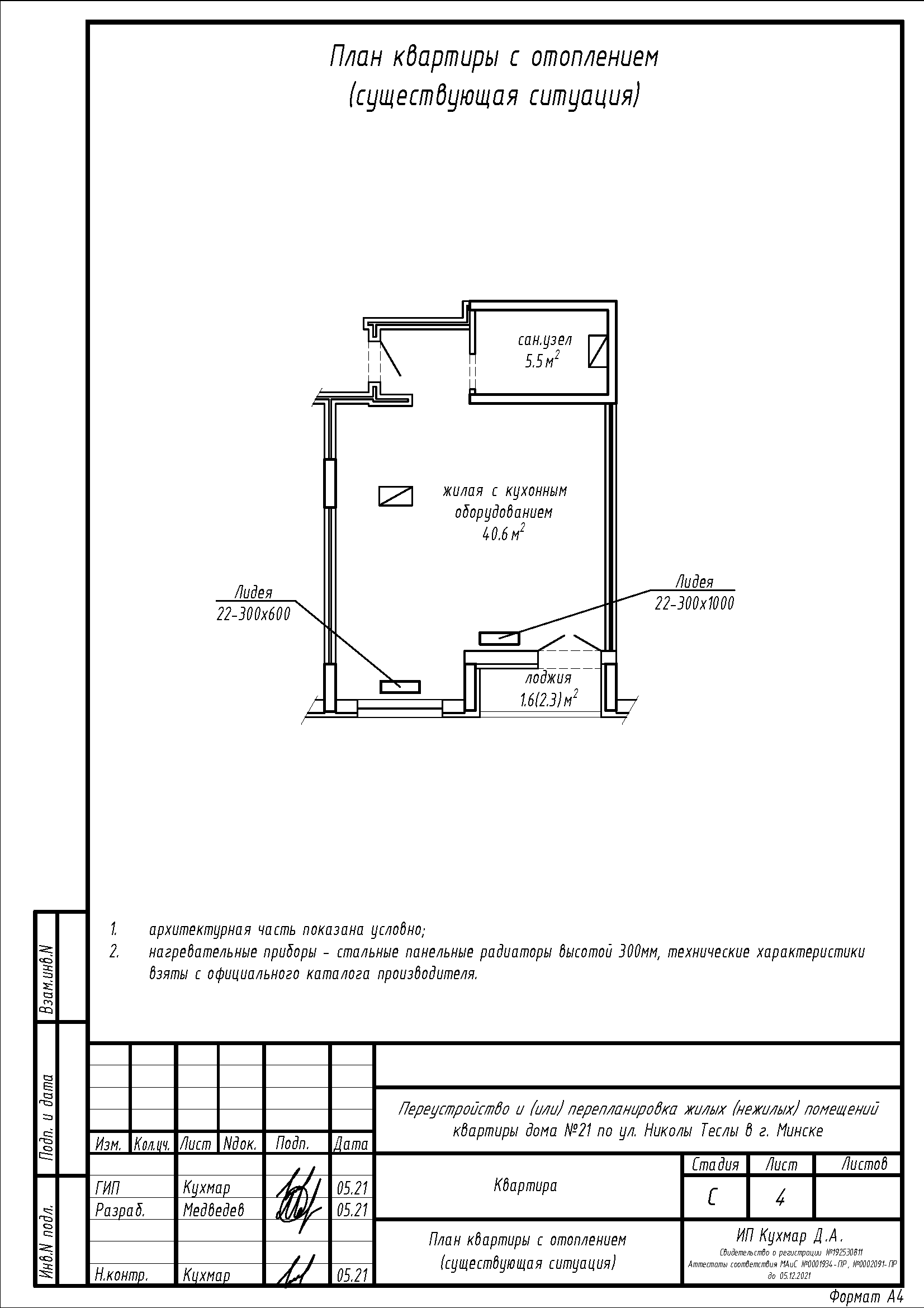
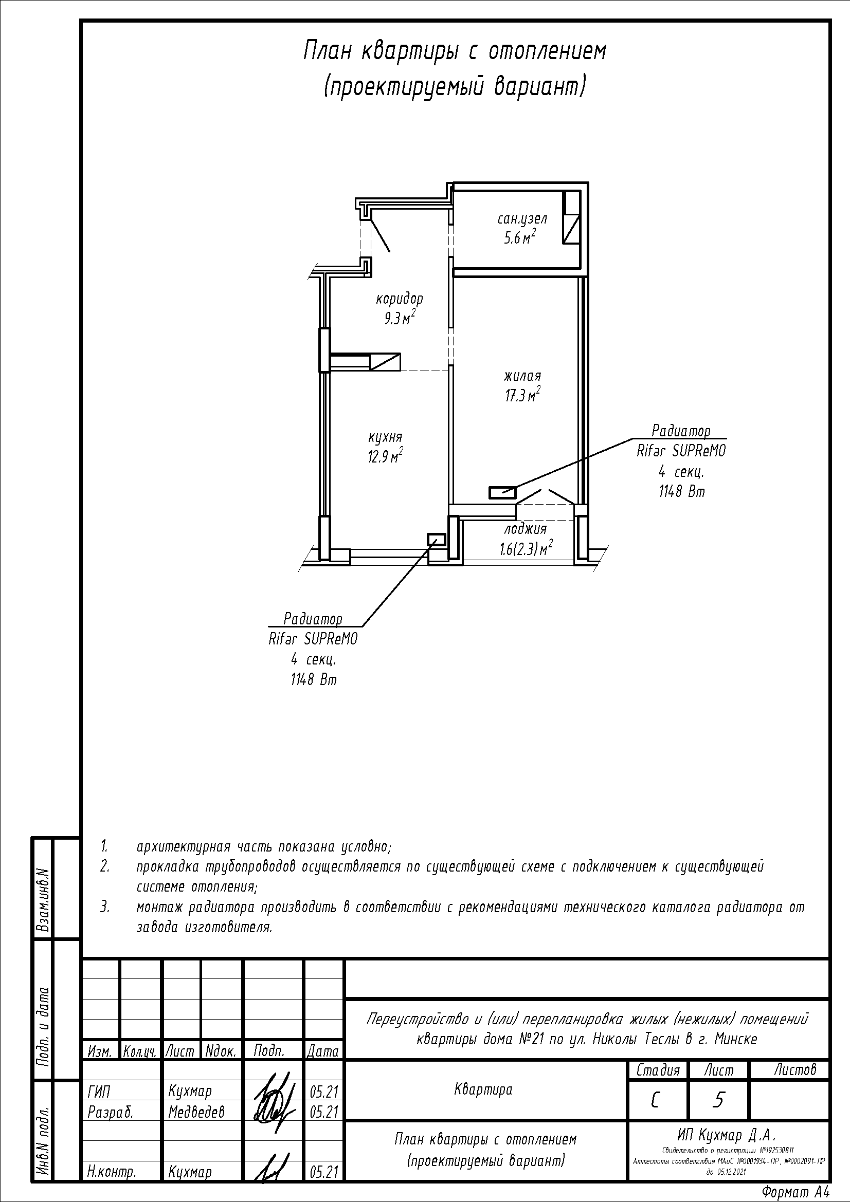
Перепланировка квартиры по ул. Николы Теслы, 21 в ЖК «Минск Мир»
Пожелания заказчика:
- Разделение общего помещения жилой с кухонным оборудованием на кухню, жилую и коридор;
- Изменение габаритов сан.узла;
- Демонтаж перегородки в коридоре;
- Перенос и замена отопительных приборов.
Нами были разработаны следующие разделы проектной документации для согласования в исполкоме:
- АС - архитектурно-строительные решения;
- ОВ - отопление и вентиляция.
