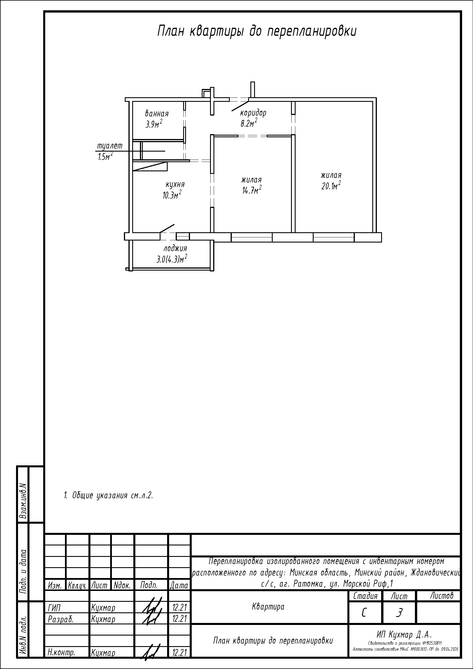
Перепланировка квартиры по ул. Морской Риф, 1 в ЖК «Пирс»
Пожелания заказчика:
- Объединение туалета и ванной в общий санузел;
- Смещение дверного проема между жилой и коридором;
- Смена направления открывания входной двери.
Нами были разработаны следующие разделы проектной документации для согласования в исполкоме:
- АС - архитектурно-строительные решения.
