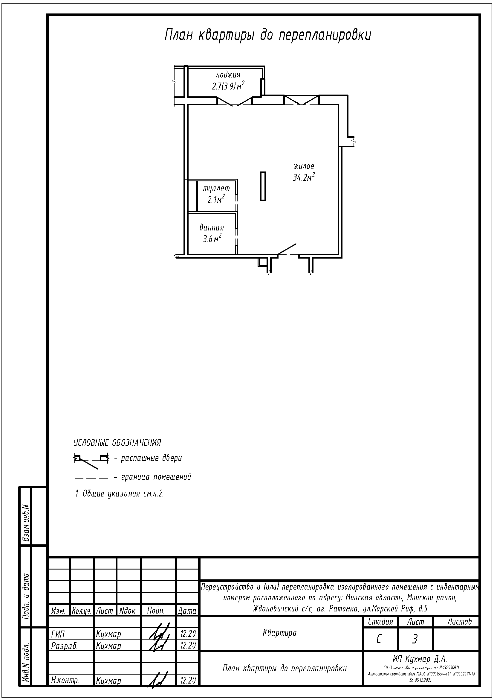
Перепланировка квартиры по ул. Морской Риф, 5 в ЖК «Пирс»
Пожелания заказчика:
- Разделение общего помещения «жилая с кухонным оборудованием» на отдельную жилую, жилую с кухонным оборудованием, коридор, гардеробную;
- Объединение ванной и туалета в санузел;
- Увеличение жилой за счёт площади санузла.
Нами были разработаны следующие разделы проектной документации для согласования в исполкоме:
- АС - архитектурно-строительные решения.


