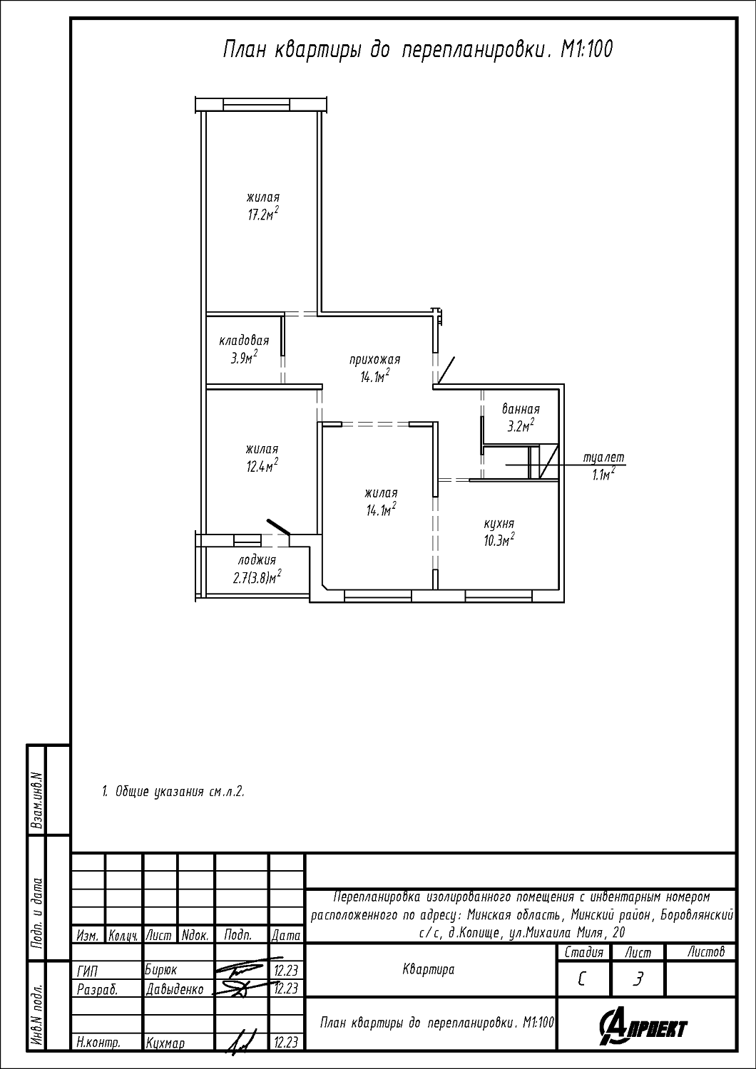
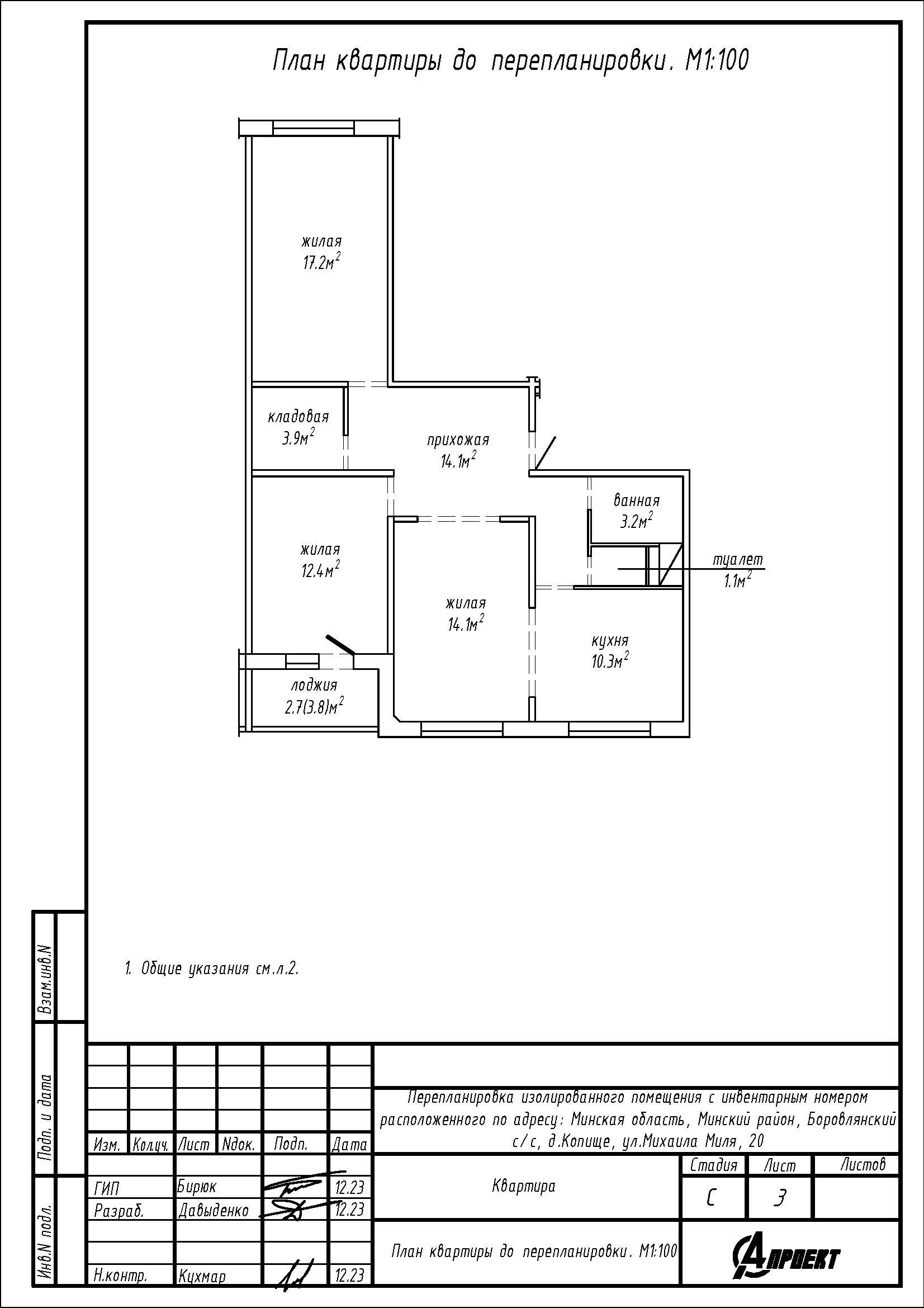
Перепланировка квартиры по ул. Михаила Миля, 20 в ЖК «Новая Боровая»
Пожелания заказчика:
- Устройство ванной на площади туалета и существующей ванной;
- Устройство туалета на части площади прихожей;
- Закладка дверного проёма между прихожей и кухней;
- Сужение дверного проёма между кухней и жилой.
Нами были разработаны следующие разделы проектной документации для согласования в исполкоме:
- АС - архитектурно-строительные решения.
