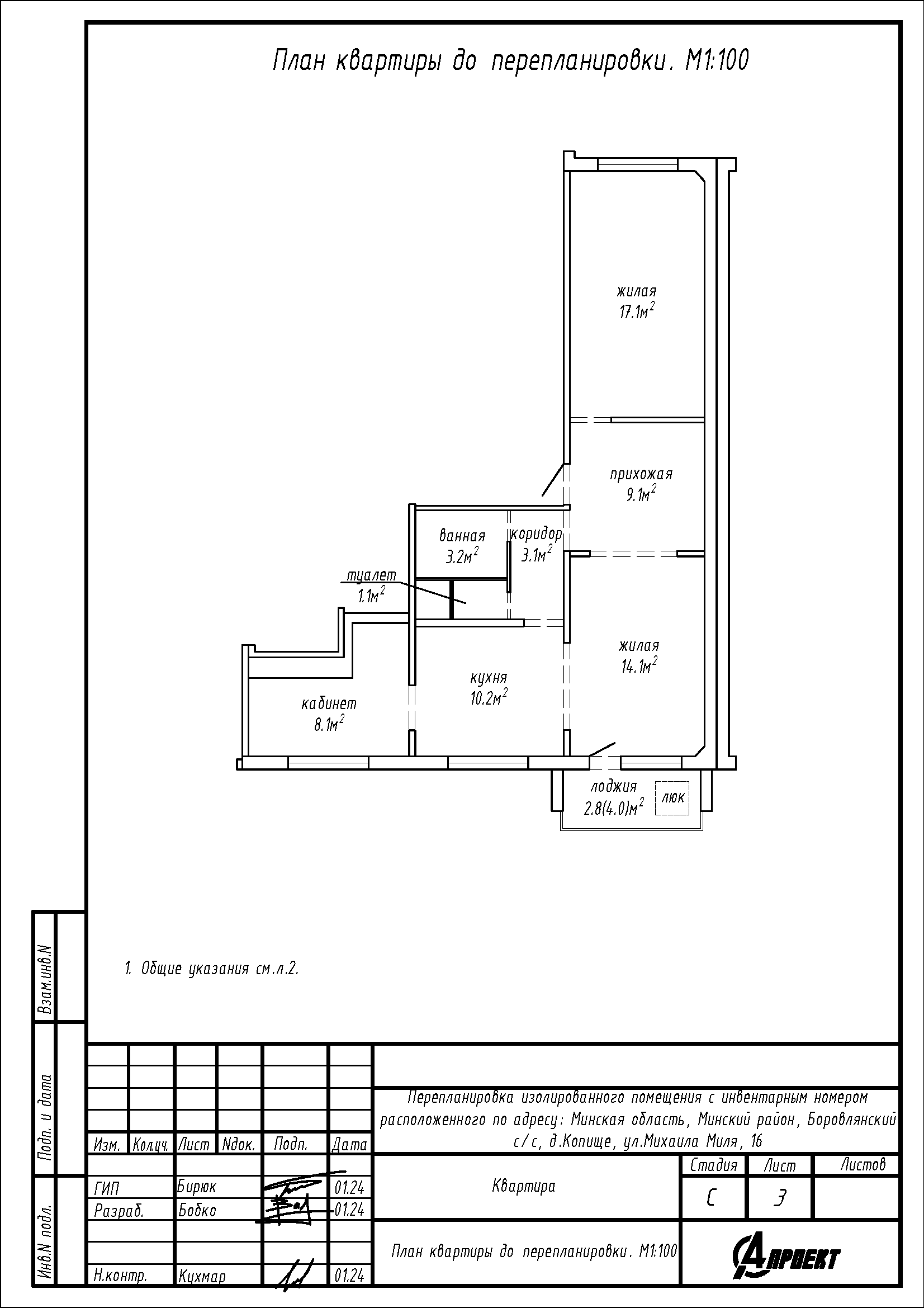
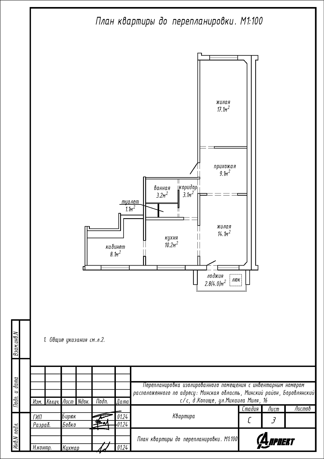
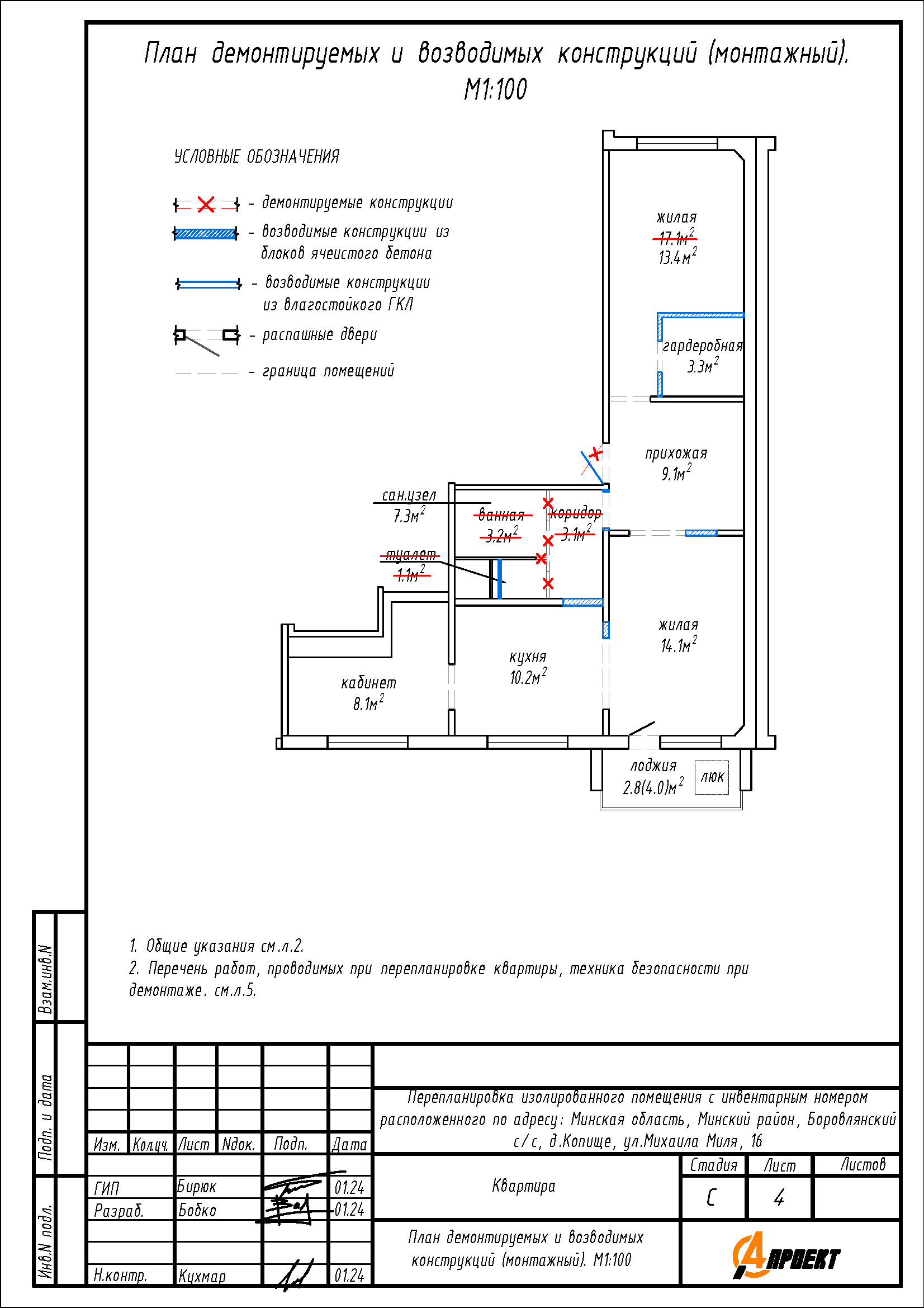
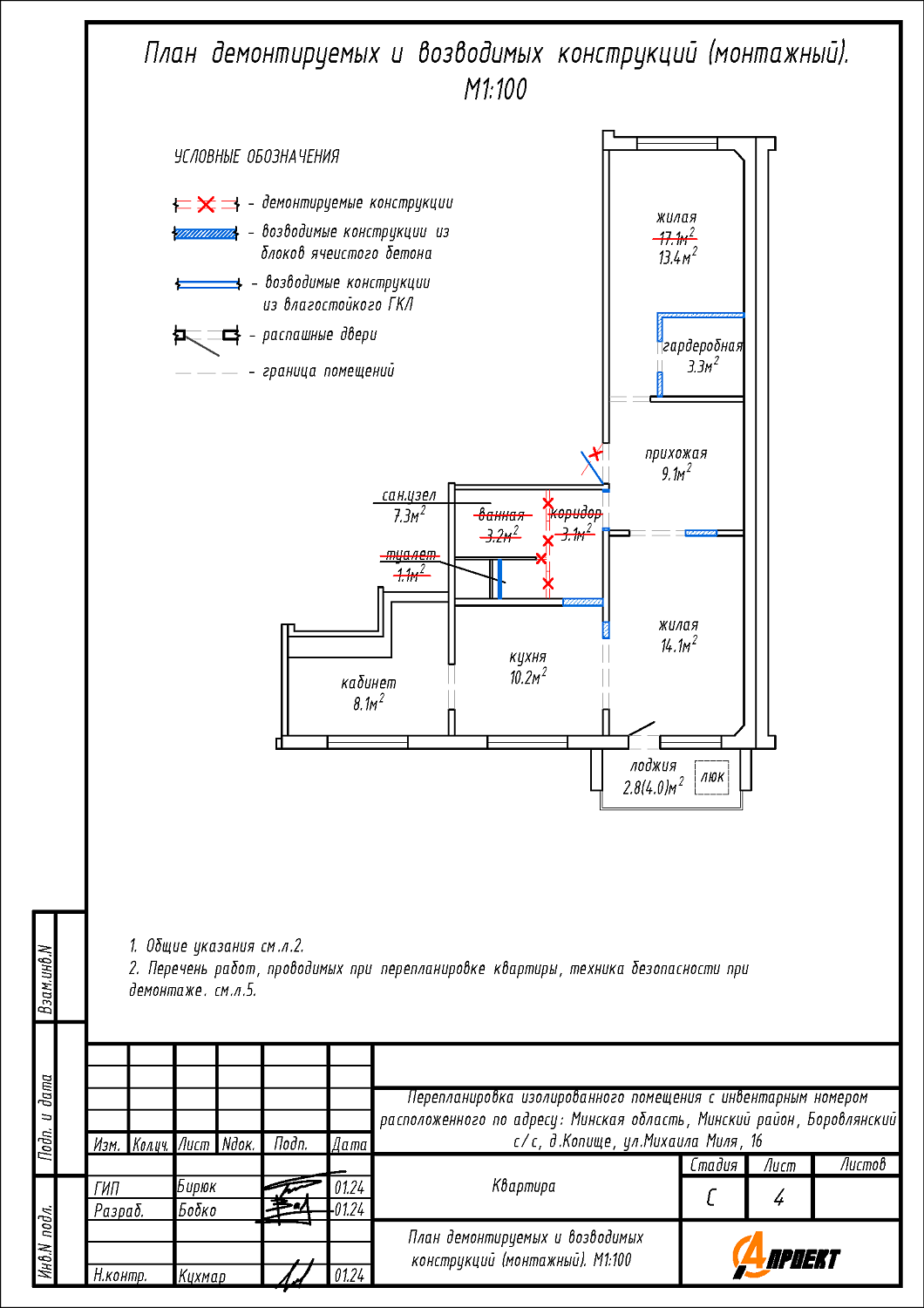
Перепланировка квартиры по ул. Михаила Миля, 16 в ЖК «Новая Боровая»
Пожелания заказчика:
- Устройство гардеробной на части площади жилой;
- Смена направления открывания входной двери;
- Объединение ванной и туалета в единый санузел;
- Закладка дверного проёма между кухней и прихожей с целью устройства объединённого санузла;
- Сужение дверного проёма между жилой и прихожей; между жилой и кухней.
Нами были разработаны следующие разделы проектной документации для согласования в исполкоме:
- АС - архитектурно-строительные решения.
