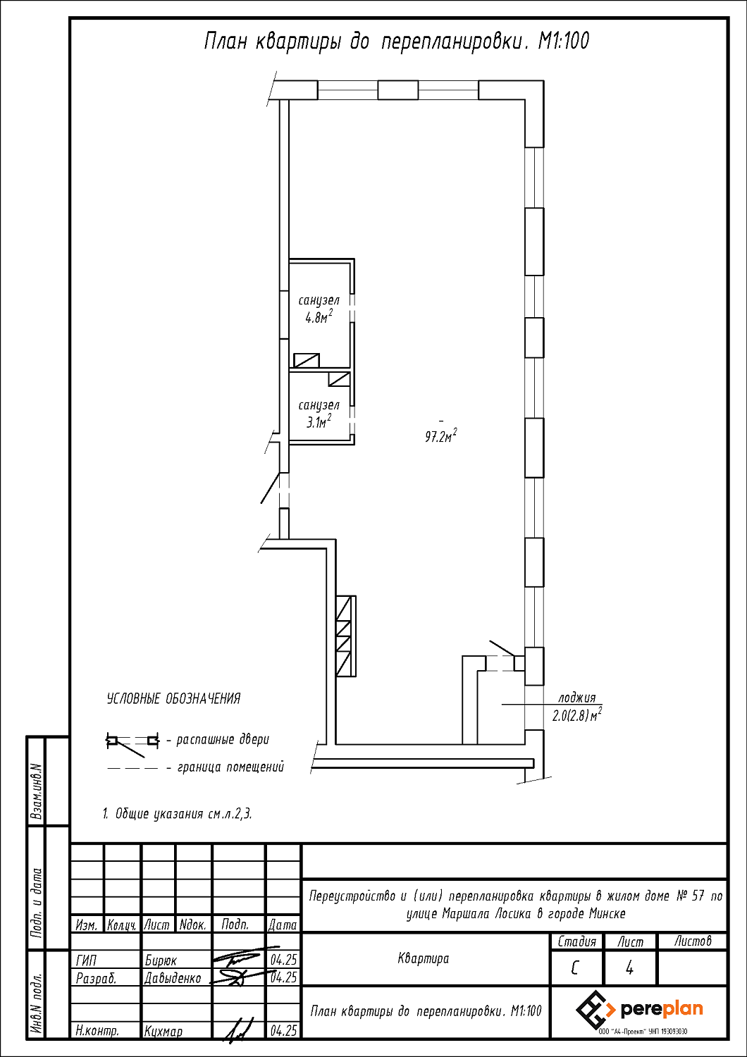
Перепланировка квартиры по ул. Маршала Лосика, 57 в ЖК «Вершина» в г. Минске
Пожелания заказчика:
- Демонтаж перегородки между санузлом и жилой с кухонным оборудованием;
- Устройство перегородки в жилой с кухонным оборудованием (функциональная зона жилой) с целью устройства санузла на площади санузла, части площади жилой с кухонным оборудованием (не более 25 %от площади санузла);
- Перенос дверного проема вдоль перегородки между санузлом и жилой с кухонным оборудованием;
- Устройство перегородок с дверными проемами в жилой с кухонным оборудованием с целью устройства жилой с кухонным оборудованием, трех жилых и гардероба;
- Устройство перегородки в жилой с кухонным оборудованием;
- Перенос и замена отопительных приборов.
Нами были разработаны следующие разделы проектной документации для согласования в исполкоме:
- АС - архитектурно-строительные решения.
- ОВ - отопление и вентиляция.


