Перепланировка квартиры по ул. Макаёнка, 12Л в ЖК «Vogue»
Пожелания заказчика:
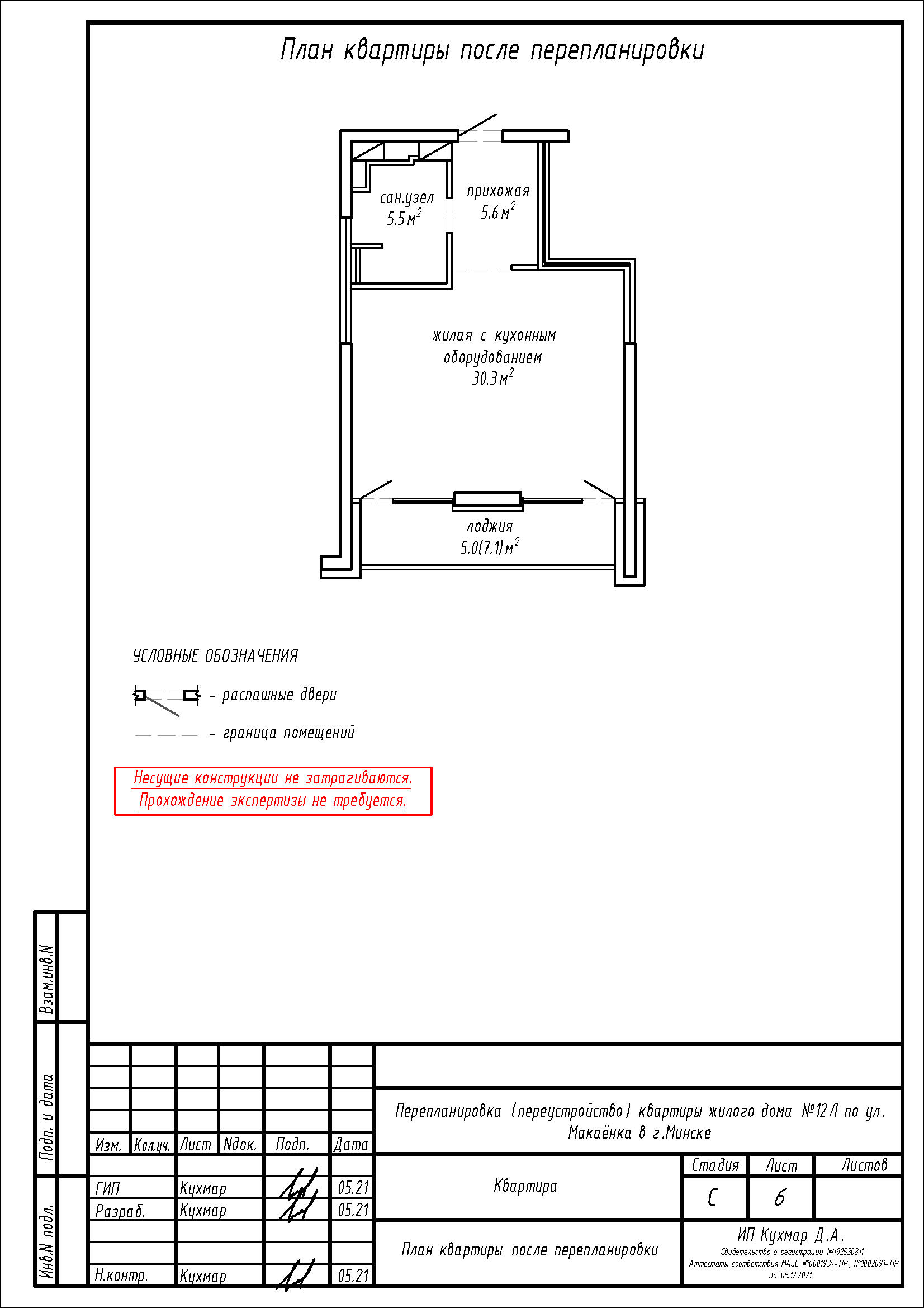
- Смещение и расширение дверного проема в перегородке между сан. узлом и жилой с кухонным оборудованием;
- Демонтаж перегородки между сан.узлом и жилой с кухонным оборудованием с последующим устройством перегородок на части площади жилой с кухонным оборудованием с целью увеличения площади сан.узла и устройства прихожей на части площади жилой с кухонным оборудованием;
- Устройство зашивок коммуникаций и инсталляции в сан.узле.
Нами были разработаны следующие разделы проектной документации для согласования в исполкоме:
- АС - архитектурно-строительные решения.
