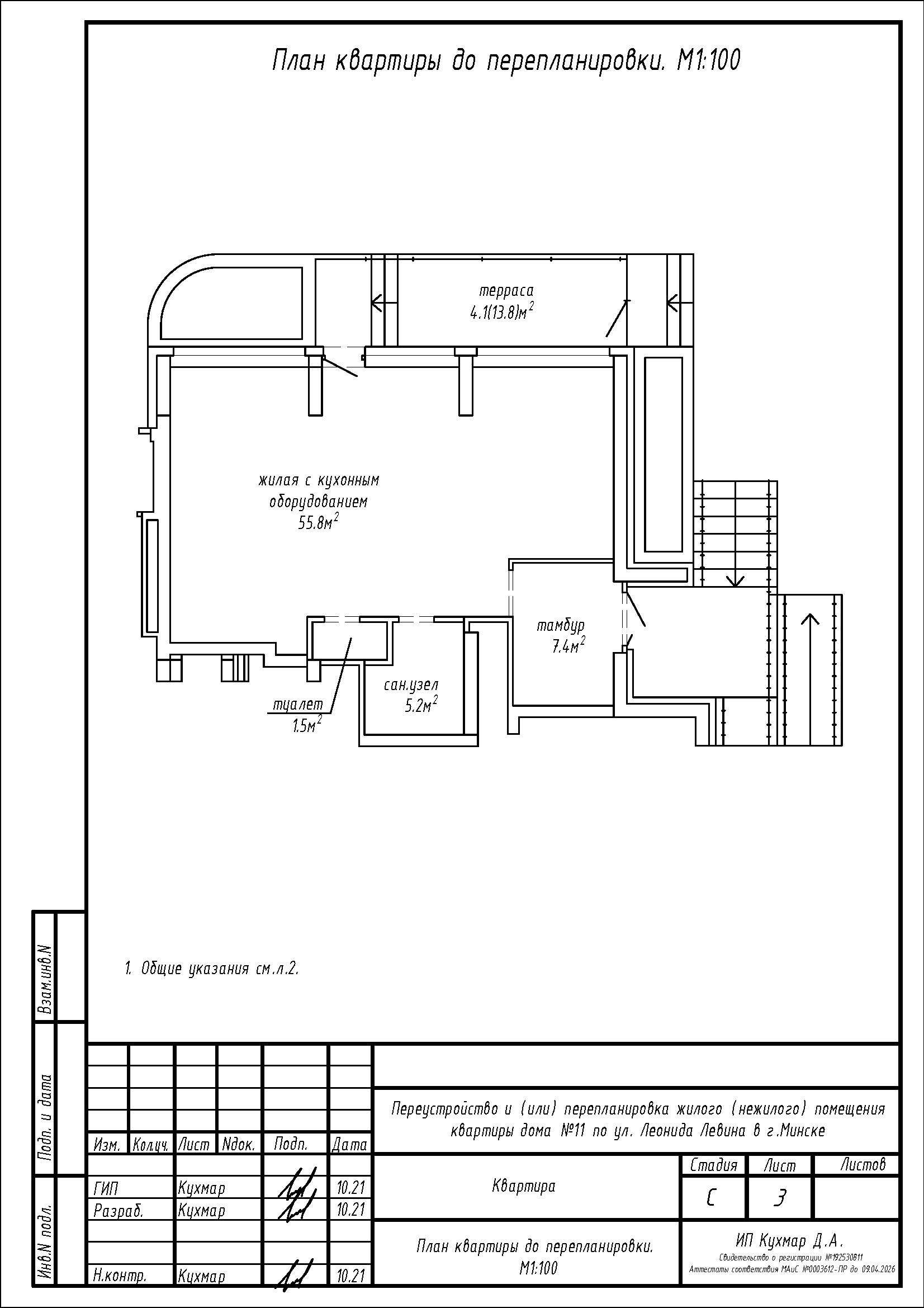
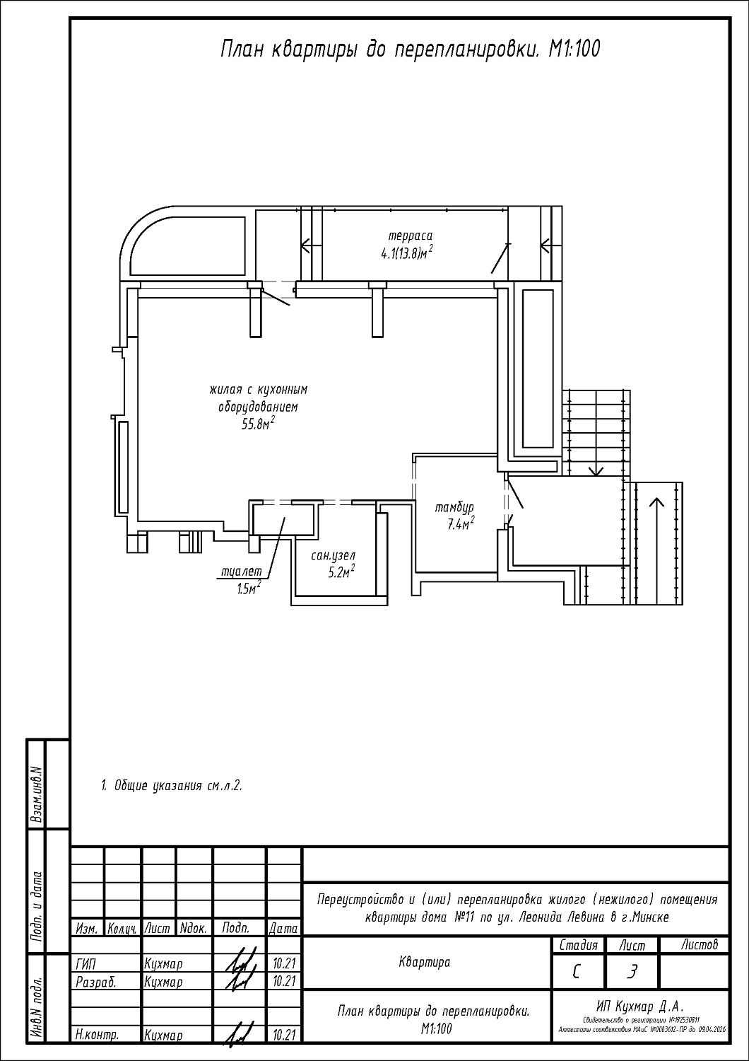
Перепланировка квартиры по ул. Левина, 11 в ЖК «Минск Мир»
Пожелания заказчика:
- Устройство нового санузла на площади туалета;
- Увеличение санузла за счет площади жилой с кухонным оборудованием и существующего санузла;
- Разделение жилой с кухонным оборудованием на кухню, две жилые, коридор и гардеробную;
- Перенос дверного проема в перегородке между санузлом и жилой с кухонным оборудованием.
Нами были разработаны следующие разделы проектной документации для согласования в исполкоме:
- АС - архитектурно-строительные решения.
