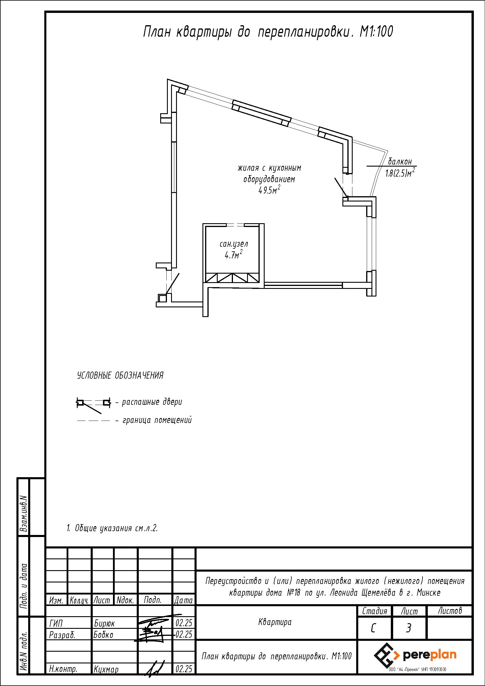
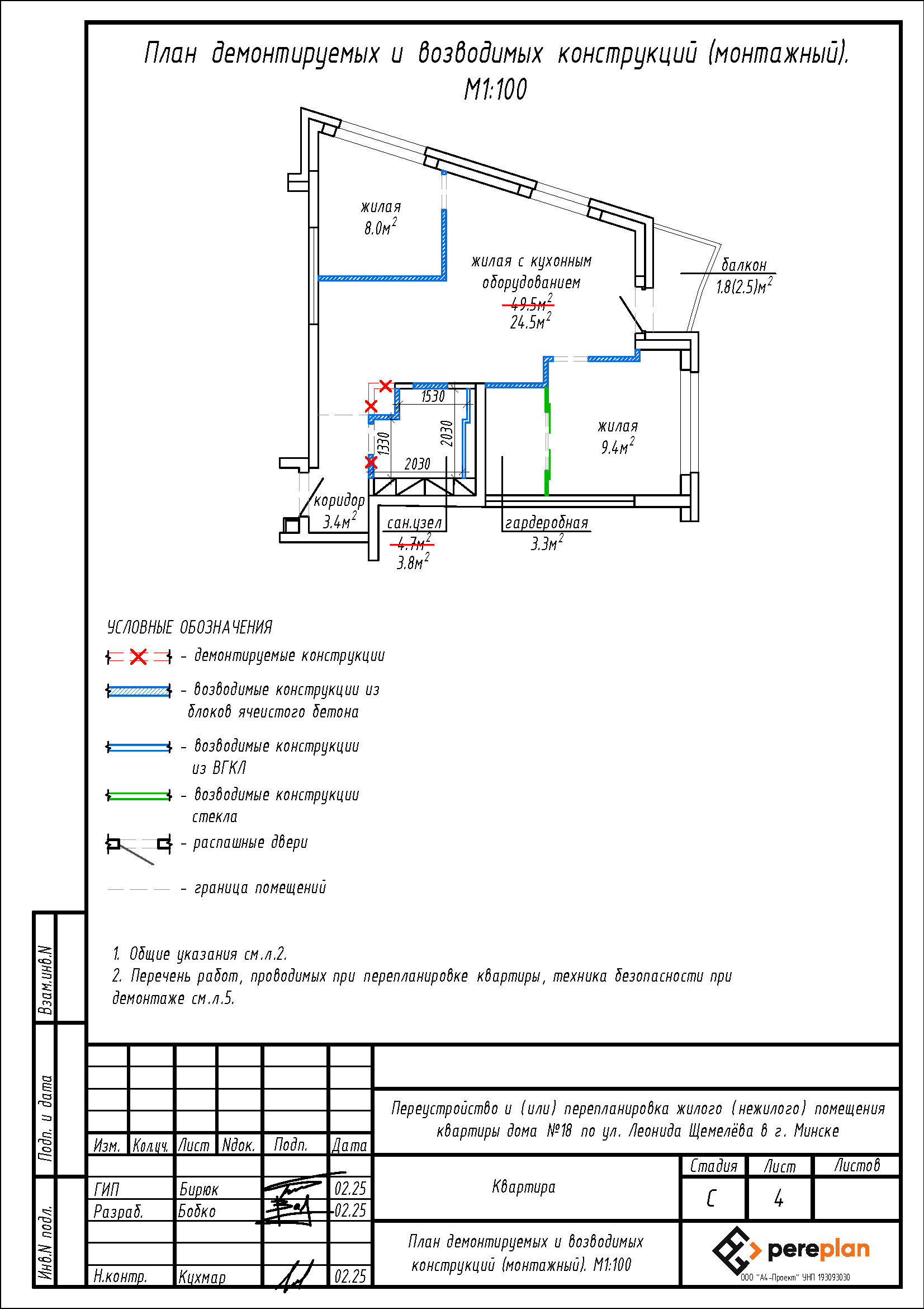
Перепланировка квартиры по ул. Леонида Щемелёва, 29 в ЖК «Минск Мир» в г. Минске
Пожелания заказчика:
- Демонтаж частей перегородок между жилой с кухонным оборудованием 49.5 м2 и сан.узлом 4.7 м2 с последующим устройством перегородок с дверными проемами и зашивок из ВГКЛ на части площади существующих перегородок, части площади сан.узла 4.7 м2 и жилой с кухонным оборудованием 49.5 м2 с целью устройства коридора, жилой с кухонным оборудованием, двух жилых и сан.узла.
Нами были разработаны следующие разделы проектной документации для согласования в исполкоме:
- АС - архитектурно-строительные решения.


