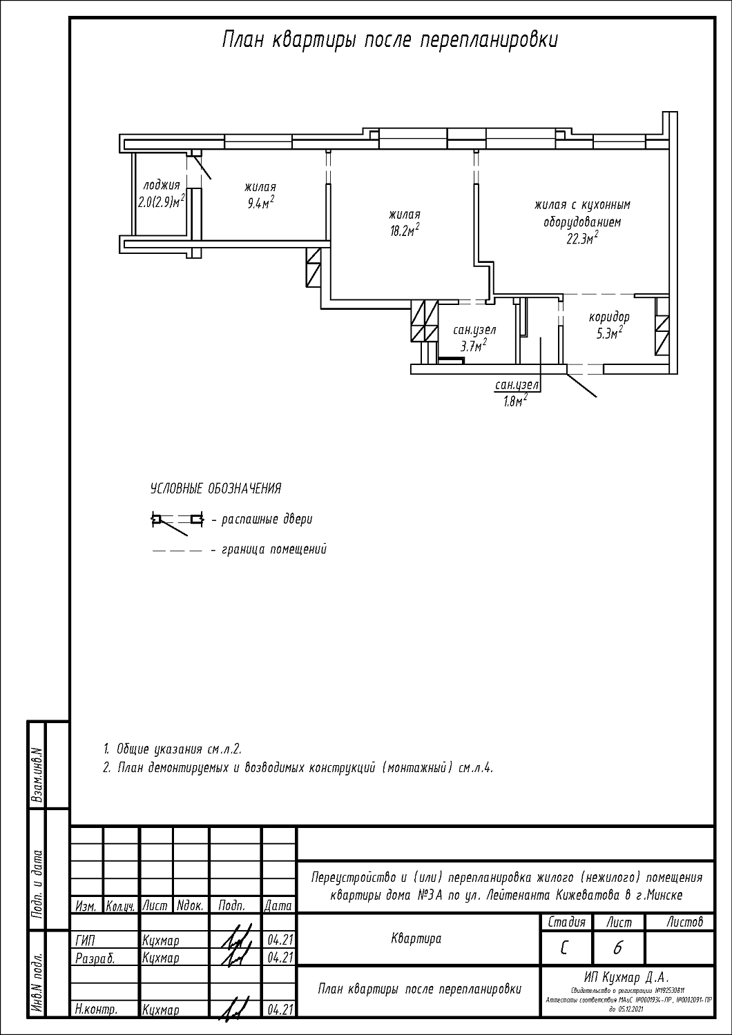
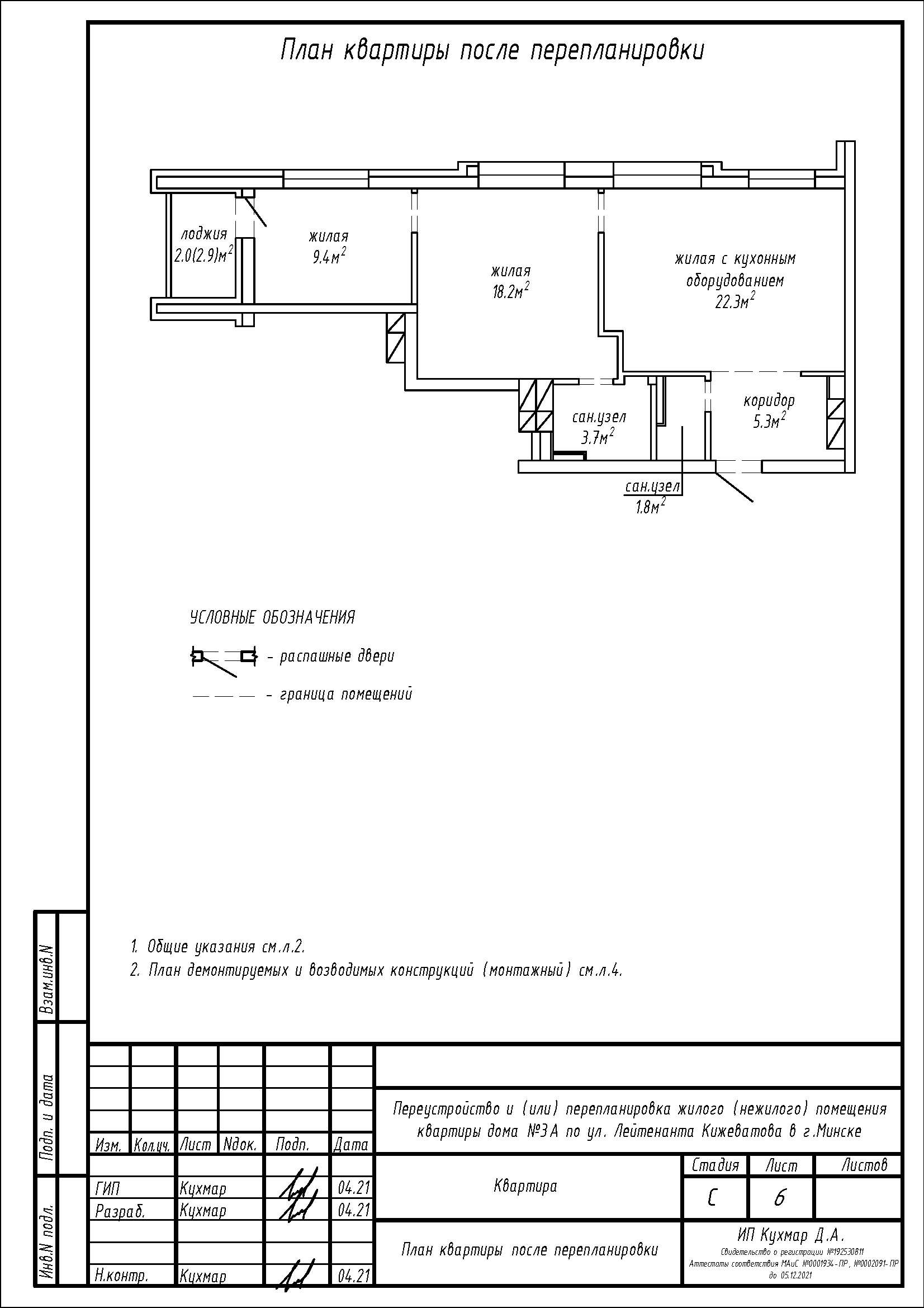
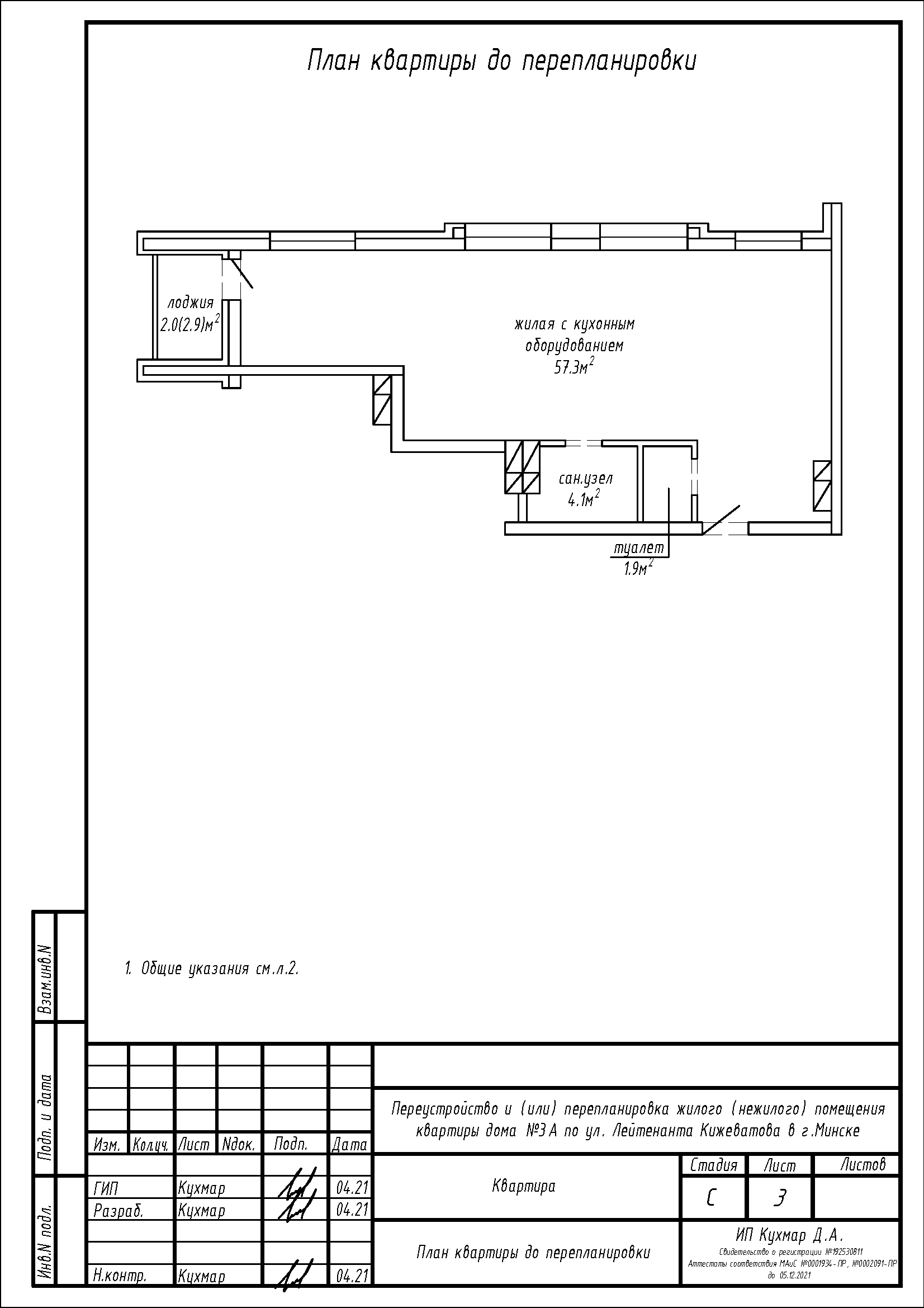
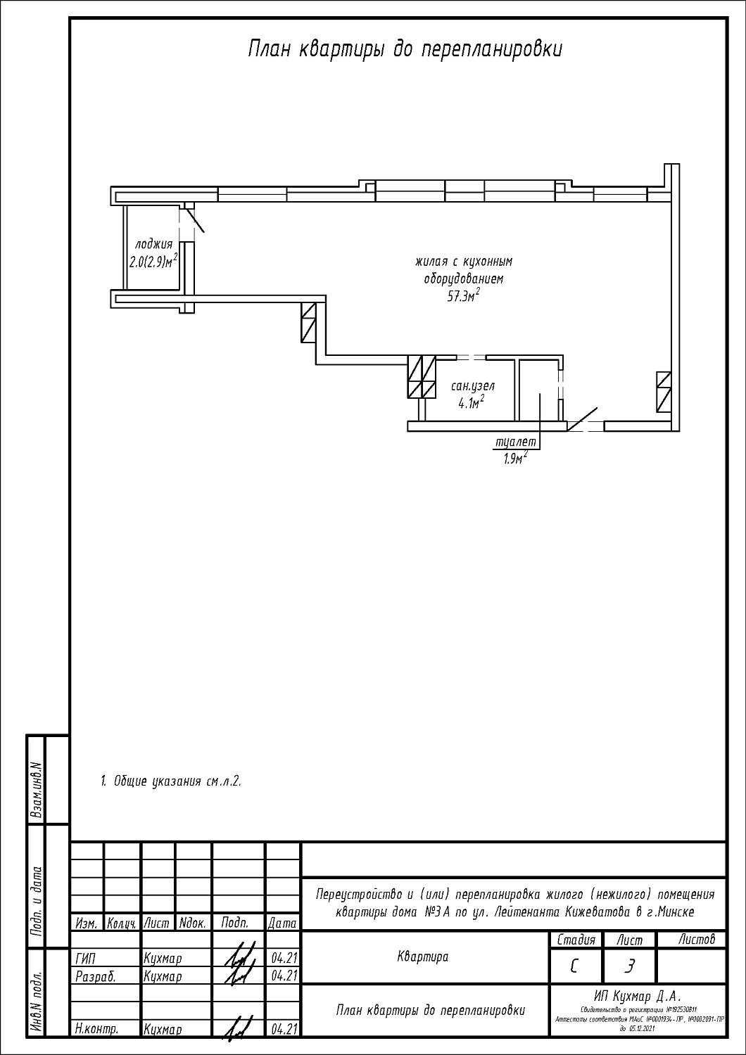
Перепланировка квартиры по ул. Кижеватова, 3А в ЖК «Минск Мир»
Пожелания заказчика:
- Разделение общего помещения жилой с кухонным оборудованием на жилую с кухонным оборудованием, две жилые, коридор;
- Изменение габаритов санузла;
- Устройство санузла на площади туалета;
- Смена направления открывания входной двери.
- АС - архитектурно-строительные решения.
