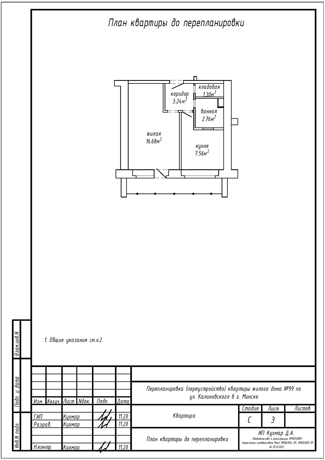
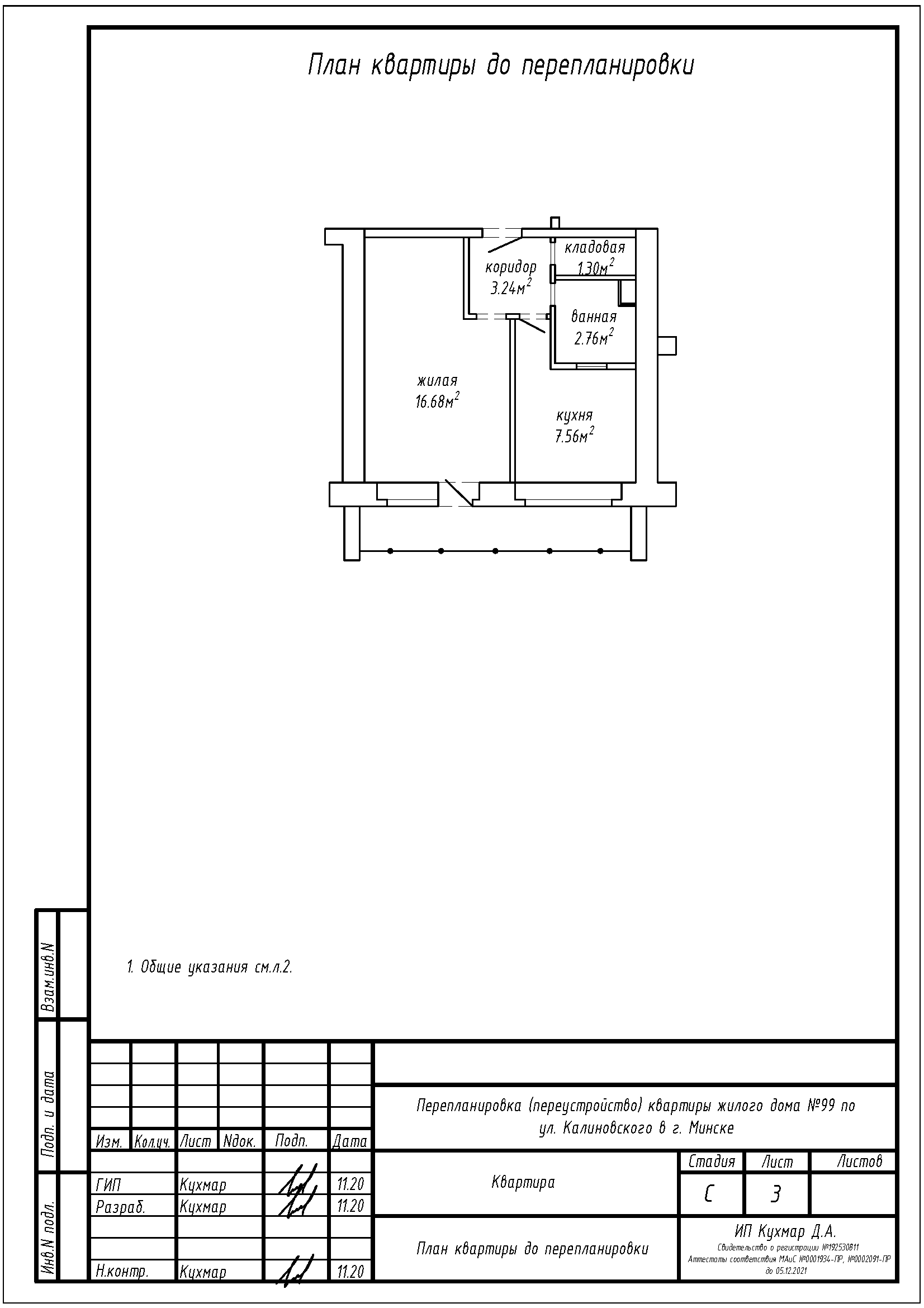
Перепланировка квартиры по ул. Калиновского, 99 в г. Минске
Пожелания заказчика:
- Устройство санузла на площади кладовой и ванной;
- Закладка оконного проёма в перегородке между ванной и кухней.
Нами были разработаны следующие разделы проектной документации для согласования в исполкоме:
- АС - архитектурно-строительные решения.
