Перепланировка квартиры по ул. Леонида Щемелёва, 18 в ЖК «Минск Мир»
Пожелания заказчика:
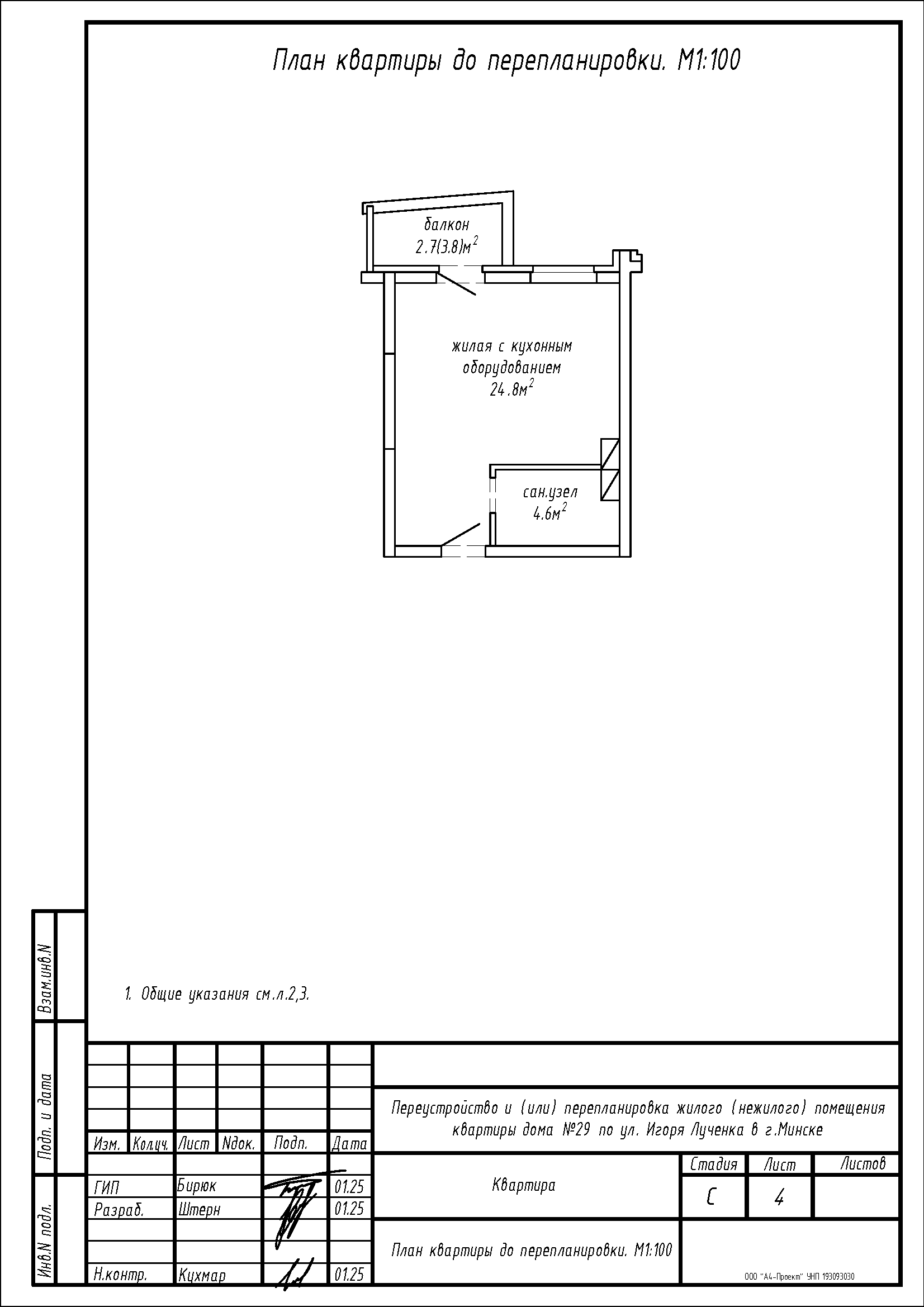
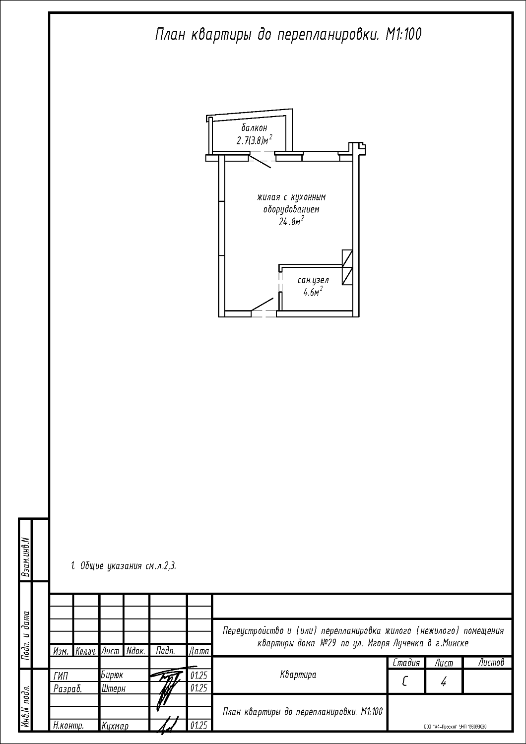
- Демонтаж части перегородки с дверным проемом между санузлом и жилой с кухонным оборудованием с последующим устройством перегородок с дверным проемом и зашивок ГКЛ на части площади санузла и жилой с кухонным оборудованием с целью устройства санузла и жилой с кухонным оборудованием.
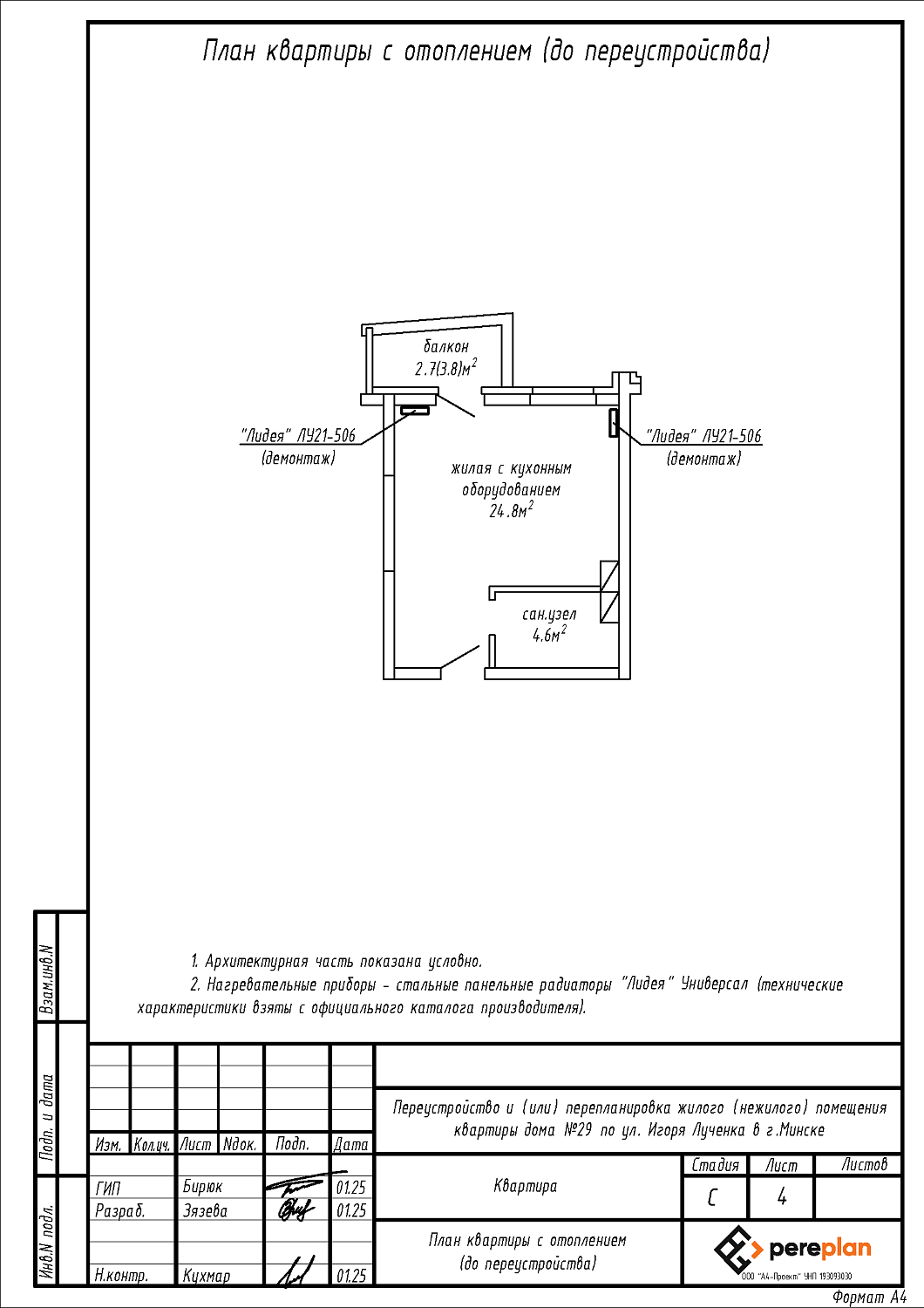
- АС - архитектурно-строительные решения;
- ОВ - отопление и вентиляция.


