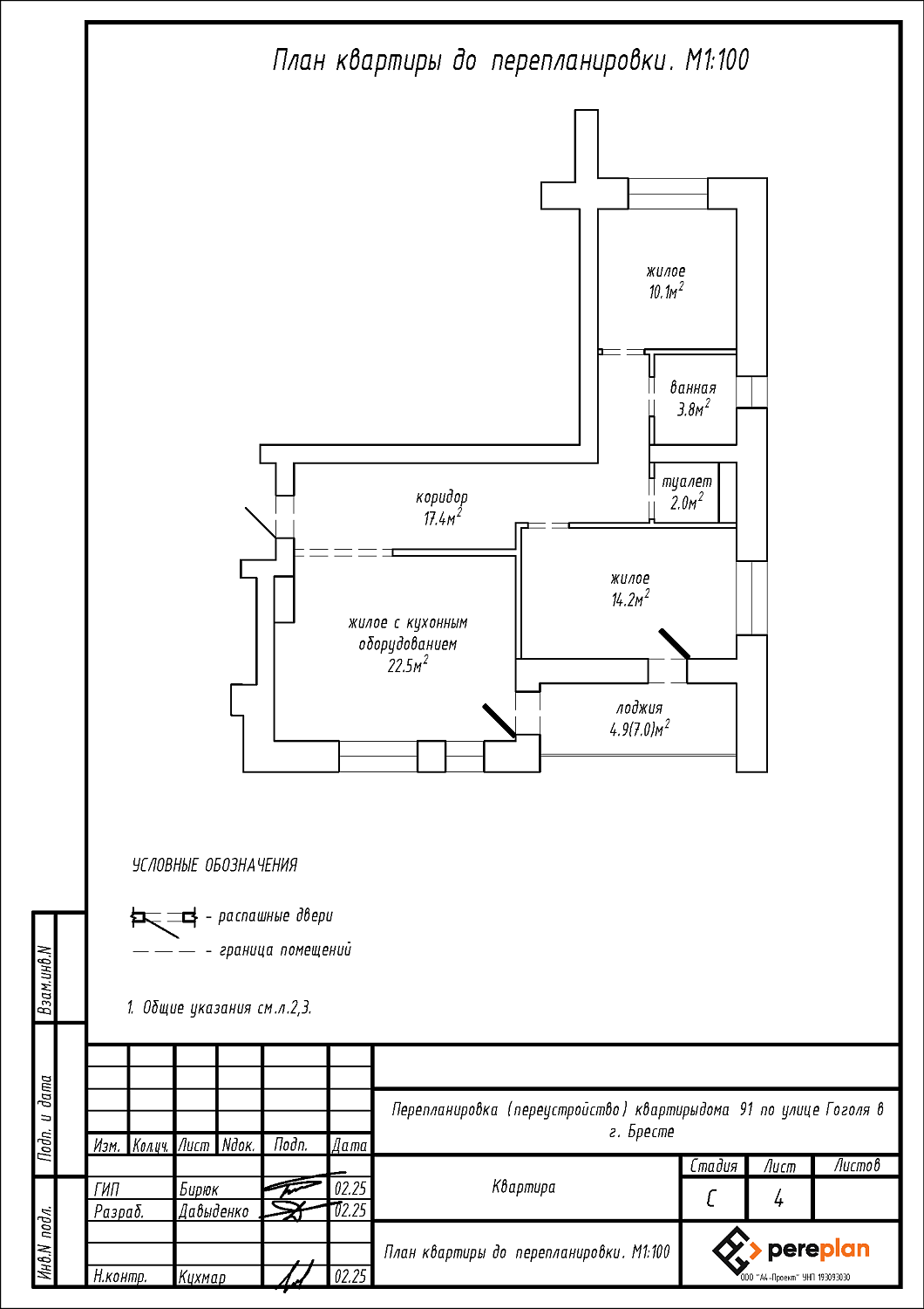
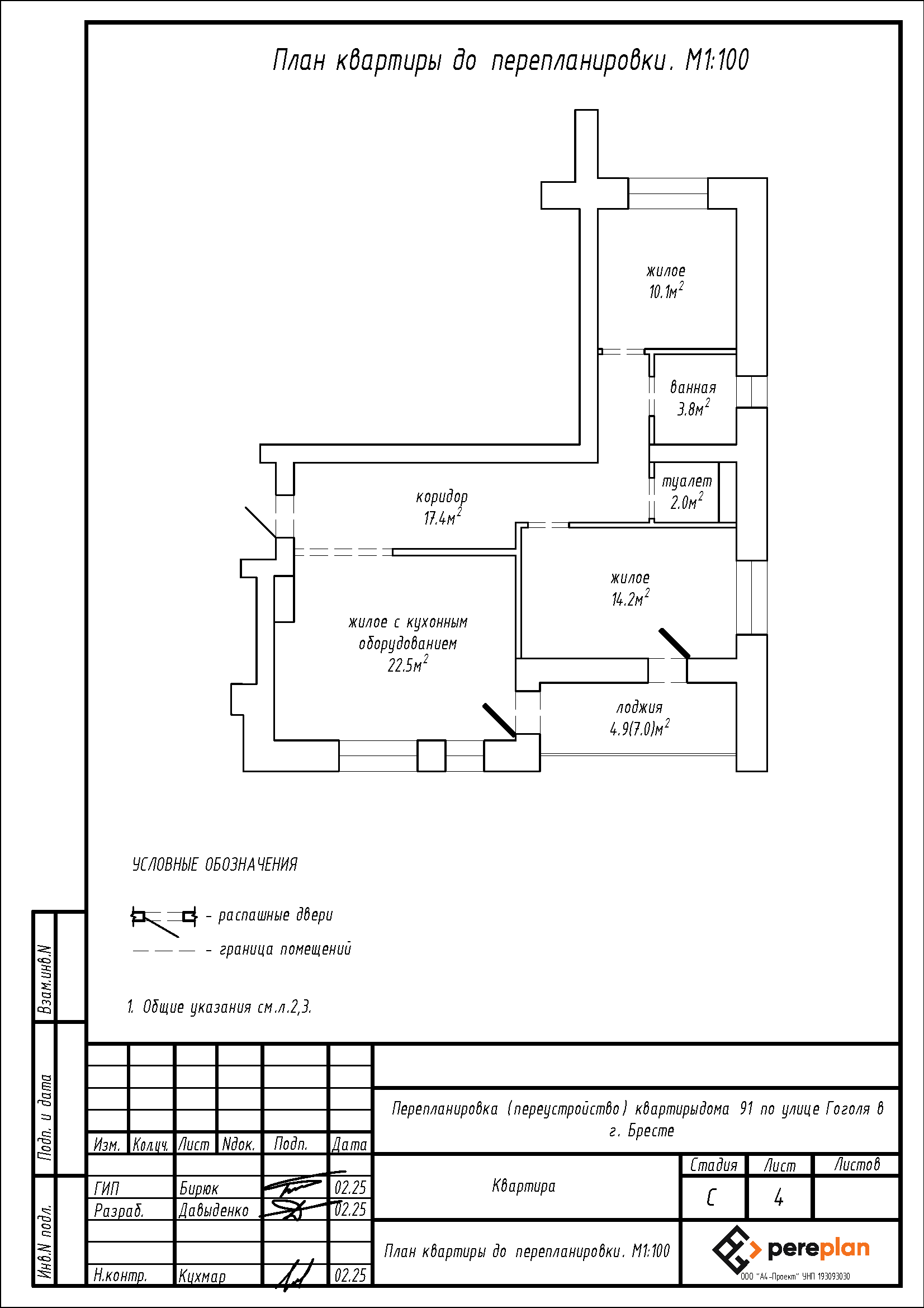
Перепланировка квартиры по ул. Гоголя, 91 в г. Бресте
Пожелания заказчика:
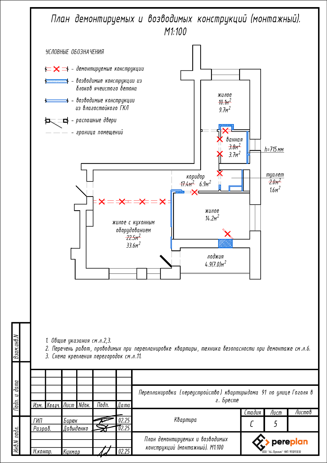
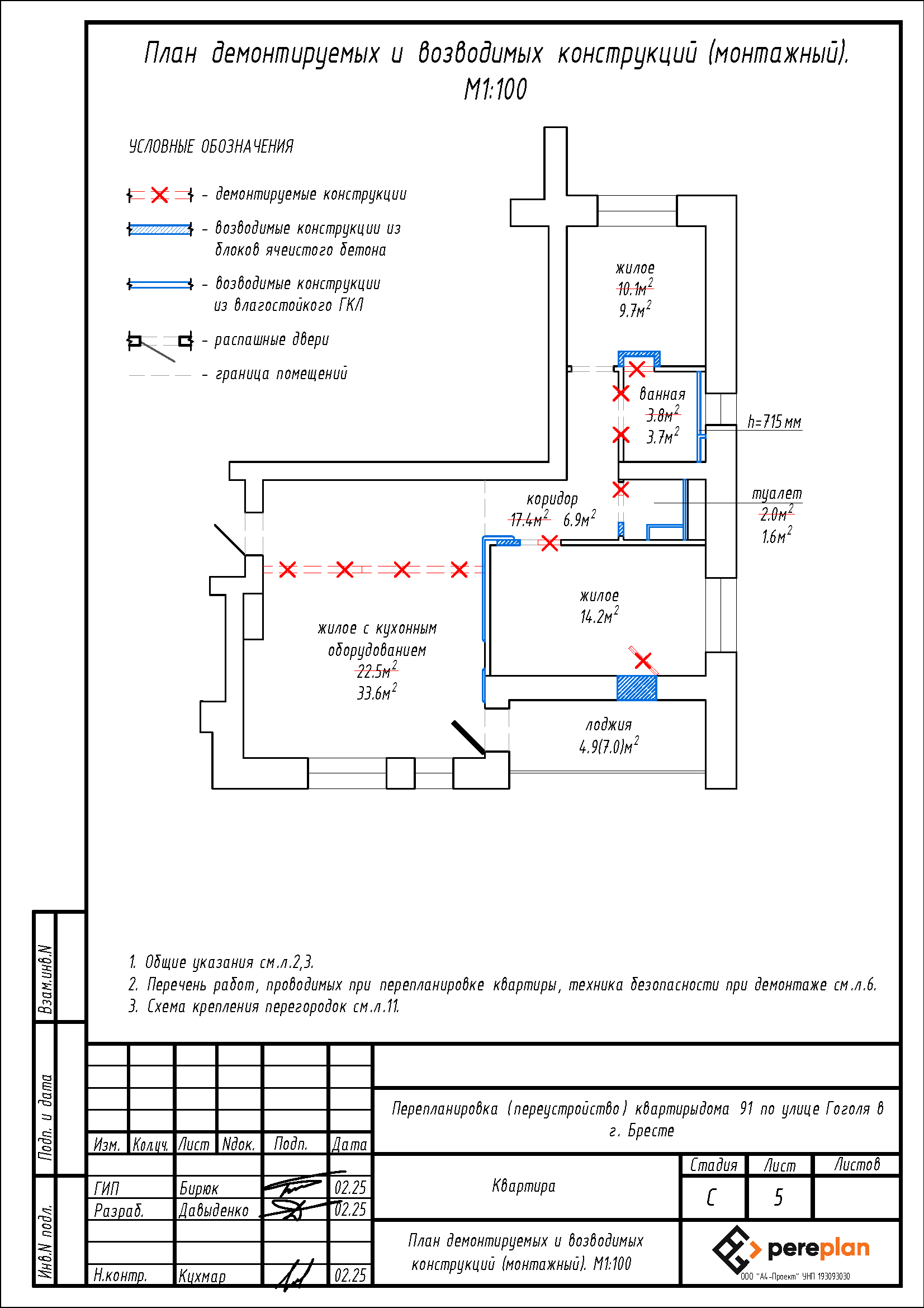
- Демонтаж и возведение перегородок;
- Закладка существующих и устройство новых дверных проемов в перегородках;
- Закладка дверного проема между помещениями лоджии и жилой комнатой.
Нами были разработаны следующие разделы проектной документации для согласования в исполкоме:
- АС - архитектурно-строительные решения.
