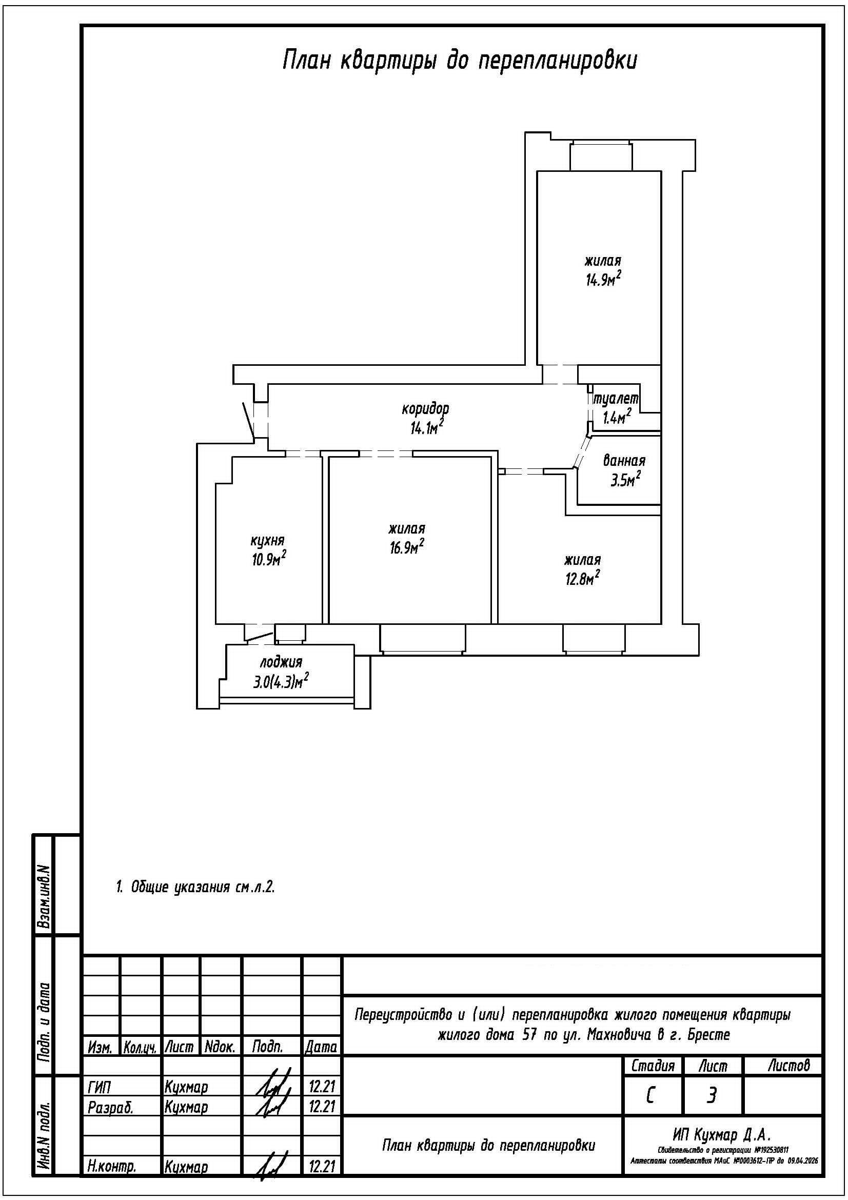
Перепланировка квартиры по ул. Махновича, 57 в г. Бресте
Пожелания заказчика:
- Увеличение площади туалета;
- Изменение габаритов жилой комнаты;
- Устройство новых перегородок между кухней, жилой и коридором;
- Заделка дверного проёма в кухне;
- Изменение в конструкции звуко- и теплоизоляции помещений квартиры.
Нами были разработаны следующие разделы проектной документации для согласования в исполкоме:
- АС - архитектурно-строительные решения.
