Перепланировка квартиры по ул. Филимонова, 55 в ЖК «Олимпийский»
Пожелания заказчика:
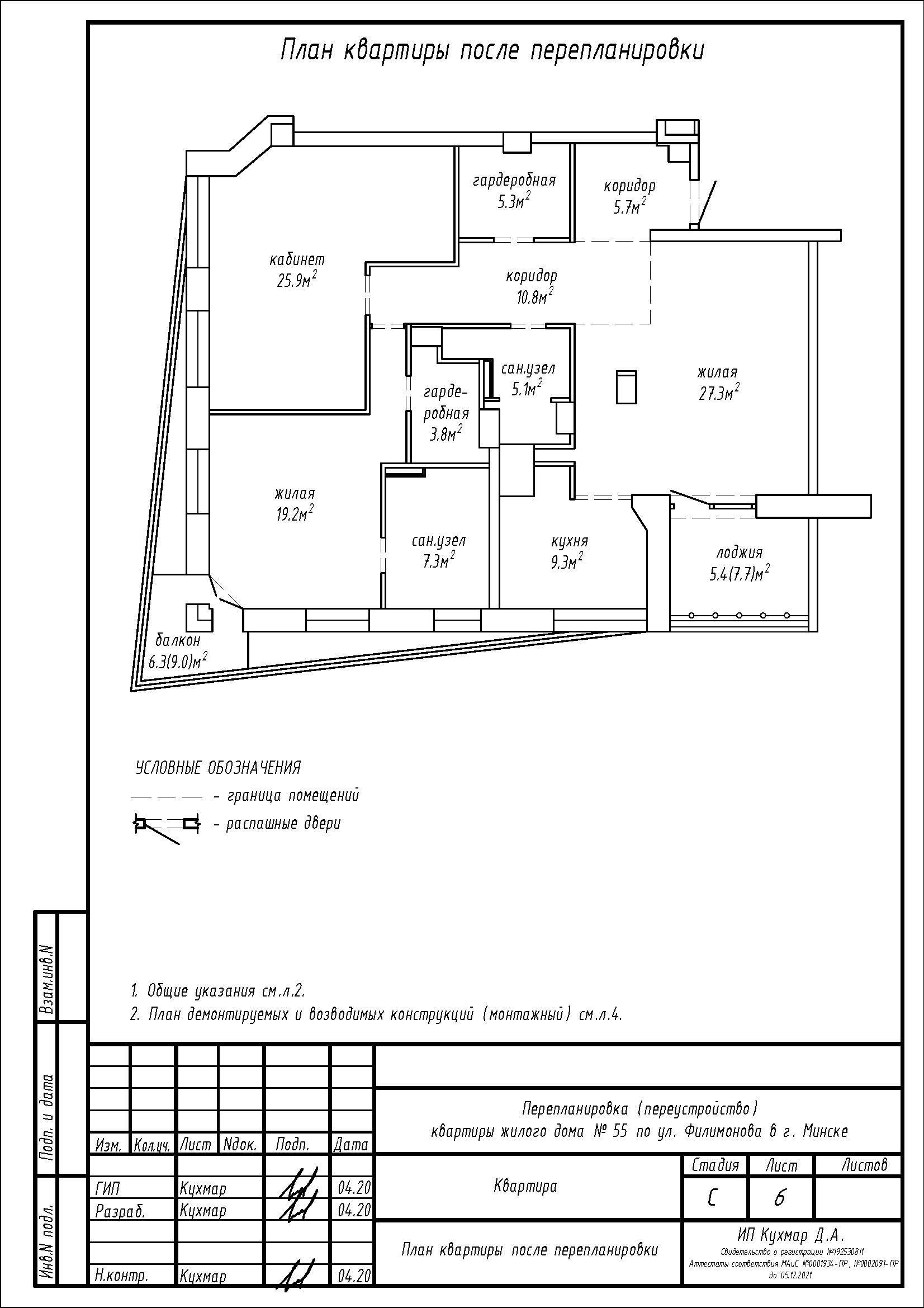
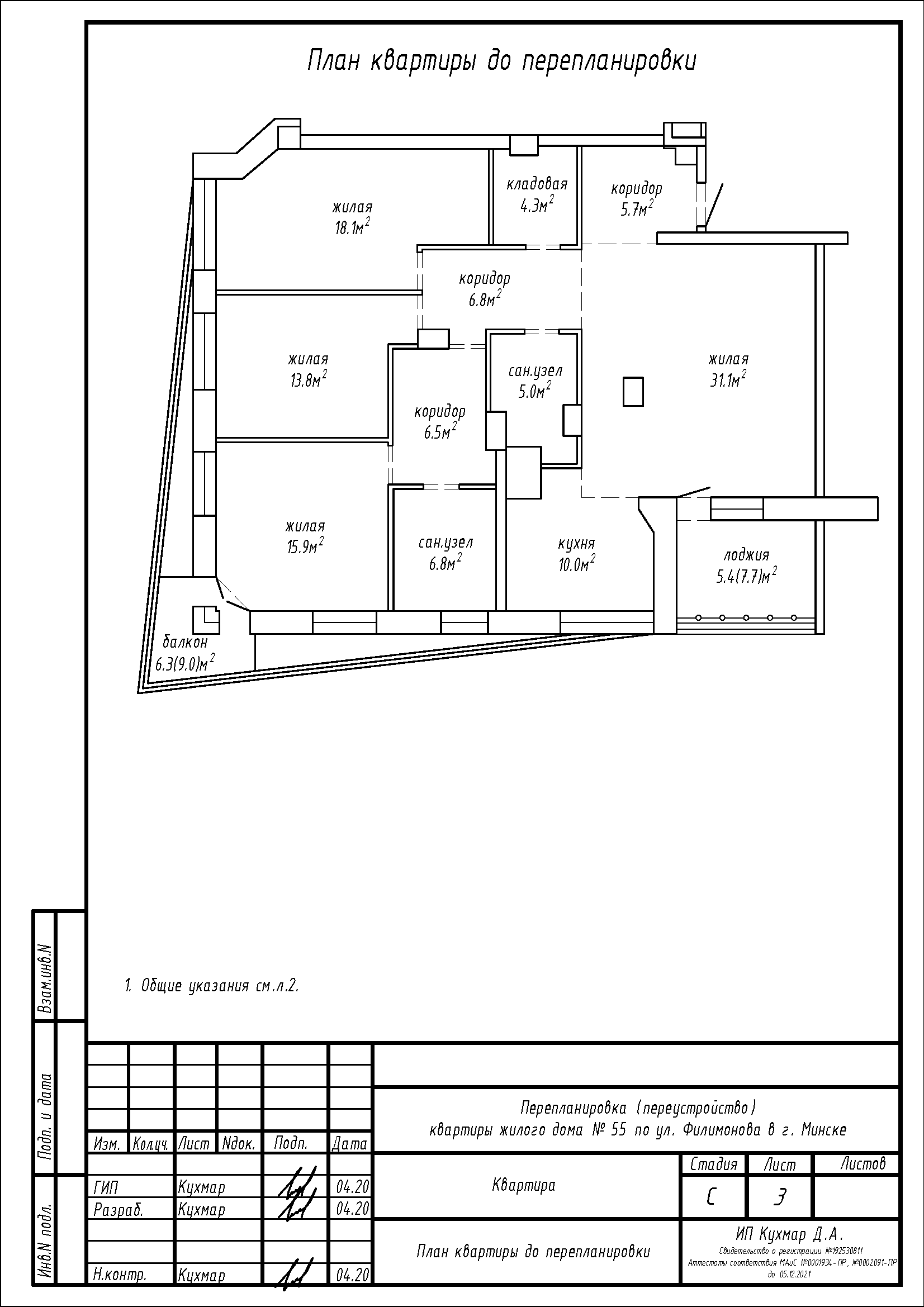
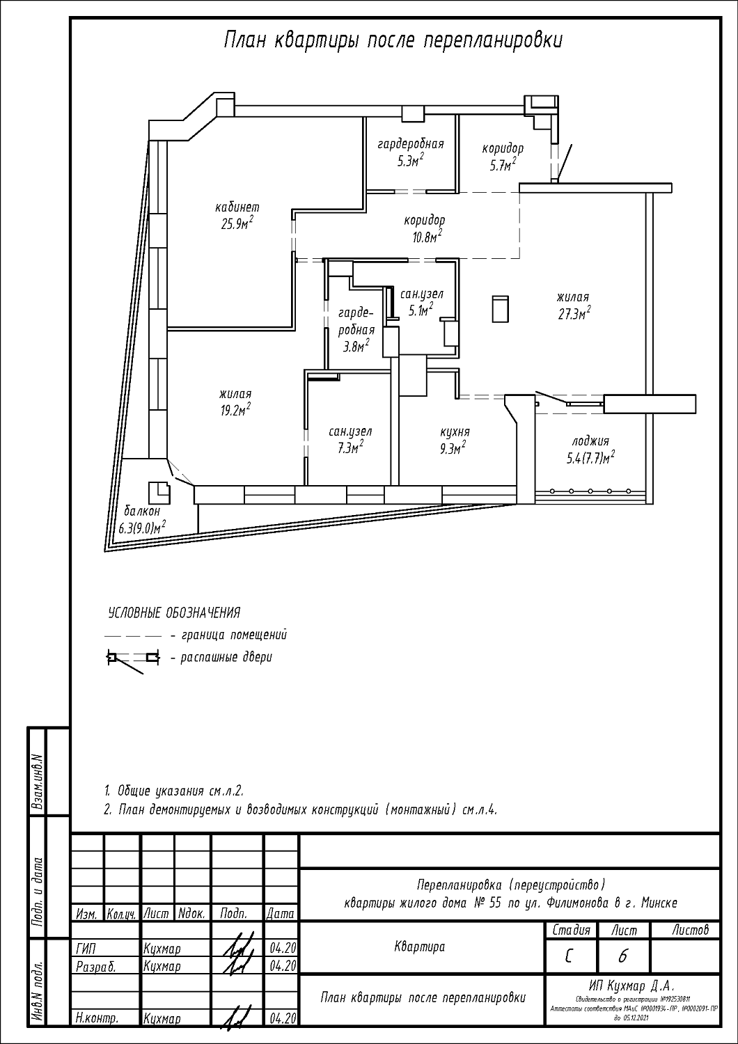
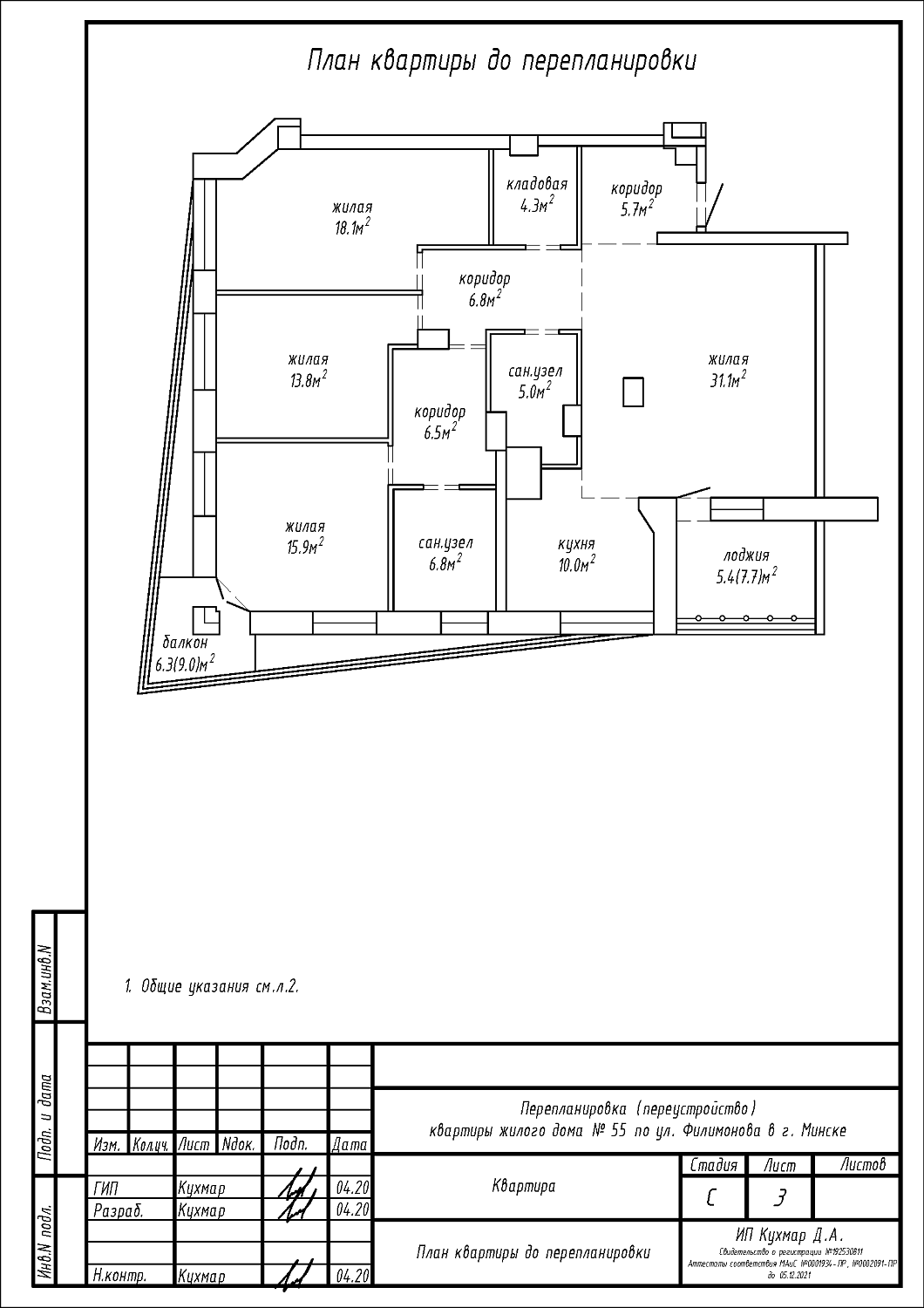
- Демонтаж перегородок с дверными проемами между кладовой 4.3 м2, коридором 6.8 м2, жилой 18.1, жилой 1З.8 м2, жилой 15.9 м2, коридором 6.5 м2, санузлом 6.8 м2 и санузлом 5.0 м2 с последующим возведением новых перегородок с дверными проемами на части площади жилой 18.1 м2, жилой 1З.8 м2, коридора 6.5 м2, коридора 6.8 м2, санузла 5.0 м2, санузла 6.8 м2, гардеробной 4.З м2, жилой З1.1 м2 и кухни 10.0м2 с целью образования кабинета, двух гардеробных, двух жилых, двух коридоров, двух санузлов и кухни;
- Устройство дверного проема в перегородке между жилой 15.9 м2 и санузлом 6.8 м2;
- Демонтаж подоконной части в стене между жилой З1.1 м2 и лоджией 5.4(7.7) м2 с последующей установкой оконного блока.
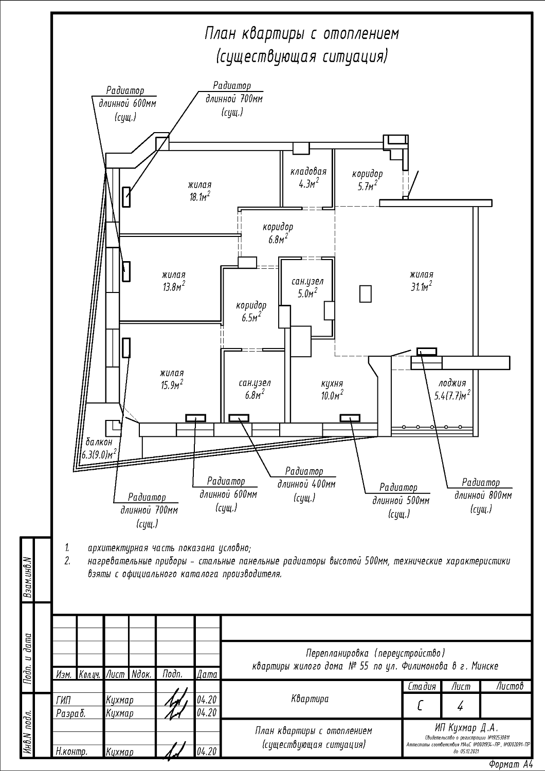
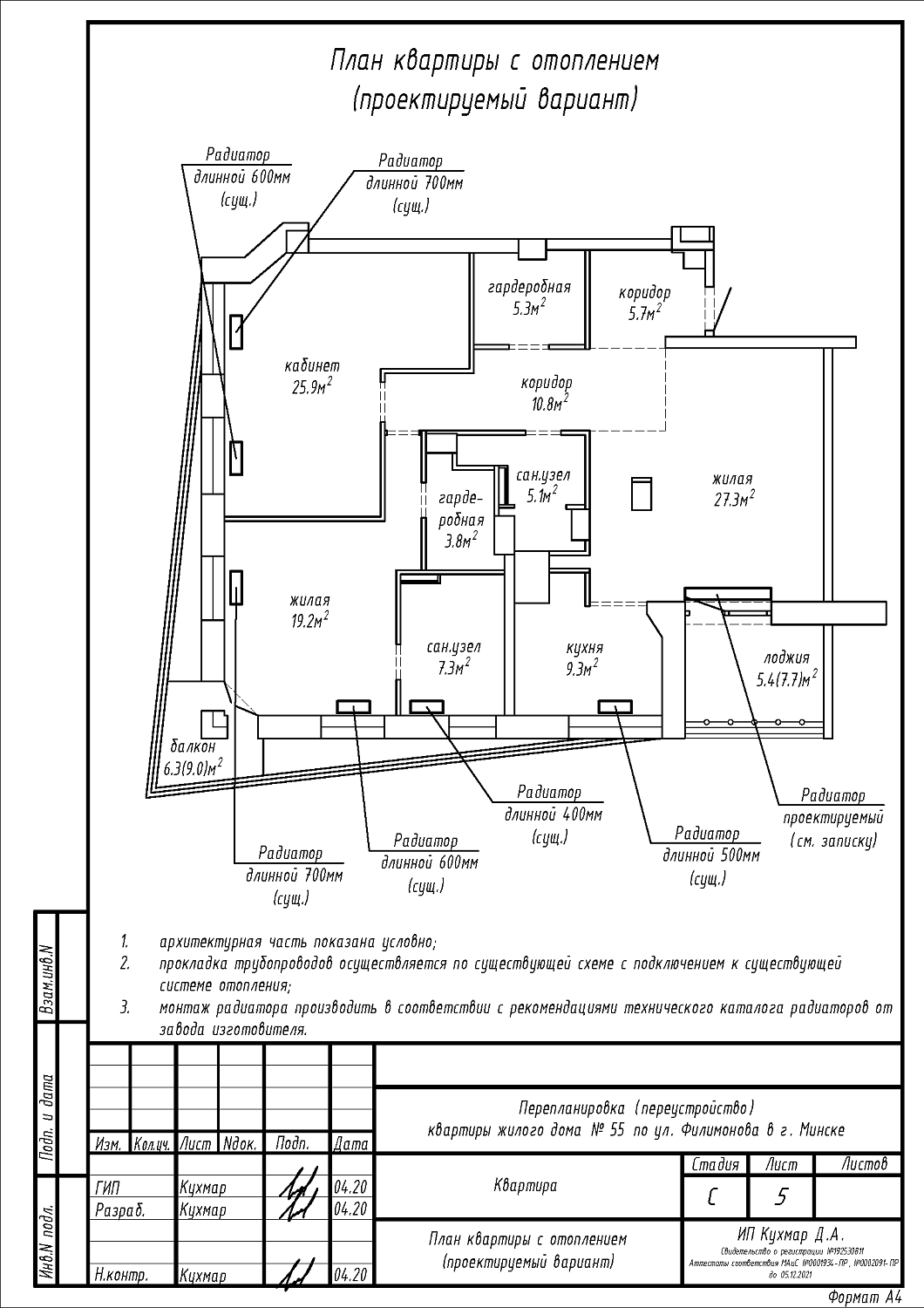
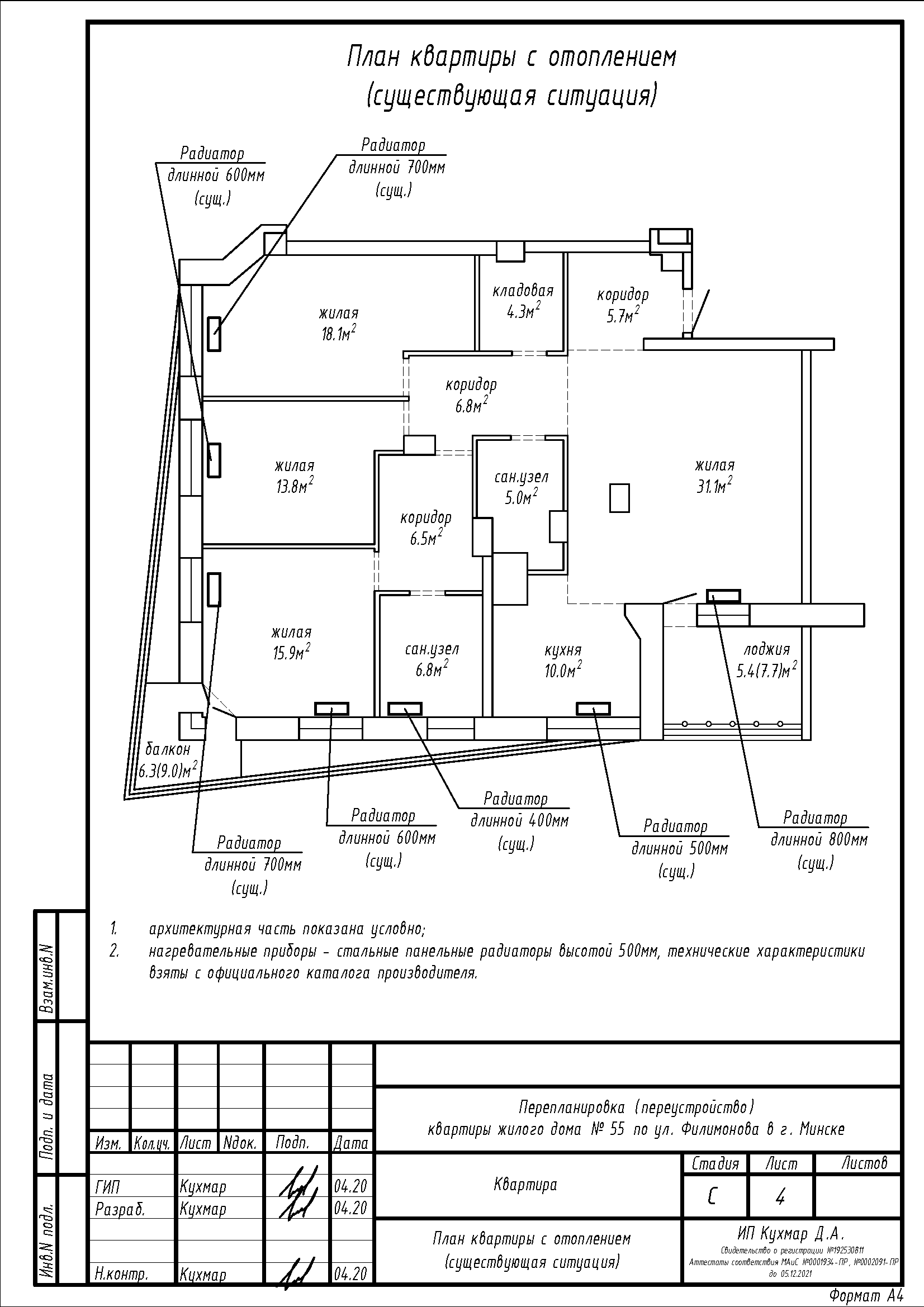
- Замена и перенос отопительных приборов.
Нами были разработаны следующие разделы проектной документации для согласования в исполкоме:
- АС - архитектурно-строительные решения;
- ОВ - отопление и вентиляция.
