Перепланировка квартиры по ул. Брилевская, 16 в г. Минске
Пожелания заказчика:
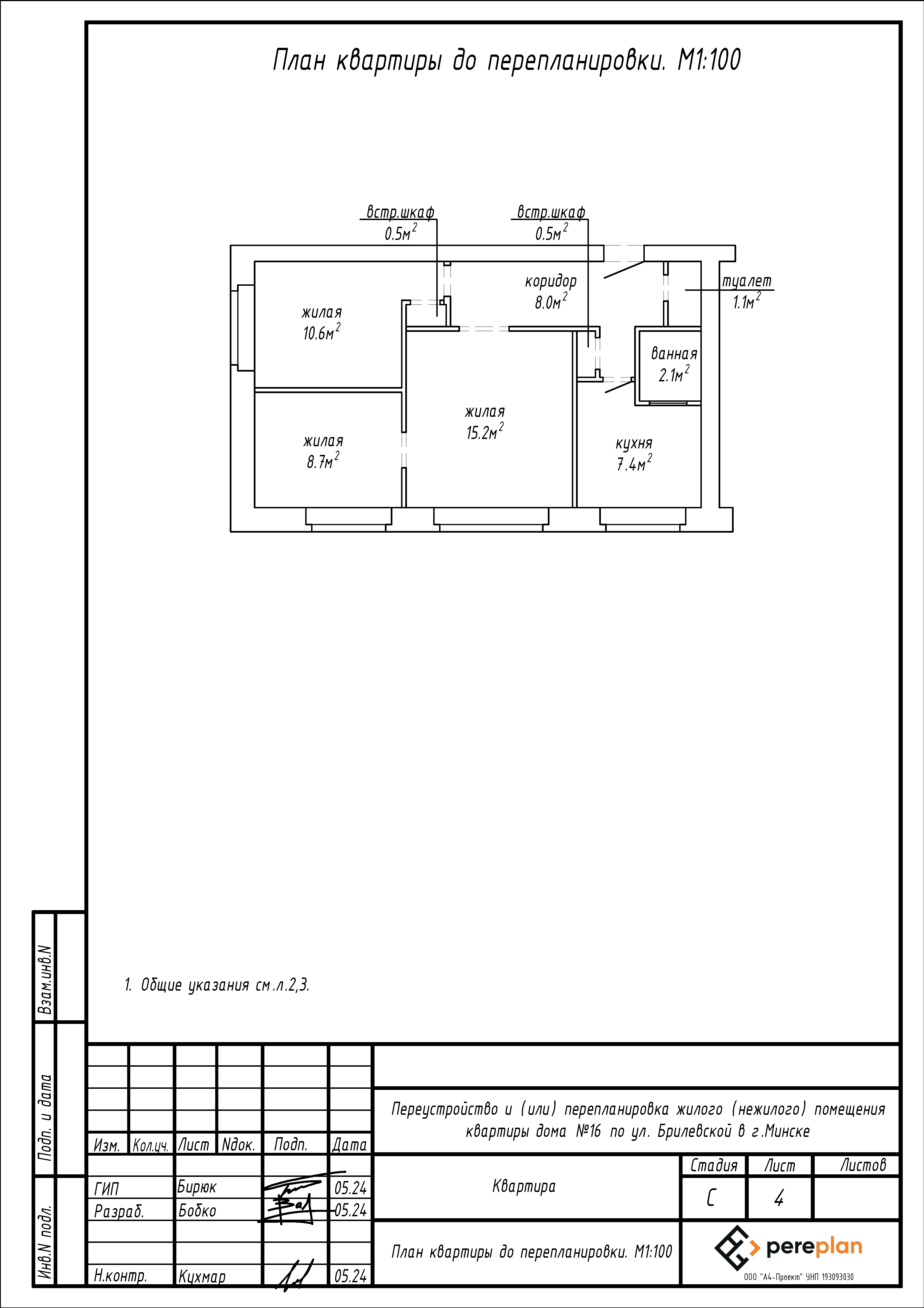
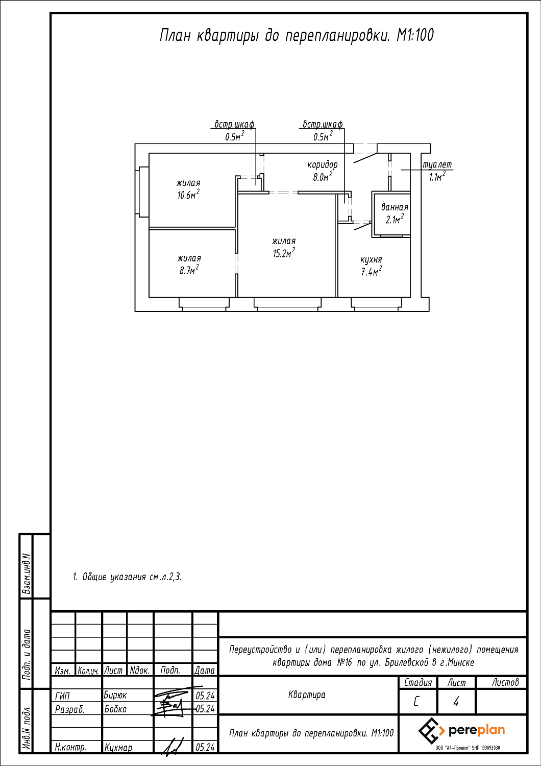
- Демонтаж перегородок с дверными проёмами между коридором 8.0 м2, жилой 10.6 м2 и встроенным шкафом 0.5 м2 с последующим устройством перегородки с дверным проёмом на площади существующей перегородки;
- Демонтаж перегородки с дверным проемом между туалетом 1.1 м2 и коридором 8.0 м2 с последующим устройством перегородки с дверным проёмом и зашивки из ГКЛ на части площади коридора 8.0 м2 и туалета 1.1 м2 с целью увеличения площади туалета;
- Демонтаж перегородок с дверными проёмами между коридором 8.0 м2, ванной 2.1 м2, встроенным шкафом 0.5 м2 и кухней 7.4 м2 с последующим устройством перегородок с дверными проёмами и дверным полотном в кухню на части площади коридора 8.0 м2 и кухни 7.4 м2 с целью увеличения площади ванной (квартира находится на 1 этаже);
- Перенос дверного проема в перегородке между жилой 15.2 м2 и жилой 8.7 м2;
- Закладка оконного проема в перегородке между ванной 2.1 м2 и кухней 7.4 м2;
- Замена дверного блока входной двери со сменой направления открывания;
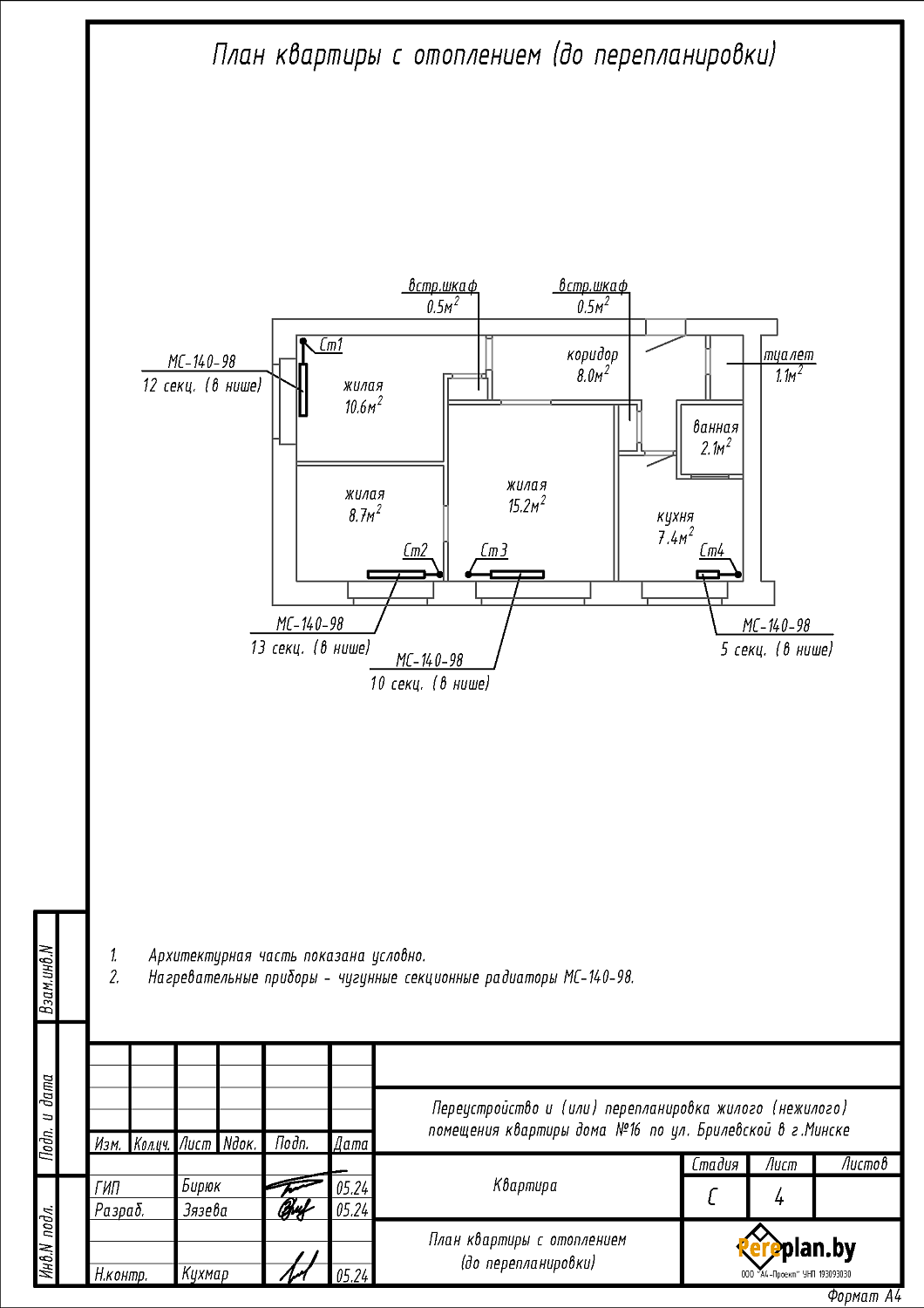
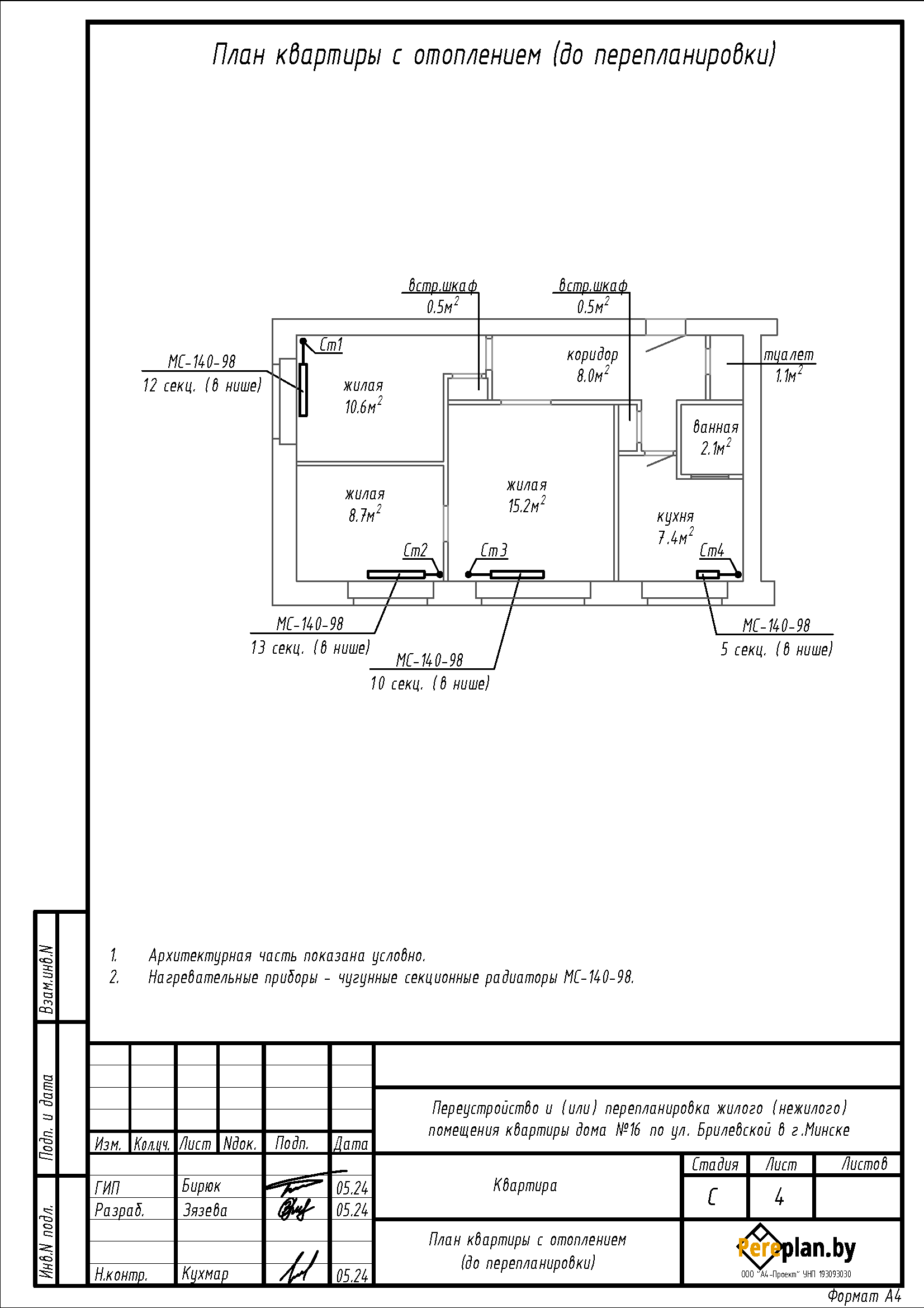
- Перенос и замена отопительных приборов.
Нами были разработаны следующие разделы проектной документации для согласования в исполкоме:
- АС - архитектурно-строительные решения.
- ОВ - отопление и вентиляция.
- Г - газоснабжение.


